賃貸マンション
スプランディッド大阪NAMBA LINE旧スプランディッドXIイレの賃貸物件情報(2LDK/12階)
| 家賃 | 管理費等 | 敷金 | 礼金 | 間取り | 専有面積 |
|---|---|---|---|---|---|
| 18.3万円 | 1万円 | なし | なし | 2LDK | 55.02m2 |
入居決定でお祝い金最大100,000円
- 保証金
- -
- 償却・敷引
- -
- 築年数
- 新築
- 所在階
- 12階
- 向き
- 南
Point
●システムキッチン●オートロック●防犯カメラ●エレベーター●バルコニー●エアコン
提供:いい部屋ネット阪急梅田店(株)ラックハウジング(SUUMO経由)

詳細情報 スプランディッド大阪NAMBA LINE旧スプランディッドXIイレ
物件紹介
スプランディッド大阪NAMBA LINE旧スプランディッドXIイレは阪神電鉄阪神なんば線福駅から徒歩7分にあり、駅近で通勤通学に便利なマンションです。
このお部屋は2階以上に位置しているので通行人や周囲の住人からの視線が気になりにくく、建物のエントランスはオートロックがついているので防犯性が高くなっています。
人気の南向きのお部屋。室内にはウォークインクローゼットがありますので、たくさんの荷物も効率的に収納ができます。キッチンはシステムキッチン仕様になっていますので、お料理好きの方にもぴったり。バス・トイレは別なので、のんびりお風呂タイムも楽しめるでしょう。また、雨の日でも浴室乾燥機を使えば、お洗濯も問題ありません。
建物にはエレベーターがついているので、重い荷物があっても安心。共用部には宅配ボックスが設定されているので、不在の時にも荷物を受け取ることができます。また、ペット飼育の相談ができますので、あなたの大切な家族の一員も快適に暮らせるか、ぜひ確認してみてください。
このお部屋は2階以上に位置しているので通行人や周囲の住人からの視線が気になりにくく、建物のエントランスはオートロックがついているので防犯性が高くなっています。
人気の南向きのお部屋。室内にはウォークインクローゼットがありますので、たくさんの荷物も効率的に収納ができます。キッチンはシステムキッチン仕様になっていますので、お料理好きの方にもぴったり。バス・トイレは別なので、のんびりお風呂タイムも楽しめるでしょう。また、雨の日でも浴室乾燥機を使えば、お洗濯も問題ありません。
建物にはエレベーターがついているので、重い荷物があっても安心。共用部には宅配ボックスが設定されているので、不在の時にも荷物を受け取ることができます。また、ペット飼育の相談ができますので、あなたの大切な家族の一員も快適に暮らせるか、ぜひ確認してみてください。
お金・契約の情報
※「-」と表示されているものは、実際は料金が発生するものもございます。詳細はお問い合わせください。
| 家賃 | 18.3万円 | 管理費・共益費 | 1万円 |
|---|---|---|---|
| 敷金 | なし | 礼金 | なし |
| 入居決定でお祝い金最大100,000円 | |||
| 保証金 | - | 償却・敷引 | - |
| 住宅保険料 | - | 更新料 | - |
| 保証会社利用 | 必須 | 保証会社名 | - |
| 保証会社費用 | - | 保証会社備考 | 保証会社利用必 管理会社指定になります。 |
| 契約形態 | - | 契約期間 | - |
| 入居・引渡期間 | - | 現況 | - |
| 入居可能条件 | ペット相談 | ||
| 契約備考 | ●システムキッチン●オートロック●防犯カメラ●エレベーター●バルコニー●エアコン 合計2.75万円(内訳:アクト安心ライフ24契約時1.65万円鍵交換代1.1万円) 2LDK 二人入居可/ペット相談 普通借家2年 損保【2万円2年】 バストイレ別、バルコニー、エアコン、クロゼット、浴室乾燥機、オートロック、シューズボックス、システムキッチン、南向き、温水洗浄便座、エレベーター、駐輪場、宅配ボックス、礼金不要、敷金不要、防犯カメラ、ペット相談、ウォークインクロゼット、二人入居相談、バイク置場、築2年以内、2駅利用可、3駅以上利用可、駅徒歩10分以内、LDK12畳以上、年内入居可 入居日:'26年3月下旬 | ||
部屋の情報
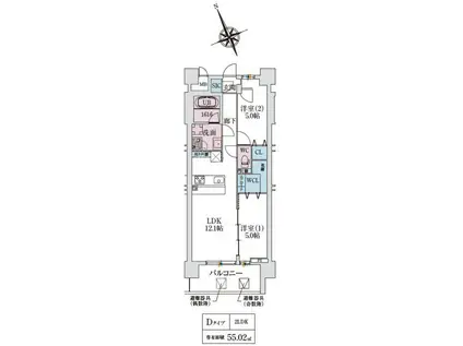
| 間取り | 2LDK | 専有面積 | 55.02m2 |
|---|---|---|---|
| 所在階 / 向き | 12階 / 南 | バルコニー面積 | - |
| 水道 / ガス | - | ||
| 設備 | バス・トイレ別、2階以上、オートロック、宅配ボックス、浴室乾燥機、ウォークインクローゼット、システムキッチン、エアコン、エレベーター、温水洗浄便座、南向き、バルコニー | ||
| 当社物件ID | 160446936 | ||
建物の情報
| 建物名 | スプランディッド大阪NAMBA LINE旧スプランディッドXIイレ | ||
|---|---|---|---|
| 所在地 | 大阪府大阪市西淀川区福町 | ||
| 交通 | 阪神電鉄阪神なんば線 福駅 徒歩7分 阪神電鉄阪神なんば線 伝法駅 徒歩18分 阪神電鉄阪神なんば線 出来島駅 徒歩18分 | ||
| 階数 | 14階建 | 総戸数 | 78戸 |
| 築年月 | 2026年03月 / 新築 | エレベーター | あり |
| 駐車場 | なし | バイク置き場 | あり |
| 駐輪場 | あり | 管理人/管理会社 | - |
| 周辺環境 | その他 ユニクロ 西淀川店(その他)まで413m その他 西淀川福郵便局(郵便局)まで349m その他 西淀川警察署福大野交番(警察署・交番)まで364m その他 ファミリーマート 福町二丁目店(コンビニ)まで452m その他 ココカラファインプラスイズミヤ 福町店(ドラッグストア)まで453m | ||
| 建物種別 | マンション | 建物構造 | RC(鉄筋コンクリート) |
この部屋の取扱い不動産会社
| 会社名 | いい部屋ネット阪急梅田店(株)ラックハウジング(SUUMO経由) | ||
|---|---|---|---|
| 所在地 | 大阪府大阪市北区角田町 1-10 くろふねビル3階 | 交通 | - |
| 営業時間 | 9:30~19:30 | 定休日 | 毎週水曜日・木曜日 |
| 免許番号 | 大阪府知事63464 | 取引態様 | 仲介 |
| 不動産会社管理番号 | 100489714042 | 当社管理番号 | 89 |
| 取扱い物件情報 | 物件詳細へ | ||
※各種情報と現状に差異がある場合は、現状優先となります。問い合わせをすることで、より詳しい条件、情報を確認する事ができます。
提供:いい部屋ネット阪急梅田店(株)ラックハウジング(SUUMO経由)
この物件が気になったら掲載期限まであと10日
スプランディッド大阪NAMBA LINE旧スプランディッドXIイレの空き部屋一覧
全部で73の空き部屋があります。
スプランディッド大阪NAMBA LINE旧スプランディッドXIイレに条件(家賃・エリア)が近い物件一覧
| 写真 | 家賃 管理費等 | 敷金 礼金 | 間取り 専有面積 | 築年数 | 最寄り駅 所在地 | キープ | 詳細 |
|---|---|---|---|---|---|---|---|
アパート CASA. FILANTE Ⅴ(2LDK/3階) | |||||||
| 17万円 7,000円 | なし 17万円 | 2LDK 70.49m2 | 築1年 | 大阪モノレール本線 山田駅(大阪) 徒歩9分 大阪モノレール彩都 万博記念公園駅(大阪) 徒歩13分 阪急電鉄千里線 南千里駅 徒歩28分 大阪府吹田市山田東4丁目13-22 | 詳細を見る | ||
アパート FLEURAGE(2LDK/3階) | |||||||
![]() | 13.2万円 7,500円 | 3万円 26.4万円 | 2LDK 64.56m2 | 築3年 | 地下鉄中央線 高井田駅(大阪メトロ) 徒歩8分 JRおおさか東線 高井田中央駅 徒歩9分 JRおおさか東線 放出駅 徒歩13分 大阪府東大阪市森河内東 | 詳細を見る | |
マンション プレアデス千里山田(1DK/7階) | |||||||
| 11.2万円 6,000円 | なし 22.4万円 | 1DK 34.84m2 | 築9年 | 大阪モノレール本線 山田駅(大阪) 徒歩10分 阪急電鉄千里線 北千里駅 徒歩17分 大阪モノレール彩都 万博記念公園駅(大阪) 徒歩21分 大阪府吹田市千里万博公園15-1 | 詳細を見る | ||
マンション プレジオ江坂Ⅱ(1LDK/4階) | |||||||
![]() | 12.7万円 1.1万円 | なし 12.7万円 | 1LDK 34.65m2 | 築7年 | 大阪メトロ御堂筋線 江坂駅 徒歩12分 おおさか東線 南吹田駅 徒歩15分 大阪府吹田市南吹田5丁目 | 詳細を見る | |
一戸建て 阪和線 津久野駅 徒歩2分 築23年(5LDK) | |||||||
![]() | 12.5万円 なし | 12.5万円 25万円 | 5LDK 93.14m2 | 築23年 | 阪和線 津久野駅 徒歩2分 阪和線 上野芝駅 徒歩15分 阪和線 鳳駅 徒歩24分 大阪府堺市西区津久野町2丁 | 詳細を見る | |
アパート ライトフレーバー千里丘(2LDK/1階) | |||||||
| 12.7万円 7,500円 | なし 30万円 | 2LDK 62.95m2 | 築14年 | 東海道本線 千里丘駅 徒歩9分 阪急電鉄京都線 摂津市駅 徒歩18分 大阪モノレール本線 宇野辺駅 徒歩20分 大阪府吹田市千里丘上7-16 | 詳細を見る | ||
マンション エクリアス浜寺(2LDK/1階) | |||||||
![]() | 11.3万円 1.1万円 | 2万円 11.3万円 | 2LDK 61m2 | 築1年 | 南海電鉄南海本線 浜寺公園駅 徒歩9分 南海電鉄南海本線 諏訪ノ森駅 徒歩15分 阪和線 東羽衣駅 徒歩18分 大阪府堺市西区浜寺昭和町2丁 | 詳細を見る | |
アパート 南海電鉄泉北線 深井駅 徒歩20分 築1年(2LDK/2階) | |||||||
![]() | 11.1万円 7,000円 | なし 16万円 | 2LDK 60.28m2 | 築1年 | 南海電鉄泉北線 深井駅 徒歩20分 阪和線 上野芝駅 徒歩51分 阪和線 津久野駅 徒歩64分 大阪府堺市中区土塔町 | 詳細を見る | |






