賃貸マンション
スプランディッド大阪NAMBA LINE旧スプランディッドXIイレの賃貸物件情報(3LDK/11階)
| 家賃 | 管理費等 | 敷金 | 礼金 | 間取り | 専有面積 |
|---|---|---|---|---|---|
| 19.4万円 | 1万円 | なし | なし | 3LDK | 59.48m2 |
入居決定でお祝い金最大100,000円
- 保証金
- -
- 償却・敷引
- -
- 築年数
- 築1年
- 所在階
- 11階
- 向き
- 南
Point
●システムキッチン●オートロック●防犯カメラ●エレベーター●バルコニー●エアコン
提供:いい部屋ネット阪急梅田店(株)ラックハウジング(SUUMO経由)

詳細情報 スプランディッド大阪NAMBA LINE旧スプランディッドXIイレ
物件紹介
スプランディッド大阪NAMBA LINE旧スプランディッドXIイレは阪神電鉄阪神なんば線福駅から徒歩7分にあり、駅近で通勤通学に便利なマンションです。
このお部屋は2階以上に位置しているので、通行人や周囲の住人からの視線が気になりにくく、防犯面でも安心。建物のエントランスはオートロックがついており、インターホンにはTVモニタもついているため、相手の顔を確認してから来客対応することができます。
おしゃれなデザイナーズ物件!人気の南向き・フローリングのお部屋。室内にはウォークインクローゼットがありますので、たくさんの荷物も効率的に収納ができます。キッチンはシステムキッチン仕様になっていますので、お料理好きの方にもぴったり。バス・トイレは別なので、のんびりお風呂タイムも楽しめるでしょう。また、雨の日でも浴室乾燥機を使えば、お洗濯も問題ありません。
通信設備面では、インターネットが無料で使えるので、月々の出費を抑えられるのも魅力です。また、CATVにも対応しているので、おうち時間も充実するでしょう(別途工事、CATVの契約料等が必要な場合あり)。
建物にはエレベーターがついているので、重い荷物があっても安心。共用部には宅配ボックスが設定されているので、不在の時にも荷物を受け取ることができます。また、ペット飼育の相談ができますので、あなたの大切な家族の一員も快適に暮らせるか、ぜひ確認してみてください。
このお部屋は2階以上に位置しているので、通行人や周囲の住人からの視線が気になりにくく、防犯面でも安心。建物のエントランスはオートロックがついており、インターホンにはTVモニタもついているため、相手の顔を確認してから来客対応することができます。
おしゃれなデザイナーズ物件!人気の南向き・フローリングのお部屋。室内にはウォークインクローゼットがありますので、たくさんの荷物も効率的に収納ができます。キッチンはシステムキッチン仕様になっていますので、お料理好きの方にもぴったり。バス・トイレは別なので、のんびりお風呂タイムも楽しめるでしょう。また、雨の日でも浴室乾燥機を使えば、お洗濯も問題ありません。
通信設備面では、インターネットが無料で使えるので、月々の出費を抑えられるのも魅力です。また、CATVにも対応しているので、おうち時間も充実するでしょう(別途工事、CATVの契約料等が必要な場合あり)。
建物にはエレベーターがついているので、重い荷物があっても安心。共用部には宅配ボックスが設定されているので、不在の時にも荷物を受け取ることができます。また、ペット飼育の相談ができますので、あなたの大切な家族の一員も快適に暮らせるか、ぜひ確認してみてください。
お金・契約の情報
※「-」と表示されているものは、実際は料金が発生するものもございます。詳細はお問い合わせください。
| 家賃 | 19.4万円 | 管理費・共益費 | 1万円 |
|---|---|---|---|
| 敷金 | なし | 礼金 | なし |
| 入居決定でお祝い金最大100,000円 | |||
| 保証金 | - | 償却・敷引 | - |
| 住宅保険料 | - | 更新料 | - |
| 保証会社利用 | 必須 | 保証会社名 | - |
| 保証会社費用 | - | 保証会社備考 | 保証会社利用必 管理会社指定になります。 |
| 契約形態 | - | 契約期間 | - |
| 入居・引渡期間 | 即時 | 現況 | - |
| 入居可能条件 | ペット相談 | ||
| 契約備考 | ●システムキッチン●オートロック●防犯カメラ●エレベーター●バルコニー●エアコン 合計2.75万円(内訳:アクト安心ライフ24契約時1.65万円鍵交換代1.1万円) 3LDK 二人入居可/ペット相談 普通借家2年 損保【2万円2年】 バストイレ別、バルコニー、エアコン、クロゼット、浴室乾燥機、オートロック、シューズボックス、システムキッチン、南向き、温水洗浄便座、エレベーター、駐輪場、宅配ボックス、礼金不要、敷金不要、防犯カメラ、ペット相談、ウォークインクロゼット、二人入居相談、バイク置場、築2年以内、2駅利用可、3駅以上利用可、駅徒歩10分以内、LDK12畳以上、年内入居可 | ||
部屋の情報
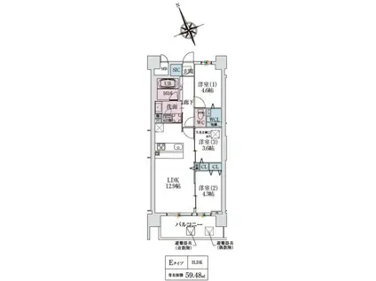
| 間取り | 3LDK | 専有面積 | 59.48m2 |
|---|---|---|---|
| 所在階 / 向き | 11階 / 南 | バルコニー面積 | - |
| 水道 / ガス | - | ||
| 設備 | バス・トイレ別、2階以上、オートロック、宅配ボックス、浴室乾燥機、ウォークインクローゼット、システムキッチン、エアコン、エレベーター、温水洗浄便座、南向き、バルコニー | ||
| 当社物件ID | 160446952 | ||
建物の情報
| 建物名 | スプランディッド大阪NAMBA LINE旧スプランディッドXIイレ | ||
|---|---|---|---|
| 所在地 | 大阪府大阪市西淀川区福町 | ||
| 交通 | 阪神電鉄阪神なんば線 福駅 徒歩7分 阪神電鉄阪神なんば線 伝法駅 徒歩18分 阪神電鉄阪神なんば線 出来島駅 徒歩18分 | ||
| 階数 | 14階建 | 総戸数 | 78戸 |
| 築年月 | 2026年03月 / 築1年 | エレベーター | あり |
| 駐車場 | なし | バイク置き場 | あり |
| 駐輪場 | あり | 管理人/管理会社 | - |
| 周辺環境 | その他 ユニクロ 西淀川店(その他)まで413m その他 西淀川福郵便局(郵便局)まで349m その他 西淀川警察署福大野交番(警察署・交番)まで364m その他 ファミリーマート 福町二丁目店(コンビニ)まで452m その他 ココカラファインプラスイズミヤ 福町店(ドラッグストア)まで453m | ||
| 建物種別 | マンション | 建物構造 | RC(鉄筋コンクリート) |
この部屋の取扱い不動産会社
| 会社名 | いい部屋ネット阪急梅田店(株)ラックハウジング(SUUMO経由) | ||
|---|---|---|---|
| 所在地 | 大阪府大阪市北区角田町 1-10 くろふねビル3階 | 交通 | - |
| 営業時間 | 9:30~19:30 | 定休日 | 毎週水曜日・木曜日 |
| 免許番号 | 大阪府知事63464 | 取引態様 | 仲介 |
| 不動産会社管理番号 | 100489714086 | 当社管理番号 | 89 |
| 取扱い物件情報 | 物件詳細へ | ||
※各種情報と現状に差異がある場合は、現状優先となります。問い合わせをすることで、より詳しい条件、情報を確認する事ができます。
提供:いい部屋ネット阪急梅田店(株)ラックハウジング(SUUMO経由)
この物件が気になったら掲載期限まであと11日
スプランディッド大阪NAMBA LINE旧スプランディッドXIイレの空き部屋一覧
全部で73の空き部屋があります。
スプランディッド大阪NAMBA LINE旧スプランディッドXIイレに条件(家賃・エリア)が近い物件一覧
| 写真 | 家賃 管理費等 | 敷金 礼金 | 間取り 専有面積 | 築年数 | 最寄り駅 所在地 | キープ | 詳細 |
|---|---|---|---|---|---|---|---|
マンション AI RITORNO(2LDK/3階) | |||||||
![]() | 14.5万円 1万円 | なし 35万円 | 2LDK 53.69m2 | 築3年 | おおさか東線 南吹田駅 徒歩11分 阪急電鉄千里線 吹田駅(阪急) 徒歩11分 阪急電鉄千里線 下新庄駅 徒歩27分 大阪府吹田市穂波町20-37 | 詳細を見る | |
マンション エヴァン千里山(2LDK/2階) | |||||||
| 12.75万円 7,500円 | なし 30万円 | 2LDK 61.28m2 | 築20年 | 阪急電鉄千里線 千里山駅 徒歩8分 阪急電鉄千里線 関大前駅 徒歩18分 阪急電鉄千里線 南千里駅 徒歩26分 大阪府吹田市千里山松が丘6-30 | 詳細を見る | ||
アパート ウイングヒルズ(1LDK/1階) | |||||||
| 12.7万円 7,500円 | なし 30万円 | 1LDK 53.28m2 | 築13年 | 東海道本線 岸辺駅 徒歩4分 阪急電鉄京都線 正雀駅 徒歩14分 阪急電鉄京都線 摂津市駅 徒歩26分 大阪府吹田市岸部中3丁目13-5 | 詳細を見る | ||
マンション ディームス江坂(1LDK/8階) | |||||||
| 12.9万円 1万円 | なし なし | 1LDK 37.2m2 | 築9年 | 北大阪急行南北線 江坂駅 徒歩9分 阪急電鉄宝塚線 庄内駅(大阪) 徒歩27分 阪急電鉄千里線 豊津駅(大阪) 徒歩28分 大阪府吹田市江の木町10-3 | 詳細を見る | ||
マンション アーバンパーク緑地公園(3LDK/1階) | |||||||
| 14.9万円 8,000円 | 14.9万円 14.9万円 | 3LDK 78.18m2 | 築38年 | 北大阪急行南北線 緑地公園駅 徒歩8分 阪急電鉄千里線 千里山駅 徒歩15分 阪急電鉄千里線 関大前駅 徒歩23分 大阪府吹田市千里山西4丁目37-7 | 詳細を見る | ||
アパート グランドール垂水(2LDK/3階) | |||||||
| 14.7万円 7,000円 | なし 30万円 | 2LDK 54.08m2 | 築2年 | 北大阪急行南北線 江坂駅 徒歩13分 阪急電鉄千里線 吹田駅(阪急) 徒歩20分 東海道本線 吹田駅(JR) 徒歩27分 大阪府吹田市垂水町3丁目3-16 | 詳細を見る | ||
マンション パークホームズLALA門真(3LDK/3階) | |||||||
![]() | 17万円 3万円 | 19万円 38万円 | 3LDK 70.06m2 | 築3年 | 大阪モノレール本線 門真市駅 徒歩14分 京阪電気鉄道京阪線 門真市駅 徒歩15分 京阪電気鉄道京阪線 古川橋駅 徒歩18分 大阪府門真市松生町 | 詳細を見る | |
一戸建て 京阪電気鉄道京阪線 大和田駅(大阪) 徒歩9分 築3年(3LDK) | |||||||
![]() | 17万円 なし | なし 34万円 | 3LDK 81.41m2 | 築3年 | 京阪電気鉄道京阪線 大和田駅(大阪) 徒歩9分 京阪電気鉄道京阪線 萱島駅 徒歩15分 京阪電気鉄道京阪線 古川橋駅 徒歩17分 大阪府門真市大池町 | 詳細を見る | |




