賃貸マンション
サナルダイヒルズ桜坂の賃貸物件情報(1LDK/1階)
| 家賃 | 管理費等 | 敷金 | 礼金 | 間取り | 専有面積 |
|---|---|---|---|---|---|
| 6.7万円 | 2,000円 | 13.4万円 | 6.7万円 | 1LDK | 44.98m2 |
入居決定でお祝い金最大100,000円
- 保証金
- -
- 償却・敷引
- -
- 築年数
- 築15年
- 所在階
- 1階
- 向き
- 南東
- 交通
- 所在地
- 静岡県浜松市中央区佐鳴台
サナルダイヒルズ桜坂
[地図を表示]
Point
高台の閑静な住宅地にありスーパーやコンビニ等の施設も徒歩圏内にあります。
提供:エステート林工(株)(SUUMO経由)

詳細情報 サナルダイヒルズ桜坂
物件紹介
建物のエントランスはオートロックがついており、インターホンにはTVモニタもついているため、相手の顔を確認してから来客対応することができます。
人気の南向きのお部屋。浴室乾燥機付きで、雨の日でもお洗濯は問題ありません。
通信設備面では、インターネットが無料で使えるので、月々の出費を抑えられるのも魅力です。また、BSアンテナもありますので、おうち時間も充実するでしょう(別途工事、BSの契約料等が必要な場合あり)。
共用部には宅配ボックスが設定されているので、不在の時にも荷物を受け取ることができます。
人気の南向きのお部屋。浴室乾燥機付きで、雨の日でもお洗濯は問題ありません。
通信設備面では、インターネットが無料で使えるので、月々の出費を抑えられるのも魅力です。また、BSアンテナもありますので、おうち時間も充実するでしょう(別途工事、BSの契約料等が必要な場合あり)。
共用部には宅配ボックスが設定されているので、不在の時にも荷物を受け取ることができます。
お金・契約の情報
※「-」と表示されているものは、実際は料金が発生するものもございます。詳細はお問い合わせください。
| 家賃 | 6.7万円 | 管理費・共益費 | 2,000円 |
|---|---|---|---|
| 敷金 | 13.4万円 | 礼金 | 6.7万円 |
| 入居決定でお祝い金最大100,000円 | |||
| 保証金 | - | 償却・敷引 | - |
| 住宅保険料 | - | 更新料 | - |
| 保証会社利用 | 必須 | 保証会社名 | 日本セーフティー |
| 保証会社費用 | - | 保証会社備考 | 日本セーフティー利用必 契約時賃料総額の50%。以後毎月800円。 |
| 契約形態 | - | 契約期間 | - |
| 入居・引渡期間 | 相談 | 現況 | - |
| 契約備考 | 巡回管理/駐車場2台付きです。 24時間サポート990円/月 1LDK 普通借家1年 損保【1.8万円2年】 バルコニー、エアコン、クロゼット、シャワー付洗面台、TVインターホン、浴室乾燥機、オートロック、室内洗濯置、追焚機能浴室、温水洗浄便座、洗面所独立、駐輪場、宅配ボックス、外壁タイル張り、閑静な住宅地、駐車2台可、仲介手数料不要、ディンプルキー、ネット使用料不要、駐車場2台無料、複層ガラス、高台に立地、耐火構造、耐震構造、1階高床式、バス停徒歩3分以内、風除室、敷地内ごみ置き場、駐車並列2台、平面駐車場、当社管理物件、LDK12畳以上、洗面所にドア、BS | ||
部屋の情報
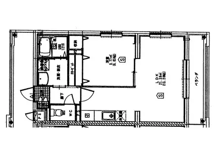
| 間取り | 1LDK | 専有面積 | 44.98m2 |
|---|---|---|---|
| 所在階 / 向き | 1階 / 南東 | バルコニー面積 | - |
| 水道 / ガス | - | ||
| 設備 | オートロック、テレビドアホン、宅配ボックス、浴室乾燥機、追い焚き、インターネット対応、エアコン、温水洗浄便座、南向き、バルコニー、洗髪洗面化粧台、BSアンテナ、インターネット使用料無料、洗濯機:室内 | ||
| 当社物件ID | 160435431 | ||
建物の情報
| 建物名 | サナルダイヒルズ桜坂 | ||
|---|---|---|---|
| 所在地 | 静岡県浜松市中央区佐鳴台 | ||
| 交通 | - | ||
| 階数 | 3階建 | 総戸数 | 9戸 |
| 築年月 | 2012年02月 / 築15年 | エレベーター | - |
| 駐車場 | 空有 駐2台可 | バイク置き場 | - |
| 駐輪場 | あり | 管理人/管理会社 | - |
| 周辺環境 | その他 TSUTAYA佐鳴台店(レンタルビデオ)まで671m その他 イオン浜松西ショッピングセンター(ショッピングセンター)まで1286m その他 クリエイトエス・ディー浜松入野店(ドラッグストア)まで644m その他 セブンイレブン佐鳴台グリーンストリート店(コンビニ)まで428m その他 遠鉄ストアフードワン佐鳴台店(スーパー)まで723m その他 静岡銀行佐鳴台支店(銀行)まで478m | ||
| 建物種別 | マンション | 建物構造 | RC(鉄筋コンクリート) |
この部屋の取扱い不動産会社
| 会社名 | エステート林工(株)(SUUMO経由) | ||
|---|---|---|---|
| 所在地 | 静岡県浜松市中央区渡瀬町 1000-3 | 交通 | - |
| 営業時間 | 9:00~18:00 | 定休日 | 日 |
| 免許番号 | 静岡県知事11981 | 取引態様 | 貸主 |
| 不動産会社管理番号 | 100489351996 | 当社管理番号 | 89 |
| 所属団体 | (公社)静岡県宅地建物取引業協会会員 | ||
| 公正取引協議会 | 東海不動産公正取引協議会加盟 | ||
| 取扱い物件情報 | 物件詳細へ | ||
※各種情報と現状に差異がある場合は、現状優先となります。問い合わせをすることで、より詳しい条件、情報を確認する事ができます。
提供:エステート林工(株)(SUUMO経由)
この物件が気になったら掲載期限まであと10日
サナルダイヒルズ桜坂に条件(家賃・エリア)が近い物件一覧
| 写真 | 家賃 管理費等 | 敷金 礼金 | 間取り 専有面積 | 築年数 | 最寄り駅 所在地 | キープ | 詳細 |
|---|---|---|---|---|---|---|---|
アパート ディアコート富塚(1LDK/1階) | |||||||
![]() | 5万円 なし | なし なし | 1LDK 40.5m2 | 築30年 | 静岡県浜松市中央区富塚町 | 詳細を見る | |
アパート ガーデンハイツ四ツ池A(3LDK/2階) | |||||||
![]() | 6.4万円 3,000円 | なし なし | 3LDK 62.99m2 | 築28年 | 遠州鉄道 曳馬駅 徒歩19分 静岡県浜松市中央区幸3丁目 | 詳細を見る | |
マンション メゾンベルシャンブル(3LDK/3階) | |||||||
![]() | 7.5万円 なし | 15万円 なし | 3LDK 106.02m2 | 築42年 | 静岡県浜松市中央区和合北1丁目 | 詳細を見る | |
アパート サンコーポ松葉(2DK/1階) | |||||||
![]() | 4.3万円 3,000円 | なし なし | 2DK 42.9m2 | 築34年 | 遠州鉄道 上島駅 徒歩20分 静岡県浜松市中央区萩丘3丁目 | 詳細を見る | |
マンション キャトルセゾン(2LDK/2階) | |||||||
![]() | 6.6万円 3,000円 | なし なし | 2LDK 55.9m2 | 築27年 | 遠州鉄道 助信駅 徒歩10分 静岡県浜松市中央区茄子町 | 詳細を見る | |
マンション ヒューゲル城北(ワンルーム/5階) | |||||||
![]() | 4.1万円 なし | なし なし | ワンルーム 27m2 | 築33年 | 静岡県浜松市中央区城北3丁目 | 詳細を見る | |







