賃貸マンション
ディアレイシャス大須観音IIIの賃貸物件情報(1K/4階)
| 家賃 | 管理費等 | 敷金 | 礼金 | 間取り | 専有面積 |
|---|---|---|---|---|---|
| 6.1万円 | 8,000円 | なし | なし | 1K | 22.48m2 |
入居決定でお祝い金最大100,000円
- 保証金
- -
- 償却・敷引
- -
- 築年数
- 築3年
- 所在階
- 4階
- 向き
- 北
Point
近くにはローソン中区大須二丁目店(徒歩4分)がありちょっとした買い物に便利です。セキュリティ面は、オートロック・TVインターホンなどを備え付けているので安心して暮らせます。これからの新生活で失敗でき
提供:(有)IーNEXT(SUUMO経由)

詳細情報 ディアレイシャス大須観音III
物件紹介
ディアレイシャス大須観音IIIは地下鉄鶴舞線大須観音駅から徒歩3分にあり、駅近で通勤通学に便利なマンションです。
このお部屋は2階以上に位置しているので、通行人や周囲の住人からの視線が気になりにくく、防犯面でも安心。建物のエントランスはオートロックがついており、インターホンにはTVモニタもついているため、相手の顔を確認してから来客対応することができます。
フローリングのお部屋なのでお掃除もラクラク。キッチンはシステムキッチン仕様になっていますので、お料理好きの方にもぴったり。バス・トイレは別なので、のんびりお風呂タイムも楽しめるでしょう。また、雨の日でも浴室乾燥機を使えば、お洗濯も問題ありません。
通信設備面では、インターネット接続が可能です。また、BSアンテナ・CSアンテナもありますので、おうち時間も充実するでしょう(別途工事、契約料が必要な場合あり)。
建物にはエレベーターがついているので、重い荷物があっても安心。共用部には宅配ボックスが設定されているので、不在の時にも荷物を受け取ることができます。
このお部屋は2階以上に位置しているので、通行人や周囲の住人からの視線が気になりにくく、防犯面でも安心。建物のエントランスはオートロックがついており、インターホンにはTVモニタもついているため、相手の顔を確認してから来客対応することができます。
フローリングのお部屋なのでお掃除もラクラク。キッチンはシステムキッチン仕様になっていますので、お料理好きの方にもぴったり。バス・トイレは別なので、のんびりお風呂タイムも楽しめるでしょう。また、雨の日でも浴室乾燥機を使えば、お洗濯も問題ありません。
通信設備面では、インターネット接続が可能です。また、BSアンテナ・CSアンテナもありますので、おうち時間も充実するでしょう(別途工事、契約料が必要な場合あり)。
建物にはエレベーターがついているので、重い荷物があっても安心。共用部には宅配ボックスが設定されているので、不在の時にも荷物を受け取ることができます。
お金・契約の情報
※「-」と表示されているものは、実際は料金が発生するものもございます。詳細はお問い合わせください。
| 家賃 | 6.1万円 | 管理費・共益費 | 8,000円 |
|---|---|---|---|
| 敷金 | なし | 礼金 | なし |
| 入居決定でお祝い金最大100,000円 | |||
| 保証金 | - | 償却・敷引 | - |
| 住宅保険料 | - | 更新料 | - |
| 保証会社利用 | 必須 | 保証会社名 | - |
| 保証会社費用 | - | 保証会社備考 | 保証会社利用必 エポスROOMiD(初回50%、月次1%) GTN(初回100%、月次2%) ルームバンク(初回50%、月次1%) セーフティー(初回50%、年次10 000円) |
| 契約形態 | - | 契約期間 | - |
| 入居・引渡期間 | 即時 | 現況 | - |
| 契約備考 | 合計3.85万円(内訳:鍵交換代3.85万円) 更新料 新賃料1.00ヶ月分 室内清掃費用 44000円 くらしーど24 月額1100円 1K 普通借家2年 損保【1.8万円2年】 バストイレ別、バルコニー、エアコン、ガスコンロ対応、フローリング、TVインターホン、浴室乾燥機、オートロック、室内洗濯置、シューズボックス、システムキッチン、温水洗浄便座、エレベーター、2口コンロ、駐輪場、宅配ボックス、礼金不要、敷金不要、防犯カメラ、照明付、分譲賃貸、保証人不要、CS、ネット専用回線、保証金不要、24時間換気システム、耐火構造、3駅以上利用可、3沿線以上利用可、駅徒歩5分以内、敷地内ごみ置き場、都市ガス、BS、敷金・礼金不要、保証会社利用可 | ||
部屋の情報
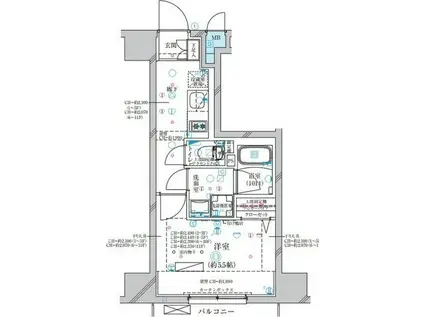
| 間取り | 1K | 専有面積 | 22.48m2 |
|---|---|---|---|
| 所在階 / 向き | 4階 / 北 | バルコニー面積 | - |
| 水道 / ガス | - | ||
| 設備 | バス・トイレ別、2階以上、オートロック、テレビドアホン、宅配ボックス、浴室乾燥機、インターネット対応、システムキッチン、エアコン、エレベーター、温水洗浄便座、バルコニー、フローリング、2口コンロ、コンロ:ガス、CSアンテナ、BSアンテナ、洗濯機:室内 | ||
| 当社物件ID | 145115736 | ||
建物の情報
| 建物名 | ディアレイシャス大須観音III | ||
|---|---|---|---|
| 所在地 | 愛知県名古屋市中区大須 | ||
| 交通 | 地下鉄鶴舞線 大須観音駅 徒歩3分 地下鉄名城線 上前津駅 徒歩11分 地下鉄東山線 伏見駅(愛知) 徒歩13分 | ||
| 階数 | 11階建 | 総戸数 | 52戸 |
| 築年月 | 2023年10月 / 築3年 | エレベーター | あり |
| 駐車場 | 空有 15000円 | バイク置き場 | - |
| 駐輪場 | あり | 管理人/管理会社 | - |
| 周辺環境 | その他 サノヤ(スーパー)まで770m その他 ファミリーマート 伏見通大須店(コンビニ)まで279m その他 ローソン 中区大須二丁目店(コンビニ)まで264m その他 V・drug 大須店(ドラッグストア)まで313m その他 ドン・キホーテ 大須店(その他)まで778m その他 名古屋中郵便局(郵便局)まで398m | ||
| 建物種別 | マンション | 建物構造 | RC(鉄筋コンクリート) |
この部屋の取扱い不動産会社
| 会社名 | (有)IーNEXT(SUUMO経由) | ||
|---|---|---|---|
| 所在地 | 愛知県名古屋市中区錦2-12-32 | 交通 | - |
| 営業時間 | 10:00~19:00 | 定休日 | 水曜日 |
| 免許番号 | 愛知県知事25497 | 取引態様 | 仲介 |
| 不動産会社管理番号 | 100482983290 | 当社管理番号 | 89 |
| 所属団体 | (公社)愛知県宅地建物取引業協会会員 | ||
| 公正取引協議会 | 東海不動産公正取引協議会加盟 | ||
| 取扱い物件情報 | 物件詳細へ | ||
※各種情報と現状に差異がある場合は、現状優先となります。問い合わせをすることで、より詳しい条件、情報を確認する事ができます。
提供:(有)IーNEXT(SUUMO経由)
この物件が気になったら掲載期限まであと10日
ディアレイシャス大須観音IIIに条件(家賃・エリア)が近い物件一覧
| 写真 | 家賃 管理費等 | 敷金 礼金 | 間取り 専有面積 | 築年数 | 最寄り駅 所在地 | キープ | 詳細 |
|---|---|---|---|---|---|---|---|
マンション レジデンス名古屋千代田(1K/8階) | |||||||
![]() | 5.8万円 7,000円 | なし なし | 1K 24.38m2 | 築20年 | 名古屋市名城線 矢場町駅 徒歩6分 愛知県名古屋市中区千代田1丁目 | 詳細を見る | |
マンション GRANVIA丸の内(1K/4階) | |||||||
![]() | 8.3万円 1.1万円 | なし なし | 1K 27.9m2 | 築1年 | 名古屋市鶴舞線 丸の内駅(愛知) 徒歩3分 名古屋市桜通線 国際センター駅(愛知) 徒歩12分 愛知県名古屋市中区丸の内1丁目 | 詳細を見る | |
マンション プレサンス上前津フィット(1K/12階) | |||||||
![]() | 6.529万円 9,710円 | なし 7.5万円 | 1K 25.67m2 | 築8年 | 名古屋市名城線 上前津駅 徒歩5分 名古屋市鶴舞線 上前津駅 徒歩6分 名古屋市名城線 東別院駅 徒歩11分 愛知県名古屋市中区上前津2丁目 | 詳細を見る | |
マンション S-FORT大須観音(1K/12階) | |||||||
![]() | 5.95万円 1万円 | なし なし | 1K 22.96m2 | 築9年 | 名古屋市鶴舞線 大須観音駅 徒歩6分 名古屋市名城線 上前津駅 徒歩15分 名鉄名古屋本線 山王駅(愛知) 徒歩17分 愛知県名古屋市中区松原2丁目 | 詳細を見る | |
マンション アドバンス名古屋ブランシュ(1K/3階) | |||||||
![]() | 5.9万円 5,400円 | なし 11.8万円 | 1K 23.37m2 | 築2年 | 中央本線 鶴舞駅 徒歩8分 名古屋市鶴舞線 鶴舞駅 徒歩10分 名古屋市名城線 矢場町駅 徒歩15分 愛知県名古屋市中区新栄1丁目 | 詳細を見る | |
マンション プレサンス大須観音フィエスタ(1K/4階) | |||||||
![]() | 5.792万円 7,080円 | なし 6.5万円 | 1K 21.46m2 | 築2年 | 名古屋市鶴舞線 大須観音駅 徒歩4分 愛知県名古屋市中区大須1丁目 | 詳細を見る | |
マンション エステムコート名古屋上前津(1DK/8階) | |||||||
![]() | 7.85万円 5,340円 | なし なし | 1DK 28.01m2 | 築1年 | 名古屋市名城線 東別院駅 徒歩5分 名古屋市鶴舞線 上前津駅 徒歩6分 名古屋市名城線 上前津駅 徒歩9分 愛知県名古屋市中区富士見町 | 詳細を見る | |
マンション メイクスアート名駅南Ⅳ(1LDK/3階) | |||||||
![]() | 7.9万円 8,000円 | なし なし | 1LDK 29.91m2 | 築1年 | 名古屋臨海高速鉄道 ささしまライブ駅 徒歩12分 名古屋市鶴舞線 大須観音駅 徒歩13分 名鉄名古屋本線 山王駅(愛知) 徒歩13分 愛知県名古屋市中村区名駅南3丁目 | 詳細を見る | |


/105x80-f1-q70-wp1)




/105x80-f1-q70-wp1)
