賃貸マンション
L-FLAT 白山の賃貸物件情報(1K/3階)
| 家賃 | 管理費等 | 敷金 | 礼金 | 間取り | 専有面積 |
|---|---|---|---|---|---|
| 10万円 | 1万円 | なし | 10万円 | 1K | 25.88m2 |
入居決定でお祝い金最大100,000円
- 保証金
- -
- 償却・敷引
- -
- 築年数
- 築20年
- 所在階
- 3階
- 向き
- 南西
Point
まずはお問い合わせ!
不動産会社は街のプロ、あなたに合った物件がきっと見つかります。
提供:(株)アドバンスリビング(SUUMO経由)

詳細情報 L-FLAT 白山
物件紹介
L-FLAT 白山は都営三田線白山駅から徒歩7分にあり、駅近で通勤通学に便利なマンションです。
このお部屋は2階以上に位置しているので、通行人や周囲の住人からの視線が気になりにくく、防犯面でも安心。建物のエントランスはオートロックがついており、インターホンにはTVモニタもついているため、相手の顔を確認してから来客対応することができます。
人気の南向きのお部屋。また、フローリングなのでお掃除もラクラク。キッチンはシステムキッチン仕様になっていますので、お料理好きの方にもぴったり。バス・トイレは別なので、のんびりお風呂タイムも楽しめるでしょう。また、雨の日でも浴室乾燥機を使えば、お洗濯も問題ありません。
通信設備面では、インターネット接続が可能です。また、BSアンテナ・CSアンテナがありCATVにも対応しているので、おうち時間も充実するでしょう(別途工事、契約料が必要な場合あり)。
建物にはエレベーターがついているので、重い荷物があっても安心。共用部には宅配ボックスが設定されているので、不在の時にも荷物を受け取ることができます。
このお部屋は2階以上に位置しているので、通行人や周囲の住人からの視線が気になりにくく、防犯面でも安心。建物のエントランスはオートロックがついており、インターホンにはTVモニタもついているため、相手の顔を確認してから来客対応することができます。
人気の南向きのお部屋。また、フローリングなのでお掃除もラクラク。キッチンはシステムキッチン仕様になっていますので、お料理好きの方にもぴったり。バス・トイレは別なので、のんびりお風呂タイムも楽しめるでしょう。また、雨の日でも浴室乾燥機を使えば、お洗濯も問題ありません。
通信設備面では、インターネット接続が可能です。また、BSアンテナ・CSアンテナがありCATVにも対応しているので、おうち時間も充実するでしょう(別途工事、契約料が必要な場合あり)。
建物にはエレベーターがついているので、重い荷物があっても安心。共用部には宅配ボックスが設定されているので、不在の時にも荷物を受け取ることができます。
お金・契約の情報
※「-」と表示されているものは、実際は料金が発生するものもございます。詳細はお問い合わせください。
| 家賃 | 10万円 | 管理費・共益費 | 1万円 |
|---|---|---|---|
| 敷金 | なし | 礼金 | 10万円 |
| 入居決定でお祝い金最大100,000円 | |||
| 保証金 | - | 償却・敷引 | - |
| 住宅保険料 | - | 更新料 | - |
| 保証会社利用 | 必須 | 保証会社名 | - |
| 保証会社費用 | - | 保証会社備考 | 保証会社利用必 初回保証料:月額賃料等の50%、月次保証料:月額賃料等の1%、 |
| 契約形態 | - | 契約期間 | - |
| 入居・引渡期間 | - | 現況 | - |
| 契約備考 | 合計5.61万円(内訳:契約事務手数料1.1万円消臭除菌代0.88万円安心サポート0.88万円鍵交換代2.75万円) 1K 普通借家2年 損保【要】 バストイレ別、バルコニー、エアコン、ガスコンロ対応、クロゼット、フローリング、TVインターホン、浴室乾燥機、オートロック、室内洗濯置、シューズボックス、システムキッチン、エレベーター、洗面所独立、洗面化粧台、2口コンロ、駐輪場、宅配ボックス、CATV、敷金不要、防犯カメラ、2沿線利用可、CS、24時間換気システム、3駅以上利用可、駅徒歩10分以内、敷地内ごみ置き場、南西向き、都市ガス、BS、IT重説対応物件 入居日:'26年2月上旬 | ||
部屋の情報
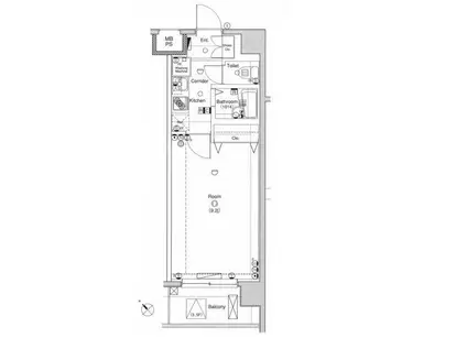
| 間取り | 1K | 専有面積 | 25.88m2 |
|---|---|---|---|
| 所在階 / 向き | 3階 / 南西 | バルコニー面積 | - |
| 水道 / ガス | - | ||
| 設備 | バス・トイレ別、2階以上、オートロック、テレビドアホン、宅配ボックス、浴室乾燥機、システムキッチン、エアコン、エレベーター、南向き、バルコニー、フローリング、洗髪洗面化粧台、2口コンロ、コンロ:ガス、CATV、CSアンテナ、BSアンテナ、洗濯機:室内 | ||
| 当社物件ID | 16392496 | ||
建物の情報
| 建物名 | L-FLAT 白山 | ||
|---|---|---|---|
| 所在地 | 東京都文京区白山 | ||
| 交通 | 都営三田線 白山駅(東京) 徒歩7分 都営三田線 千石駅 徒歩8分 東京メトロ南北線 本駒込駅 徒歩13分 | ||
| 階数 | 7階建 | 総戸数 | 28戸 |
| 築年月 | 2006年10月 / 築20年 | エレベーター | あり |
| 駐車場 | 近隣 200m32000円 | バイク置き場 | - |
| 駐輪場 | あり | 管理人/管理会社 | - |
| 周辺環境 | その他 文京区立千駄木幼稚園(幼稚園・保育園)まで1555m その他 台東区立台桜幼稚園(幼稚園・保育園)まで1968m その他 光明院幼稚園(幼稚園・保育園)まで2287m その他 クオリスキッズぷらす本駒込(幼稚園・保育園)まで1502m その他 こどもヶ丘保育園第二本駒込園(幼稚園・保育園)まで1573m その他 根津保育園(幼稚園・保育園)まで1856m | ||
| 建物種別 | マンション | 建物構造 | RC(鉄筋コンクリート) |
この部屋の取扱い不動産会社
| 会社名 | GRANT不動産 東京支店(株)Grant Home(SUUMO経由) | ||
|---|---|---|---|
| 所在地 | 東京都荒川区東日暮里5-51-11 静屋ビル10階 | 交通 | - |
| 営業時間 | 10:00~19:00 | 定休日 | 水曜日・第一第三火曜日 |
| 免許番号 | 国土交通大臣10606 | 取引態様 | 仲介 |
| 不動産会社管理番号 | 100476766328 | 当社管理番号 | 89 |
| 所属団体 | (公社)東京都宅地建物取引業協会会員 | ||
| 公正取引協議会 | (公社)首都圏不動産公正取引協議会加盟 | ||
| 取扱い物件情報 | 物件詳細へ | ||
※各種情報と現状に差異がある場合は、現状優先となります。問い合わせをすることで、より詳しい条件、情報を確認する事ができます。
提供:GRANT不動産 東京支店(株)Grant Home(SUUMO経由)
この物件が気になったら掲載期限まであと10日
L-FLAT 白山に条件(家賃・エリア)が近い物件一覧
| 写真 | 家賃 管理費等 | 敷金 礼金 | 間取り 専有面積 | 築年数 | 最寄り駅 所在地 | キープ | 詳細 |
|---|---|---|---|---|---|---|---|
マンション プライマル浅草言問通(1K/12階) | |||||||
![]() | 12.3万円 1万円 | 12.3万円 12.3万円 | 1K 25.48m2 | 築6年 | つくばエクスプレス 浅草駅(つくばEXP) 徒歩4分 東京地下鉄銀座線 田原町駅(東京) 徒歩12分 東京都浅草線 浅草駅(東武・都営・メトロ) 徒歩13分 東京都台東区浅草3丁目 | 詳細を見る | |
マンション レジディア神田岩本町(ワンルーム/4階) | |||||||
![]() | 16.2万円 2万円 | 16.2万円 16.2万円 | ワンルーム 30.97m2 | 築22年 | 東京都新宿線 岩本町駅 徒歩3分 東京地下鉄日比谷線 秋葉原駅 徒歩5分 中央本線 神田駅(東京) 徒歩7分 東京都千代田区岩本町2丁目 | 詳細を見る | |
マンション 鈴木ビル(1K/1階) | |||||||
![]() | 7万円 3,000円 | 7万円 7万円 | 1K 26.17m2 | 築45年 | 東京地下鉄千代田線 町屋駅 徒歩8分 東京都荒川線 町屋駅前駅 徒歩8分 京成電鉄本線 町屋駅 徒歩10分 東京都荒川区町屋三丁目 | 詳細を見る | |
マンション BRILLIA IST 上野御徒町(1K/10階) | |||||||
![]() | 12.2万円 1万円 | 12.2万円 12.2万円 | 1K 26.06m2 | 築9年 | 東京都大江戸線 新御徒町駅 徒歩5分 つくばエクスプレス 新御徒町駅 徒歩5分 東京地下鉄日比谷線 仲御徒町駅 徒歩7分 東京都台東区台東3丁目 | 詳細を見る | |
マンション レジディア神田東(ワンルーム/3階) | |||||||
![]() | 15.5万円 2万円 | なし なし | ワンルーム 30.13m2 | 築23年 | 東京地下鉄日比谷線 小伝馬町駅 徒歩5分 山手線 神田駅(東京) 徒歩6分 東京都新宿線 岩本町駅 徒歩6分 東京都千代田区岩本町1丁目 | 詳細を見る | |
マンション アーバンパーク浅草2(1K/7階) | |||||||
![]() | 11.5万円 1万円 | なし なし | 1K 25.62m2 | 築3年 | 東武伊勢崎・大師線 浅草駅(東武・都営・メトロ) 徒歩12分 東京地下鉄銀座線 浅草駅(東武・都営・メトロ) 徒歩14分 東京都浅草線 浅草駅(東武・都営・メトロ) 徒歩14分 東京都台東区今戸1丁目 | 詳細を見る | |
マンション ジェノヴィア南千住Ⅳスカイガーデン(1K/3階) | |||||||
![]() | 10.5万円 1万円 | なし なし | 1K 25.4m2 | 築4年 | 常磐線 南千住駅 徒歩9分 東京地下鉄日比谷線 南千住駅 徒歩9分 東京地下鉄日比谷線 三ノ輪駅 徒歩11分 東京都台東区日本堤1丁目 | 詳細を見る | |







