賃貸マンション
メインステージ北千住IIの賃貸物件情報(1K/6階)
| 家賃 | 管理費等 | 敷金 | 礼金 | 間取り | 専有面積 |
|---|---|---|---|---|---|
| 9.85万円 | 1.5万円 | なし | なし | 1K | 23.46m2 |
入居決定でお祝い金最大100,000円
- 保証金
- -
- 償却・敷引
- -
- 築年数
- 築12年
- 所在階
- 6階
- 向き
- 南
Point
まずはお問い合わせ!
不動産会社は街のプロ、あなたに合った物件がきっと見つかります。
提供:借りROOM北千住店(株)ロダン(SUUMO経由)

詳細情報 メインステージ北千住II
物件紹介
メインステージ北千住IIはJR常磐線北千住駅から徒歩7分にあり、駅近で通勤通学に便利なマンションです。
このお部屋は2階以上に位置しているので、通行人や周囲の住人からの視線が気になりにくく、防犯面でも安心。建物のエントランスはオートロックがついており、インターホンにはTVモニタもついているため、相手の顔を確認してから来客対応することができます。
人気の南向き・フローリングのお部屋。角部屋でもあるため、周囲の居住者の生活音も気になりにくい場所です。キッチンはシステムキッチン仕様になっていますので、お料理好きの方にもぴったり。バス・トイレは別なので、のんびりお風呂タイムも楽しめるでしょう。また、雨の日でも浴室乾燥機を使えば、お洗濯も問題ありません。
通信設備面では、インターネット接続が可能です。また、BSアンテナ・CSアンテナもありますので、おうち時間も充実するでしょう(別途工事、契約料が必要な場合あり)。
建物にはエレベーターがついているので、重い荷物があっても安心。共用部には宅配ボックスが設定されているので、不在の時にも荷物を受け取ることができます。また、ペット飼育の相談ができますので、あなたの大切な家族の一員も快適に暮らせるか、ぜひ確認してみてください。
このお部屋は2階以上に位置しているので、通行人や周囲の住人からの視線が気になりにくく、防犯面でも安心。建物のエントランスはオートロックがついており、インターホンにはTVモニタもついているため、相手の顔を確認してから来客対応することができます。
人気の南向き・フローリングのお部屋。角部屋でもあるため、周囲の居住者の生活音も気になりにくい場所です。キッチンはシステムキッチン仕様になっていますので、お料理好きの方にもぴったり。バス・トイレは別なので、のんびりお風呂タイムも楽しめるでしょう。また、雨の日でも浴室乾燥機を使えば、お洗濯も問題ありません。
通信設備面では、インターネット接続が可能です。また、BSアンテナ・CSアンテナもありますので、おうち時間も充実するでしょう(別途工事、契約料が必要な場合あり)。
建物にはエレベーターがついているので、重い荷物があっても安心。共用部には宅配ボックスが設定されているので、不在の時にも荷物を受け取ることができます。また、ペット飼育の相談ができますので、あなたの大切な家族の一員も快適に暮らせるか、ぜひ確認してみてください。
お金・契約の情報
※「-」と表示されているものは、実際は料金が発生するものもございます。詳細はお問い合わせください。
| 家賃 | 9.85万円 | 管理費・共益費 | 1.5万円 |
|---|---|---|---|
| 敷金 | なし | 礼金 | なし |
| 入居決定でお祝い金最大100,000円 | |||
| 保証金 | - | 償却・敷引 | - |
| 住宅保険料 | - | 更新料 | - |
| 保証会社利用 | 必須 | 保証会社名 | - |
| 保証会社費用 | - | 保証会社備考 | 保証会社利用必 家賃総額より50%~ |
| 契約形態 | - | 契約期間 | - |
| 入居・引渡期間 | - | 現況 | - |
| 入居可能条件 | ペット相談 | ||
| 契約備考 | サイトの閲覧、ありがとうございます!お電話でのお問い合わせならリアルタイムで募集状況をご確認頂けます!LINEでのご相談ご対応も可能です!お気軽にお問い合わせください(^^♪ Google口コミ★北千住は勿論、足立葛飾ナンバー1の実績!!足立区、葛飾区はもちろん千葉県、埼玉県でもご紹介可能です!是非一度ご相談ください! 合計6.27万円(内訳:AMLクラブサポート費用(契約時請求)1.65万円退去時エアコンクリーニング費用/台1.65万円鍵交換代2.97万円) 更新料 新賃料1.50ヶ月分 室内清掃費用 49500円 1K ペット相談/ルームシェア相談 普通借家2年 損保【1.6万円2年】 バストイレ別、バルコニー、エアコン、ガスコンロ対応、クロゼット、フローリング、TVインターホン、浴室乾燥機、オートロック、室内洗濯置、シューズボックス、システムキッチン、南向き、角住戸、温水洗浄便座、脱衣所、エレベーター、洗面所独立、洗面化粧台、2口コンロ、駐輪場、宅配ボックス、光ファイバー、外壁タイル張り、礼金不要、敷金不要、防犯カメラ、ペット相談、照明付、分譲賃貸、保証人不要、二人入居相談、24時間緊急通報システム、2沿線利用可、ディンプルキー、CS、ネット専用回線、保証金不要、24時間換気システム、ルームシェア相談、人感照明センサー、耐火構造、耐震構造、前面棟無、2駅利用可、3駅以上利用可、3沿線以上利用可、駅徒歩10分以内、24時間ゴミ出し可、敷地内ごみ置き場、耐震ラッチ吊戸棚、都市ガス、洗面所にドア、耐震扉、ダウンライト、BS、敷金・礼金不要、保証会社利用可、IT重説対応物件、初期費用カード決済可 敷金積み増し【ペット飼育の場合敷金1ヶ月(総額)】 入居日:'26年5月中旬 | ||
部屋の情報
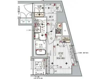
| 間取り | 1K | 専有面積 | 23.46m2 |
|---|---|---|---|
| 所在階 / 向き | 6階 / 南 | バルコニー面積 | - |
| 水道 / ガス | - | ||
| 設備 | バス・トイレ別、2階以上、オートロック、テレビドアホン、宅配ボックス、浴室乾燥機、インターネット対応、システムキッチン、エアコン、エレベーター、温水洗浄便座、南向き、角部屋、バルコニー、フローリング、洗髪洗面化粧台、2口コンロ、コンロ:ガス、CSアンテナ、BSアンテナ、洗濯機:室内 | ||
| 当社物件ID | 16465350 | ||
建物の情報
| 建物名 | メインステージ北千住II | ||
|---|---|---|---|
| 所在地 | 東京都足立区千住 | ||
| 交通 | JR常磐線 北千住駅 徒歩7分 京成本線 千住大橋駅 徒歩12分 東武伊勢崎線 牛田駅(東京) 徒歩19分 | ||
| 階数 | 12階建 | 総戸数 | 44戸 |
| 築年月 | 2014年12月 / 築12年 | エレベーター | あり |
| 駐車場 | なし | バイク置き場 | - |
| 駐輪場 | あり | 管理人/管理会社 | - |
| 周辺環境 | その他 成城石井 SEIJO ISHII ルミネ北千住店(スーパー)まで636m その他 LUMINE(ルミネ)北千住(その他)まで719m その他 ポンテポルタ千住(ショッピングセンター)まで1047m その他 セブン-イレブン 千住寿町店(コンビニ)まで600m その他 KoKuMiN ルミネ北千住店(ドラッグストア)まで630m その他 ローソンストア100 LS千住寿町店(その他)まで622m | ||
| 建物種別 | マンション | 建物構造 | RC(鉄筋コンクリート) |
この部屋の取扱い不動産会社
| 会社名 | (株)INTER LIVING日暮里店(SUUMO経由) | ||
|---|---|---|---|
| 所在地 | 東京都荒川区東日暮里5-52-10 エスポワール日暮里1階 | 交通 | - |
| 営業時間 | AM10:00~PM20:00 | 定休日 | 毎週水曜日 |
| 免許番号 | 東京都知事93045 | 取引態様 | 仲介 |
| 不動産会社管理番号 | 100492925204 | 当社管理番号 | 89 |
| 所属団体 | (公社)東京都宅地建物取引業協会会員 | ||
| 公正取引協議会 | (公社)首都圏不動産公正取引協議会加盟 | ||
| 取扱い物件情報 | 物件詳細へ | ||
※各種情報と現状に差異がある場合は、現状優先となります。問い合わせをすることで、より詳しい条件、情報を確認する事ができます。
提供:(株)INTER LIVING日暮里店(SUUMO経由)
この物件が気になったら掲載期限まであと12日
メインステージ北千住IIに条件(家賃・エリア)が近い物件一覧
| 写真 | 家賃 管理費等 | 敷金 礼金 | 間取り 専有面積 | 築年数 | 最寄り駅 所在地 | キープ | 詳細 |
|---|---|---|---|---|---|---|---|
マンション AXASFORT両国立川(1LDK/5階) | |||||||
![]() | 14.8万円 1万円 | 14.8万円 14.8万円 | 1LDK 41.17m2 | 築17年 | 都営大江戸線 森下駅(東京) 徒歩5分 都営新宿線 菊川駅(東京) 徒歩7分 JR総武線 両国駅 徒歩16分 東京都墨田区立川 | 詳細を見る | |
マンション グリンパーク第4五反野(3DK/7階) | |||||||
![]() | 14.8万円 1万円 | なし 14.8万円 | 3DK 59.92m2 | 築46年 | 東武伊勢崎線 五反野駅 徒歩9分 つくばエクスプレス 青井駅 徒歩10分 JR常磐線 綾瀬駅 徒歩15分 東京都足立区弘道 | 詳細を見る | |
マンション リブリ・足立区竹の塚6(1LDK/1階) | |||||||
![]() | 10.1万円 3,000円 | なし 15.15万円 | 1LDK 31.88m2 | 築1年 | 東武伊勢崎線 竹ノ塚駅 徒歩10分 東武伊勢崎線 西新井駅 徒歩30分 東武伊勢崎線 梅島駅 徒歩32分 東京都足立区竹の塚 | 詳細を見る | |
マンション ビーカーサキタセンジュ(ワンルーム/1階) | |||||||
![]() | 10.5万円 5,000円 | 10.5万円 なし | ワンルーム 30m2 | 築10年 | 京成本線 千住大橋駅 徒歩4分 JR常磐線 南千住駅 徒歩15分 東京メトロ日比谷線 北千住駅 徒歩17分 東京都足立区千住河原町 | 詳細を見る | |
マンション アルファコート八広(1K/3階) | |||||||
![]() | 10.1万円 8,000円 | 10.1万円 なし | 1K 26.11m2 | 築3年 | 京成押上線 八広駅 徒歩8分 都営浅草線 押上駅 徒歩29分 東京メトロ半蔵門線 押上駅 徒歩29分 東京都墨田区八広 | 詳細を見る | |
アパート エスト綾瀬(1K/1階) | |||||||
![]() | 6.1万円 3,000円 | なし なし | 1K 14.97m2 | 築2年 | つくばエクスプレス 青井駅 徒歩11分 東京メトロ千代田線 綾瀬駅 徒歩14分 東京メトロ千代田線 北綾瀬駅 徒歩17分 東京都足立区綾瀬 | 詳細を見る | |
マンション MONOLITH OGI-OHASHI(ワンルーム/2階) | |||||||
![]() | 6.3万円 9,000円 | なし なし | ワンルーム 18.13m2 | 築3年 | 日暮里・舎人ライナー 扇大橋駅 徒歩6分 日暮里・舎人ライナー 高野駅(東京) 徒歩11分 日暮里・舎人ライナー 足立小台駅 徒歩15分 東京都足立区扇 | 詳細を見る | |
マンション DIPS竹ノ塚駅前(1K/4階) | |||||||
![]() | 9.45万円 1.2万円 | なし なし | 1K 25.5m2 | 築1年 | 東武伊勢崎・大師線 竹ノ塚駅 徒歩3分 東京都足立区西竹の塚2丁目 | 詳細を見る | |








