賃貸マンション
ステージグランデ新御徒町アジールコートの賃貸物件情報(1K/7階)
| 家賃 | 管理費等 | 敷金 | 礼金 | 間取り | 専有面積 |
|---|---|---|---|---|---|
| 13万円 | 5,000円 | 13万円 | 13万円 | 1K | 25.92m2 |
入居決定でお祝い金最大100,000円
- 保証金
- -
- 償却・敷引
- 13万円
- 築年数
- 築7年
- 所在階
- 7階
- 向き
- 南
Point
まずはお問い合わせ!
不動産会社は街のプロ、あなたに合った物件がきっと見つかります。
提供:(株)REVE銀座店(SUUMO経由)

詳細情報 ステージグランデ新御徒町アジールコート
物件紹介
ステージグランデ新御徒町アジールコートは都営大江戸線新御徒町駅から徒歩5分にあり、駅近で通勤通学に便利なマンションです。
このお部屋は2階以上に位置しているので、通行人や周囲の住人からの視線が気になりにくく、防犯面でも安心。建物のエントランスはオートロックがついており、インターホンにはTVモニタもついているため、相手の顔を確認してから来客対応することができます。
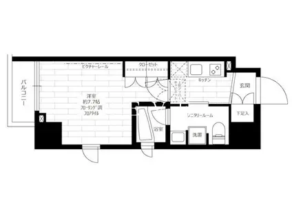
人気の南向き・フローリングのお部屋。角部屋でもあるため、周囲の居住者の生活音も気になりにくい場所です。キッチンはシステムキッチン仕様になっていますので、お料理好きの方にもぴったり。バス・トイレは別なので、のんびりお風呂タイムも楽しめるでしょう。また、雨の日でも浴室乾燥機を使えば、お洗濯も問題ありません。
通信設備面では、インターネットが無料で使えるので、月々の出費を抑えられるのも魅力です。また、BSアンテナ・CSアンテナがありCATVにも対応しているので、おうち時間も充実するでしょう(別途工事、BS・CS・CATVの契約料等が必要な場合あり)。
建物にはエレベーターがついているので、重い荷物があっても安心。共用部には宅配ボックスが設定されているので、不在の時にも荷物を受け取ることができます。
このお部屋は2階以上に位置しているので、通行人や周囲の住人からの視線が気になりにくく、防犯面でも安心。建物のエントランスはオートロックがついており、インターホンにはTVモニタもついているため、相手の顔を確認してから来客対応することができます。
人気の南向き・フローリングのお部屋。角部屋でもあるため、周囲の居住者の生活音も気になりにくい場所です。キッチンはシステムキッチン仕様になっていますので、お料理好きの方にもぴったり。バス・トイレは別なので、のんびりお風呂タイムも楽しめるでしょう。また、雨の日でも浴室乾燥機を使えば、お洗濯も問題ありません。
通信設備面では、インターネットが無料で使えるので、月々の出費を抑えられるのも魅力です。また、BSアンテナ・CSアンテナがありCATVにも対応しているので、おうち時間も充実するでしょう(別途工事、BS・CS・CATVの契約料等が必要な場合あり)。
建物にはエレベーターがついているので、重い荷物があっても安心。共用部には宅配ボックスが設定されているので、不在の時にも荷物を受け取ることができます。
お金・契約の情報
※「-」と表示されているものは、実際は料金が発生するものもございます。詳細はお問い合わせください。
| 家賃 | 13万円 | 管理費・共益費 | 5,000円 |
|---|---|---|---|
| 敷金 | 13万円 | 礼金 | 13万円 |
| 入居決定でお祝い金最大100,000円 | |||
| 保証金 | - | 償却・敷引 | 13万円 |
| 住宅保険料 | - | 更新料 | - |
| 保証会社利用 | 必須 | 保証会社名 | - |
| 保証会社費用 | - | 保証会社備考 | 保証会社利用必 賃貸保証料:0.40ヶ月 詳細はお問い合わせください。 |
| 契約形態 | - | 契約期間 | - |
| 入居・引渡期間 | 即時 | 現況 | - |
| 契約備考 | JR総武・中央緩行線浅草橋駅徒歩13分/巡回管理/~お客様の人生をより良いものにするため、責任と自信を持って住まいを提案する~銀座駅を中心に、中央区・台東区・千代田区・文京区など都内中心部の物件情報を取り扱っております。周辺環境を熟知したスタッフが、楽しくカウンセリングをしながら最適なご提案をさせていただきます。安心してお部屋探しをお任せください。「電話問合せ窓口」TEL 合計4.18万円(内訳:入居者サポート:19800円/鍵交換代:22000円) 更新料新賃料(ヶ月):1.00ヶ月、口座振替手数料:275円/月 1K 単身者可 普通借家2年 損保【2万円2年】 バストイレ別、バルコニー、エアコン、ガスコンロ対応、クロゼット、フローリング、シャワー付洗面台、TVインターホン、浴室乾燥機、オートロック、室内洗濯置、シューズボックス、システムキッチン、南向き、角住戸、温水洗浄便座、脱衣所、エレベーター、洗面所独立、洗面化粧台、2口コンロ、宅配ボックス、光ファイバー、即入居可、2面採光、防犯カメラ、分譲賃貸、オートバス、保証人不要、単身者相談、東南角住戸、敷金1ヶ月、全居室フローリング、2沿線利用可、ネット専用回線、ネット使用料不要、全室南向き、エアコン全室、浴室に窓、24時間換気システム、クロゼット2ヶ所、南面リビング、人感照明センサー、2駅利用可、3駅以上利用可、3沿線以上利用可、駅徒歩5分以内、24時間ゴミ出し可、敷地内ごみ置き場、都市ガス、洗面所にドア、南面バルコニー、天井高シューズクロゼット、玄関収納、高速ネット対応、LAN、礼金1ヶ月、IT重説対応物件、初期費用カード決済可、通風良好 | ||
部屋の情報
| 間取り | 1K | 専有面積 | 25.92m2 |
|---|---|---|---|
| 所在階 / 向き | 7階 / 南 | バルコニー面積 | - |
| 水道 / ガス | - | ||
| 設備 | バス・トイレ別、2階以上、オートロック、テレビドアホン、宅配ボックス、浴室乾燥機、追い焚き、インターネット対応、システムキッチン、エアコン、エレベーター、温水洗浄便座、南向き、角部屋、バルコニー、フローリング、洗髪洗面化粧台、2口コンロ、コンロ:ガス、インターネット使用料無料、洗濯機:室内 | ||
| 当社物件ID | 29779998 | ||
建物の情報
| 建物名 | ステージグランデ新御徒町アジールコート | ||
|---|---|---|---|
| 所在地 | 東京都台東区小島 | ||
| 交通 | 都営大江戸線 新御徒町駅 徒歩5分 都営浅草線 蔵前駅 徒歩10分 JR山手線 秋葉原駅 徒歩15分 | ||
| 階数 | 13階建 | 総戸数 | - |
| 築年月 | 2019年02月 / 築7年 | エレベーター | あり |
| 駐車場 | なし | バイク置き場 | - |
| 駐輪場 | - | 管理人/管理会社 | - |
| 周辺環境 | その他 新御徒町駅(首都圏新都市鉄道 つくばエクスプレス)(その他)まで540m その他 ヨドバシAkiba(ショッピングセンター)まで1410m その他 ココスナカムラ鳥越店(スーパー)まで150m その他 ホームセンターコーナン江東深川店(ホームセンター)まで3760m その他 国立東京医科歯科大学(その他)まで2040m その他 社会福祉法人三井記念病院(病院)まで990m | ||
| 建物種別 | マンション | 建物構造 | RC(鉄筋コンクリート) |
この部屋の取扱い不動産会社
| 会社名 | (株)REVE銀座店(SUUMO経由) | ||
|---|---|---|---|
| 所在地 | 東京都中央区銀座2-4-8 Ginza Yuki Bldg 6階 | 交通 | - |
| 営業時間 | 9:00~18:00 | 定休日 | 水曜日 |
| 免許番号 | 東京都知事105371 | 取引態様 | 仲介 |
| 不動産会社管理番号 | 100478792924 | 当社管理番号 | 89 |
| 所属団体 | (公社)全日本不動産協会東京都本部会員 | ||
| 公正取引協議会 | (公社)首都圏不動産公正取引協議会加盟 | ||
| 取扱い物件情報 | 物件詳細へ | ||
※各種情報と現状に差異がある場合は、現状優先となります。問い合わせをすることで、より詳しい条件、情報を確認する事ができます。
提供:(株)REVE銀座店(SUUMO経由)
この物件が気になったら掲載期限まであと11日
ステージグランデ新御徒町アジールコートに条件(家賃・エリア)が近い物件一覧
| 写真 | 家賃 管理費等 | 敷金 礼金 | 間取り 専有面積 | 築年数 | 最寄り駅 所在地 | キープ | 詳細 |
|---|---|---|---|---|---|---|---|
マンション メイクスデザイン茅場町(1K/6階) | |||||||
![]() | 12万円 1.5万円 | 12万円 12万円 | 1K 29.29m2 | 築19年 | 東京地下鉄日比谷線 茅場町駅 徒歩7分 東京地下鉄東西線 茅場町駅 徒歩7分 京葉線 八丁堀駅(東京) 徒歩8分 東京都中央区新川1丁目 | 詳細を見る | |
マンション ZESTY小石川(ワンルーム/3階) | |||||||
![]() | 8.6万円 1万円 | なし なし | ワンルーム 20.79m2 | 築20年 | 東京地下鉄丸ノ内線 茗荷谷駅 徒歩9分 東京都文京区小石川5丁目 | 詳細を見る | |
マンション プラウドフラット浅草(ワンルーム/7階) | |||||||
![]() | 12.8万円 1万円 | 12.8万円 12.8万円 | ワンルーム 25.11m2 | 築6年 | 東武伊勢崎・大師線 浅草駅(東武・都営・メトロ) 徒歩9分 東京地下鉄銀座線 浅草駅(東武・都営・メトロ) 徒歩10分 東京都台東区浅草6丁目 | 詳細を見る | |
マンション セジョリ錦糸町(1K/6階) | |||||||
![]() | 8.6万円 1万円 | なし 8.6万円 | 1K 22.57m2 | 築19年 | 東京地下鉄半蔵門線 錦糸町駅 徒歩8分 総武・中央緩行線 錦糸町駅 徒歩10分 東武伊勢崎・大師線 押上駅 徒歩13分 東京都墨田区太平4丁目 | 詳細を見る | |
マンション PREMIUM CUBE 両国DEUX(1LDK/10階) | |||||||
![]() | 18万円 2万円 | なし 18万円 | 1LDK 41m2 | 築5年 | 東京都大江戸線 両国駅 徒歩10分 東京都墨田区亀沢4丁目 | 詳細を見る | |
マンション アスール両国(ワンルーム/6階) | |||||||
![]() | 11.1万円 1万円 | なし 11.1万円 | ワンルーム 25.46m2 | 築8年 | 東京都大江戸線 両国駅 徒歩8分 総武・中央緩行線 両国駅 徒歩13分 東京地下鉄半蔵門線 錦糸町駅 徒歩13分 東京都墨田区緑3丁目 | 詳細を見る | |
マンション スカイコート錦糸町第2(1K/4階) | |||||||
![]() | 8.2万円 1万円 | 8.2万円 8.2万円 | 1K 22.78m2 | 築19年 | 東京都大江戸線 両国駅 徒歩10分 総武本線 錦糸町駅 徒歩11分 東京都新宿線 菊川駅(東京) 徒歩12分 東京都墨田区緑4丁目 | 詳細を見る | |
マンション メインステージ茅場町(1K/9階) | |||||||
![]() | 9.6万円 1.2万円 | なし 9.6万円 | 1K 22.5m2 | 築27年 | 東京地下鉄東西線 茅場町駅 徒歩9分 東京地下鉄日比谷線 八丁堀駅(東京) 徒歩9分 東京地下鉄半蔵門線 水天宮前駅 徒歩10分 東京都中央区新川1丁目 | 詳細を見る | |





/105x80-f1-q70-wp1)


