賃貸マンション
ガーラ・グランディ木場公園の賃貸物件情報(2K/8階)
| 家賃 | 管理費等 | 敷金 | 礼金 | 間取り | 専有面積 |
|---|---|---|---|---|---|
| 9.65万円 | 9,000円 | 9.65万円 | 19.3万円 | 2K | 25.56m2 |
入居決定でお祝い金最大100,000円
Point
収納はシューズボックス・クロゼットなど豊富なので、広々と空間を利用することも可能です。室内設備は浴室乾燥機・洗面所独立など大変充実しております。防犯効果が高く安心の管理人常駐の物件。
提供:(株)FJネクスト(SUUMO経由)

詳細情報 ガーラ・グランディ木場公園
物件紹介
ガーラ・グランディ木場公園は東京メトロ東西線東陽町駅から徒歩12分にあるマンションです。
このお部屋は2階以上に位置しているので、通行人や周囲の住人からの視線が気になりにくく、防犯面でも安心。建物のエントランスはオートロックがついており、インターホンにはTVモニタもついているため、相手の顔を確認してから来客対応することができます。
人気の南向きのお部屋。また、フローリングなのでお掃除もラクラク。キッチンはシステムキッチン仕様になっていますので、お料理好きの方にもぴったり。バス・トイレは別なので、のんびりお風呂タイムも楽しめるでしょう。また、雨の日でも浴室乾燥機を使えば、お洗濯も問題ありません。
通信設備面では、インターネットが無料で使えるので、月々の出費を抑えられるのも魅力です。また、BSアンテナ・CSアンテナもありますので、おうち時間も充実するでしょう(別途工事、BS・CSの契約料等が必要な場合あり)。
建物にはエレベーターがついているので、重い荷物があっても安心。共用部には宅配ボックスが設定されているので、不在の時にも荷物を受け取ることができます。
このお部屋は2階以上に位置しているので、通行人や周囲の住人からの視線が気になりにくく、防犯面でも安心。建物のエントランスはオートロックがついており、インターホンにはTVモニタもついているため、相手の顔を確認してから来客対応することができます。
人気の南向きのお部屋。また、フローリングなのでお掃除もラクラク。キッチンはシステムキッチン仕様になっていますので、お料理好きの方にもぴったり。バス・トイレは別なので、のんびりお風呂タイムも楽しめるでしょう。また、雨の日でも浴室乾燥機を使えば、お洗濯も問題ありません。
通信設備面では、インターネットが無料で使えるので、月々の出費を抑えられるのも魅力です。また、BSアンテナ・CSアンテナもありますので、おうち時間も充実するでしょう(別途工事、BS・CSの契約料等が必要な場合あり)。
建物にはエレベーターがついているので、重い荷物があっても安心。共用部には宅配ボックスが設定されているので、不在の時にも荷物を受け取ることができます。
お金・契約の情報
※「-」と表示されているものは、実際は料金が発生するものもございます。詳細はお問い合わせください。
| 家賃 | 9.65万円 | 管理費・共益費 | 9,000円 |
|---|---|---|---|
| 敷金 | 9.65万円 | 礼金 | 19.3万円 |
| 入居決定でお祝い金最大100,000円 | |||
| 保証金 | - | 償却・敷引 | - |
| 住宅保険料 | - | 更新料 | - |
| 保証会社利用 | 必須 | 保証会社名 | - |
| 保証会社費用 | - | 保証会社備考 | 保証会社利用必 保証料:賃料等の0.5ヶ月分(最低保証料2万円)/月額保証料 賃料等の1.2% |
| 契約形態 | - | 契約期間 | - |
| 入居・引渡期間 | - | 現況 | - |
| 契約備考 | 常駐管理/日々の利便を感じる多彩な商業施設、暮らしに憩いをもたらす自然やアートが共存する木場エリア。徒歩4分「東京イースト21」には多彩な店舗が集まるショッピングモールに、大型スーパー「サミット」(923時まで営業)もございます!【アクセス】「大手町」駅まで直通8分(東京メトロ東西線利用)、「銀座」駅まで12分(東京メトロ東西線利用「日本橋」駅から東京メトロ銀座線へ乗換え)など都心へのアクセス利用も良好♪ 合計6.23万円(内訳:(退去時)エアコンクリーニング費用/1台につき1.32万円火災保険(地震特約付き)2.6万円鍵交換代2.31万円) 更新料 新賃料1.00ヶ月分 室内清掃費用 38500円 2K 普通借家2年 損保【2万円2年】 バストイレ別、バルコニー、エアコン、ガスコンロ対応、クロゼット、フローリング、TVインターホン、浴室乾燥機、オートロック、室内洗濯置、シューズボックス、システムキッチン、追焚機能浴室、温水洗浄便座、脱衣所、エレベーター、洗面所独立、洗面化粧台、2口コンロ、駐輪場、宅配ボックス、外壁タイル張り、防犯カメラ、オートバス、グリル付、保証人不要、24時間緊急通報システム、カードキー、CS、ネット専用回線、ネット使用料不要、人感照明センサー、24時間ゴミ出し可、敷地内ごみ置き場、当社管理物件、都市ガス、南面バルコニー、BS、IT重説対応物件、初期費用カード決済可、家賃カード決済可 入居日:'26年3月上旬 | ||
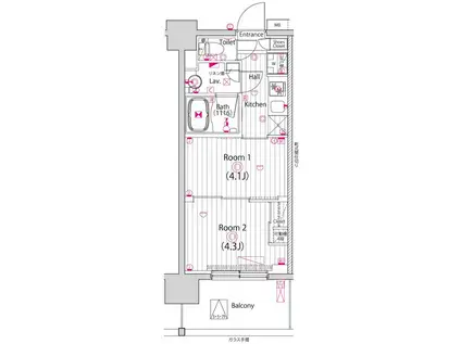
部屋の情報
| 間取り | 2K | 専有面積 | 25.56m2 |
|---|---|---|---|
| 所在階 / 向き | 8階 / 南 | バルコニー面積 | 5m2 |
| 水道 / ガス | - | ||
| 設備 | バス・トイレ別、2階以上、オートロック、テレビドアホン、宅配ボックス、浴室乾燥機、追い焚き、インターネット対応、システムキッチン、エアコン、エレベーター、温水洗浄便座、南向き、バルコニー、フローリング、洗髪洗面化粧台、2口コンロ、コンロ:ガス、CSアンテナ、BSアンテナ、インターネット使用料無料、洗濯機:室内 | ||
| 当社物件ID | 128335198 | ||
建物の情報
| 建物名 | ガーラ・グランディ木場公園 | ||
|---|---|---|---|
| 所在地 | 東京都江東区東陽 | ||
| 交通 | 東京メトロ東西線 東陽町駅 徒歩12分 東京メトロ東西線 木場駅 徒歩13分 | ||
| 階数 | 11階建 | 総戸数 | 74戸 |
| 築年月 | 2023年03月 / 築3年 | エレベーター | あり |
| 駐車場 | なし | バイク置き場 | - |
| 駐輪場 | あり | 管理人/管理会社 | - |
| 周辺環境 | その他 サミットストアイースト21店(その他)まで278m その他 まいばすけっと東陽5丁目店(その他)まで610m その他 東京イースト21(ショッピングセンター)まで360m その他 上州屋東陽町店(ショッピングセンター)まで460m その他 業務スーパー石島店(その他)まで715m その他 ファミリーマート東陽六丁目店(コンビニ)まで207m | ||
| 建物種別 | マンション | 建物構造 | RC(鉄筋コンクリート) |
この部屋の取扱い不動産会社
| 会社名 | (株)FJネクスト(SUUMO経由) | ||
|---|---|---|---|
| 所在地 | 東京都新宿区西新宿6-5-1 新宿アイランドタワー11階 | 交通 | - |
| 営業時間 | 10:00~19:00 | 定休日 | 年中無休 |
| 免許番号 | 国土交通大臣9976 | 取引態様 | 代理 |
| 不動産会社管理番号 | 100485518161 | 当社管理番号 | 89 |
| 所属団体 | (公社)全日本不動産協会東京都本部会員 | ||
| 公正取引協議会 | (公社)首都圏不動産公正取引協議会加盟 | ||
| 取扱い物件情報 | 物件詳細へ | ||
※各種情報と現状に差異がある場合は、現状優先となります。問い合わせをすることで、より詳しい条件、情報を確認する事ができます。
提供:(株)FJネクスト(SUUMO経由)
この物件が気になったら掲載期限まであと10日
ガーラ・グランディ木場公園に条件(家賃・エリア)が近い物件一覧
| 写真 | 家賃 管理費等 | 敷金 礼金 | 間取り 専有面積 | 築年数 | 最寄り駅 所在地 | キープ | 詳細 |
|---|---|---|---|---|---|---|---|
アパート SEED SAVE PETIRASU Ⅲ(1LDK/3階) | |||||||
![]() | 10.7万円 1万円 | 21.4万円 10.7万円 | 1LDK 30.55m2 | 新築 | 東京モノレール羽田 昭和島駅 徒歩12分 京浜急行電鉄本線 大森町駅 徒歩18分 東京都大田区大森東5丁目 | 詳細を見る | |
マンション エクレールフジタ(2K/3階) | |||||||
![]() | 10万円 なし | 10万円 10万円 | 2K 30m2 | 築45年 | 東急池上線 荏原中延駅 徒歩2分 都営浅草線 中延駅 徒歩8分 東急大井町線 戸越公園駅 徒歩10分 東京都品川区中延 | 詳細を見る | |
マンション SEED JUST B-BASE Ⅱ(1LDK/3階) | |||||||
![]() | 9.9万円 1.5万円 | 9.9万円 9.9万円 | 1LDK 25.41m2 | 新築 | 東京モノレール羽田 昭和島駅 徒歩11分 京浜急行電鉄本線 梅屋敷駅(東京) 徒歩19分 東京都大田区大森南4丁目 | 詳細を見る | |
マンション ニューシティアパートメンツ亀戸(1K/4階) | |||||||
![]() | 13.8万円 1.1万円 | なし 13.8万円 | 1K 35.37m2 | 築20年 | 総武・中央緩行線 亀戸駅 徒歩3分 東京都江東区亀戸6丁目 | 詳細を見る | |
マンション マイナビSTAYミライエ浅草リバータウン(1K/10階) | |||||||
![]() | 11万円 1.1万円 | なし 22万円 | 1K 22.06m2 | 築18年 | 東京地下鉄銀座線 浅草駅(東武・都営・メトロ) 徒歩5分 東京都浅草線 浅草駅(東武・都営・メトロ) 徒歩5分 東京都浅草線 本所吾妻橋駅 徒歩9分 東京都墨田区東駒形1丁目 | 詳細を見る | |
マンション LIVEFLAT馬込(1LDK/3階) | |||||||
![]() | 14.4万円 1万円 | なし なし | 1LDK 28.48m2 | 築1年 | 東京都浅草線 馬込駅 徒歩3分 東京都大田区中馬込2丁目 | 詳細を見る | |
マンション WING高尾(1K/5階) | |||||||
![]() | 8.2万円 8,000円 | なし 8.2万円 | 1K 22.44m2 | 築17年 | 総武本線 錦糸町駅 徒歩9分 東京地下鉄半蔵門線 錦糸町駅 徒歩9分 東京都新宿線 菊川駅(東京) 徒歩10分 東京都墨田区緑4丁目 | 詳細を見る | |
マンション ARCOBALENO UMEYASHIKI(1K/5階) | |||||||
![]() | 10.5万円 1.5万円 | なし 10.5万円 | 1K 25.75m2 | 築2年 | 京急本線 梅屋敷駅(東京) 徒歩11分 京急本線 大森町駅 徒歩14分 京急空港線 京急蒲田駅 徒歩17分 東京都大田区北糀谷 | 詳細を見る | |









