賃貸マンション
日本橋ロイヤルプラザの賃貸物件情報(ワンルーム/3階)
| 家賃 | 管理費等 | 敷金 | 礼金 | 間取り | 専有面積 |
|---|---|---|---|---|---|
| 8.3万円 | なし | 8.3万円 | 8.3万円 | ワンルーム | 17.74m2 |
入居決定でお祝い金最大100,000円
- 保証金
- -
- 償却・敷引
- -
- 築年数
- 築47年
- 所在階
- 3階
- 向き
- -
Point
【★ネット掲載物件一括ご紹介可能です★当日予約も大歓迎★現地お待ち合わせにてご案内致します★賃料交渉・審査の件などお気軽にご相談ください★】
提供:東京デザイナーズ生活(株)リアルグラッド日本橋店(SUUMO経由)

詳細情報 日本橋ロイヤルプラザ
物件紹介
日本橋ロイヤルプラザは東京メトロ日比谷線茅場町駅から徒歩4分にあり、駅近で通勤通学に便利なマンションです。
このお部屋は2階以上に位置しているので、通行人や周囲の住人からの視線が気になりにくく、防犯面でも安心です。
建物にはエレベーターがついているので、重い荷物があっても安心。
このお部屋は2階以上に位置しているので、通行人や周囲の住人からの視線が気になりにくく、防犯面でも安心です。
建物にはエレベーターがついているので、重い荷物があっても安心。
お金・契約の情報
※「-」と表示されているものは、実際は料金が発生するものもございます。詳細はお問い合わせください。
| 家賃 | 8.3万円 | 管理費・共益費 | なし |
|---|---|---|---|
| 敷金 | 8.3万円 | 礼金 | 8.3万円 |
| 入居決定でお祝い金最大100,000円 | |||
| 保証金 | - | 償却・敷引 | - |
| 住宅保険料 | - | 更新料 | - |
| 保証会社利用 | 必須 | 保証会社名 | - |
| 保証会社費用 | - | 保証会社備考 | 保証会社利用必 詳細はお問合せ下さいませ。 |
| 契約形態 | - | 契約期間 | - |
| 入居・引渡期間 | 相談 | 現況 | - |
| 契約備考 | 鍵交換代 18000円(別途消費税) ワンルーム 損保【要】 エアコン、クロゼット、エレベーター、防犯カメラ、敷金1ヶ月、2沿線利用可、2駅利用可、駅徒歩5分以内、礼金1ヶ月 | ||
部屋の情報
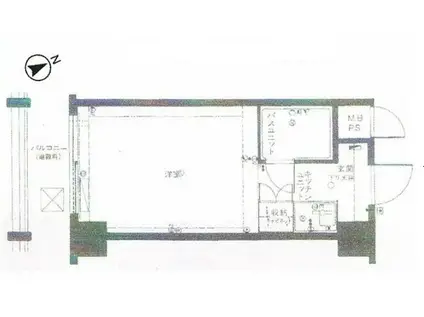
| 間取り | ワンルーム | 専有面積 | 17.74m2 |
|---|---|---|---|
| 所在階 / 向き | 3階 / - | バルコニー面積 | - |
| 水道 / ガス | - | ||
| 設備 | 2階以上、エアコン、エレベーター | ||
| 当社物件ID | 159840364 | ||
建物の情報
| 建物名 | 日本橋ロイヤルプラザ | ||
|---|---|---|---|
| 所在地 | 東京都中央区日本橋兜町 | ||
| 交通 | 東京メトロ日比谷線 茅場町駅 徒歩4分 東京メトロ銀座線 日本橋駅(東京) 徒歩6分 JR山手線 東京駅 徒歩11分 | ||
| 階数 | 地下1地上9階建 | 総戸数 | 153戸 |
| 築年月 | 1980年01月 / 築47年 | エレベーター | あり |
| 駐車場 | なし | バイク置き場 | - |
| 駐輪場 | - | 管理人/管理会社 | - |
| 建物種別 | マンション | 建物構造 | SRC(鉄骨鉄筋コンクリート) |
この部屋の取扱い不動産会社
| 会社名 | 東京デザイナーズ生活(株)リアルグラッド日本橋店(SUUMO経由) | ||
|---|---|---|---|
| 所在地 | 東京都中央区日本橋茅場町1-10-6 | 交通 | - |
| 営業時間 | 10:00~18:00 | 定休日 | 定休日なし |
| 免許番号 | 国土交通大臣8396 | 取引態様 | 仲介 |
| 不動産会社管理番号 | 100487282125 | 当社管理番号 | 89 |
| 所属団体 | (公社)東京都宅地建物取引業協会会員 | ||
| 公正取引協議会 | (公社)首都圏不動産公正取引協議会加盟 | ||
| 取扱い物件情報 | 物件詳細へ | ||
※各種情報と現状に差異がある場合は、現状優先となります。問い合わせをすることで、より詳しい条件、情報を確認する事ができます。
提供:東京デザイナーズ生活(株)リアルグラッド日本橋店(SUUMO経由)
この物件が気になったら掲載期限まであと8日
日本橋ロイヤルプラザに条件(家賃・エリア)が近い物件一覧
| 写真 | 家賃 管理費等 | 敷金 礼金 | 間取り 専有面積 | 築年数 | 最寄り駅 所在地 | キープ | 詳細 |
|---|---|---|---|---|---|---|---|
マンション ライオンズマンション上野松が谷第2(ワンルーム/7階) | |||||||
![]() | 7.6万円 5,000円 | 7.6万円 7.6万円 | ワンルーム 19.8m2 | 築37年 | つくばエクスプレス 浅草駅(つくばEXP) 徒歩6分 東京地下鉄日比谷線 入谷駅(東京) 徒歩8分 山手線 上野駅 徒歩15分 東京都台東区松が谷3丁目 | 詳細を見る | |
マンション 近藤ビル(2LDK/2階) | |||||||
![]() | 10.5万円 なし | 10.5万円 10.5万円 | 2LDK 45m2 | 築50年 | JR総武線 亀戸駅 徒歩7分 東武亀戸線 亀戸水神駅 徒歩10分 JR総武線 錦糸町駅 徒歩19分 東京都江東区亀戸 | 詳細を見る | |
マンション クレヴィスタ亀戸IV(1K/10階) | |||||||
![]() | 13.2万円 1.1万円 | なし 13.2万円 | 1K 25.56m2 | 築6年 | 総武・中央緩行線 亀戸駅 徒歩4分 東武鉄道亀戸線 亀戸駅 徒歩4分 総武本線 錦糸町駅 徒歩12分 東京都江東区亀戸2丁目 | 詳細を見る | |
マンション クレヴィスタ亀戸V(1K/6階) | |||||||
![]() | 12.8万円 1.1万円 | なし 12.8万円 | 1K 25.41m2 | 築6年 | 東武鉄道亀戸線 亀戸水神駅 徒歩2分 総武・中央緩行線 亀戸駅 徒歩9分 東武鉄道亀戸線 東あずま駅 徒歩12分 東京都江東区亀戸8丁目 | 詳細を見る | |
マンション HF曳舟レジデンス(1K/3階) | |||||||
![]() | 10.7万円 1.4万円 | 10.7万円 10.7万円 | 1K 25.2m2 | 築8年 | 京成電鉄押上線 京成曳舟駅 徒歩8分 東京都墨田区京島3丁目 | 詳細を見る | |
マンション アーバンパーク押上(1DK/1階) | |||||||
![]() | 12.15万円 1.5万円 | なし なし | 1DK 25.81m2 | 築3年 | 東京メトロ半蔵門線 押上駅 徒歩11分 都営浅草線 本所吾妻橋駅 徒歩12分 東武伊勢崎線 曳舟駅 徒歩13分 東京都墨田区向島 | 詳細を見る | |
マンション スカイコート東京ベイ 東雲(1K/5階) | |||||||
![]() | 11.1万円 1.1万円 | なし 11.1万円 | 1K 24.62m2 | 築19年 | 東京臨海高速鉄道 東雲駅(東京) 徒歩5分 東京地下鉄有楽町線 辰巳駅 徒歩14分 ゆりかもめ 有明テニスの森駅 徒歩16分 東京都江東区東雲2丁目 | 詳細を見る | |
マンション AIFLAT両国(1K/3階) | |||||||
![]() | 13.4万円 1万円 | なし 13.4万円 | 1K 26.35m2 | 築5年 | 都営大江戸線 両国駅 徒歩3分 都営大江戸線 森下駅(東京) 徒歩15分 都営浅草線 蔵前駅 徒歩20分 東京都墨田区亀沢 | 詳細を見る | |









