賃貸マンション
宮町マンションの賃貸物件情報(ワンルーム/3階)
| 家賃 | 管理費等 | 敷金 | 礼金 | 間取り | 専有面積 |
|---|---|---|---|---|---|
| 5.9万円 | 1.2万円 | 5.9万円 | 5.9万円 | ワンルーム | 18m2 |
入居決定でお祝い金最大100,000円
- 保証金
- -
- 償却・敷引
- 5.9万円(毎年)
- 築年数
- 築20年
- 所在階
- 3階
- 向き
- 南
Point
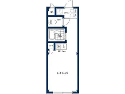
室内設備はエアコン・フローリングなど充実した設備を備え付けています。こちらはワンルームの物件です。
提供:(株)アンビション・エージェンシー恵比寿本店(SUUMO経由)

詳細情報 宮町マンション
物件紹介
宮町マンションはJR京浜東北線大宮駅から徒歩6分にあり、駅近で通勤通学に便利なマンションです。
このお部屋は2階以上に位置しているので、通行人や周囲の住人からの視線が気になりにくく、防犯面でも安心。インターホンにはTVモニタもついているため、相手の顔を確認してから来客対応することができます。
おしゃれなデザイナーズ物件!人気の南向きのお部屋。また、フローリングなのでお掃除もラクラク。キッチンはシステムキッチン仕様になっていますので、お料理好きの方にもぴったり。また、バス・トイレは別で、のんびりお風呂タイムも楽しめるでしょう。
通信設備面では、インターネット接続が可能です(別途工事、契約料が必要な場合あり)。
コンビニまで徒歩6分の場所にあり、日用品や食料品のお買い物にも便利です。
このお部屋は2階以上に位置しているので、通行人や周囲の住人からの視線が気になりにくく、防犯面でも安心。インターホンにはTVモニタもついているため、相手の顔を確認してから来客対応することができます。
おしゃれなデザイナーズ物件!人気の南向きのお部屋。また、フローリングなのでお掃除もラクラク。キッチンはシステムキッチン仕様になっていますので、お料理好きの方にもぴったり。また、バス・トイレは別で、のんびりお風呂タイムも楽しめるでしょう。
通信設備面では、インターネット接続が可能です(別途工事、契約料が必要な場合あり)。
コンビニまで徒歩6分の場所にあり、日用品や食料品のお買い物にも便利です。
お金・契約の情報
※「-」と表示されているものは、実際は料金が発生するものもございます。詳細はお問い合わせください。
| 家賃 | 5.9万円 | 管理費・共益費 | 1.2万円 |
|---|---|---|---|
| 敷金 | 5.9万円 | 礼金 | 5.9万円 |
| 入居決定でお祝い金最大100,000円 | |||
| 保証金 | - | 償却・敷引 | 5.9万円(毎年) |
| 住宅保険料 | 1円 | 更新料 | - |
| その他費用 | 室内抗菌処理:1.76万円、21450円: | ||
| 保証会社利用 | 必須 | 保証会社名 | - |
| 保証会社費用 | - | 保証会社備考 | 初回総賃料の50% |
| 契約形態 | - | 契約期間 | 2年 |
| 入居・引渡期間 | 2026年04月下旬 | 現況 | - |
| 入居可能条件 | ペット不可 | ||
| 契約備考 | 鍵交換費用:22000 その他設備/条件:室内洗濯機置き場、クローゼット、シューズボックス | ||
部屋の情報
| 間取り | ワンルーム | 専有面積 | 18m2 |
|---|---|---|---|
| 所在階 / 向き | 3階 / 南 | バルコニー面積 | - |
| 水道 / ガス | 水道【公営】、ガス【プロパン】 | ||
| 設備 | インターネット対応、エアコン、温水洗浄便座、フローリング、コンロ:ガス、シャワー、冷蔵庫あり、給湯、1口コンロ | ||
| 当社物件ID | 5112780 | ||
建物の情報
| 建物名 | 宮町マンション | ||
|---|---|---|---|
| 所在地 | 埼玉県さいたま市大宮区宮町5丁目 | ||
| 交通 | 京浜東北・根岸線 大宮駅(埼玉) 徒歩10分 東武鉄道野田線 北大宮駅 徒歩11分 | ||
| 階数 | 4階建 | 総戸数 | 7戸 |
| 築年月 | 2007年03月 / 築20年 | エレベーター | - |
| 駐車場 | - | バイク置き場 | - |
| 駐輪場 | - | 管理人/管理会社 | - |
| 周辺環境 | コンビニ 徒歩6分(469m) 販売店 徒歩10分(779m) その他 ドラッグストア その他 公園 その他 銀行 その他 * | ||
| 建物種別 | マンション | 建物構造 | 鉄骨造 |
この部屋の取扱い不動産会社
| 会社名 | ハウスコム埼玉株式会社 南浦和店 | ||
|---|---|---|---|
| 所在地 | 埼玉県さいたま市南区36-15サウスハセービル2階 | 交通 | - |
| 営業時間 | 10:00~18:00 | 定休日 | - |
| 免許番号 | 埼玉県知事(1)第24888号 | 取引態様 | 仲介 |
| 不動産会社管理番号 | HC2-73169-305-0067 | 当社管理番号 | 468 |
| 所属団体 | 、 | ||
| 取扱い物件情報 | 物件詳細へ | ||
※各種情報と現状に差異がある場合は、現状優先となります。問い合わせをすることで、より詳しい条件、情報を確認する事ができます。
提供:ハウスコム埼玉株式会社 南浦和店
この物件が気になったら掲載期限まであと5日
宮町マンションに条件(家賃・エリア)が近い物件一覧
| 写真 | 家賃 管理費等 | 敷金 礼金 | 間取り 専有面積 | 築年数 | 最寄り駅 所在地 | キープ | 詳細 |
|---|---|---|---|---|---|---|---|
マンション ガーデンヒルズ(3DK/2階) | |||||||
![]() | 6.9万円 3,000円 | なし なし | 3DK 53m2 | 築32年 | 埼玉県越谷市東越谷9丁目 | 詳細を見る | |
アパート ウエストハイムせんげん台(1K/2階) | |||||||
![]() | 5.9万円 3,000円 | なし 5.9万円 | 1K 19.02m2 | 築10年 | 東武伊勢崎線 せんげん台駅 徒歩3分 埼玉県越谷市千間台東 | 詳細を見る | |
アパート KEIAI RESIDENCE せんげん台IV(1LDK/2階) | |||||||
![]() | 7.3万円 3,500円 | なし 7.3万円 | 1LDK 34.15m2 | 築1年 | 東武伊勢崎線 せんげん台駅 徒歩6分 東武伊勢崎線 大袋駅 徒歩22分 東武伊勢崎線 武里駅 徒歩24分 埼玉県越谷市千間台東 | 詳細を見る | |
アパート レオパレスエトワール(1K/1階) | |||||||
![]() | 5.3万円 5,000円 | なし 5.3万円 | 1K 19.87m2 | 築24年 | 東武鉄道東上線 鶴瀬駅 徒歩11分 埼玉県富士見市 | 詳細を見る | |
アパート モーツァルト・パーク新河岸(2DK/1階) | |||||||
![]() | 5.3万円 3,000円 | なし なし | 2DK 37.65m2 | 築33年 | 東武鉄道東上線 新河岸駅 徒歩23分 埼玉県川越市 | 詳細を見る | |
アパート アネックス関沢(2DK/1階) | |||||||
![]() | 5.6万円 2,000円 | なし なし | 2DK 35m2 | 築37年 | 東武鉄道東上線 鶴瀬駅 徒歩12分 埼玉県富士見市関沢2丁目 | 詳細を見る | |
マンション ロイヤルクマイ(1DK/2階) | |||||||
![]() | 7.5万円 8,000円 | 7.5万円 7.5万円 | 1DK 35.43m2 | 築21年 | 埼玉高速鉄道 鳩ケ谷駅 徒歩6分 埼玉高速鉄道 南鳩ケ谷駅 徒歩23分 埼玉高速鉄道 新井宿駅 徒歩25分 埼玉県川口市坂下町 | 詳細を見る | |
アパート ヴィラY・K(1K/1階) | |||||||
![]() | 3.9万円 2,000円 | なし なし | 1K 20.67m2 | 築38年 | 東武鉄道東上線 鶴瀬駅 徒歩10分 埼玉県富士見市鶴瀬西3丁目 | 詳細を見る | |





/105x80-f1-q70-wp1)


