賃貸マンション
THE TOKYO TOWERS MID TOWER ザ・東京タワーズの賃貸物件情報(1LDK/9階)
| 家賃 | 管理費等 | 敷金 | 礼金 | 間取り | 専有面積 |
|---|---|---|---|---|---|
| 27.1万円 | 1.5万円 | 54.2万円 | 27.1万円 | 1LDK | 58.42m2 |
入居決定でお祝い金最大100,000円
- 保証金
- -
- 償却・敷引
- -
- 築年数
- 築19年
- 所在階
- 9階
- 向き
- 南西
Point
◆エリア成約数No.1!Google口コミ数&評価No.1!◆当社グループ引越業者での荷造り5時間無料サービス有◆ご成約者様限定で毎月抽選でディズニーペアチケットプレゼント中◆購入・売却もお任せ!◆
提供:みんなのへや月島駅前店(株)Lotus Link(SUUMO経由)

詳細情報 THE TOKYO TOWERS MID TOWER ザ・東京タワーズ
物件紹介
THE TOKYO TOWERS MID TOWER ザ・東京タワーズは都営大江戸線勝どき駅から徒歩6分にあり、駅近で通勤通学に便利なマンションです。
このお部屋は2階以上に位置しているので、通行人や周囲の住人からの視線が気になりにくく、防犯面でも安心。建物のエントランスはオートロックがついており、インターホンにはTVモニタもついているため、相手の顔を確認してから来客対応することができます。
こちらは楽器相談が可能な物件。楽器演奏をお考えの方はぜひ相談してみてください。人気の南向きのお部屋。また、フローリングなのでお掃除もラクラク。キッチンはシステムキッチン仕様になっていますので、お料理好きの方にもぴったり。バス・トイレは別なので、のんびりお風呂タイムも楽しめるでしょう。また、雨の日でも浴室乾燥機を使えば、お洗濯も問題ありません。
通信設備面ではCATVに対応しているので、おうち時間も充実するでしょう(別途工事、契約料が必要な場合あり)。
建物にはエレベーターがついているので、重い荷物があっても安心。共用部には宅配ボックスが設定されているので、不在の時にも荷物を受け取ることができます。また、ペット飼育の相談ができますので、あなたの大切な家族の一員も快適に暮らせるか、ぜひ確認してみてください。
このお部屋は2階以上に位置しているので、通行人や周囲の住人からの視線が気になりにくく、防犯面でも安心。建物のエントランスはオートロックがついており、インターホンにはTVモニタもついているため、相手の顔を確認してから来客対応することができます。
こちらは楽器相談が可能な物件。楽器演奏をお考えの方はぜひ相談してみてください。人気の南向きのお部屋。また、フローリングなのでお掃除もラクラク。キッチンはシステムキッチン仕様になっていますので、お料理好きの方にもぴったり。バス・トイレは別なので、のんびりお風呂タイムも楽しめるでしょう。また、雨の日でも浴室乾燥機を使えば、お洗濯も問題ありません。
通信設備面ではCATVに対応しているので、おうち時間も充実するでしょう(別途工事、契約料が必要な場合あり)。
建物にはエレベーターがついているので、重い荷物があっても安心。共用部には宅配ボックスが設定されているので、不在の時にも荷物を受け取ることができます。また、ペット飼育の相談ができますので、あなたの大切な家族の一員も快適に暮らせるか、ぜひ確認してみてください。
お金・契約の情報
※「-」と表示されているものは、実際は料金が発生するものもございます。詳細はお問い合わせください。
| 家賃 | 27.1万円 | 管理費・共益費 | 1.5万円 |
|---|---|---|---|
| 敷金 | 54.2万円 | 礼金 | 27.1万円 |
| 入居決定でお祝い金最大100,000円 | |||
| 保証金 | - | 償却・敷引 | - |
| 住宅保険料 | - | 更新料 | - |
| 保証会社利用 | 必須 | 保証会社名 | - |
| 保証会社費用 | - | 保証会社備考 | 保証会社利用必 初回保証委託料(最低20,000円):月額賃料等の50%、2年目以降:10,000円/年 |
| 契約形態 | - | 契約期間 | - |
| 入居・引渡期間 | 相談 | 現況 | - |
| 入居可能条件 | 楽器相談、ペット相談 | ||
| 契約備考 | 2024年10月より大規模修繕実施/ペット可(登録料有)/楽器相談(ピアノ可)◆本物件の諸条件、その他ご質問は、迅速対応可能なお電話でのお問い合わせがおすすめです(通話料無料)※メールでのお問い合わせの際は電話番号を記載して頂きますとスムーズなご案内が可能です◆住宅ローンや資金計画の無料相談も承ります! 更新料 新賃料1.00ヶ月分 1LDK 二人入居可/ペット相談/楽器相談/事務所利用不可 普通借家2年 損保【要】 バストイレ別、バルコニー、エアコン、クロゼット、フローリング、TVインターホン、浴室乾燥機、オートロック、室内洗濯置、シューズボックス、システムキッチン、追焚機能浴室、温水洗浄便座、脱衣所、エレベーター、洗面所独立、宅配ボックス、CATV、閑静な住宅地、3口以上コンロ、防犯カメラ、独立型キッチン、ペット相談、IHクッキングヒーター、全居室収納、24時間有人管理、分譲賃貸、グリル付、全居室洋室、全居室フローリング、2沿線利用可、LDK15畳以上、ディンプルキー、緑豊かな住宅地、ダブルロックキー、保証金不要、24時間換気システム、楽器相談、フロントサービス、クロゼット2ヶ所、リバーサイド、耐震構造、花火大会鑑賞、プール、2駅利用可、3駅以上利用可、3沿線以上利用可、駅徒歩10分以内、タワー型マンション、ゲストルーム、キッズルーム、シアタールーム、24時間ゴミ出し可、敷地内ごみ置き場、南西向き、LDK12畳以上、LDK18畳以上、全居室6畳以上、都市ガス、玄関収納 | ||
部屋の情報
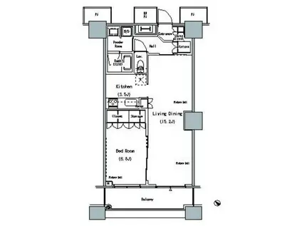
| 間取り | 1LDK | 専有面積 | 58.42m2 |
|---|---|---|---|
| 所在階 / 向き | 9階 / 南西 | バルコニー面積 | 8m2 |
| 水道 / ガス | - | ||
| 設備 | バス・トイレ別、2階以上、オートロック、テレビドアホン、宅配ボックス、浴室乾燥機、追い焚き、システムキッチン、エアコン、エレベーター、温水洗浄便座、南向き、バルコニー、フローリング、洗髪洗面化粧台、タワーマンション、2口コンロ、コンロ:IH、CATV、洗濯機:室内 | ||
| 当社物件ID | 157030397 | ||
建物の情報
| 建物名 | THE TOKYO TOWERS MID TOWER ザ・東京タワーズ | ||
|---|---|---|---|
| 所在地 | 東京都中央区勝どき | ||
| 交通 | 都営大江戸線 勝どき駅 徒歩6分 東京メトロ有楽町線 月島駅 徒歩15分 東京メトロ日比谷線 築地駅 徒歩20分 | ||
| 階数 | 地下2地上58階建 | 総戸数 | - |
| 築年月 | 2008年01月 / 築19年 | エレベーター | あり |
| 駐車場 | なし | バイク置き場 | - |
| 駐輪場 | - | 管理人/管理会社 | - |
| 周辺環境 | その他 マルエツ 勝どき六丁目店(スーパー)まで5m その他 三井のカーシェアーズ ららテラス HARUMI FLAG(ショッピングセンター)まで765m その他 セブンイレブン 勝どき5丁目店(コンビニ)まで121m その他 ファミリーマート 勝どき五丁目店(コンビニ)まで136m その他 どらっぐぱぱす 勝どき5丁目店(ドラッグストア)まで137m その他 さくら薬局 豊海店(ドラッグストア)まで309m | ||
| 建物種別 | マンション | 建物構造 | RC(鉄筋コンクリート) |
この部屋の取扱い不動産会社
| 会社名 | センチュリー21(株)ロータスアセットパートナーズみんなのへや豊洲駅前店(SUUMO経由) | ||
|---|---|---|---|
| 所在地 | 東京都江東区豊洲4-4-25 BLDG.HORIUCHI 1階 | 交通 | - |
| 営業時間 | 9:30~18:30※営業時間外もご相談ください | 定休日 | 年中無休 |
| 免許番号 | 東京都知事106029 | 取引態様 | 仲介 |
| 不動産会社管理番号 | 100491150068 | 当社管理番号 | 89 |
| 所属団体 | (公社)全日本不動産協会東京都本部会員 | ||
| 公正取引協議会 | (公社)首都圏不動産公正取引協議会加盟 | ||
| 取扱い物件情報 | 物件詳細へ | ||
※各種情報と現状に差異がある場合は、現状優先となります。問い合わせをすることで、より詳しい条件、情報を確認する事ができます。
提供:センチュリー21(株)ロータスアセットパートナーズみんなのへや豊洲駅前店(SUUMO経由)
この物件が気になったら掲載期限まであと11日
THE TOKYO TOWERS MID TOWER ザ・東京タワーズに条件(家賃・エリア)が近い物件一覧
| 写真 | 家賃 管理費等 | 敷金 礼金 | 間取り 専有面積 | 築年数 | 最寄り駅 所在地 | キープ | 詳細 |
|---|---|---|---|---|---|---|---|
マンション ルフォンプログレ上野御徒町(2LDK/11階) | |||||||
![]() | 24.5万円 2.5万円 | 24.5万円 なし | 2LDK 45m2 | 築1年 | 都営大江戸線 新御徒町駅 徒歩5分 東京メトロ日比谷線 仲御徒町駅 徒歩5分 JR山手線 御徒町駅 徒歩8分 東京都台東区台東 | 詳細を見る | |
マンション パークアクシス青山骨董道り(1LDK/3階) | |||||||
![]() | 24万円 なし | 24万円 24万円 | 1LDK 39.43m2 | 築21年 | 東京メトロ銀座線 表参道駅 徒歩10分 東京メトロ日比谷線 広尾駅 徒歩15分 東京メトロ千代田線 乃木坂駅 徒歩16分 東京都港区南青山 | 詳細を見る | |
マンション ミラトーレ押上(2LDK/1階) | |||||||
![]() | 19.9万円 9,000円 | 19.9万円 19.9万円 | 2LDK 64.43m2 | 築4年 | 東武亀戸線 小村井駅 徒歩6分 京成押上線 京成曳舟駅 徒歩11分 東京メトロ半蔵門線 押上駅 徒歩20分 東京都墨田区八広 | 詳細を見る | |
マンション ザ・パークハビオ木場(1LDK/8階) | |||||||
![]() | 23万円 1.5万円 | 23万円 なし | 1LDK 42.03m2 | 築8年 | 東京メトロ東西線 木場駅 徒歩5分 東京都江東区木場 | 詳細を見る | |
マンション クレストフォルム上野グランステージ(3LDK/3階) | |||||||
![]() | 30万円 1.85万円 | 30万円 30万円 | 3LDK 75.94m2 | 築25年 | JR山手線 上野駅 徒歩5分 JR山手線 鶯谷駅 徒歩8分 東京メトロ日比谷線 入谷駅(東京) 徒歩8分 東京都台東区上野 | 詳細を見る | |
マンション リベルテ月島(1LDK/9階) | |||||||
![]() | 20.2万円 なし | 20.2万円 35.35万円 | 1LDK 45.19m2 | 築19年 | 東京メトロ有楽町線 月島駅 徒歩6分 JR京葉線 越中島駅 徒歩10分 都営大江戸線 門前仲町駅 徒歩13分 東京都中央区佃 | 詳細を見る | |
マンション パークアクシス豊洲(1LDK/4階) | |||||||
![]() | 26.9万円 7,000円 | 26.9万円 なし | 1LDK 58.21m2 | 築18年 | 東京メトロ有楽町線 豊洲駅 徒歩8分 新交通ゆりかもめ 豊洲駅 徒歩11分 東京メトロ有楽町線 月島駅 徒歩16分 東京都江東区豊洲 | 詳細を見る | |
マンション ジュネス(3LDK/5階) | |||||||
![]() | 20.6万円 9,000円 | 41.2万円 なし | 3LDK 70.68m2 | 築36年 | 都営新宿線 西大島駅 徒歩14分 都営新宿線 住吉駅(東京) 徒歩18分 東京メトロ半蔵門線 住吉駅(東京) 徒歩18分 東京都江東区北砂 | 詳細を見る | |








