賃貸アパート
ルシオ藤井寺の賃貸物件情報(2LDK/2階)
| 家賃 | 管理費等 | 敷金 | 礼金 | 間取り | 専有面積 |
|---|---|---|---|---|---|
| 7.8万円 | 5,000円 | なし | 10万円 | 2LDK | 64.24m2 |
入居決定でお祝い金最大100,000円
- 保証金
- -
- 償却・敷引
- -
- 築年数
- 築18年
- 所在階
- 2階
- 向き
- 南
Point
現地でのご案内やオンライン内覧も可能です♪また初期費用のカード一括決済や分割支払、PayPay決済が可能です!詳細はお問合せ下さい☆
提供:ミニミニFC藤井寺店(株)レントホーム(SUUMO経由)

詳細情報 ルシオ藤井寺
物件紹介
ルシオ藤井寺は近鉄南大阪線藤井寺駅から徒歩10分にあり、駅近で通勤通学に便利なアパートです。
このお部屋は2階以上に位置しているので、通行人や周囲の住人からの視線が気になりにくく、防犯面でも安心。建物のエントランスはオートロックがついており、インターホンにはTVモニタもついているため、相手の顔を確認してから来客対応することができます。
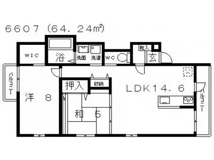
人気の南向き・フローリングのお部屋。角部屋でもあるため、周囲の居住者の生活音も気になりにくい場所です。室内にはウォークインクローゼットがありますので、たくさんの荷物も効率的に収納ができます。キッチンはシステムキッチン仕様になっていますので、お料理好きの方にもぴったり。バス・トイレは別なので、のんびりお風呂タイムも楽しめるでしょう。また、雨の日でも浴室乾燥機を使えば、お洗濯も問題ありません。
通信設備面では、インターネットが無料で使えるので、月々の出費を抑えられるのも魅力です。また、BSアンテナ・CSアンテナがありCATVにも対応しているので、おうち時間も充実するでしょう(別途工事、BS・CS・CATVの契約料等が必要な場合あり)。
床暖房があり、冬も足元から暖かく快適に過ごすことができます。共用部には宅配ボックスが設定されているので、不在の時にも荷物を受け取ることができます。
このお部屋は2階以上に位置しているので、通行人や周囲の住人からの視線が気になりにくく、防犯面でも安心。建物のエントランスはオートロックがついており、インターホンにはTVモニタもついているため、相手の顔を確認してから来客対応することができます。
人気の南向き・フローリングのお部屋。角部屋でもあるため、周囲の居住者の生活音も気になりにくい場所です。室内にはウォークインクローゼットがありますので、たくさんの荷物も効率的に収納ができます。キッチンはシステムキッチン仕様になっていますので、お料理好きの方にもぴったり。バス・トイレは別なので、のんびりお風呂タイムも楽しめるでしょう。また、雨の日でも浴室乾燥機を使えば、お洗濯も問題ありません。
通信設備面では、インターネットが無料で使えるので、月々の出費を抑えられるのも魅力です。また、BSアンテナ・CSアンテナがありCATVにも対応しているので、おうち時間も充実するでしょう(別途工事、BS・CS・CATVの契約料等が必要な場合あり)。
床暖房があり、冬も足元から暖かく快適に過ごすことができます。共用部には宅配ボックスが設定されているので、不在の時にも荷物を受け取ることができます。
お金・契約の情報
※「-」と表示されているものは、実際は料金が発生するものもございます。詳細はお問い合わせください。
| 家賃 | 7.8万円 | 管理費・共益費 | 5,000円 |
|---|---|---|---|
| 敷金 | なし | 礼金 | 10万円 |
| 入居決定でお祝い金最大100,000円 | |||
| 保証金 | - | 償却・敷引 | - |
| 住宅保険料 | - | 更新料 | - |
| 保証会社利用 | 必須 | 保証会社名 | - |
| 保証会社費用 | - | 保証会社備考 | 保証会社利用必 その他規定あり - |
| 契約形態 | - | 契約期間 | - |
| 入居・引渡期間 | 即時 | 現況 | - |
| 契約備考 | 即日案内可、即日内覧予約可! 外出不要内 契約可!オンライン内覧可! 2LDK 普通借家2年 損保【要】 バストイレ別、バルコニー、ガスコンロ対応、クロゼット、フローリング、シャワー付洗面台、TVインターホン、浴室乾燥機、オートロック、室内洗濯置、システムキッチン、追焚機能浴室、温水洗浄便座、脱衣所、洗面所独立、洗面化粧台、駐輪場、宅配ボックス、押入、CATV、即入居可、BS・CS、敷金不要、3口以上コンロ、対面式キッチン、防犯カメラ、照明付、全居室収納、オートバス、グリル付、振分、ウォークインクロゼット、保証人不要、バイク置場、CS、ネット専用回線、ネット使用料不要、床暖房、床下収納、保証金不要、雨戸、24時間換気システム、一部フローリング、2駅利用可、3駅以上利用可、駅徒歩10分以内、敷地内ごみ置き場、平面駐車場、LDK12畳以上、和室、都市ガス、洗面所にドア、縦型照明付洗面化粧台、シャッター、BS、年内入居可、年度内入居可、保証会社利用可、IT重説対応物件、初期費用カード決済可 | ||
部屋の情報
| 間取り | 2LDK | 専有面積 | 64.24m2 |
|---|---|---|---|
| 所在階 / 向き | 2階 / 南 | バルコニー面積 | - |
| 水道 / ガス | - | ||
| 設備 | バス・トイレ別、2階以上、オートロック、テレビドアホン、宅配ボックス、浴室乾燥機、ウォークインクローゼット、追い焚き、インターネット対応、システムキッチン、温水洗浄便座、南向き、バルコニー、フローリング、床下収納、洗髪洗面化粧台、床暖房、2口コンロ、コンロ:ガス、CATV、CSアンテナ、BSアンテナ、インターネット使用料無料、洗濯機:室内 | ||
| 当社物件ID | 14653195 | ||
建物の情報
| 建物名 | ルシオ藤井寺 | ||
|---|---|---|---|
| 所在地 | 大阪府藤井寺市藤井寺 | ||
| 交通 | 近鉄南大阪線 藤井寺駅 徒歩10分 近鉄南大阪線 高鷲駅 徒歩24分 近鉄南大阪線 土師ノ里駅 徒歩25分 | ||
| 階数 | 3階建 | 総戸数 | 6戸 |
| 築年月 | 2008年06月 / 築18年 | エレベーター | - |
| 駐車場 | 空有 9900円 | バイク置き場 | あり |
| 駐輪場 | あり | 管理人/管理会社 | - |
| 周辺環境 | その他 藤井寺市役所(役所)まで942m | ||
| 建物種別 | アパート | 建物構造 | 木造 |
この部屋の取扱い不動産会社
| 会社名 | (株)C&EMIRAI不動産(SUUMO経由) | ||
|---|---|---|---|
| 所在地 | 大阪府藤井寺市藤井寺1-1-17 第三芝田ビル1階 | 交通 | - |
| 営業時間 | 10:00~19:00 | 定休日 | - |
| 免許番号 | 大阪府知事64279 | 取引態様 | 仲介 |
| 不動産会社管理番号 | 100332831289 | 当社管理番号 | 89 |
| 所属団体 | (公社)全日本不動産協会大阪府本部会員 | ||
| 公正取引協議会 | (公社)近畿地区不動産公正取引協議会加盟 | ||
| 取扱い物件情報 | 物件詳細へ | ||
※各種情報と現状に差異がある場合は、現状優先となります。問い合わせをすることで、より詳しい条件、情報を確認する事ができます。
提供:(株)C&EMIRAI不動産(SUUMO経由)
この物件が気になったら掲載期限まであと11日
ルシオ藤井寺に条件(家賃・エリア)が近い物件一覧
| 写真 | 家賃 管理費等 | 敷金 礼金 | 間取り 専有面積 | 築年数 | 最寄り駅 所在地 | キープ | 詳細 |
|---|---|---|---|---|---|---|---|
マンション ステラコート(2LDK/1階) | |||||||
![]() | 7.3万円 1.05万円 | なし 10万円 | 2LDK 63.14m2 | 築23年 | 近鉄南大阪線 古市駅(大阪) 徒歩15分 近鉄長野線 古市駅(大阪) 徒歩15分 近鉄南大阪線 藤井寺駅 徒歩29分 大阪府羽曳野市軽里1丁目 | 詳細を見る | |
アパート ルミエール・K(1LDK/1階) | |||||||
![]() | 7万円 6,000円 | なし 8万円 | 1LDK 45.84m2 | 築15年 | 近鉄大阪線 河内国分駅 徒歩9分 近鉄大阪線 大阪教育大前駅 徒歩15分 関西本線 高井田駅(JR) 徒歩15分 大阪府柏原市国分本町7丁目 | 詳細を見る | |
マンション ハイツしらとり(3LDK/3階) | |||||||
![]() | 5.5万円 3,000円 | なし なし | 3LDK 58m2 | 築40年 | 近鉄南大阪線 古市駅(大阪) 徒歩7分 近鉄長野線 古市駅(大阪) 徒歩7分 近鉄南大阪線 道明寺駅 徒歩35分 大阪府羽曳野市西浦1丁目 | 詳細を見る | |
アパート カーサアリエッタ(1LDK/1階) | |||||||
![]() | 6.3万円 3,500円 | なし 6.5万円 | 1LDK 41.11m2 | 築13年 | 近鉄大阪線 河内国分駅 徒歩10分 関西本線 高井田駅(JR) 徒歩15分 近鉄大阪線 大阪教育大前駅 徒歩15分 大阪府柏原市国分本町7丁目 | 詳細を見る | |
マンション セジュール高井(3DK/2階) | |||||||
![]() | 5万円 3,000円 | なし なし | 3DK 50.34m2 | 築35年 | 近鉄大阪線 安堂駅 徒歩5分 近鉄大阪線 堅下駅 徒歩15分 関西本線 柏原駅(大阪) 徒歩15分 大阪府柏原市安堂町 | 詳細を見る | |
マンション タウンコート咲久良(3LDK/1階) | |||||||
![]() | 7.9万円 1.1万円 | なし 17万円 | 3LDK 60m2 | 築30年 | 近鉄大阪線 近鉄八尾駅 徒歩8分 関西本線 八尾駅 徒歩17分 大阪府八尾市本町2丁目 | 詳細を見る | |
アパート FSTYLE八尾・植松町(1LDK/2階) | |||||||
![]() | 6.48万円 6,000円 | なし 8万円 | 1LDK 30.62m2 | 築3年 | 関西本線 八尾駅 徒歩7分 関西本線 久宝寺駅 徒歩20分 近鉄大阪線 近鉄八尾駅 徒歩29分 大阪府八尾市植松町7丁目 | 詳細を見る | |
アパート レトア白鳥(2LDK/1階) | |||||||
![]() | 6.3万円 4,000円 | なし 3万円 | 2LDK 50.08m2 | 築27年 | 近鉄南大阪線 古市駅(大阪) 徒歩3分 近鉄長野線 古市駅(大阪) 徒歩3分 近鉄南大阪線 道明寺駅 徒歩25分 大阪府羽曳野市白鳥2丁目 | 詳細を見る | |








