賃貸マンション
サクセスの賃貸物件情報(1K/3階)
| 家賃 | 管理費等 | 敷金 | 礼金 | 間取り | 専有面積 |
|---|---|---|---|---|---|
| 3.4万円 | 2,200円 | なし | なし | 1K | 22m2 |
入居決定でお祝い金最大100,000円
Point
スマホ等を使って【LINEでのお問合せ】【オンライン内見】【オンライン重説】でのご契約手続きまで、非対面での対応が可能です!マンション・アパート・貸家など賃貸住宅を借りるならいい部屋ネット岡山東店へ♪
提供:いい部屋ネット大東建託リーシング(株)岡山東店(SUUMO経由)

詳細情報 サクセス
物件紹介
サクセスはJR山陽本線西川原駅から徒歩7分にあり、駅近で通勤通学に便利なマンションです。
このお部屋は2階以上に位置しているので、通行人や周囲の住人からの視線が気になりにくく、防犯面でも安心。インターホンにはTVモニタもついているため、相手の顔を確認してから来客対応することができます。
人気の南向きのお部屋。バス・トイレ別の仕様で、のんびりお風呂タイムも楽しめます。
通信設備面では、インターネットが無料で使えるので、月々の出費を抑えられるのも魅力です(別途工事等が必要な場合あり)。
このお部屋は2階以上に位置しているので、通行人や周囲の住人からの視線が気になりにくく、防犯面でも安心。インターホンにはTVモニタもついているため、相手の顔を確認してから来客対応することができます。
人気の南向きのお部屋。バス・トイレ別の仕様で、のんびりお風呂タイムも楽しめます。
通信設備面では、インターネットが無料で使えるので、月々の出費を抑えられるのも魅力です(別途工事等が必要な場合あり)。
お金・契約の情報
※「-」と表示されているものは、実際は料金が発生するものもございます。詳細はお問い合わせください。
| 家賃 | 3.4万円 | 管理費・共益費 | 2,200円 |
|---|---|---|---|
| 敷金 | なし | 礼金 | なし |
| 入居決定でお祝い金最大100,000円 | |||
| 保証金 | - | 償却・敷引 | - |
| 住宅保険料 | - | 更新料 | - |
| 契約形態 | - | 契約期間 | - |
| 入居・引渡期間 | - | 現況 | - |
| 契約備考 | カギ交換費用:19800円(税込) 合計3.41万円(内訳:カギ交換費用(税込)1.98万円鍵交換代1.43万円) 1K 単身者限定/子供不可/事務所利用不可/ルームシェア不可 損保【1.6万円2年】 バストイレ別、バルコニー、エアコン、TVインターホン、室内洗濯置、シューズボックス、温水洗浄便座、2口コンロ、駐輪場、最上階、IHクッキングヒーター、照明付、冷蔵庫、ネット専用回線、洗濯機、ネット使用料不要、家電付、駅徒歩10分以内、敷地内ごみ置き場、プロパンガス、南面バルコニー、敷金・礼金不要、保証会社利用可、IT重説対応物件 入居日:'26年4月下旬 | ||
部屋の情報
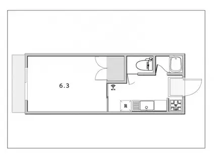
| 間取り | 1K | 専有面積 | 22m2 |
|---|---|---|---|
| 所在階 / 向き | 3階 / 南 | バルコニー面積 | - |
| 水道 / ガス | - | ||
| 設備 | バス・トイレ別、2階以上、テレビドアホン、インターネット対応、エアコン、温水洗浄便座、南向き、バルコニー、2口コンロ、コンロ:IH、インターネット使用料無料、洗濯機:室内 | ||
| 当社物件ID | 12701239 | ||
建物の情報
| 建物名 | サクセス | ||
|---|---|---|---|
| 所在地 | 岡山県岡山市中区西川原 | ||
| 交通 | JR山陽本線 西川原駅 徒歩7分 | ||
| 階数 | 3階建 | 総戸数 | - |
| 築年月 | 1989年03月 / 築38年 | エレベーター | - |
| 駐車場 | 空有 4400円 | バイク置き場 | - |
| 駐輪場 | あり | 管理人/管理会社 | - |
| 周辺環境 | その他 就実大学(大学・短大)まで403m その他 丸亀製麺 岡山東川原店(飲食店)まで441m その他 おかやまコープ コープ東川原(スーパー)まで575m その他 ウエルシア 岡山浜店(ドラッグストア)まで1205m その他 ファミリーマート 岡山西川原一丁目店(コンビニ)まで577m その他 くすりのラブ 東川原店(ドラッグストア)まで638m | ||
| 建物種別 | マンション | 建物構造 | RC(鉄筋コンクリート) |
この部屋の取扱い不動産会社
| 会社名 | いい部屋ネット大東建託リーシング(株)岡山東店(SUUMO経由) | ||
|---|---|---|---|
| 所在地 | 岡山県岡山市中区長岡 335-4 | 交通 | - |
| 営業時間 | 10:00~12:30、13:30~18:00 | 定休日 | 火曜日・水曜日 |
| 免許番号 | 国土交通大臣9120 | 取引態様 | 仲介 |
| 不動産会社管理番号 | 100494318832 | 当社管理番号 | 89 |
| 所属団体 | (公財)日本賃貸住宅管理協会会員 | ||
| 公正取引協議会 | (公社)首都圏不動産公正取引協議会加盟 | ||
| 取扱い物件情報 | 物件詳細へ | ||
※各種情報と現状に差異がある場合は、現状優先となります。問い合わせをすることで、より詳しい条件、情報を確認する事ができます。
提供:いい部屋ネット大東建託リーシング(株)岡山東店(SUUMO経由)
この物件が気になったら掲載期限まであと11日
サクセスに条件(家賃・エリア)が近い物件一覧
| 写真 | 家賃 管理費等 | 敷金 礼金 | 間取り 専有面積 | 築年数 | 最寄り駅 所在地 | キープ | 詳細 |
|---|---|---|---|---|---|---|---|
マンション アルファさくら(2LDK/6階) | |||||||
![]() | 5.2万円 5,000円 | なし 5.2万円 | 2LDK 48.06m2 | 築36年 | 岡山電軌清輝橋線 清輝橋駅 徒歩15分 岡山電軌東山本線 門田屋敷駅 徒歩17分 岡山電軌清輝橋線 東中央町駅 徒歩17分 岡山県岡山市中区桜橋3丁目 | 詳細を見る | |
アパート リビンハウス原尾島(1K/2階) | |||||||
![]() | 3.7万円 なし | なし なし | 1K 25.92m2 | 築25年 | 山陽本線 高島駅(岡山) 徒歩25分 山陽本線 西川原駅 徒歩30分 岡山県岡山市中区原尾島2丁目 | 詳細を見る | |
マンション ブライトライツ高島(1K/4階) | |||||||
![]() | 3.6万円 3,000円 | なし 3.6万円 | 1K 25m2 | 築36年 | 山陽本線 高島駅(岡山) 徒歩11分 山陽本線 東岡山駅 徒歩33分 山陽本線 西川原駅 徒歩38分 岡山県岡山市中区中井1丁目 | 詳細を見る | |
アパート SAMAX PRENDRE(1K/1階) | |||||||
![]() | 3.6万円 2,000円 | なし 3.6万円 | 1K 20m2 | 築31年 | 岡山県岡山市中区福泊 | 詳細を見る | |
アパート コンチネンタル学南町(ワンルーム/3階) | |||||||
![]() | 3.4万円 なし | なし なし | ワンルーム 15m2 | 築41年 | 津山線 法界院駅 徒歩9分 山陽本線 西川原駅 徒歩27分 山陽本線 岡山駅 徒歩31分 岡山県岡山市北区学南町2丁目 | 詳細を見る | |
アパート フレンディセキ(2DK/1階) | |||||||
![]() | 4.5万円 2,500円 | 4.62万円 なし | 2DK 40.5m2 | 築31年 | 岡山県岡山市中区関 | 詳細を見る | |
アパート REVE中島(ワンルーム/3階) | |||||||
![]() | 5万円 3,000円 | なし 5万円 | ワンルーム 25.76m2 | 築10年 | 山陽本線 西川原駅 徒歩19分 山陽本線 高島駅(岡山) 徒歩24分 津山線 法界院駅 徒歩34分 岡山県岡山市中区中島 | 詳細を見る | |
アパート ノーベル海吉(1LDK/2階) | |||||||
![]() | 4.5万円 2,500円 | なし なし | 1LDK 42.48m2 | 築20年 | JR赤穂線 大多羅駅 徒歩38分 岡山県岡山市中区海吉 | 詳細を見る | |









