賃貸アパート
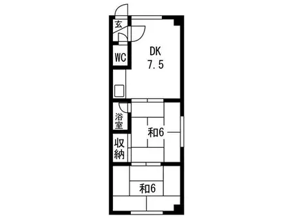
広井ビルの賃貸物件情報(2LDK/2階)
| 家賃 | 管理費等 | 敷金 | 礼金 | 間取り | 専有面積 |
|---|---|---|---|---|---|
| 4.3万円 | なし | 4.3万円 | なし | 2LDK | 40m2 |
入居決定でお祝い金最大100,000円
- 保証金
- -
- 償却・敷引
- -
- 築年数
- 築44年
- 所在階
- 2階
- 向き
- -
Point
閑静な住宅地にある敷金礼金無しで初期費用を抑えることができる2DK☆暖房は灯油なので経済的です◎諸条件ご相談に乗れますのでお問い合わせ下さい♪
提供:北章ハウザー麻生店(株)ハウスプロデュース(SUUMO経由)

詳細情報 広井ビル
物件紹介
広井ビルはJR札沼線新川駅から徒歩27分にあるアパートです。
このお部屋は2階以上に位置しているので、通行人や周囲の住人からの視線が気になりにくく、防犯面でも安心です。
人気の角部屋で周囲の居住者の生活音も気になりにくく、また、フローリングのお部屋なのでお掃除もラクラク。バス・トイレ別の仕様で、のんびりお風呂タイムも楽しめます。
このお部屋は2階以上に位置しているので、通行人や周囲の住人からの視線が気になりにくく、防犯面でも安心です。
人気の角部屋で周囲の居住者の生活音も気になりにくく、また、フローリングのお部屋なのでお掃除もラクラク。バス・トイレ別の仕様で、のんびりお風呂タイムも楽しめます。
お金・契約の情報
※「-」と表示されているものは、実際は料金が発生するものもございます。詳細はお問い合わせください。
| 家賃 | 4.3万円 | 管理費・共益費 | なし |
|---|---|---|---|
| 敷金 | 4.3万円 | 礼金 | なし |
| 入居決定でお祝い金最大100,000円 | |||
| 保証金 | - | 償却・敷引 | - |
| 住宅保険料 | - | 更新料 | - |
| 保証会社利用 | 必須 | 保証会社名 | - |
| 保証会社費用 | - | 保証会社備考 | 保証会社利用必 [保証料備考]保証契約期間1年、契約料は月額総賃料(管理費・駐車場代含む)の50 100%(審査状況により変動) |
| 契約形態 | - | 契約期間 | - |
| 入居・引渡期間 | 即時 | 現況 | - |
| 契約備考 | 巡回管理/当店は札幌市内全域・石狩・小樽・江別等・周辺地域の物件紹介も可能!売買・管理案件・引越業者の手配・不用品の撤去依頼の連携等可能!当店は麻生駅から徒歩1分、JR新琴似駅から5分で北の繁華街となっております!お客様駐車場もございますので、ご利用の方はお気軽にお申し付けください。『この会社、この人に頼んで良かった!』と心から思って頂けるよう、誠心誠意、親切丁寧に対応させて頂きます! 合計7.15万円(内訳:水廻り消毒料3.3万円ストーブ分解清掃料2.75万円鍵交換代1.1万円) 2LDK ルームシェア相談 普通借家2年 損保【2.5万円2年】 バストイレ別、ガスコンロ対応、クロゼット、フローリング、シャワー付洗面台、室内洗濯置、陽当り良好、角住戸、温水洗浄便座、脱衣所、即入居可、礼金不要、閑静な住宅地、全居室洋室、灯油暖房、保証人不要、単身者相談、二人入居相談、24時間緊急通報システム、駅まで平坦、24時間換気システム、複層ガラス、平坦地、ルームシェア相談、学生相談、敷地内ごみ置き場、プロパンガス、洗面所にドア、保証会社利用可、IT重説対応物件、初期費用カード決済可 | ||
部屋の情報
| 間取り | 2LDK | 専有面積 | 40m2 |
|---|---|---|---|
| 所在階 / 向き | 2階 / - | バルコニー面積 | - |
| 水道 / ガス | - | ||
| 設備 | バス・トイレ別、2階以上、温水洗浄便座、角部屋、フローリング、コンロ:ガス、洗濯機:室内 | ||
| 当社物件ID | 19799709 | ||
建物の情報
| 建物名 | 広井ビル | ||
|---|---|---|---|
| 所在地 | 北海道札幌市北区新琴似一条 | ||
| 交通 | JR札沼線 新川駅(北海道) 徒歩27分 JR札沼線 新琴似駅 徒歩34分 地下鉄南北線 麻生駅 徒歩34分 | ||
| 階数 | 3階建 | 総戸数 | 10戸 |
| 築年月 | 1982年04月 / 築44年 | エレベーター | - |
| 駐車場 | なし | バイク置き場 | - |
| 駐輪場 | - | 管理人/管理会社 | - |
| 周辺環境 | その他 コープさっぽろ しんことに店(スーパー)まで306m その他 ビッグハウス 新川店(スーパー)まで770m その他 クロスモール新琴似(ショッピングセンター)まで493m その他 サンキ新琴似店(ショッピングセンター)まで1558m その他 MEGAドン・キホーテ新川店(その他)まで1008m その他 キャン・ドゥ ラッキー新琴似四番通店(その他)まで1381m | ||
| 建物種別 | アパート | 建物構造 | 木造 |
この部屋の取扱い不動産会社
| 会社名 | 北章ハウザー麻生店(株)ハウスプロデュース(SUUMO経由) | ||
|---|---|---|---|
| 所在地 | 北海道札幌市北区麻生町5-4-15 | 交通 | - |
| 営業時間 | 9:30~19:00 | 定休日 | 年末年始 |
| 免許番号 | 北海道知事石狩8128 | 取引態様 | 仲介 |
| 不動産会社管理番号 | 100459418554 | 当社管理番号 | 89 |
| 所属団体 | (公社)北海道宅地建物取引業協会会員 | ||
| 公正取引協議会 | (一社)北海道不動産公正取引協議会加盟 | ||
| 取扱い物件情報 | 物件詳細へ | ||
※各種情報と現状に差異がある場合は、現状優先となります。問い合わせをすることで、より詳しい条件、情報を確認する事ができます。
提供:北章ハウザー麻生店(株)ハウスプロデュース(SUUMO経由)
この物件が気になったら掲載期限まであと11日
広井ビルに条件(家賃・エリア)が近い物件一覧
| 写真 | 家賃 管理費等 | 敷金 礼金 | 間取り 専有面積 | 築年数 | 最寄り駅 所在地 | キープ | 詳細 |
|---|---|---|---|---|---|---|---|
アパート COZY COURT(1LDK/2階) | |||||||
![]() | 4.2万円 4,000円 | なし なし | 1LDK 33.44m2 | 築18年 | JR函館本線 大麻駅 徒歩11分 北海道江別市文京台東町 | 詳細を見る | |
アパート ファミールヒロ(2LDK/1階) | |||||||
![]() | 3.95万円 2,200円 | なし なし | 2LDK 50.51m2 | 築31年 | JR千歳線 サッポロビール庭園駅 徒歩10分 JR千歳線 恵庭駅 徒歩25分 JR千歳線 長都駅 徒歩57分 北海道恵庭市和光町 | 詳細を見る | |
マンション ビレッジハウス野幌9号棟(3DK/1階) | |||||||
![]() | 5.2万円 なし | なし なし | 3DK 64.62m2 | 築63年 | 函館本線 野幌駅 徒歩14分 北海道江別市東野幌町 | 詳細を見る | |
マンション ロイヤルパレス23(2LDK/4階) | |||||||
![]() | 4.1万円 6,000円 | なし なし | 2LDK 50.32m2 | 築34年 | 函館本線 野幌駅 徒歩6分 北海道江別市野幌町 | 詳細を見る | |
アパート グランソレイユ麻生(1DK/3階) | |||||||
![]() | 4.2万円 なし | 4.2万円 なし | 1DK 24.43m2 | 築19年 | 地下鉄南北線 麻生駅 徒歩3分 JR札沼線 新琴似駅 徒歩12分 地下鉄南北線 北34条駅 徒歩14分 北海道札幌市北区北三十八条西 | 詳細を見る | |
アパート サクシードN33E5(1LDK/2階) | |||||||
![]() | 4万円 3,000円 | なし なし | 1LDK 33.82m2 | 築19年 | 地下鉄南北線 北34条駅 徒歩15分 地下鉄東豊線 新道東駅 徒歩15分 地下鉄南北線 北24条駅 徒歩20分 北海道札幌市東区北三十三条東 | 詳細を見る | |
アパート フランミルトマンションA(2LDK/2階) | |||||||
![]() | 4.9万円 2,500円 | なし なし | 2LDK 55.31m2 | 築22年 | 北海道札幌市北区東茨戸二条3丁目 | 詳細を見る | |
マンション メゾンクレスト北大前(ワンルーム/3階) | |||||||
![]() | 3万円 5,000円 | 6万円 なし | ワンルーム 21m2 | 築37年 | 札幌市南北線 北18条駅 徒歩4分 北海道札幌市北区北十九条西4丁目 | 詳細を見る | |




/105x80-f1-q70-wp1)
/105x80-f1-q70-wp1)



