賃貸マンション
グラマシー横濱関内の賃貸物件情報(1LDK/2階)
| 家賃 | 管理費等 | 敷金 | 礼金 | 間取り | 専有面積 |
|---|---|---|---|---|---|
| 14万円 | 8,000円 | なし | なし | 1LDK | 38.45m2 |
入居決定でお祝い金最大100,000円
- 保証金
- -
- 償却・敷引
- -
- 築年数
- 築17年
- 所在階
- 2階
- 向き
- -
Point
・人気の横浜エリア、駅徒歩5分の好立地・ペット飼育相談可能物件・オートロック付きでセキュリティも安心
提供:(株)湘南ライヴ関内店(SUUMO経由)

詳細情報 グラマシー横濱関内
物件紹介
グラマシー横濱関内はJR京浜東北線関内駅から徒歩5分にあり、駅近で通勤通学に便利なマンションです。
このお部屋は2階以上に位置しているので、通行人や周囲の住人からの視線が気になりにくく、防犯面でも安心。建物のエントランスはオートロックがついており、インターホンにはTVモニタもついているため、相手の顔を確認してから来客対応することができます。
人気の角部屋で周囲の居住者の生活音も気になりにくく、また、フローリングのお部屋なのでお掃除もラクラク。キッチンはシステムキッチン仕様になっていますので、お料理好きの方にもぴったり。バス・トイレは別なので、のんびりお風呂タイムも楽しめるでしょう。また、雨の日でも浴室乾燥機を使えば、お洗濯も問題ありません。
通信設備面では、インターネットが無料で使えるので、月々の出費を抑えられるのも魅力です。また、BSアンテナ・CSアンテナもありますので、おうち時間も充実するでしょう(別途工事、BS・CSの契約料等が必要な場合あり)。
建物にはエレベーターがついているので、重い荷物があっても安心。共用部には宅配ボックスが設定されているので、不在の時にも荷物を受け取ることができます。また、ペット飼育の相談ができますので、あなたの大切な家族の一員も快適に暮らせるか、ぜひ確認してみてください。
このお部屋は2階以上に位置しているので、通行人や周囲の住人からの視線が気になりにくく、防犯面でも安心。建物のエントランスはオートロックがついており、インターホンにはTVモニタもついているため、相手の顔を確認してから来客対応することができます。
人気の角部屋で周囲の居住者の生活音も気になりにくく、また、フローリングのお部屋なのでお掃除もラクラク。キッチンはシステムキッチン仕様になっていますので、お料理好きの方にもぴったり。バス・トイレは別なので、のんびりお風呂タイムも楽しめるでしょう。また、雨の日でも浴室乾燥機を使えば、お洗濯も問題ありません。
通信設備面では、インターネットが無料で使えるので、月々の出費を抑えられるのも魅力です。また、BSアンテナ・CSアンテナもありますので、おうち時間も充実するでしょう(別途工事、BS・CSの契約料等が必要な場合あり)。
建物にはエレベーターがついているので、重い荷物があっても安心。共用部には宅配ボックスが設定されているので、不在の時にも荷物を受け取ることができます。また、ペット飼育の相談ができますので、あなたの大切な家族の一員も快適に暮らせるか、ぜひ確認してみてください。
お金・契約の情報
※「-」と表示されているものは、実際は料金が発生するものもございます。詳細はお問い合わせください。
| 家賃 | 14万円 | 管理費・共益費 | 8,000円 |
|---|---|---|---|
| 敷金 | なし | 礼金 | なし |
| 入居決定でお祝い金最大100,000円 | |||
| 保証金 | - | 償却・敷引 | - |
| 住宅保険料 | - | 更新料 | - |
| 保証会社利用 | 必須 | 保証会社名 | - |
| 保証会社費用 | - | 保証会社備考 | 保証会社利用必 初回:総賃料50%/月総賃料1% |
| 契約形態 | - | 契約期間 | - |
| 入居・引渡期間 | - | 現況 | - |
| 入居可能条件 | ペット相談 | ||
| 契約備考 | 巡回管理/退去時清掃費用:44000円退去時エアコンクリーニング費用:38500円短期解約違約金:1年以内賃料1ヶ月分 合計2.2万円(内訳:鍵交換代2.2万円) 更新料 新賃料1.00ヶ月分 1LDK 二人入居可/ペット相談 普通借家2年 損保【要】 バストイレ別、バルコニー、エアコン、クロゼット、フローリング、TVインターホン、浴室乾燥機、オートロック、室内洗濯置、陽当り良好、シューズボックス、システムキッチン、角住戸、温水洗浄便座、脱衣所、エレベーター、洗面所独立、洗面化粧台、駐輪場、宅配ボックス、礼金不要、2面採光、3口以上コンロ、防犯カメラ、ペット相談、IHクッキングヒーター、照明付、保証人不要、24時間緊急通報システム、2沿線利用可、ディンプルキー、CS、駅まで平坦、ネット使用料不要、眺望良好、浴室に窓、敷地内ごみ置き場、都市ガス、BS、敷金・礼金不要、IT重説対応物件、初期費用カード決済可 敷金積み増し【ペット飼育の場合敷金1ヶ月(総額)】 入居日:'26年2月中旬 | ||
部屋の情報
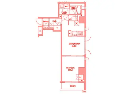
| 間取り | 1LDK | 専有面積 | 38.45m2 |
|---|---|---|---|
| 所在階 / 向き | 2階 / - | バルコニー面積 | - |
| 水道 / ガス | - | ||
| 設備 | バス・トイレ別、2階以上、オートロック、テレビドアホン、宅配ボックス、浴室乾燥機、インターネット対応、システムキッチン、エアコン、エレベーター、温水洗浄便座、角部屋、バルコニー、フローリング、洗髪洗面化粧台、2口コンロ、コンロ:IH、CSアンテナ、BSアンテナ、インターネット使用料無料、洗濯機:室内 | ||
| 当社物件ID | 102236434 | ||
建物の情報
| 建物名 | グラマシー横濱関内 | ||
|---|---|---|---|
| 所在地 | 神奈川県横浜市中区扇町 | ||
| 交通 | JR京浜東北線 関内駅 徒歩5分 ブルーライン 伊勢佐木長者町駅 徒歩6分 JR京浜東北線 石川町駅 徒歩9分 | ||
| 階数 | 10階建 | 総戸数 | - |
| 築年月 | 2009年07月 / 築17年 | エレベーター | あり |
| 駐車場 | なし | バイク置き場 | - |
| 駐輪場 | あり | 管理人/管理会社 | - |
| 周辺環境 | その他 ミニストップ 関内店(コンビニ)まで84m その他 ローソンストア100 横浜扇町店(コンビニ)まで156m その他 すき家 関内店(飲食店)まで232m その他 セブンイレブン 横浜不老町1丁目店(コンビニ)まで215m その他 なか卯 関内店(飲食店)まで238m その他 マクドナルド 関内南口店(飲食店)まで281m | ||
| 建物種別 | マンション | 建物構造 | RC(鉄筋コンクリート) |
この部屋の取扱い不動産会社
| 会社名 | (株)湘南ライヴ関内店(SUUMO経由) | ||
|---|---|---|---|
| 所在地 | 神奈川県横浜市中区不老町1-6-9 第一HBビル6階 | 交通 | - |
| 営業時間 | 10時~19時(19時以降も相談可) | 定休日 | 水曜日(1月~4月は営業) |
| 免許番号 | 神奈川県知事31018 | 取引態様 | 仲介 |
| 不動産会社管理番号 | 100480282670 | 当社管理番号 | 89 |
| 所属団体 | (公社)全日本不動産協会神奈川県本部会員 | ||
| 公正取引協議会 | (公社)首都圏不動産公正取引協議会加盟 | ||
| 取扱い物件情報 | 物件詳細へ | ||
※各種情報と現状に差異がある場合は、現状優先となります。問い合わせをすることで、より詳しい条件、情報を確認する事ができます。
提供:(株)湘南ライヴ関内店(SUUMO経由)
この物件が気になったら掲載期限まであと10日
グラマシー横濱関内に条件(家賃・エリア)が近い物件一覧
| 写真 | 家賃 管理費等 | 敷金 礼金 | 間取り 専有面積 | 築年数 | 最寄り駅 所在地 | キープ | 詳細 |
|---|---|---|---|---|---|---|---|
マンション デュオステージ藤沢(ワンルーム/10階) | |||||||
![]() | 13.9万円 6,000円 | 13.9万円 13.9万円 | ワンルーム 33.24m2 | 築1年 | JR東海道本線 藤沢駅 徒歩8分 小田急江ノ島線 藤沢駅 徒歩9分 江ノ島電鉄線 藤沢駅 徒歩10分 神奈川県藤沢市藤沢 | 詳細を見る | |
マンション LOG桜木町CLASSIC(1K/5階) | |||||||
![]() | 11.1万円 1.1万円 | なし 11.1万円 | 1K 20.42m2 | 築5年 | 京急本線 日ノ出町駅 徒歩2分 京急本線 黄金町駅 徒歩10分 JR根岸線 桜木町駅 徒歩10分 神奈川県横浜市西区東ケ丘 | 詳細を見る | |
アパート ファミーユ(1LDK/3階) | |||||||
![]() | 11.5万円 4,100円 | なし 17.3万円 | 1LDK 50.05m2 | 築6年 | JR南武線 武蔵新城駅 徒歩24分 東急田園都市線 高津駅(神奈川) 徒歩25分 神奈川県川崎市高津区下野毛 | 詳細を見る | |
マンション ドミール・トモ(1K/1階) | |||||||
![]() | 8.6万円 3,000円 | 8.6万円 8.6万円 | 1K 28m2 | 築19年 | 東急東横線 元住吉駅 徒歩10分 グリーンライン 日吉駅(神奈川) 徒歩13分 神奈川県川崎市中原区木月 | 詳細を見る | |
アパート グランウェル(1LDK/3階) | |||||||
![]() | 11.4万円 6,000円 | なし 17.1万円 | 1LDK 40.35m2 | 築8年 | JR横須賀線 北鎌倉駅 徒歩9分 湘南モノレール 富士見町駅(神奈川) 徒歩17分 神奈川県鎌倉市台 | 詳細を見る | |
マンション ドムスたまプラーザ(2LDK/1階) | |||||||
![]() | 9.9万円 6,000円 | 9.9万円 なし | 2LDK 52.16m2 | 築37年 | 東急田園都市線 たまプラーザ駅 徒歩11分 東急田園都市線 鷺沼駅 徒歩14分 ブルーライン あざみ野駅 徒歩27分 神奈川県川崎市宮前区犬蔵 | 詳細を見る | |
マンション ARK AT EASE(1LDK/3階) | |||||||
![]() | 12.2万円 3,000円 | 12.2万円 12.2万円 | 1LDK 47.75m2 | 築14年 | JR南武線 津田山駅 徒歩9分 東急田園都市線 溝の口駅 徒歩14分 JR南武線 武蔵溝ノ口駅 徒歩15分 神奈川県川崎市高津区上作延 | 詳細を見る | |
アパート INFINITY∞(1LDK/2階) | |||||||
![]() | 9.9万円 3,000円 | 9.9万円 9.9万円 | 1LDK 33.61m2 | 築3年 | 京急大師線 港町駅 徒歩15分 京急大師線 鈴木町駅 徒歩27分 JR東海道本線 川崎駅 徒歩30分 神奈川県川崎市川崎区中島 | 詳細を見る | |









