賃貸アパート
CREER RIVIEREIIIの賃貸物件情報(2LDK/9階)
| 家賃 | 管理費等 | 敷金 | 礼金 | 間取り | 専有面積 |
|---|---|---|---|---|---|
| 14.2万円 | 8,000円 | 14.2万円 | 14.2万円 | 2LDK | 57.86m2 |
入居決定でお祝い金最大100,000円
- 保証金
- -
- 償却・敷引
- -
- 築年数
- 築3年
- 所在階
- 9階
- 向き
- -
Point
お問合せ・見学予約はお得満載ピタットハウスへ!初めてのお部屋探しでも安心♪無料送迎・駐車場料金の全額負担、サービスが盛り沢山☆詳しくは→http://www.livedsn.com
提供:ピタットハウス垂水店(株)ライブデザイン兵庫(SUUMO経由)

詳細情報 CREER RIVIEREIII
物件紹介
CREER RIVIEREIIIは山陽電鉄本線東垂水駅から徒歩7分にあり、駅近で通勤通学に便利なアパートです。
このお部屋は2階以上に位置しているので、通行人や周囲の住人からの視線が気になりにくく、防犯面でも安心。建物のエントランスはオートロックがついており、インターホンにはTVモニタもついているため、相手の顔を確認してから来客対応することができます。
フローリングのお部屋なのでお掃除もラクラク。キッチンはシステムキッチン仕様になっていますので、お料理好きの方にもぴったり。バス・トイレは別なので、のんびりお風呂タイムも楽しめるでしょう。また、雨の日でも浴室乾燥機を使えば、お洗濯も問題ありません。
通信設備面では、インターネットが無料で使えるので、月々の出費を抑えられるのも魅力です(別途工事等が必要な場合あり)。
建物にはエレベーターがついているので、重い荷物があっても安心。共用部には宅配ボックスが設定されているので、不在の時にも荷物を受け取ることができます。
このお部屋は2階以上に位置しているので、通行人や周囲の住人からの視線が気になりにくく、防犯面でも安心。建物のエントランスはオートロックがついており、インターホンにはTVモニタもついているため、相手の顔を確認してから来客対応することができます。
フローリングのお部屋なのでお掃除もラクラク。キッチンはシステムキッチン仕様になっていますので、お料理好きの方にもぴったり。バス・トイレは別なので、のんびりお風呂タイムも楽しめるでしょう。また、雨の日でも浴室乾燥機を使えば、お洗濯も問題ありません。
通信設備面では、インターネットが無料で使えるので、月々の出費を抑えられるのも魅力です(別途工事等が必要な場合あり)。
建物にはエレベーターがついているので、重い荷物があっても安心。共用部には宅配ボックスが設定されているので、不在の時にも荷物を受け取ることができます。
お金・契約の情報
※「-」と表示されているものは、実際は料金が発生するものもございます。詳細はお問い合わせください。
| 家賃 | 14.2万円 | 管理費・共益費 | 8,000円 |
|---|---|---|---|
| 敷金 | 14.2万円 | 礼金 | 14.2万円 |
| 入居決定でお祝い金最大100,000円 | |||
| 保証金 | - | 償却・敷引 | - |
| 住宅保険料 | - | 更新料 | - |
| 保証会社利用 | 必須 | 保証会社名 | 日本セーフティー |
| 保証会社費用 | - | 保証会社備考 | 日本セーフティー利用必 初回保証料:総賃料50~100%(保証人有無で変動有 更新料有)詳細はスタッフにお尋ねください |
| 契約形態 | - | 契約期間 | - |
| 入居・引渡期間 | 即時 | 現況 | - |
| 契約備考 | 物件情報ページをご覧いただき誠にありがとうございます!インターネットで募集中の物件は全て弊社でご紹介可能です!もちろんまとめてご案内も可能です!また、他社様でご紹介されている物件も弊社でご紹介の場合、様々な交渉が可能な物件も多数ございます。お問い合わせは【TEL:】までお電話ください!※当日のご内見予約も可能!是非、ピタットハウス垂水店へお越しください! 合計3.3万円(内訳:鍵交換費用33000円) 2LDK 単身者可/二人入居可 普通借家2年 損保【2万円2年】 バストイレ別、バルコニー、ガスコンロ対応、クロゼット、フローリング、TVインターホン、浴室乾燥機、オートロック、室内洗濯置、陽当り良好、シューズボックス、システムキッチン、追焚機能浴室、温水洗浄便座、脱衣所、エレベーター、洗面所独立、洗面化粧台、2口コンロ、駐輪場、宅配ボックス、即入居可、閑静な住宅地、最上階、3口以上コンロ、対面式キッチン、グリル付、全居室洋室、敷金1ヶ月、全居室フローリング、2沿線利用可、LDK15畳以上、ネット専用回線、駅まで平坦、ネット使用料不要、眺望良好、雨戸、24時間換気システム、平坦地、築3年以内、3駅以上利用可、バス2路線、駅徒歩10分以内、上階無し、都市ガス、洗面所にドア、礼金1ヶ月、IT重説対応物件、初期費用カード決済可、通風良好 | ||
部屋の情報
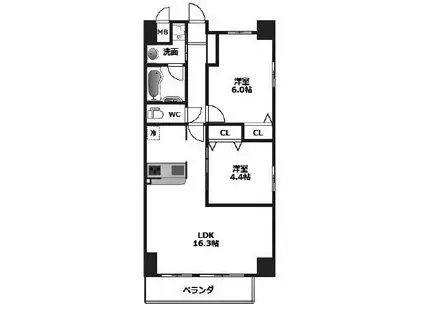
| 間取り | 2LDK | 専有面積 | 57.86m2 |
|---|---|---|---|
| 所在階 / 向き | 9階 / - | バルコニー面積 | - |
| 水道 / ガス | - | ||
| 設備 | バス・トイレ別、2階以上、オートロック、テレビドアホン、宅配ボックス、浴室乾燥機、追い焚き、インターネット対応、システムキッチン、エレベーター、温水洗浄便座、バルコニー、フローリング、洗髪洗面化粧台、2口コンロ、コンロ:ガス、インターネット使用料無料、洗濯機:室内 | ||
| 当社物件ID | 135780041 | ||
建物の情報
| 建物名 | CREER RIVIEREIII | ||
|---|---|---|---|
| 所在地 | 兵庫県神戸市垂水区川原 | ||
| 交通 | 山陽電鉄本線 東垂水駅 徒歩7分 山陽電鉄本線 山陽垂水駅 徒歩8分 JR山陽本線 垂水駅 徒歩9分 | ||
| 階数 | 9階建 | 総戸数 | - |
| 築年月 | 2023年07月 / 築3年 | エレベーター | あり |
| 駐車場 | 空有 16500円 | バイク置き場 | - |
| 駐輪場 | あり | 管理人/管理会社 | - |
| 周辺環境 | その他 内科すぎおクリニック(病院)まで175m その他 垂水区役所(役所)まで245m その他 神戸信用金庫垂水支店(銀行)まで220m その他 セブンイレブン 神戸日向2丁目店(コンビニ)まで253m その他 レバンテ垂水1番館(ショッピングセンター)まで397m その他 コープ垂水(スーパー)まで396m | ||
| 建物種別 | アパート | 建物構造 | RC(鉄筋コンクリート) |
この部屋の取扱い不動産会社
| 会社名 | ピタットハウス(株)ライブデザイン(SUUMO経由) | ||
|---|---|---|---|
| 所在地 | 兵庫県神戸市中央区生田町2-2-71F | 交通 | - |
| 営業時間 | 9:00~19:00 | 定休日 | 特になし |
| 免許番号 | 国土交通大臣10464 | 取引態様 | 仲介 |
| 不動産会社管理番号 | 100490140050 | 当社管理番号 | 89 |
| 所属団体 | (公社)全日本不動産協会兵庫県本部会員 | ||
| 公正取引協議会 | (公社)近畿地区不動産公正取引協議会加盟 | ||
| 取扱い物件情報 | 物件詳細へ | ||
※各種情報と現状に差異がある場合は、現状優先となります。問い合わせをすることで、より詳しい条件、情報を確認する事ができます。
提供:ピタットハウス(株)ライブデザイン(SUUMO経由)
この物件が気になったら掲載期限まであと11日
CREER RIVIEREIIIに条件(家賃・エリア)が近い物件一覧
| 写真 | 家賃 管理費等 | 敷金 礼金 | 間取り 専有面積 | 築年数 | 最寄り駅 所在地 | キープ | 詳細 |
|---|---|---|---|---|---|---|---|
マンション シーサイドパストラル林崎II(2LDK/1階) | |||||||
![]() | 8.6万円 6,000円 | なし 20万円 | 2LDK 67.12m2 | 築29年 | 山陽電気鉄道本線 林崎松江海岸駅 徒歩3分 山陽電気鉄道本線 西新町駅 徒歩23分 山陽本線 西明石駅 徒歩30分 兵庫県明石市林崎町3丁目 | 詳細を見る | |
アパート グランドールⅠ(2LDK/2階) | |||||||
![]() | 8.9万円 3,000円 | なし 8.9万円 | 2LDK 56.48m2 | 新築 | 神戸電鉄粟生線 広野ゴルフ場前駅 徒歩10分 兵庫県三木市志染町東自由が丘1丁目 | 詳細を見る | |
アパート LA MAISON林崎(2LDK/1階) | |||||||
![]() | 12.6万円 7,000円 | 3万円 25.2万円 | 2LDK 58.68m2 | 築1年 | 山陽電気鉄道本線 林崎松江海岸駅 徒歩9分 山陽電気鉄道本線 西新町駅 徒歩12分 兵庫県明石市林崎1 | 詳細を見る | |
アパート シャーメゾンさくら大久保駅前(2LDK/4階) | |||||||
![]() | 14万円 9,500円 | 3万円 なし | 2LDK 60.35m2 | 築3年 | JR山陽本線 大久保駅(兵庫) 徒歩2分 山陽電鉄本線 中八木駅 徒歩23分 山陽電鉄本線 江井ケ島駅 徒歩25分 兵庫県明石市大久保町駅前 | 詳細を見る | |
アパート サニーハイツ(3LDK/2階) | |||||||
![]() | 11万円 5,500円 | 3万円 20万円 | 3LDK 74.06m2 | 築16年 | JR山陽本線 大久保駅(兵庫) 徒歩22分 山陽電鉄本線 中八木駅 徒歩31分 JR山陽本線 西明石駅 徒歩37分 兵庫県明石市大久保町松陰 | 詳細を見る | |
マンション 山陽電気鉄道本線 林崎松江海岸駅 徒歩3分 築29年(2LDK/2階) | |||||||
![]() | 8.6万円 6,000円 | なし 20万円 | 2LDK 67.12m2 | 築29年 | 山陽電気鉄道本線 林崎松江海岸駅 徒歩3分 山陽電気鉄道本線 西新町駅 徒歩23分 山陽本線 西明石駅 徒歩30分 兵庫県明石市林崎町3丁目 | 詳細を見る | |
アパート アンダンテ大久保(2LDK/2階) | |||||||
![]() | 8.8万円 4,500円 | 2万円 なし | 2LDK 61.6m2 | 築22年 | 山陽本線 大久保駅(兵庫) 徒歩15分 山陽電気鉄道本線 中八木駅 徒歩33分 東海道・山陽新幹線 西明石駅 徒歩44分 兵庫県明石市大久保町大窪 | 詳細を見る | |
マンション SHAMAISON MIMOSA OKUBO(2LDK/1階) | |||||||
![]() | 13.6万円 9,500円 | 5万円 なし | 2LDK 64.75m2 | 築1年 | JR山陽本線 大久保駅(兵庫) 徒歩17分 山陽電鉄本線 中八木駅 徒歩35分 山陽電鉄本線 江井ケ島駅 徒歩41分 兵庫県明石市大久保町大窪 | 詳細を見る | |








