賃貸マンション
ソルナクレイシア荻窪IIIの賃貸物件情報(1DK/2階)
| 家賃 | 管理費等 | 敷金 | 礼金 | 間取り | 専有面積 |
|---|---|---|---|---|---|
| 13.5万円 | 1.5万円 | なし | 13.5万円 | 1DK | 32.73m2 |
入居決定でお祝い金最大100,000円
- 保証金
- -
- 償却・敷引
- -
- 築年数
- 築1年
- 所在階
- 2階
- 向き
- 北
Point
契約金のお見積もりや室内写真のご希望など、ご質問・ご要望はお気軽にお問い合わせください。【初期費用の分割・クレジットカード決済可能です】
提供:(株)ルームワン新宿店(SUUMO経由)

詳細情報 ソルナクレイシア荻窪III
物件紹介
ソルナクレイシア荻窪IIIはJR中央線荻窪駅から徒歩3分にあり、駅近で通勤通学に便利なマンションです。
このお部屋は2階以上に位置しているので、通行人や周囲の住人からの視線が気になりにくく、防犯面でも安心。インターホンにはTVモニタもついているため、相手の顔を確認してから来客対応することができます。
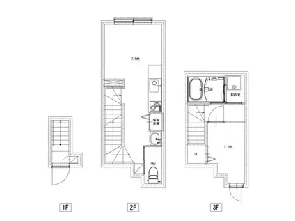
おしゃれなデザイナーズ物件!人気の角部屋で周囲の居住者の生活音も気になりにくく、また、フローリングのお部屋なのでお掃除もラクラク。キッチンはシステムキッチン仕様になっていますので、お料理好きの方にもぴったり。バス・トイレは別なので、のんびりお風呂タイムも楽しめるでしょう。また、雨の日でも浴室乾燥機を使えば、お洗濯も問題ありません。
通信設備面では、インターネットが無料で使えるので、月々の出費を抑えられるのも魅力です。また、BSアンテナ・CSアンテナもありますので、おうち時間も充実するでしょう(別途工事、BS・CSの契約料等が必要な場合あり)。
このお部屋は2階以上に位置しているので、通行人や周囲の住人からの視線が気になりにくく、防犯面でも安心。インターホンにはTVモニタもついているため、相手の顔を確認してから来客対応することができます。
おしゃれなデザイナーズ物件!人気の角部屋で周囲の居住者の生活音も気になりにくく、また、フローリングのお部屋なのでお掃除もラクラク。キッチンはシステムキッチン仕様になっていますので、お料理好きの方にもぴったり。バス・トイレは別なので、のんびりお風呂タイムも楽しめるでしょう。また、雨の日でも浴室乾燥機を使えば、お洗濯も問題ありません。
通信設備面では、インターネットが無料で使えるので、月々の出費を抑えられるのも魅力です。また、BSアンテナ・CSアンテナもありますので、おうち時間も充実するでしょう(別途工事、BS・CSの契約料等が必要な場合あり)。
お金・契約の情報
※「-」と表示されているものは、実際は料金が発生するものもございます。詳細はお問い合わせください。
| 家賃 | 13.5万円 | 管理費・共益費 | 1.5万円 |
|---|---|---|---|
| 敷金 | なし | 礼金 | 13.5万円 |
| 入居決定でお祝い金最大100,000円 | |||
| 保証金 | - | 償却・敷引 | - |
| 住宅保険料 | - | 更新料 | - |
| 保証会社利用 | 必須 | 保証会社名 | - |
| 保証会社費用 | - | 保証会社備考 | 保証会社利用必 初回:総賃料60% 年間保証料:13 000円 、口座振替手数料:月額330円 |
| 契約形態 | - | 契約期間 | - |
| 入居・引渡期間 | 即時 | 現況 | - |
| 契約備考 | 【仲介手数料無料(0円)対象物件】初期費用の分割・クレジットカード決済可能です。お気軽にご相談下さい。1年未満解約の場合総賃料1ヶ月分違約金有り。退去時クリーニング費用66000円実費精算。 更新料 新賃料1.00ヶ月分 1DK 普通借家2年 損保【2万円2年】 バストイレ別、エアコン、クロゼット、フローリング、TVインターホン、室内洗濯置、シューズボックス、システムキッチン、温水洗浄便座、脱衣所、洗面所独立、洗面化粧台、2口コンロ、光ファイバー、即入居可、最上階、BS・CS、敷金不要、IHクッキングヒーター、照明付、全居室洋室、保証人不要、仲介手数料不要、全居室フローリング、2沿線利用可、メゾネット、ネット専用回線、ネット使用料不要、保証金不要、築2年以内、24時間換気システム、クロゼット2ヶ所、築3年以内、浴室未使用、未入居、始発駅、2駅利用可、3駅以上利用可、3沿線以上利用可、駅前、駅徒歩5分以内、駅徒歩10分以内、上階無し、24時間ゴミ出し可、敷地内ごみ置き場、築5年以内、全居室6畳以上、キッチン未使用、都市ガス、玄関収納、マルチメディアコンセント、礼金1ヶ月、IT重説対応物件、初期費用カード決済可 | ||
部屋の情報
| 間取り | 1DK | 専有面積 | 32.73m2 |
|---|---|---|---|
| 所在階 / 向き | 2階 / 北 | バルコニー面積 | - |
| 水道 / ガス | - | ||
| 設備 | バス・トイレ別、2階以上、テレビドアホン、インターネット対応、システムキッチン、エアコン、温水洗浄便座、フローリング、洗髪洗面化粧台、2口コンロ、コンロ:IH、CSアンテナ、BSアンテナ、インターネット使用料無料、洗濯機:室内 | ||
| 当社物件ID | 160223313 | ||
建物の情報
| 建物名 | ソルナクレイシア荻窪III | ||
|---|---|---|---|
| 所在地 | 東京都杉並区天沼 | ||
| 交通 | JR中央線 荻窪駅 徒歩3分 JR中央線 阿佐ケ谷駅 徒歩18分 東京メトロ丸ノ内線 南阿佐ケ谷駅 徒歩20分 | ||
| 階数 | 3階建 | 総戸数 | 12戸 |
| 築年月 | 2025年12月 / 築1年 | エレベーター | - |
| 駐車場 | なし | バイク置き場 | - |
| 駐輪場 | - | 管理人/管理会社 | - |
| 周辺環境 | その他 荻窪駅(その他)まで289m その他 阿佐ヶ谷駅(その他)まで1402m その他 南阿佐ヶ谷駅(その他)まで1570m その他 西荻窪駅(その他)まで2210m その他 下井草駅(その他)まで2271m その他 井荻駅(その他)まで2508m | ||
| 建物種別 | マンション | 建物構造 | 鉄骨造 |
この部屋の取扱い不動産会社
| 会社名 | (株)ルームワン高田馬場店(SUUMO経由) | ||
|---|---|---|---|
| 所在地 | 東京都新宿区高田馬場3-3-1 キカワダビル4階 | 交通 | - |
| 営業時間 | 10:00~19:00 | 定休日 | 水曜日 |
| 免許番号 | 東京都知事106608 | 取引態様 | 仲介 |
| 不動産会社管理番号 | 100484192971 | 当社管理番号 | 89 |
| 所属団体 | (公社)全日本不動産協会東京都本部会員 | ||
| 公正取引協議会 | (公社)首都圏不動産公正取引協議会加盟 | ||
| 取扱い物件情報 | 物件詳細へ | ||
※各種情報と現状に差異がある場合は、現状優先となります。問い合わせをすることで、より詳しい条件、情報を確認する事ができます。
提供:(株)ルームワン高田馬場店(SUUMO経由)
この物件が気になったら掲載期限まであと10日
ソルナクレイシア荻窪IIIに条件(家賃・エリア)が近い物件一覧
| 写真 | 家賃 管理費等 | 敷金 礼金 | 間取り 専有面積 | 築年数 | 最寄り駅 所在地 | キープ | 詳細 |
|---|---|---|---|---|---|---|---|
マンション ウエスト・1(ワンルーム/3階) | |||||||
![]() | 9.8万円 なし | 9.8万円 9.8万円 | ワンルーム 21.3m2 | 築30年 | 東京メトロ日比谷線 恵比寿駅 徒歩4分 JR山手線 恵比寿駅 徒歩5分 東急東横線 代官山駅 徒歩6分 東京都渋谷区恵比寿西 | 詳細を見る | |
マンション ジェイフラッツ初台(1K/2階) | |||||||
![]() | 10.3万円 1万円 | 10.3万円 10.3万円 | 1K 26.47m2 | 築18年 | 京王新線 幡ケ谷駅 徒歩7分 京王新線 初台駅 徒歩8分 東京メトロ千代田線 代々木上原駅 徒歩15分 東京都渋谷区西原 | 詳細を見る | |
アパート 京王線 仙川駅 徒歩15分 築17年(1K/2階) | |||||||
![]() | 9.2万円 5,500円 | なし 9.2万円 | 1K 19.87m2 | 築17年 | 京王線 仙川駅 徒歩15分 京王線 千歳烏山駅 徒歩16分 京王線 芦花公園駅 徒歩26分 東京都世田谷区給田 | 詳細を見る | |
マンション MY STYLE VINTAGE 世田谷弦巻(ワンルーム/3階) | |||||||
![]() | 13万円 6,000円 | なし 13万円 | ワンルーム 28.98m2 | 新築 | 東急田園都市線 桜新町駅 徒歩6分 東急世田谷線 上町駅 徒歩16分 東急田園都市線 用賀駅 徒歩20分 東京都世田谷区弦巻 | 詳細を見る | |
アパート ヴィエント下井草(1K/2階) | |||||||
![]() | 8.7万円 5,000円 | なし 8.7万円 | 1K 25.8m2 | 築6年 | 西武新宿線 下井草駅 徒歩9分 西武新宿線 鷺ノ宮駅 徒歩11分 西武池袋線 富士見台駅 徒歩25分 東京都杉並区下井草 | 詳細を見る | |
マンション アジールコート松濤(1LDK/3階) | |||||||
![]() | 19.4万円 1.2万円 | 19.4万円 なし | 1LDK 33.56m2 | 築1年 | 京王井の頭線 神泉駅 徒歩7分 JR山手線 渋谷駅 徒歩12分 東急田園都市線 池尻大橋駅 徒歩17分 東京都渋谷区松濤 | 詳細を見る | |
マンション フェルテ波(1K/7階) | |||||||
![]() | 15.3万円 1万円 | 15.3万円 15.3万円 | 1K 32m2 | 築21年 | JR山手線 恵比寿駅 徒歩2分 東急東横線 代官山駅 徒歩14分 東京メトロ日比谷線 広尾駅 徒歩18分 東京都渋谷区恵比寿 | 詳細を見る | |







