賃貸マンション
ガーラ・ヴィスタ祖師ヶ谷大蔵の賃貸物件情報(2K/2階)
| 家賃 | 管理費等 | 敷金 | 礼金 | 間取り | 専有面積 |
|---|---|---|---|---|---|
| 9.9万円 | 9,000円 | 9.9万円 | 19.8万円 | 2K | 25.37m2 |
入居決定でお祝い金最大100,000円
Point
共用部には宅配ボックス・ゴミ出し24時間OKなどが揃っております。
提供:(株)クレアスレント五反田店(SUUMO経由)

詳細情報 ガーラ・ヴィスタ祖師ヶ谷大蔵
物件紹介
ガーラ・ヴィスタ祖師ヶ谷大蔵は小田急線祖師ケ谷大蔵駅から徒歩5分にあり、駅近で通勤通学に便利なマンションです。
このお部屋は2階以上に位置しているので、通行人や周囲の住人からの視線が気になりにくく、防犯面でも安心。建物のエントランスはオートロックがついており、インターホンにはTVモニタもついているため、相手の顔を確認してから来客対応することができます。
おしゃれなデザイナーズ物件!人気の南向き・フローリングのお部屋。室内にはウォークインクローゼットがありますので、たくさんの荷物も効率的に収納ができます。キッチンはシステムキッチン仕様になっていますので、お料理好きの方にもぴったり。バス・トイレは別なので、のんびりお風呂タイムも楽しめるでしょう。また、雨の日でも浴室乾燥機を使えば、お洗濯も問題ありません。
通信設備面では、インターネットが無料で使えるので、月々の出費を抑えられるのも魅力です。また、BSアンテナ・CSアンテナもありますので、おうち時間も充実するでしょう(別途工事、BS・CSの契約料等が必要な場合あり)。
建物にはエレベーターがついているので、重い荷物があっても安心。共用部には宅配ボックスが設定されているので、不在の時にも荷物を受け取ることができます。
このお部屋は2階以上に位置しているので、通行人や周囲の住人からの視線が気になりにくく、防犯面でも安心。建物のエントランスはオートロックがついており、インターホンにはTVモニタもついているため、相手の顔を確認してから来客対応することができます。
おしゃれなデザイナーズ物件!人気の南向き・フローリングのお部屋。室内にはウォークインクローゼットがありますので、たくさんの荷物も効率的に収納ができます。キッチンはシステムキッチン仕様になっていますので、お料理好きの方にもぴったり。バス・トイレは別なので、のんびりお風呂タイムも楽しめるでしょう。また、雨の日でも浴室乾燥機を使えば、お洗濯も問題ありません。
通信設備面では、インターネットが無料で使えるので、月々の出費を抑えられるのも魅力です。また、BSアンテナ・CSアンテナもありますので、おうち時間も充実するでしょう(別途工事、BS・CSの契約料等が必要な場合あり)。
建物にはエレベーターがついているので、重い荷物があっても安心。共用部には宅配ボックスが設定されているので、不在の時にも荷物を受け取ることができます。
お金・契約の情報
※「-」と表示されているものは、実際は料金が発生するものもございます。詳細はお問い合わせください。
| 家賃 | 9.9万円 | 管理費・共益費 | 9,000円 |
|---|---|---|---|
| 敷金 | 9.9万円 | 礼金 | 19.8万円 |
| 入居決定でお祝い金最大100,000円 | |||
| 保証金 | - | 償却・敷引 | - |
| 住宅保険料 | 1円 | 更新料 | - |
| 保証会社利用 | 必須 | 保証会社名 | - |
| 保証会社費用 | - | 保証会社備考 | その他保証人代行会社名:株式会社クレディセゾン 保証人代行内容:保証料:賃料等の50%(最低1.5万円)継続保証料1~1.4万円/年 利用費用:50(%) |
| 契約形態 | - | 契約期間 | 2年 |
| 入居・引渡期間 | 即時 | 現況 | - |
| 入居可能条件 | 2人入居可、ペット不可 | ||
| 契約備考 | 室内清掃費用:33000 その他設備/条件:室内洗濯機置き場、ごみ出し24時間OK、独立洗面台、防犯カメラ、ルームシェア可、シューズボックス、オートバス | ||
部屋の情報
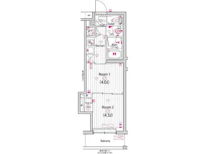
| 間取り | 2K | 専有面積 | 25.37m2 |
|---|---|---|---|
| 間取り詳細 | 洋室(4帖)、洋室(4.3帖) | ||
| 所在階 / 向き | 2階 / 南東 | バルコニー面積 | 3m2 |
| 水道 / ガス | 水道【公営】、ガス【都市】 | ||
| 設備 | バス・トイレ別、オートロック、テレビドアホン、宅配ボックス、浴室乾燥機、追い焚き、光ファイバー対応、システムキッチン、エアコン、エレベーター、温水洗浄便座、バルコニー、フローリング、2口コンロ、コンロ:ガス、CSアンテナ、BSアンテナ、インターネット使用料無料、シャワー、給湯、タイル張り | ||
| 当社物件ID | 46335414 | ||
建物の情報
| 建物名 | ガーラ・ヴィスタ祖師ヶ谷大蔵 | ||
|---|---|---|---|
| 所在地 | 東京都世田谷区砧6丁目 | ||
| 交通 | 小田急電鉄小田原線 祖師ケ谷大蔵駅 徒歩5分 | ||
| 階数 | 5階建 | 総戸数 | 44戸 |
| 築年月 | 2020年11月 / 築6年 | エレベーター | あり |
| 駐車場 | なし | バイク置き場 | - |
| 駐輪場 | あり | 管理人/管理会社 | 日勤 |
| 周辺環境 | その他 ドラッグストア その他 公園 その他 銀行 その他 * | ||
| 建物種別 | マンション | 建物構造 | RC(鉄筋コンクリート) |
この部屋の取扱い不動産会社
| 会社名 | ハウスコム西東京株式会社 調布店 | ||
|---|---|---|---|
| 所在地 | 東京都調布市17-10セントラルレジデンス調布1階 | 交通 | - |
| 営業時間 | 10:00~18:00 | 定休日 | 水曜定休 |
| 免許番号 | 東京都知事(1)第108225号 | 取引態様 | 仲介 |
| 不動産会社管理番号 | HC5-5274567-202-0080 | 当社管理番号 | 468 |
| 所属団体 | 、 | ||
| 取扱い物件情報 | 物件詳細へ | ||
※各種情報と現状に差異がある場合は、現状優先となります。問い合わせをすることで、より詳しい条件、情報を確認する事ができます。
提供:ハウスコム西東京株式会社 調布店
この物件が気になったら掲載期限まであと5日
ガーラ・ヴィスタ祖師ヶ谷大蔵に条件(家賃・エリア)が近い物件一覧
| 写真 | 家賃 管理費等 | 敷金 礼金 | 間取り 専有面積 | 築年数 | 最寄り駅 所在地 | キープ | 詳細 |
|---|---|---|---|---|---|---|---|
マンション 島田ハイツB(1LDK/1階) | |||||||
![]() | 8.7万円 3,000円 | 8.7万円 8.7万円 | 1LDK 32.36m2 | 築38年 | 東京モノレール 昭和島駅 徒歩11分 京急本線 大森町駅 徒歩18分 東京都大田区大森東 | 詳細を見る | |
マンション RJRプレシア千鳥(1K/2階) | |||||||
![]() | 9.7万円 1万円 | 9.7万円 9.7万円 | 1K 25.46m2 | 築2年 | 東急多摩川線 武蔵新田駅 徒歩5分 東急池上線 千鳥町駅 徒歩10分 東急多摩川線 矢口渡駅 徒歩12分 東京都大田区千鳥 | 詳細を見る | |
マンション メゾンプレジール(1K/1階) | |||||||
![]() | 7万円 2,000円 | 7万円 7万円 | 1K 20.83m2 | 築22年 | JR京浜東北線 蒲田駅 徒歩15分 東急池上線 池上駅 徒歩21分 京急本線 梅屋敷駅(東京) 徒歩22分 東京都大田区中央 | 詳細を見る | |
アパート ヴェリテ・アイケイ(1K/2階) | |||||||
![]() | 6.1万円 2,000円 | 6.1万円 6.1万円 | 1K 20.97m2 | 築33年 | 京浜急行電鉄本線 大森町駅 徒歩7分 京浜急行電鉄本線 梅屋敷駅(東京) 徒歩9分 東京都大田区大森西5丁目 | 詳細を見る | |
マンション セレストコーワ(1K/4階) | |||||||
![]() | 8.3万円 5,000円 | 8.3万円 16.6万円 | 1K 20.25m2 | 築20年 | 京浜急行電鉄空港線 糀谷駅 徒歩9分 京浜急行電鉄本線 京急蒲田駅 徒歩11分 東京都大田区南蒲田2丁目 | 詳細を見る | |
マンション LA MAISON EPICA(1DK/2階) | |||||||
![]() | 10.6万円 5,000円 | 10.6万円 10.6万円 | 1DK 33.06m2 | 築18年 | JR京浜東北線 蒲田駅 徒歩9分 京急本線 京急蒲田駅 徒歩12分 京急本線 梅屋敷駅(東京) 徒歩13分 東京都大田区蒲田 | 詳細を見る | |
マンション グレイス蒲田(1K/3階) | |||||||
![]() | 6.2万円 3,000円 | 6.2万円 なし | 1K 18.14m2 | 築34年 | JR京浜東北線 蒲田駅 徒歩8分 京急本線 京急蒲田駅 徒歩14分 京急本線 梅屋敷駅(東京) 徒歩15分 東京都大田区蒲田 | 詳細を見る | |
マンション ダイアローグステージ(1K/2階) | |||||||
![]() | 8万円 5,000円 | 8万円 12万円 | 1K 22.35m2 | 築19年 | 東急多摩川線 矢口渡駅 徒歩4分 東急池上線 池上駅 徒歩14分 JR京浜東北線 蒲田駅 徒歩20分 東京都大田区多摩川 | 詳細を見る | |








