賃貸マンション
南青山ユニハイツの賃貸物件情報(1LDK/7階)
| 家賃 | 管理費等 | 敷金 | 礼金 | 間取り | 専有面積 |
|---|---|---|---|---|---|
| 34万円 | 2万円 | 68万円 | 34万円 | 1LDK | 60.53m2 |
入居決定でお祝い金最大100,000円
- 保証金
- -
- 償却・敷引
- -
- 築年数
- 築48年
- 所在階
- 7階
- 向き
- 南西
Point
当物件は初期費用分割払い可(クレジットカード決済も可)/お客様のご希望に合わせた方法(店頭、オンライン等)で物件をご提案いたします。初期費用のお見積りや入居希望日のご相談もお気軽にお問い合わせください
提供:アエラス池袋店/現地案内センター (株)アエラス.FR(SUUMO経由)

詳細情報 南青山ユニハイツ
物件紹介
南青山ユニハイツは東京メトロ銀座線表参道駅から徒歩7分にあり、駅近で通勤通学に便利なマンションです。
このお部屋は2階以上に位置しているので、通行人や周囲の住人からの視線が気になりにくく、防犯面でも安心。建物のエントランスはオートロックがついており、インターホンにはTVモニタもついているため、相手の顔を確認してから来客対応することができます。
人気の南向きのお部屋。角部屋でもあるため、周囲の居住者の生活音も気になりにくい場所です。バス・トイレ別の仕様で、のんびりお風呂タイムも楽しめます。
通信設備面では、インターネット接続が可能です(別途工事、契約料が必要な場合あり)。
建物にはエレベーターがついているので、重い荷物があっても安心。共用部には宅配ボックスが設定されているので、不在の時にも荷物を受け取ることができます。
このお部屋は2階以上に位置しているので、通行人や周囲の住人からの視線が気になりにくく、防犯面でも安心。建物のエントランスはオートロックがついており、インターホンにはTVモニタもついているため、相手の顔を確認してから来客対応することができます。
人気の南向きのお部屋。角部屋でもあるため、周囲の居住者の生活音も気になりにくい場所です。バス・トイレ別の仕様で、のんびりお風呂タイムも楽しめます。
通信設備面では、インターネット接続が可能です(別途工事、契約料が必要な場合あり)。
建物にはエレベーターがついているので、重い荷物があっても安心。共用部には宅配ボックスが設定されているので、不在の時にも荷物を受け取ることができます。
お金・契約の情報
※「-」と表示されているものは、実際は料金が発生するものもございます。詳細はお問い合わせください。
| 家賃 | 34万円 | 管理費・共益費 | 2万円 |
|---|---|---|---|
| 敷金 | 68万円 | 礼金 | 34万円 |
| 入居決定でお祝い金最大100,000円 | |||
| 保証金 | - | 償却・敷引 | - |
| 住宅保険料 | - | 更新料 | - |
| 契約形態 | - | 契約期間 | - |
| 入居・引渡期間 | 相談 | 現況 | - |
| 入居可能条件 | 事務所可 | ||
| 契約備考 | 青山学院大学青山キャンパスまで707m/青山学院幼稚園まで400m/鍵交換代借主負担/室内清掃費用借主負担 1LDK 二人入居可/子供可/事務所利用相談 普通借家2年 損保【要】 バストイレ別、バルコニー、エアコン、TVインターホン、オートロック、室内洗濯置、角住戸、脱衣所、エレベーター、洗面所独立、洗面化粧台、宅配ボックス、光ファイバー、外壁タイル張り、2面採光、防犯カメラ、分譲賃貸、二人入居相談、2沿線利用可、敷金2ヶ月、保証金不要、事務所相談、外壁コンクリート、3駅以上利用可、駅徒歩10分以内、南西向き、高速ネット対応、礼金1ヶ月、初期費用カード決済可 | ||
部屋の情報
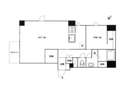
| 間取り | 1LDK | 専有面積 | 60.53m2 |
|---|---|---|---|
| 所在階 / 向き | 7階 / 南西 | バルコニー面積 | - |
| 水道 / ガス | - | ||
| 設備 | バス・トイレ別、2階以上、オートロック、テレビドアホン、宅配ボックス、インターネット対応、エアコン、エレベーター、南向き、角部屋、バルコニー、洗髪洗面化粧台、洗濯機:室内 | ||
| 当社物件ID | 24116923 | ||
建物の情報
| 建物名 | 南青山ユニハイツ | ||
|---|---|---|---|
| 所在地 | 東京都港区南青山 | ||
| 交通 | 東京メトロ銀座線 表参道駅 徒歩7分 湘南新宿ライン高海 渋谷駅 徒歩17分 東京メトロ銀座線 外苑前駅 徒歩19分 | ||
| 階数 | 10階建 | 総戸数 | - |
| 築年月 | 1978年03月 / 築48年 | エレベーター | あり |
| 駐車場 | 近隣 230m35200円 | バイク置き場 | - |
| 駐輪場 | - | 管理人/管理会社 | - |
| 周辺環境 | その他 COS青山店(ショッピングセンター)まで415m その他 ビオセボン骨董通り店(スーパー)まで262m その他 セブンイレブン南青山5丁目店(コンビニ)まで116m その他 つけめんでんまる南青山店(飲食店)まで141m その他 薬 マツモトキヨシ 青山店(ドラッグストア)まで551m その他 Minotti Tri-Angle(ホームセンター)まで201m | ||
| 建物種別 | マンション | 建物構造 | SRC(鉄骨鉄筋コンクリート) |
この部屋の取扱い不動産会社
| 会社名 | アエラス池袋店/現地案内センター (株)アエラス.FR(SUUMO経由) | ||
|---|---|---|---|
| 所在地 | 東京都豊島区東池袋1-34-5 いちご東池袋ビル 3階6号室 | 交通 | - |
| 営業時間 | 10:00~19:00(時間外対応出来る場合有り) | 定休日 | 年中無休(年末年始などを除く) |
| 免許番号 | 国土交通大臣10206 | 取引態様 | 仲介 |
| 不動産会社管理番号 | 100484543634 | 当社管理番号 | 89 |
| 所属団体 | (公社)東京都宅地建物取引業協会会員 | ||
| 公正取引協議会 | (公社)首都圏不動産公正取引協議会加盟 | ||
| 取扱い物件情報 | 物件詳細へ | ||
※各種情報と現状に差異がある場合は、現状優先となります。問い合わせをすることで、より詳しい条件、情報を確認する事ができます。
提供:アエラス池袋店/現地案内センター (株)アエラス.FR(SUUMO経由)
この物件が気になったら掲載期限まであと10日
南青山ユニハイツに条件(家賃・エリア)が近い物件一覧
| 写真 | 家賃 管理費等 | 敷金 礼金 | 間取り 専有面積 | 築年数 | 最寄り駅 所在地 | キープ | 詳細 |
|---|---|---|---|---|---|---|---|
マンション レピュア東大島駅前レジデンス(2LDK/5階) | |||||||
![]() | 22.1万円 1.5万円 | なし なし | 2LDK 43.65m2 | 築1年 | 東京都新宿線 東大島駅 徒歩4分 東京都江東区大島8丁目 | 詳細を見る | |
マンション 広尾3丁目ヘーベルハウス(3LDK/1階) | |||||||
![]() | 48万円 なし | 24万円 なし | 3LDK 80.66m2 | 築2年 | 東京メトロ半蔵門線 表参道駅 徒歩13分 東京メトロ日比谷線 広尾駅 徒歩14分 東京都渋谷区広尾 | 詳細を見る | |
マンション アストレ白金ガーデン(3LDK/1階) | |||||||
![]() | 45万円 1.15万円 | 45万円 45万円 | 3LDK 82.17m2 | 築1年 | 東京メトロ南北線 白金高輪駅 徒歩10分 東京メトロ南北線 白金台駅 徒歩14分 東京メトロ日比谷線 広尾駅 徒歩17分 東京都港区白金 | 詳細を見る | |
一戸建て 東京地下鉄東西線 木場駅 徒歩7分 築10年(2LDK) | |||||||
![]() | 24万円 なし | 48万円 24万円 | 2LDK 70.43m2 | 築10年 | 東京地下鉄東西線 木場駅 徒歩7分 東京都大江戸線 門前仲町駅 徒歩17分 京葉線 越中島駅 徒歩19分 東京都江東区木場6丁目 | 詳細を見る | |
マンション イースタンホームズ六本木(1LDK/3階) | |||||||
![]() | 27万円 2万円 | 27万円 27万円 | 1LDK 53.44m2 | 築46年 | 東京地下鉄日比谷線 六本木駅 徒歩11分 東京地下鉄日比谷線 広尾駅 徒歩14分 東京地下鉄南北線 麻布十番駅 徒歩15分 東京都港区元麻布3丁目 | 詳細を見る | |
マンション PISO ARCE SHINAGAWA(1LDK/3階) | |||||||
![]() | 22万円 5,000円 | 22万円 なし | 1LDK 41m2 | 築11年 | 京浜東北・根岸線 大井町駅 徒歩8分 京浜急行電鉄本線 青物横丁駅 徒歩10分 東京都品川区南品川6丁目 | 詳細を見る | |
アパート 御殿山テラスⅡ(2LDK/1階) | |||||||
![]() | 22.5万円 3,000円 | 22.5万円 45万円 | 2LDK 57.6m2 | 築2年 | 山手線 大崎駅 徒歩8分 京浜急行電鉄本線 北品川駅 徒歩14分 東京都品川区北品川5丁目 | 詳細を見る | |








