賃貸マンション
コロナード中島の賃貸物件情報(1LDK/1階)
| 家賃 | 管理費等 | 敷金 | 礼金 | 間取り | 専有面積 |
|---|---|---|---|---|---|
| 3.3万円 | 9,000円 | 3.3万円 | なし | 1LDK | 40.23m2 |
入居決定でお祝い金最大100,000円
- 保証金
- -
- 償却・敷引
- -
- 築年数
- 築42年
- 所在階
- 1階
- 向き
- 南
Point
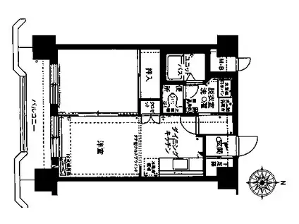
間取:1LDK面積:40.23平米バルコニー、専用庭あり家具家電付温水洗浄便座都市ガス給湯・暖房オートロック水廻消毒料33000円(税込)(契約時)地下鉄東豊線豊水すすきの駅徒歩3分
提供:(株)アパマン・プラザ(SUUMO経由)

詳細情報 コロナード中島
物件紹介
コロナード中島は地下鉄南北線中島公園駅から徒歩7分にあり、駅近で通勤通学に便利なマンションです。
建物のエントランスはオートロックがついており、防犯性が高くなっています。
人気の南向きのお部屋。キッチンはシステムキッチン仕様になっていますので、お料理好きの方にもぴったり。また、バス・トイレは別で、のんびりお風呂タイムも楽しめるでしょう。
通信設備面では、インターネット接続が可能です。また、BSアンテナもありますので、おうち時間も充実するでしょう(別途工事、契約料が必要な場合あり)。
建物にはエレベーターがついているので、重い荷物があっても安心。共用部には宅配ボックスが設定されているので、不在の時にも荷物を受け取ることができます。
建物のエントランスはオートロックがついており、防犯性が高くなっています。
人気の南向きのお部屋。キッチンはシステムキッチン仕様になっていますので、お料理好きの方にもぴったり。また、バス・トイレは別で、のんびりお風呂タイムも楽しめるでしょう。
通信設備面では、インターネット接続が可能です。また、BSアンテナもありますので、おうち時間も充実するでしょう(別途工事、契約料が必要な場合あり)。
建物にはエレベーターがついているので、重い荷物があっても安心。共用部には宅配ボックスが設定されているので、不在の時にも荷物を受け取ることができます。
お金・契約の情報
※「-」と表示されているものは、実際は料金が発生するものもございます。詳細はお問い合わせください。
| 家賃 | 3.3万円 | 管理費・共益費 | 9,000円 |
|---|---|---|---|
| 敷金 | 3.3万円 | 礼金 | なし |
| 入居決定でお祝い金最大100,000円 | |||
| 保証金 | - | 償却・敷引 | - |
| 住宅保険料 | - | 更新料 | - |
| 保証会社利用 | 利用可 | 保証会社名 | 日本セーフティー |
| 保証会社費用 | - | 保証会社備考 | 日本セーフティー利用可 契約時に賃料の50%(最低2万円)更新時に1万円 保証人がいない場合に保証会社利用。 |
| 契約形態 | - | 契約期間 | - |
| 入居・引渡期間 | 即時 | 現況 | - |
| 契約備考 | 通勤管理 合計4.18万円(内訳:水廻消毒料(税込)3.3万円事務手数料(税込)0.88万円) 1LDK 普通借家2年 損保【2万円2年】 バストイレ別、バルコニー、ガスコンロ対応、クロゼット、オートロック、室内洗濯置、シューズボックス、システムキッチン、南向き、温水洗浄便座、エレベーター、洗面所独立、2口コンロ、宅配ボックス、押入、光ファイバー、即入居可、礼金不要、防犯カメラ、照明付、分譲賃貸、保証人不要、冷蔵庫、仲介手数料不要、敷金1ヶ月、2沿線利用可、駅まで平坦、洗濯機、複層ガラス、フロントサービス、平坦地、ガス暖房、電子レンジ、ベッド、家電付、家具付、カーテン付、2駅利用可、駅徒歩10分以内、日勤管理、当社管理物件、都市ガス、じゅうたん張、玄関収納、BS、保証会社利用可、全室照明付、テレビ | ||
部屋の情報
| 間取り | 1LDK | 専有面積 | 40.23m2 |
|---|---|---|---|
| 所在階 / 向き | 1階 / 南 | バルコニー面積 | 7m2 |
| 水道 / ガス | - | ||
| 設備 | バス・トイレ別、オートロック、宅配ボックス、インターネット対応、システムキッチン、エレベーター、温水洗浄便座、南向き、バルコニー、洗髪洗面化粧台、2口コンロ、コンロ:ガス、BSアンテナ、洗濯機:室内 | ||
| 当社物件ID | 9665604 | ||
建物の情報
| 建物名 | コロナード中島 | ||
|---|---|---|---|
| 所在地 | 北海道札幌市中央区南八条西 | ||
| 交通 | 地下鉄南北線 中島公園駅 徒歩7分 地下鉄東豊線 豊水すすきの駅 徒歩8分 地下鉄南北線 すすきの駅(市営) 徒歩13分 | ||
| 階数 | 11階建 | 総戸数 | 97戸 |
| 築年月 | 1985年03月 / 築42年 | エレベーター | あり |
| 駐車場 | なし | バイク置き場 | - |
| 駐輪場 | - | 管理人/管理会社 | - |
| 周辺環境 | その他 C&Cキャロットすすきの店(スーパー)まで424m その他 まいばすけっと 南8条西4丁目店(スーパー)まで659m その他 ファミリーマート 札幌南7条西3丁目店(コンビニ)まで436m その他 ローソン 札幌南7条西一丁目店(コンビニ)まで160m その他 北洋銀行 札幌東支店(銀行)まで1260m その他 北海道立文学館(その他)まで951m | ||
| 建物種別 | マンション | 建物構造 | SRC(鉄骨鉄筋コンクリート) |
この部屋の取扱い不動産会社
| 会社名 | (株)アパマン・プラザ(SUUMO経由) | ||
|---|---|---|---|
| 所在地 | 北海道札幌市中央区南九条西4-1-12 | 交通 | - |
| 営業時間 | 9:10~18:30 | 定休日 | 日曜日 |
| 免許番号 | 北海道知事石狩3992 | 取引態様 | 仲介 |
| 不動産会社管理番号 | 100486343607 | 当社管理番号 | 89 |
| 所属団体 | (公社)北海道宅地建物取引業協会会員 | ||
| 公正取引協議会 | (一社)北海道不動産公正取引協議会加盟 | ||
| 取扱い物件情報 | 物件詳細へ | ||
※各種情報と現状に差異がある場合は、現状優先となります。問い合わせをすることで、より詳しい条件、情報を確認する事ができます。
提供:(株)アパマン・プラザ(SUUMO経由)
この物件が気になったら掲載期限まであと11日
コロナード中島に条件(家賃・エリア)が近い物件一覧
| 写真 | 家賃 管理費等 | 敷金 礼金 | 間取り 専有面積 | 築年数 | 最寄り駅 所在地 | キープ | 詳細 |
|---|---|---|---|---|---|---|---|
マンション プレジール山鼻(1DK/3階) | |||||||
![]() | 3.8万円 5,000円 | なし なし | 1DK 27.88m2 | 築39年 | 札幌市南北線 中島公園駅 徒歩19分 北海道札幌市中央区南十一条西13丁目 | 詳細を見る | |
マンション エレガンス円山(1K/4階) | |||||||
![]() | 3.9万円 5,000円 | 3.9万円 なし | 1K 27.6m2 | 築37年 | 札幌市東西線 西28丁目駅 徒歩5分 北海道札幌市中央区北二条西26丁目 | 詳細を見る | |
アパート 白樺ハイツⅢ(2LDK/2階) | |||||||
![]() | 3.5万円 なし | なし 3.5万円 | 2LDK 40m2 | 築41年 | 北海道小樽市新光5丁目 | 詳細を見る | |
アパート SONIAⅣ(ワンルーム/1階) | |||||||
![]() | 2.2万円 2,000円 | なし なし | ワンルーム 24.4m2 | 築28年 | 函館本線 小樽駅 徒歩15分 北海道小樽市長橋1丁目 | 詳細を見る | |
アパート シティハイムライラック(2LDK/2階) | |||||||
![]() | 4.5万円 3,000円 | なし なし | 2LDK 34.74m2 | 築35年 | 千歳線 北広島駅 徒歩15分 北海道北広島市稲穂町東9丁目 | 詳細を見る | |
マンション ラフレール(1LDK/4階) | |||||||
![]() | 4.3万円 3,000円 | 4.3万円 なし | 1LDK 27.74m2 | 築29年 | 地下鉄東豊線 学園前駅(札幌) 徒歩8分 地下鉄南北線 中島公園駅 徒歩9分 地下鉄東豊線 豊水すすきの駅 徒歩15分 北海道札幌市豊平区水車町 | 詳細を見る | |
マンション ベルトピア千歳I(1LDK/3階) | |||||||
![]() | 5万円 3,000円 | 5万円 なし | 1LDK 43.25m2 | 築37年 | JR千歳線 千歳駅(北海道) 徒歩15分 北海道千歳市高台 | 詳細を見る | |
マンション フレッシュスプリングB棟(ワンルーム/3階) | |||||||
![]() | 2.3万円 3,000円 | 2.3万円 なし | ワンルーム 16.5m2 | 築37年 | 函館本線 野幌駅 徒歩21分 北海道江別市野幌若葉町 | 詳細を見る | |


/105x80-f1-q70-wp1)
/105x80-f1-q70-wp1)
/105x80-f1-q70-wp1)
/105x80-f1-q70-wp1)
/105x80-f1-q70-wp1)


/105x80-f1-q70-wp1)