賃貸マンション
グランストーク篠ケ瀬IIIの賃貸物件情報(1LDK/1階)
| 家賃 | 管理費等 | 敷金 | 礼金 | 間取り | 専有面積 |
|---|---|---|---|---|---|
| 6万円 | 3,000円 | なし | なし | 1LDK | 40.2m2 |
入居決定でお祝い金最大100,000円
- 保証金
- -
- 償却・敷引
- -
- 築年数
- 築12年
- 所在階
- 1階
- 向き
- 南
Point
オートロック付きマンション。エアコン、温水洗浄便座つき。駐車場1台付き。
提供:ドッとあ~る賃貸浜松高台店(株)ディーアール浜松(SUUMO経由)

詳細情報 グランストーク篠ケ瀬III
物件紹介
グランストーク篠ケ瀬IIIはJR東海道本線天竜川駅から徒歩20分にあるマンションです。
建物のエントランスはオートロックがついており、インターホンにはTVモニタもついているため、相手の顔を確認してから来客対応することができます。
人気の南向きのお部屋。また、フローリングなのでお掃除もラクラク。キッチンはシステムキッチン仕様になっていますので、お料理好きの方にもぴったり。また、バス・トイレは別で、のんびりお風呂タイムも楽しめるでしょう。
通信設備面では、インターネット接続が可能です。また、BSアンテナ・CSアンテナもありますので、おうち時間も充実するでしょう(別途工事、契約料が必要な場合あり)。
建物のエントランスはオートロックがついており、インターホンにはTVモニタもついているため、相手の顔を確認してから来客対応することができます。
人気の南向きのお部屋。また、フローリングなのでお掃除もラクラク。キッチンはシステムキッチン仕様になっていますので、お料理好きの方にもぴったり。また、バス・トイレは別で、のんびりお風呂タイムも楽しめるでしょう。
通信設備面では、インターネット接続が可能です。また、BSアンテナ・CSアンテナもありますので、おうち時間も充実するでしょう(別途工事、契約料が必要な場合あり)。
お金・契約の情報
※「-」と表示されているものは、実際は料金が発生するものもございます。詳細はお問い合わせください。
| 家賃 | 6万円 | 管理費・共益費 | 3,000円 |
|---|---|---|---|
| 敷金 | なし | 礼金 | なし |
| 入居決定でお祝い金最大100,000円 | |||
| 保証金 | - | 償却・敷引 | - |
| 住宅保険料 | - | 更新料 | - |
| 保証会社利用 | 必須 | 保証会社名 | - |
| 保証会社費用 | - | 保証会社備考 | 保証会社利用必 株式会社ジャックス 家賃保証会社 初回保証料30,000円 毎月賃料等請求金額の合計2% |
| 契約形態 | - | 契約期間 | - |
| 入居・引渡期間 | 即時 | 現況 | - |
| 契約備考 | 積水ハウス不動産管理 合計12.64万円(内訳:契約一時金10万円/町内会入会金0.4万円/消毒料1.76万円/ファイテック消火剤0.48万円) 緊急かけつけ241100円/町内会費/月450円 1LDK 二人入居可 損保【2万円】 バストイレ別、バルコニー、エアコン、シャワー付洗面台、TVインターホン、オートロック、室内洗濯置、シューズボックス、システムキッチン、南向き、追焚機能浴室、温水洗浄便座、洗面所独立、2口コンロ、駐輪場、光ファイバー、即入居可、礼金不要、敷金不要、対面式キッチン、保証人不要、2沿線利用可、CS、プロパンガス、BS、敷金・礼金不要、IT重説対応物件 | ||
部屋の情報
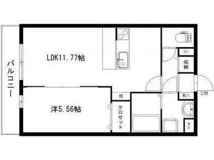
| 間取り | 1LDK | 専有面積 | 40.2m2 |
|---|---|---|---|
| 所在階 / 向き | 1階 / 南 | バルコニー面積 | - |
| 水道 / ガス | - | ||
| 設備 | バス・トイレ別、オートロック、テレビドアホン、追い焚き、インターネット対応、システムキッチン、エアコン、温水洗浄便座、南向き、バルコニー、洗髪洗面化粧台、2口コンロ、CSアンテナ、BSアンテナ、洗濯機:室内 | ||
| 当社物件ID | 158251698 | ||
建物の情報
| 建物名 | グランストーク篠ケ瀬III | ||
|---|---|---|---|
| 所在地 | 静岡県浜松市中央区篠ケ瀬町 | ||
| 交通 | JR東海道本線 天竜川駅 徒歩20分 遠州鉄道 曳馬駅 徒歩42分 遠州鉄道 自動車学校前駅 徒歩46分 | ||
| 階数 | 3階建 | 総戸数 | 9戸 |
| 築年月 | 2014年08月 / 築12年 | エレベーター | - |
| 駐車場 | 空有 付無料 | バイク置き場 | - |
| 駐輪場 | あり | 管理人/管理会社 | - |
| 周辺環境 | その他 清水銀行(銀行)まで460m その他 つぼ八(飲食店)まで280m その他 セブンイレブン(コンビニ)まで600m その他 コストコ(スーパー)まで1700m その他 イオンモール浜松市野(ショッピングセンター)まで2200m その他 篠ケ瀬幼稚園(幼稚園・保育園)まで150m | ||
| 建物種別 | マンション | 建物構造 | RC(鉄筋コンクリート) |
この部屋の取扱い不動産会社
| 会社名 | (株)ミニミニ静岡浜松東店(SUUMO経由) | ||
|---|---|---|---|
| 所在地 | 静岡県浜松市中央区宮竹町 233-1 | 交通 | - |
| 営業時間 | 10:00~18:00 | 定休日 | 定休日無し(1~3月) |
| 免許番号 | 静岡県知事14056 | 取引態様 | 仲介 |
| 不動産会社管理番号 | 100420917648 | 当社管理番号 | 89 |
| 取扱い物件情報 | 物件詳細へ | ||
※各種情報と現状に差異がある場合は、現状優先となります。問い合わせをすることで、より詳しい条件、情報を確認する事ができます。
提供:(株)ミニミニ静岡浜松東店(SUUMO経由)
この物件が気になったら掲載期限まであと11日
グランストーク篠ケ瀬IIIに条件(家賃・エリア)が近い物件一覧
| 写真 | 家賃 管理費等 | 敷金 礼金 | 間取り 専有面積 | 築年数 | 最寄り駅 所在地 | キープ | 詳細 |
|---|---|---|---|---|---|---|---|
マンション グランヴェール(2LDK/2階) | |||||||
![]() | 9万円 5,000円 | なし 9万円 | 2LDK 64.42m2 | 築2年 | JR東海道本線 高塚駅 徒歩10分 静岡県浜松市中央区小沢渡町 | 詳細を見る | |
マンション アンスリウム(1LDK/1階) | |||||||
![]() | 7.3万円 5,000円 | なし 7.3万円 | 1LDK 41.85m2 | 築6年 | 遠州鉄道 八幡駅(静岡) 徒歩4分 静岡県浜松市中央区八幡町 | 詳細を見る | |
マンション あぷと長坂(1DK/2階) | |||||||
![]() | 4.2万円 なし | なし なし | 1DK 31.4m2 | 築28年 | 静岡県浜松市中央区和合町 | 詳細を見る | |
マンション アルシェ浜松(2K/4階) | |||||||
![]() | 3.9万円 3,000円 | なし なし | 2K 28.22m2 | 築38年 | 東海道本線 浜松駅 徒歩12分 静岡県浜松市中央区尾張町 | 詳細を見る | |
マンション グロース(2LDK/1階) | |||||||
![]() | 6.5万円 なし | なし なし | 2LDK 56.28m2 | 築19年 | 静岡県浜松市中央区舞阪町浜田 | 詳細を見る | |



/105x80-f1-q70-wp1)

