賃貸マンション
パデシオン宇治木幡の賃貸物件情報(4LDK/3階)
| 家賃 | 管理費等 | 敷金 | 礼金 | 間取り | 専有面積 |
|---|---|---|---|---|---|
| 8.6万円 | 8,000円 | 8.6万円 | 8.6万円 | 4LDK | 70.9m2 |
入居決定でお祝い金最大100,000円
Point
分譲賃貸マンションで管理人もいますので安心です!!
提供:アパマンショップ伏見店

詳細情報 パデシオン宇治木幡
物件紹介
パデシオン宇治木幡は京阪電気鉄道宇治線木幡駅から徒歩5分にあり、駅近で通勤通学に便利なマンションです。
このお部屋は2階以上に位置しているので、通行人や周囲の住人からの視線が気になりにくく、防犯面でも安心。建物のエントランスはオートロックがついており、インターホンにはTVモニタもついているため、相手の顔を確認してから来客対応することができます。
人気の角部屋で周囲の居住者の生活音も気になりにくく、また、フローリングのお部屋なのでお掃除もラクラク。キッチンはシステムキッチン仕様になっていますので、お料理好きの方にもぴったり。バス・トイレは別なので、のんびりお風呂タイムも楽しめるでしょう。また、雨の日でも浴室乾燥機を使えば、お洗濯も問題ありません。
通信設備面では、インターネット接続が可能です。また、BSアンテナがありCATVにも対応しているので、おうち時間も充実するでしょう(別途工事、契約料が必要な場合あり)。
建物にはエレベーターがついているので、重い荷物があっても安心。
このお部屋は2階以上に位置しているので、通行人や周囲の住人からの視線が気になりにくく、防犯面でも安心。建物のエントランスはオートロックがついており、インターホンにはTVモニタもついているため、相手の顔を確認してから来客対応することができます。
人気の角部屋で周囲の居住者の生活音も気になりにくく、また、フローリングのお部屋なのでお掃除もラクラク。キッチンはシステムキッチン仕様になっていますので、お料理好きの方にもぴったり。バス・トイレは別なので、のんびりお風呂タイムも楽しめるでしょう。また、雨の日でも浴室乾燥機を使えば、お洗濯も問題ありません。
通信設備面では、インターネット接続が可能です。また、BSアンテナがありCATVにも対応しているので、おうち時間も充実するでしょう(別途工事、契約料が必要な場合あり)。
建物にはエレベーターがついているので、重い荷物があっても安心。
お金・契約の情報
※「-」と表示されているものは、実際は料金が発生するものもございます。詳細はお問い合わせください。
| 家賃 | 8.6万円 | 管理費・共益費 | 8,000円 |
|---|---|---|---|
| 敷金 | 8.6万円 | 礼金 | 8.6万円 |
| 入居決定でお祝い金最大100,000円 | |||
| 保証金 | - | 償却・敷引 | - |
| 住宅保険料 | 2.2万円(2年) | 更新料 | - |
| 保証会社利用 | 必須 | 保証会社名 | 日本セーフティー |
| 保証会社費用 | - | 保証会社備考 | 初回総賃料50% 月額¥800 振替手数料¥330 |
| 契約形態 | - | 契約期間 | 2年 |
| 入居・引渡期間 | 相談 | 現況 | - |
| 契約備考 | [退去時費用:清掃代 55,000円、事務手数料 11,000円 ※故意・過失等別途実費] | ||
部屋の情報
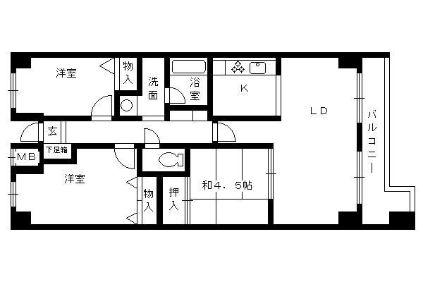
| 間取り | 4LDK | 専有面積 | 70.9m2 |
|---|---|---|---|
| 間取り詳細 | LDK(9.3帖)、洋室(6.2帖)、洋室(4.2帖)、洋室(4.2帖)、和室(4.5帖)、K(3帖) | ||
| 所在階 / 向き | 3階 / 西 | バルコニー面積 | 7m2 |
| 水道 / ガス | - | ||
| 設備 | バス・トイレ別、オートロック、光ファイバー対応、システムキッチン、エレベーター、角部屋、バルコニー、コンロ:ガス、BSアンテナ、シャワー、給湯、洗濯機:室内 | ||
| 当社物件ID | 8329661 | ||
建物の情報
| 建物名 | パデシオン宇治木幡 | ||
|---|---|---|---|
| 所在地 | 京都府宇治市木幡西浦 | ||
| 交通 | 京阪電気鉄道宇治線 木幡駅(京阪) 徒歩6分 | ||
| 階数 | 7階建 | 総戸数 | - |
| 築年月 | 1994年08月 / 築32年 | エレベーター | あり |
| 駐車場 | - | バイク置き場 | あり |
| 駐輪場 | あり | 管理人/管理会社 | - |
| 周辺環境 | その他 フレスコ木幡店 徒歩11分(869m) その他 セブンイレブン 徒歩8分(610m) その他 新鮮館コスモ木幡店 徒歩11分(832m) その他 ファミリーマート 徒歩13分(974m) その他 セブンイレブン 徒歩16分(1262m) その他 ローソン 徒歩22分(1707m) その他 フレスコプチ六地蔵店 徒歩21分(1623m) その他 TOKUYAベルファ宇治店 徒歩29分(2284m) | ||
| 建物種別 | マンション | 建物構造 | RC(鉄筋コンクリート) |
この部屋の取扱い不動産会社
| 会社名 | アパマンショップ宇治大久保店 | ||
|---|---|---|---|
| 所在地 | 京都府宇治市広野町西裏 99-21山崎ビル1F | 交通 | 近鉄京都線大久保から徒歩1分 |
| 営業時間 | 10:00〜18:30 | 定休日 | 水曜日 |
| 免許番号 | 京都府知事(5)11758 | 取引態様 | 仲介 |
| 不動産会社管理番号 | 56996124 | 当社管理番号 | 4 |
| 所属団体 | (公社)全日本不動産協会京都府本部 | ||
| 公正取引協議会 | (公社) 近畿地区不動産公正取引協議会加盟 | ||
| 取扱い物件情報 | 物件詳細へ | ||
※各種情報と現状に差異がある場合は、現状優先となります。問い合わせをすることで、より詳しい条件、情報を確認する事ができます。
提供:アパマンショップ宇治大久保店
この物件が気になったら掲載期限まであと10日
パデシオン宇治木幡に条件(家賃・エリア)が近い物件一覧
| 写真 | 家賃 管理費等 | 敷金 礼金 | 間取り 専有面積 | 築年数 | 最寄り駅 所在地 | キープ | 詳細 |
|---|---|---|---|---|---|---|---|
マンション 京都市東西線 太秦天神川駅 徒歩9分 新築(1K/5階) | |||||||
![]() | 7.92万円 1万円 | なし なし | 1K 25.52m2 | 新築 | 京都市東西線 太秦天神川駅 徒歩9分 山陰本線 花園駅(京都) 徒歩18分 京都府京都市右京区山ノ内宮脇町 | 詳細を見る | |
マンション 東海道本線 西大路駅 徒歩10分 新築(1K/9階) | |||||||
![]() | 7.169万円 5,210円 | なし なし | 1K 21.87m2 | 新築 | 東海道本線 西大路駅 徒歩10分 阪急電鉄京都線 西京極駅 徒歩20分 京都府京都市南区吉祥院西ノ庄西浦町 | 詳細を見る | |
マンション 奈良線 JR藤森駅 徒歩3分 築41年(1LDK/2階) | |||||||
![]() | 5.5万円 3,000円 | 11.6万円 なし | 1LDK 39.26m2 | 築41年 | 奈良線 JR藤森駅 徒歩3分 京阪電気鉄道京阪線 墨染駅 徒歩10分 京都府京都市伏見区深草大亀谷大谷町 | 詳細を見る | |
マンション 阪急電鉄京都線 西京極駅 徒歩3分 築15年(1LDK/2階) | |||||||
![]() | 9.2万円 4,000円 | 5万円 11万円 | 1LDK 55.28m2 | 築15年 | 阪急電鉄京都線 西京極駅 徒歩3分 阪急電鉄京都線 西院駅(阪急) 徒歩20分 京都府京都市右京区西京極西大丸町 | 詳細を見る | |
マンション VINE OAK NOCHE(1K/1階) | |||||||
![]() | 5.75万円 9,500円 | なし 5.75万円 | 1K 18.43m2 | 築21年 | 京都市烏丸線 丸太町駅(京都市営) 徒歩5分 京都市烏丸線 烏丸御池駅 徒歩6分 京都府京都市中京区松屋町 | 詳細を見る | |
一戸建て 京都市東西線 椥辻駅 徒歩15分 築44年(2LDK) | |||||||
![]() | 6.2万円 なし | 6.2万円 なし | 2LDK 42.58m2 | 築44年 | 京都市東西線 椥辻駅 徒歩15分 京都市東西線 小野駅(京都) 徒歩15分 京都府京都市山科区勧修寺西金ケ崎 | 詳細を見る | |
マンション 阪急電鉄京都線 西院駅(阪急) 徒歩7分 築17年(1DK/4階) | |||||||
![]() | 7.3万円 1万円 | なし なし | 1DK 35.08m2 | 築17年 | 阪急電鉄京都線 西院駅(阪急) 徒歩7分 山陰本線 二条駅 徒歩17分 京都府京都市右京区西院上今田町 | 詳細を見る | |
マンション 阪急電鉄京都線 西院駅(阪急) 徒歩9分 築1年(1DK/6階) | |||||||
![]() | 8.65万円 8,800円 | なし なし | 1DK 28.42m2 | 築1年 | 阪急電鉄京都線 西院駅(阪急) 徒歩9分 京都市東西線 西大路御池駅 徒歩17分 京都府京都市右京区西院矢掛町 | 詳細を見る | |








