賃貸マンション
ファミール愛宕の賃貸物件情報(2LDK/4階)
| 家賃 | 管理費等 | 敷金 | 礼金 | 間取り | 専有面積 |
|---|---|---|---|---|---|
| 5.8万円 | 5,000円 | 5.8万円 | なし | 2LDK | 54m2 |
入居決定でお祝い金最大100,000円
- 保証金
- -
- 償却・敷引
- -
- 築年数
- 築48年
- 所在階
- 4階
- 向き
- 東
Point
2沿線、3駅以上利用可☆駅前物件☆都市ガス☆シャワー付き洗面台他設備充実☆礼金不要☆事務所使用相談可☆
提供:(株)FIND(SUUMO経由)

詳細情報 ファミール愛宕
物件紹介
ファミール愛宕は仙台市地下鉄南北線愛宕橋駅から徒歩1分にあり、駅近で通勤通学に便利なマンションです。
このお部屋は2階以上に位置しているので、通行人や周囲の住人からの視線が気になりにくく、防犯面でも安心。インターホンにはTVモニタもついているため、相手の顔を確認してから来客対応することができます。
バス・トイレ別の仕様で、のんびりお風呂タイムも楽しめます。
通信設備面では、インターネット接続が可能です(別途工事、契約料が必要な場合あり)。
このお部屋は2階以上に位置しているので、通行人や周囲の住人からの視線が気になりにくく、防犯面でも安心。インターホンにはTVモニタもついているため、相手の顔を確認してから来客対応することができます。
バス・トイレ別の仕様で、のんびりお風呂タイムも楽しめます。
通信設備面では、インターネット接続が可能です(別途工事、契約料が必要な場合あり)。
お金・契約の情報
※「-」と表示されているものは、実際は料金が発生するものもございます。詳細はお問い合わせください。
| 家賃 | 5.8万円 | 管理費・共益費 | 5,000円 |
|---|---|---|---|
| 敷金 | 5.8万円 | 礼金 | なし |
| 入居決定でお祝い金最大100,000円 | |||
| 保証金 | - | 償却・敷引 | - |
| 住宅保険料 | - | 更新料 | - |
| 保証会社利用 | 利用可 | 保証会社名 | 日本賃貸保証 |
| 保証会社費用 | - | 保証会社備考 | 日本賃貸保証利用可 利用利用可能 個人契約は初回契約金月総額の50% |
| 契約形態 | - | 契約期間 | - |
| 入居・引渡期間 | 即時 | 現況 | - |
| 入居可能条件 | 事務所可 | ||
| 契約備考 | 更新料なし 合計1.87万円(内訳:鍵交換代18700円) 町内会費月額300円/月 2LDK 事務所利用相談 普通借家2年 損保【2万円2年】 バストイレ別、バルコニー、エアコン、シャワー付洗面台、TVインターホン、室内洗濯置、温水洗浄便座、洗面化粧台、駐輪場、光ファイバー、即入居可、礼金不要、照明付、オートバス、敷金1ヶ月、2沿線利用可、ディンプルキー、事務所相談、3駅以上利用可、駅前、都市ガス、保証会社利用可 | ||
部屋の情報
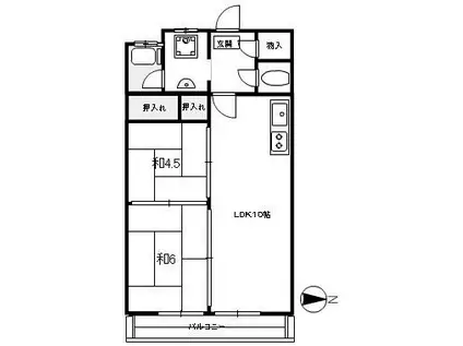
| 間取り | 2LDK | 専有面積 | 54m2 |
|---|---|---|---|
| 所在階 / 向き | 4階 / 東 | バルコニー面積 | - |
| 水道 / ガス | - | ||
| 設備 | バス・トイレ別、2階以上、テレビドアホン、追い焚き、インターネット対応、エアコン、温水洗浄便座、バルコニー、洗濯機:室内 | ||
| 当社物件ID | 13638696 | ||
建物の情報
| 建物名 | ファミール愛宕 | ||
|---|---|---|---|
| 所在地 | 宮城県仙台市若林区土樋 | ||
| 交通 | 仙台市地下鉄南北線 愛宕橋駅 徒歩1分 仙台市地下鉄南北線 五橋駅 徒歩9分 東北新幹線 仙台駅 徒歩20分 | ||
| 階数 | 5階建 | 総戸数 | 21戸 |
| 築年月 | 1978年09月 / 築48年 | エレベーター | - |
| 駐車場 | 空有 13200円 | バイク置き場 | - |
| 駐輪場 | あり | 管理人/管理会社 | - |
| 周辺環境 | その他 セブンイレブン仙台土樋店(コンビニ)まで213m | ||
| 建物種別 | マンション | 建物構造 | RC(鉄筋コンクリート) |
この部屋の取扱い不動産会社
| 会社名 | (株)FIND(SUUMO経由) | ||
|---|---|---|---|
| 所在地 | 宮城県仙台市青葉区国分町3-6-11 アーク仙台ビル3階 | 交通 | - |
| 営業時間 | 09:00-18:00 | 定休日 | 無し |
| 免許番号 | 宮城県知事6785 | 取引態様 | 仲介 |
| 不動産会社管理番号 | 100488101228 | 当社管理番号 | 89 |
| 所属団体 | (公社)宮城県宅地建物取引業協会会員 | ||
| 公正取引協議会 | 東北地区不動産公正取引協議会加盟 | ||
| 取扱い物件情報 | 物件詳細へ | ||
※各種情報と現状に差異がある場合は、現状優先となります。問い合わせをすることで、より詳しい条件、情報を確認する事ができます。
提供:(株)FIND(SUUMO経由)
この物件が気になったら掲載期限まであと10日
ファミール愛宕に条件(家賃・エリア)が近い物件一覧
| 写真 | 家賃 管理費等 | 敷金 礼金 | 間取り 専有面積 | 築年数 | 最寄り駅 所在地 | キープ | 詳細 |
|---|---|---|---|---|---|---|---|
アパート アスコット河原町駅前(2K/3階) | |||||||
![]() | 6.8万円 4,200円 | なし なし | 2K 33.48m2 | 築8年 | 仙台市地下鉄南北線 河原町駅(宮城) 徒歩4分 仙台市地下鉄南北線 長町一丁目駅 徒歩8分 仙台市地下鉄南北線 愛宕橋駅 徒歩17分 宮城県仙台市若林区河原町 | 詳細を見る | |
アパート アスコット文化町(1K/2階) | |||||||
![]() | 5.6万円 2,000円 | なし なし | 1K 24.93m2 | 築7年 | 仙台市地下鉄南北線 河原町駅(宮城) 徒歩15分 仙台市地下鉄東西線 連坊駅 徒歩19分 仙台市地下鉄東西線 薬師堂駅(宮城) 徒歩19分 宮城県仙台市若林区文化町 | 詳細を見る | |
アパート ラ・ベルメール(1LDK/1階) | |||||||
![]() | 5.8万円 3,000円 | なし 5.8万円 | 1LDK 37.26m2 | 築16年 | 仙台市地下鉄南北線 長町一丁目駅 徒歩15分 仙台市地下鉄南北線 河原町駅(宮城) 徒歩19分 宮城県仙台市若林区若林 | 詳細を見る | |
マンション コンフォートレジデンス仙台東口(1K/2階) | |||||||
![]() | 6.6万円 9,500円 | なし 6.6万円 | 1K 24.87m2 | 築8年 | JR仙石線 榴ケ岡駅 徒歩11分 仙台市地下鉄東西線 宮城野通駅 徒歩13分 JR常磐線 仙台駅 徒歩16分 宮城県仙台市宮城野区鉄砲町中 | 詳細を見る | |
マンション D-ROOM三百人町A(1LDK/3階) | |||||||
![]() | 7.8万円 5,000円 | なし なし | 1LDK 43.27m2 | 築17年 | 仙台市地下鉄東西線 連坊駅 徒歩8分 仙台市地下鉄南北線 河原町駅(宮城) 徒歩14分 仙台市地下鉄南北線 愛宕橋駅 徒歩17分 宮城県仙台市若林区三百人町 | 詳細を見る | |
アパート サクレ上山王(2LDK/1階) | |||||||
![]() | 5.9万円 2,000円 | なし なし | 2LDK 55.29m2 | 築21年 | JR東北本線 陸前山王駅 徒歩12分 JR東北本線 岩切駅 徒歩20分 JR東北本線 新利府駅 徒歩37分 宮城県多賀城市山王西町浦 | 詳細を見る | |
アパート REGALEST福沢町(2LDK/1階) | |||||||
![]() | 8.2万円 3,000円 | なし なし | 2LDK 40.65m2 | 新築 | JR仙山線 東照宮駅 徒歩9分 仙台市地下鉄南北線 北四番丁駅 徒歩20分 JR仙石線 仙台駅 徒歩23分 宮城県仙台市青葉区福沢町 | 詳細を見る | |
マンション ABEコーポ(3DK/2階) | |||||||
![]() | 5.5万円 なし | 5.5万円 5.5万円 | 3DK 48.6m2 | 築38年 | JR東北本線 南仙台駅 徒歩16分 仙台空港鉄道 名取駅 徒歩21分 仙台空港鉄道 杜せきのした駅 徒歩31分 宮城県名取市上余田千刈田 | 詳細を見る | |









