賃貸マンション
BRANZ TOWER 芝浦 ブランズタワー芝浦の賃貸物件情報(1LDK/14階)
| 家賃 | 管理費等 | 敷金 | 礼金 | 間取り | 専有面積 |
|---|---|---|---|---|---|
| 28万円 | 2万円 | 56万円 | 28万円 | 1LDK | 40.79m2 |
入居決定でお祝い金最大100,000円
- 保証金
- -
- 償却・敷引
- -
- 築年数
- 築5年
- 所在階
- 14階
- 向き
- 東
Point
まずはお問い合わせ!
不動産会社は街のプロ、あなたに合った物件がきっと見つかります。
提供:(株)ユウキ・ホーム麻布十番サテライト店(SUUMO経由)

詳細情報 BRANZ TOWER 芝浦 ブランズタワー芝浦
物件紹介
BRANZ TOWER 芝浦 ブランズタワー芝浦はJR山手線田町駅から徒歩8分にあり、駅近で通勤通学に便利なマンションです。
このお部屋は2階以上に位置しているので、通行人や周囲の住人からの視線が気になりにくく、防犯面でも安心。建物のエントランスはオートロックがついており、インターホンにはTVモニタもついているため、相手の顔を確認してから来客対応することができます。
フローリングのお部屋なのでお掃除もラクラク。キッチンはシステムキッチン仕様になっていますので、お料理好きの方にもぴったり。また、バス・トイレは別で、のんびりお風呂タイムも楽しめるでしょう。
建物にはエレベーターがついているので、重い荷物があっても安心。共用部には宅配ボックスが設定されているので、不在の時にも荷物を受け取ることができます。
このお部屋は2階以上に位置しているので、通行人や周囲の住人からの視線が気になりにくく、防犯面でも安心。建物のエントランスはオートロックがついており、インターホンにはTVモニタもついているため、相手の顔を確認してから来客対応することができます。
フローリングのお部屋なのでお掃除もラクラク。キッチンはシステムキッチン仕様になっていますので、お料理好きの方にもぴったり。また、バス・トイレは別で、のんびりお風呂タイムも楽しめるでしょう。
建物にはエレベーターがついているので、重い荷物があっても安心。共用部には宅配ボックスが設定されているので、不在の時にも荷物を受け取ることができます。
お金・契約の情報
※「-」と表示されているものは、実際は料金が発生するものもございます。詳細はお問い合わせください。
| 家賃 | 28万円 | 管理費・共益費 | 2万円 |
|---|---|---|---|
| 敷金 | 56万円 | 礼金 | 28万円 |
| 入居決定でお祝い金最大100,000円 | |||
| 保証金 | - | 償却・敷引 | - |
| 住宅保険料 | - | 更新料 | - |
| 保証会社利用 | 必須 | 保証会社名 | - |
| 保証会社費用 | - | 保証会社備考 | 保証会社利用必 初回保証料:賃料等の70%、詳細はお問い合わせください |
| 契約形態 | - | 契約期間 | - |
| 入居・引渡期間 | - | 現況 | - |
| 契約備考 | 通勤管理 合計5万円(内訳:鍵交換費用) 事務手数料(書類作成費)22000円 1LDK 単身者可 普通借家2年 損保【要】 バストイレ別、バルコニー、エアコン、クロゼット、フローリング、TVインターホン、オートロック、室内洗濯置、シューズボックス、システムキッチン、温水洗浄便座、エレベーター、洗面所独立、洗面化粧台、宅配ボックス、3口以上コンロ、防犯カメラ、グリル付、保証人不要、全居室フローリング、フロントサービス、エレベーター2基、3駅以上利用可、3沿線以上利用可、駅徒歩10分以内、タワー型マンション、24時間ゴミ出し可、敷地内ごみ置き場、築5年以内、日勤管理、都市ガス、保証会社利用可 入居日:'26年3月上旬 | ||
部屋の情報
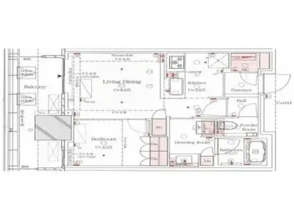
| 間取り | 1LDK | 専有面積 | 40.79m2 |
|---|---|---|---|
| 所在階 / 向き | 14階 / 東 | バルコニー面積 | - |
| 水道 / ガス | - | ||
| 設備 | バス・トイレ別、2階以上、オートロック、テレビドアホン、宅配ボックス、システムキッチン、エアコン、エレベーター、温水洗浄便座、バルコニー、フローリング、洗髪洗面化粧台、タワーマンション、2口コンロ、洗濯機:室内 | ||
| 当社物件ID | 160432482 | ||
建物の情報
| 建物名 | BRANZ TOWER 芝浦 ブランズタワー芝浦 | ||
|---|---|---|---|
| 所在地 | 東京都港区芝浦 | ||
| 交通 | JR山手線 田町駅(東京) 徒歩8分 新交通ゆりかもめ 芝浦ふ頭駅 徒歩8分 都営三田線 三田駅(東京) 徒歩10分 | ||
| 階数 | 地下1地上32階建 | 総戸数 | - |
| 築年月 | 2021年08月 / 築5年 | エレベーター | あり |
| 駐車場 | なし | バイク置き場 | - |
| 駐輪場 | - | 管理人/管理会社 | - |
| 周辺環境 | その他 肉のハナマサ芝浦店(スーパー)まで300m その他 マルエツプチ(スーパー)まで400m その他 ピーコック田町店(スーパー)まで500m その他 グランパーク田町(ショッピングセンター)まで500m その他 区立埠頭公園(公園)まで400m その他 ローソン(コンビニ)まで300m | ||
| 建物種別 | マンション | 建物構造 | RC(鉄筋コンクリート) |
この部屋の取扱い不動産会社
| 会社名 | (株)ユウキ・ホーム麻布十番サテライト店(SUUMO経由) | ||
|---|---|---|---|
| 所在地 | 東京都港区麻布十番2-19-10 桂麻布十番ビル1階 | 交通 | - |
| 営業時間 | 9:30~21:30 | 定休日 | 年中無休 |
| 免許番号 | 東京都知事76214 | 取引態様 | 仲介 |
| 不動産会社管理番号 | 100489419881 | 当社管理番号 | 89 |
| 所属団体 | (公社)東京都宅地建物取引業協会会員 | ||
| 公正取引協議会 | (公社)首都圏不動産公正取引協議会加盟 | ||
| 取扱い物件情報 | 物件詳細へ | ||
※各種情報と現状に差異がある場合は、現状優先となります。問い合わせをすることで、より詳しい条件、情報を確認する事ができます。
提供:(株)ユウキ・ホーム麻布十番サテライト店(SUUMO経由)
この物件が気になったら掲載期限まであと12日
BRANZ TOWER 芝浦 ブランズタワー芝浦に条件(家賃・エリア)が近い物件一覧
| 写真 | 家賃 管理費等 | 敷金 礼金 | 間取り 専有面積 | 築年数 | 最寄り駅 所在地 | キープ | 詳細 |
|---|---|---|---|---|---|---|---|
マンション アズ亀戸レジデンス(ワンルーム/1階) | |||||||
![]() | 18万円 5,000円 | 36万円 なし | ワンルーム 31.27m2 | 築22年 | JR総武線 亀戸駅 徒歩6分 東武亀戸線 亀戸水神駅 徒歩8分 都営新宿線 大島駅(東京) 徒歩9分 東京都江東区亀戸 | 詳細を見る | |
マンション プレール・ドゥーク大島(2LDK/2階) | |||||||
![]() | 23万円 1.1万円 | なし 23万円 | 2LDK 53.96m2 | 築2年 | 都営新宿線 東大島駅 徒歩6分 都営新宿線 大島駅(東京) 徒歩8分 都営新宿線 西大島駅 徒歩18分 東京都江東区大島 | 詳細を見る | |
マンション ザ・パークワンズ日本橋人形町(1LDK/2階) | |||||||
![]() | 21万円 なし | 21万円 21万円 | 1LDK 33.26m2 | 築1年 | 東京メトロ日比谷線 人形町駅 徒歩3分 東京メトロ半蔵門線 水天宮前駅 徒歩5分 都営新宿線 浜町駅 徒歩8分 東京都中央区日本橋人形町 | 詳細を見る | |
マンション プロスペクト清澄庭園(3LDK/6階) | |||||||
![]() | 28.4万円 なし | 28.4万円 28.4万円 | 3LDK 70.64m2 | 築24年 | 都営大江戸線 清澄白河駅 徒歩7分 都営新宿線 森下駅(東京) 徒歩10分 東京メトロ半蔵門線 水天宮前駅 徒歩11分 東京都江東区清澄 | 詳細を見る | |
マンション RIDGE豊洲(1LDK/3階) | |||||||
![]() | 18.6万円 1.5万円 | なし なし | 1LDK 39.99m2 | 築6年 | 東京メトロ有楽町線 豊洲駅 徒歩11分 りんかい線 東雲駅(東京) 徒歩14分 新交通ゆりかもめ 新豊洲駅 徒歩23分 東京都江東区東雲 | 詳細を見る | |
マンション RR HIRANO(1LDK/3階) | |||||||
![]() | 21万円 なし | 42万円 21万円 | 1LDK 56.21m2 | 築35年 | 東京メトロ半蔵門線 清澄白河駅 徒歩9分 都営大江戸線 清澄白河駅 徒歩9分 東京メトロ東西線 門前仲町駅 徒歩16分 東京都江東区平野 | 詳細を見る | |
マンション あやめガーデン(2K/12階) | |||||||
![]() | 17.5万円 1万円 | 17.5万円 17.5万円 | 2K 42.26m2 | 築12年 | 東京メトロ日比谷線 築地駅 徒歩1分 東京メトロ有楽町線 新富町駅(東京) 徒歩6分 東京メトロ日比谷線 東銀座駅 徒歩6分 東京都中央区築地 | 詳細を見る | |
マンション パークアクシス御茶ノ水ヒルトップ(ワンルーム/10階) | |||||||
![]() | 17.1万円 なし | 17.1万円 34.2万円 | ワンルーム 26.37m2 | 築8年 | 中央本線 御茶ノ水駅 徒歩6分 東京地下鉄丸ノ内線 御茶ノ水駅 徒歩6分 東京地下鉄半蔵門線 神保町駅 徒歩11分 東京都千代田区神田駿河台2丁目 | 詳細を見る | |









