賃貸マンション
メルシー博丈の賃貸物件情報(1K/7階)
| 家賃 | 管理費等 | 敷金 | 礼金 | 間取り | 専有面積 |
|---|---|---|---|---|---|
| 7万円 | 3,000円 | 14万円 | 7万円 | 1K | 29.81m2 |
入居決定でお祝い金最大100,000円
- 保証金
- -
- 償却・敷引
- -
- 築年数
- 築5年
- 所在階
- 7階
- 向き
- -
Point
まずはお問い合わせ!
不動産会社は街のプロ、あなたに合った物件がきっと見つかります。
提供:(株)シティホーム八丁堀センター(SUUMO経由)

詳細情報 メルシー博丈
物件紹介
メルシー博丈はJR山陽本線横川駅から徒歩3分にあり、駅近で通勤通学に便利なマンションです。
このお部屋は2階以上に位置しているので、通行人や周囲の住人からの視線が気になりにくく、防犯面でも安心。建物のエントランスはオートロックがついており、インターホンにはTVモニタもついているため、相手の顔を確認してから来客対応することができます。
おしゃれなデザイナーズ物件!人気の角部屋で周囲の居住者の生活音も気になりにくく、また、フローリングのお部屋なのでお掃除もラクラク。室内にはウォークインクローゼットがありますので、たくさんの荷物も効率的に収納ができます。キッチンはシステムキッチン仕様になっていますので、お料理好きの方にもぴったり。バス・トイレは別なので、のんびりお風呂タイムも楽しめるでしょう。また、雨の日でも浴室乾燥機を使えば、お洗濯も問題ありません。
通信設備面では、インターネットが無料で使えるので、月々の出費を抑えられるのも魅力です(別途工事等が必要な場合あり)。
建物にはエレベーターがついているので、重い荷物があっても安心。共用部には宅配ボックスが設定されているので、不在の時にも荷物を受け取ることができます。
このお部屋は2階以上に位置しているので、通行人や周囲の住人からの視線が気になりにくく、防犯面でも安心。建物のエントランスはオートロックがついており、インターホンにはTVモニタもついているため、相手の顔を確認してから来客対応することができます。
おしゃれなデザイナーズ物件!人気の角部屋で周囲の居住者の生活音も気になりにくく、また、フローリングのお部屋なのでお掃除もラクラク。室内にはウォークインクローゼットがありますので、たくさんの荷物も効率的に収納ができます。キッチンはシステムキッチン仕様になっていますので、お料理好きの方にもぴったり。バス・トイレは別なので、のんびりお風呂タイムも楽しめるでしょう。また、雨の日でも浴室乾燥機を使えば、お洗濯も問題ありません。
通信設備面では、インターネットが無料で使えるので、月々の出費を抑えられるのも魅力です(別途工事等が必要な場合あり)。
建物にはエレベーターがついているので、重い荷物があっても安心。共用部には宅配ボックスが設定されているので、不在の時にも荷物を受け取ることができます。
お金・契約の情報
※「-」と表示されているものは、実際は料金が発生するものもございます。詳細はお問い合わせください。
| 家賃 | 7万円 | 管理費・共益費 | 3,000円 |
|---|---|---|---|
| 敷金 | 14万円 | 礼金 | 7万円 |
| 入居決定でお祝い金最大100,000円 | |||
| 保証金 | - | 償却・敷引 | - |
| 住宅保険料 | - | 更新料 | - |
| 契約形態 | - | 契約期間 | - |
| 入居・引渡期間 | 即時 | 現況 | - |
| 契約備考 | 中型・大型バイクの駐輪可能です!!/自転車は各階居室前専用スペースに駐輪/中・大型バイクは1F駐輪場を利用 1K 損保【要】 バストイレ別、バルコニー、エアコン、フローリング、シャワー付洗面台、TVインターホン、浴室乾燥機、オートロック、室内洗濯置、陽当り良好、シューズボックス、システムキッチン、角住戸、温水洗浄便座、脱衣所、エレベーター、洗面所独立、洗面化粧台、2口コンロ、駐輪場、宅配ボックス、光ファイバー、即入居可、閑静な住宅地、2面採光、出窓、ウォークインクロゼット、単身者相談、バイク置場、全居室フローリング、ガスレンジ付、デザイナーズ、2沿線利用可、駅まで平坦、ネット使用料不要、眺望良好、ダブルロックキー、保証金不要、24時間換気システム、平坦地、一部フローリング、始発駅、2駅利用可、3沿線以上利用可、駅徒歩5分以内、バス停徒歩3分以内、敷地内ごみ置き場、都市ガス、洗面所にドア、縦型照明付洗面化粧台、高速ネット対応、IT重説対応物件、通風良好 | ||
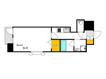
部屋の情報
| 間取り | 1K | 専有面積 | 29.81m2 |
|---|---|---|---|
| 所在階 / 向き | 7階 / - | バルコニー面積 | - |
| 水道 / ガス | - | ||
| 設備 | バス・トイレ別、2階以上、オートロック、テレビドアホン、宅配ボックス、浴室乾燥機、ウォークインクローゼット、インターネット対応、システムキッチン、エアコン、エレベーター、温水洗浄便座、角部屋、バルコニー、フローリング、洗髪洗面化粧台、2口コンロ、コンロ:ガス、デザイナーズ、インターネット使用料無料、洗濯機:室内 | ||
| 当社物件ID | 160167993 | ||
建物の情報
| 建物名 | メルシー博丈 | ||
|---|---|---|---|
| 所在地 | 広島県広島市西区三篠町 | ||
| 交通 | JR山陽本線 横川駅(広島) 徒歩3分 広島電鉄横川線 横川駅(広島) 徒歩3分 広島電鉄横川線 横川一丁目駅 徒歩8分 | ||
| 階数 | 9階建 | 総戸数 | 32戸 |
| 築年月 | 2021年03月 / 築5年 | エレベーター | あり |
| 駐車場 | 近隣 300m13200円 | バイク置き場 | あり |
| 駐輪場 | あり | 管理人/管理会社 | - |
| 周辺環境 | その他 フレスタモールカジル横川(ショッピングセンター)まで468m その他 フジ三篠店(スーパー)まで341m その他 ファミリーマート広島横川駅北口店(コンビニ)まで132m その他 ウォンツ横川店(ドラッグストア)まで318m その他 広島三篠郵便局(郵便局)まで301m その他 もみじ銀行三篠支店(銀行)まで156m | ||
| 建物種別 | マンション | 建物構造 | RC(鉄筋コンクリート) |
この部屋の取扱い不動産会社
| 会社名 | (株)シティホーム八丁堀センター(SUUMO経由) | ||
|---|---|---|---|
| 所在地 | 広島県広島市中区鉄砲町 10-18 | 交通 | - |
| 営業時間 | 9:30~19:00 | 定休日 | 無し |
| 免許番号 | 国土交通大臣5598 | 取引態様 | 仲介 |
| 不動産会社管理番号 | 100481456646 | 当社管理番号 | 89 |
| 所属団体 | (公社)全日本不動産協会広島県本部会員 | ||
| 公正取引協議会 | 中国地区不動産公正取引協議会加盟 | ||
| 取扱い物件情報 | 物件詳細へ | ||
※各種情報と現状に差異がある場合は、現状優先となります。問い合わせをすることで、より詳しい条件、情報を確認する事ができます。
提供:(株)シティホーム八丁堀センター(SUUMO経由)
この物件が気になったら掲載期限まであと9日
メルシー博丈に条件(家賃・エリア)が近い物件一覧
| 写真 | 家賃 管理費等 | 敷金 礼金 | 間取り 専有面積 | 築年数 | 最寄り駅 所在地 | キープ | 詳細 |
|---|---|---|---|---|---|---|---|
マンション FKビル(1K/8階) | |||||||
![]() | 4.2万円 なし | 4.2万円 4.2万円 | 1K 21.3m2 | 築36年 | 可部線 横川駅(広島) 徒歩5分 広島県広島市西区楠木町1丁目 | 詳細を見る | |
一戸建て 山陽本線 西広島駅 徒歩6分 築54年(2LDK) | |||||||
![]() | 6万円 なし | 6万円 12万円 | 2LDK 47m2 | 築54年 | 山陽本線 西広島駅 徒歩6分 広島電鉄本線 福島町駅 徒歩16分 広島県広島市西区己斐中2丁目 | 詳細を見る | |
マンション エミネンスオクダ(1K/9階) | |||||||
![]() | 4.5万円 3,000円 | 4.5万円 なし | 1K 23.37m2 | 築29年 | 山陽本線 横川駅(広島) 徒歩2分 広島県広島市西区横川町3丁目 | 詳細を見る | |
一戸建て 広島県山県郡北広島町 築30年(3LDK) | |||||||
![]() | 6万円 なし | 18万円 6万円 | 3LDK 89.34m2 | 築30年 | 広島県山県郡北広島町中祖 | 詳細を見る | |
タウンハウス アンソレイエII(3LDK) | |||||||
![]() | 9.5万円 2,000円 | 9.5万円 9.5万円 | 3LDK 79.54m2 | 築24年 | 広島電鉄宮島線 東高須駅 徒歩21分 広島電鉄宮島線 高須駅(広島) 徒歩24分 広島県広島市西区南観音5丁目 | 詳細を見る | |






