賃貸マンション
カーサとぎや町の賃貸物件情報(1LDK/7階)
| 家賃 | 管理費等 | 敷金 | 礼金 | 間取り | 専有面積 |
|---|---|---|---|---|---|
| 8万円 | 6,000円 | 16万円 | 8万円 | 1LDK | 35m2 |
入居決定でお祝い金最大100,000円
- 保証金
- -
- 償却・敷引
- -
- 築年数
- 築6年
- 所在階
- 7階
- 向き
- 西
Point
岡山駅徒歩9分の駅近物件☆ネット無料です!お問い合わせはお早めに!
提供:SUMIKA不動産 (株)SUMIKA(SUUMO経由)

詳細情報 カーサとぎや町
物件紹介
カーサとぎや町は岡山電軌東山本線柳川駅から徒歩2分にあり、駅近で通勤通学に便利なマンションです。
このお部屋は2階以上に位置しているので、通行人や周囲の住人からの視線が気になりにくく、防犯面でも安心。建物のエントランスはオートロックがついており、インターホンにはTVモニタもついているため、相手の顔を確認してから来客対応することができます。
フローリングのお部屋なのでお掃除もラクラク。室内には人気のウォークインクローゼットがありますので、たくさんの荷物も効率的に収納ができます。キッチンはシステムキッチン仕様になっていますので、お料理好きの方にもぴったり。バス・トイレは別なので、のんびりお風呂タイムも楽しめるでしょう。また、雨の日でも浴室乾燥機を使えば、お洗濯も問題ありません。
通信設備面では、インターネットが無料で使えるので、月々の出費を抑えられるのも魅力です(別途工事等が必要な場合あり)。
建物にはエレベーターがついているので、重い荷物があっても安心。共用部には宅配ボックスが設定されているので、不在の時にも荷物を受け取ることができます。
このお部屋は2階以上に位置しているので、通行人や周囲の住人からの視線が気になりにくく、防犯面でも安心。建物のエントランスはオートロックがついており、インターホンにはTVモニタもついているため、相手の顔を確認してから来客対応することができます。
フローリングのお部屋なのでお掃除もラクラク。室内には人気のウォークインクローゼットがありますので、たくさんの荷物も効率的に収納ができます。キッチンはシステムキッチン仕様になっていますので、お料理好きの方にもぴったり。バス・トイレは別なので、のんびりお風呂タイムも楽しめるでしょう。また、雨の日でも浴室乾燥機を使えば、お洗濯も問題ありません。
通信設備面では、インターネットが無料で使えるので、月々の出費を抑えられるのも魅力です(別途工事等が必要な場合あり)。
建物にはエレベーターがついているので、重い荷物があっても安心。共用部には宅配ボックスが設定されているので、不在の時にも荷物を受け取ることができます。
お金・契約の情報
※「-」と表示されているものは、実際は料金が発生するものもございます。詳細はお問い合わせください。
| 家賃 | 8万円 | 管理費・共益費 | 6,000円 |
|---|---|---|---|
| 敷金 | 16万円 | 礼金 | 8万円 |
| 入居決定でお祝い金最大100,000円 | |||
| 保証金 | - | 償却・敷引 | - |
| 住宅保険料 | - | 更新料 | - |
| 契約形態 | - | 契約期間 | - |
| 入居・引渡期間 | - | 現況 | - |
| 契約備考 | 未入居/清輝橋線郵便局前駅徒歩3分/巡回管理/岡山駅徒歩9分の駅近物件☆ネット無料です!お問い合わせはお早めに! 合計1.87万円(内訳:鍵交換代 18700円税込) 駐輪場 1100円/月額 1LDK 二人入居可/ルームシェア相談 普通借家2年 バストイレ別、バルコニー、エアコン、ガスコンロ対応、フローリング、シャワー付洗面台、TVインターホン、浴室乾燥機、オートロック、室内洗濯置、陽当り良好、システムキッチン、追焚機能浴室、温水洗浄便座、脱衣所、エレベーター、洗面所独立、閑静な住宅地、防犯カメラ、照明付、グリル付、ウォークインクロゼット、二人入居相談、全居室フローリング、駅まで平坦、ネット使用料不要、敷金2ヶ月、平坦地、ルームシェア相談、人感照明センサー、未入居、始発駅、3駅以上利用可、3沿線以上利用可、路面電車沿線、バス2路線、駅前、駅徒歩5分以内、プロパンガス、洗面所にドア、三面鏡付洗面化粧台、シューズWIC、玄関収納、礼金1ヶ月、全室照明付、通風良好 入居日:'26年4月中旬 | ||
部屋の情報
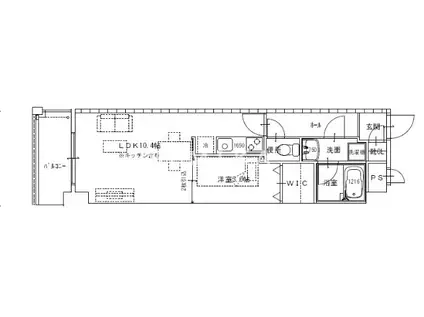
| 間取り | 1LDK | 専有面積 | 35m2 |
|---|---|---|---|
| 所在階 / 向き | 7階 / 西 | バルコニー面積 | - |
| 水道 / ガス | - | ||
| 設備 | バス・トイレ別、2階以上、オートロック、テレビドアホン、浴室乾燥機、ウォークインクローゼット、追い焚き、インターネット対応、システムキッチン、エアコン、エレベーター、温水洗浄便座、バルコニー、フローリング、洗髪洗面化粧台、コンロ:ガス、インターネット使用料無料、洗濯機:室内 | ||
| 当社物件ID | 47129969 | ||
建物の情報
| 建物名 | カーサとぎや町 | ||
|---|---|---|---|
| 所在地 | 岡山県岡山市北区磨屋町 | ||
| 交通 | 岡山電軌東山本線 柳川駅 徒歩2分 岡山電軌清輝橋線 柳川駅 徒歩2分 JR山陽本線 岡山駅 徒歩9分 | ||
| 階数 | 8階建 | 総戸数 | 31戸 |
| 築年月 | 2021年03月 / 築6年 | エレベーター | あり |
| 駐車場 | なし | バイク置き場 | - |
| 駐輪場 | - | 管理人/管理会社 | - |
| 周辺環境 | その他 クレド岡山(ショッピングセンター)まで271m その他 岡山シンフォニービル(ショッピングセンター)まで503m その他 天満屋岡山店(ショッピングセンター)まで555m その他 イコットニコット(ショッピングセンター)まで590m その他 森のマルシェ柳川店(スーパー)まで233m その他 セブンイレブン岡山田町店(コンビニ)まで262m | ||
| 建物種別 | マンション | 建物構造 | RC(鉄筋コンクリート) |
この部屋の取扱い不動産会社
| 会社名 | エイブルネットワーク岡山駅西口店BRUNO不動産(株)(SUUMO経由) | ||
|---|---|---|---|
| 所在地 | 岡山県岡山市北区駅元町 31-1 指月ビル1階 | 交通 | - |
| 営業時間 | 9:00~17:30 | 定休日 | 年末年始休暇 |
| 免許番号 | 国土交通大臣10228 | 取引態様 | 仲介 |
| 不動産会社管理番号 | 100492427543 | 当社管理番号 | 89 |
| 所属団体 | (一社)岡山県不動産協会会員 | ||
| 公正取引協議会 | 中国地区不動産公正取引協議会加盟 | ||
| 取扱い物件情報 | 物件詳細へ | ||
※各種情報と現状に差異がある場合は、現状優先となります。問い合わせをすることで、より詳しい条件、情報を確認する事ができます。
提供:エイブルネットワーク岡山駅西口店BRUNO不動産(株)(SUUMO経由)
この物件が気になったら掲載期限まであと11日
カーサとぎや町に条件(家賃・エリア)が近い物件一覧
| 写真 | 家賃 管理費等 | 敷金 礼金 | 間取り 専有面積 | 築年数 | 最寄り駅 所在地 | キープ | 詳細 |
|---|---|---|---|---|---|---|---|
マンション アルファライフ岡大医学部前(3LDK/3階) | |||||||
![]() | 11.5万円 なし | 34.5万円 11.5万円 | 3LDK 64.66m2 | 築18年 | 岡山電軌清輝橋線 清輝橋駅 徒歩4分 岡山電軌清輝橋線 東中央町駅 徒歩7分 JR山陽本線 岡山駅 徒歩25分 岡山県岡山市北区清輝橋 | 詳細を見る | |
マンション レオパレスボクスターK(1K/3階) | |||||||
![]() | 4.9万円 6,500円 | なし なし | 1K 20.28m2 | 築19年 | 岡山県岡山市北区今8丁目 | 詳細を見る | |
マンション いわいサンコーポ(2LDK/2階) | |||||||
![]() | 4.7万円 5,000円 | 4.7万円 4.7万円 | 2LDK 45.51m2 | 築54年 | JR吉備線 備前三門駅 徒歩4分 JR吉備線 大安寺駅 徒歩21分 JR山陽本線 岡山駅 徒歩23分 岡山県岡山市北区下伊福西町 | 詳細を見る | |
アパート サンビレッジ安江A棟(3DK/2階) | |||||||
![]() | 6.3万円 3,000円 | なし なし | 3DK 60.35m2 | 築33年 | 水島臨海鉄道 球場前駅(岡山) 徒歩13分 JR山陽本線 倉敷駅 徒歩26分 JR山陽本線 西阿知駅 徒歩36分 岡山県倉敷市安江 | 詳細を見る | |
アパート リビングタウン旭川B棟(2LDK/2階) | |||||||
![]() | 7.4万円 4,500円 | なし 7.4万円 | 2LDK 56.3m2 | 築23年 | 山陽本線 岡山駅 徒歩24分 岡山県岡山市北区京橋南町 | 詳細を見る | |
マンション グランツ西古松2(2DK/5階) | |||||||
![]() | 5万円 5,000円 | なし 5万円 | 2DK 43.9m2 | 築38年 | 宇野線 大元駅 徒歩11分 岡山県岡山市北区西古松 | 詳細を見る | |
アパート クレイノOZ-6(1K/2階) | |||||||
![]() | 6.3万円 6,500円 | なし なし | 1K 25.89m2 | 築7年 | 宇野線 茶屋町駅 徒歩12分 岡山県倉敷市高須賀 | 詳細を見る | |
マンション ALTURA(1LDK/6階) | |||||||
![]() | 6.3万円 5,000円 | なし なし | 1LDK 40m2 | 築9年 | 山陽本線 倉敷駅 徒歩29分 岡山県倉敷市平田 | 詳細を見る | |








