賃貸マンション
ZOOM中野の賃貸物件情報(1K/4階)
| 家賃 | 管理費等 | 敷金 | 礼金 | 間取り | 専有面積 |
|---|---|---|---|---|---|
| 13.2万円 | 1万円 | 13.2万円 | 13.2万円 | 1K | 25.74m2 |
入居決定でお祝い金最大100,000円
Point
■内見は現地待ち合わせでのご案内が可能です(要予約制)■契約金はクレジット決済が可能、分割払いも可能です
提供:(株)FINDERS ROPPONGI(SUUMO経由)

詳細情報 ZOOM中野
物件紹介
ZOOM中野はJR総武線中野駅から徒歩9分にあり、駅近で通勤通学に便利なマンションです。
このお部屋は2階以上に位置しているので、通行人や周囲の住人からの視線が気になりにくく、防犯面でも安心。建物のエントランスはオートロックがついており、インターホンにはTVモニタもついているため、相手の顔を確認してから来客対応することができます。
おしゃれなデザイナーズ物件!フローリングのお部屋なのでお掃除もラクラク。キッチンはシステムキッチン仕様になっていますので、お料理好きの方にもぴったり。バス・トイレは別なので、のんびりお風呂タイムも楽しめるでしょう。また、雨の日でも浴室乾燥機を使えば、お洗濯も問題ありません。
通信設備面では、インターネットが無料で使えるので、月々の出費を抑えられるのも魅力です。また、CATVにも対応しているので、おうち時間も充実するでしょう(別途工事、CATVの契約料等が必要な場合あり)。
建物にはエレベーターがついているので、重い荷物があっても安心。共用部には宅配ボックスが設定されているので、不在の時にも荷物を受け取ることができます。また、ペット飼育の相談ができますので、あなたの大切な家族の一員も快適に暮らせるか、ぜひ確認してみてください。
このお部屋は2階以上に位置しているので、通行人や周囲の住人からの視線が気になりにくく、防犯面でも安心。建物のエントランスはオートロックがついており、インターホンにはTVモニタもついているため、相手の顔を確認してから来客対応することができます。
おしゃれなデザイナーズ物件!フローリングのお部屋なのでお掃除もラクラク。キッチンはシステムキッチン仕様になっていますので、お料理好きの方にもぴったり。バス・トイレは別なので、のんびりお風呂タイムも楽しめるでしょう。また、雨の日でも浴室乾燥機を使えば、お洗濯も問題ありません。
通信設備面では、インターネットが無料で使えるので、月々の出費を抑えられるのも魅力です。また、CATVにも対応しているので、おうち時間も充実するでしょう(別途工事、CATVの契約料等が必要な場合あり)。
建物にはエレベーターがついているので、重い荷物があっても安心。共用部には宅配ボックスが設定されているので、不在の時にも荷物を受け取ることができます。また、ペット飼育の相談ができますので、あなたの大切な家族の一員も快適に暮らせるか、ぜひ確認してみてください。
お金・契約の情報
※「-」と表示されているものは、実際は料金が発生するものもございます。詳細はお問い合わせください。
| 家賃 | 13.2万円 | 管理費・共益費 | 1万円 |
|---|---|---|---|
| 敷金 | 13.2万円 | 礼金 | 13.2万円 |
| 入居決定でお祝い金最大100,000円 | |||
| 保証金 | - | 償却・敷引 | - |
| 住宅保険料 | - | 更新料 | - |
| 保証会社利用 | 必須 | 保証会社名 | - |
| 保証会社費用 | - | 保証会社備考 | 保証会社利用必 トーシンライフ、オリコフォレントインシュア、全保連/保証料:初回=賃料等×50%、月額=賃料等×1% |
| 契約形態 | - | 契約期間 | - |
| 入居・引渡期間 | - | 現況 | - |
| 入居可能条件 | ペット相談 | ||
| 契約備考 | 合計3.3万円(内訳:鍵交換費用(税込)33000円) ■契約時:当月分+翌月分の賃料・管理費をお支払い頂きます ■ペット飼育時:敷金1ヶ月追加(別途飼育細則参照・要申請書) ■解約時:ルームクリーニング費用及び借主負担分の原状回復費用をお支払い頂きます、家財保険+付帯サービス(税込)1735円/月 1K ペット相談 普通借家2年 バストイレ別、バルコニー、エアコン、ガスコンロ対応、クロゼット、フローリング、TVインターホン、浴室乾燥機、オートロック、室内洗濯置、シューズボックス、システムキッチン、追焚機能浴室、温水洗浄便座、脱衣所、エレベーター、洗面所独立、洗面化粧台、2口コンロ、駐輪場、宅配ボックス、CATV、外壁タイル張り、防犯カメラ、ペット相談、照明付、分譲賃貸、オートバス、敷金1ヶ月、バイク置場、デザイナーズ、2沿線利用可、ディンプルキー、ネット専用回線、ネット使用料不要、ダブルロックキー、24時間換気システム、外壁コンクリート、人感照明センサー、ペット専用設備、耐震構造、2駅利用可、駅徒歩10分以内、24時間ゴミ出し可、クリーニングボックス、敷地内ごみ置き場、都市ガス、LAN、マルチメディアコンセント、礼金1ヶ月 入居日:'26年2月中旬 | ||
部屋の情報
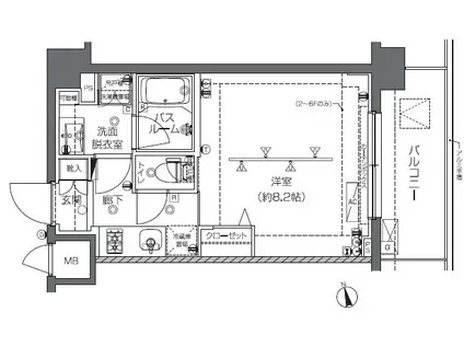
| 間取り | 1K | 専有面積 | 25.74m2 |
|---|---|---|---|
| 所在階 / 向き | 4階 / 東 | バルコニー面積 | 5m2 |
| 水道 / ガス | - | ||
| 設備 | バス・トイレ別、2階以上、オートロック、テレビドアホン、宅配ボックス、浴室乾燥機、追い焚き、インターネット対応、システムキッチン、エアコン、エレベーター、温水洗浄便座、バルコニー、フローリング、洗髪洗面化粧台、2口コンロ、コンロ:ガス、デザイナーズ、CATV、インターネット使用料無料、洗濯機:室内 | ||
| 当社物件ID | 27733629 | ||
建物の情報
| 建物名 | ZOOM中野 | ||
|---|---|---|---|
| 所在地 | 東京都中野区新井 | ||
| 交通 | JR総武線 中野駅(東京) 徒歩9分 西武新宿線 新井薬師前駅 徒歩10分 | ||
| 階数 | 7階建 | 総戸数 | 49戸 |
| 築年月 | 2018年05月 / 築8年 | エレベーター | あり |
| 駐車場 | なし | バイク置き場 | あり |
| 駐輪場 | あり | 管理人/管理会社 | - |
| 建物種別 | マンション | 建物構造 | RC(鉄筋コンクリート) |
この部屋の取扱い不動産会社
| 会社名 | (株)FINDERS ROPPONGI(SUUMO経由) | ||
|---|---|---|---|
| 所在地 | 東京都港区六本木3-4-33 マルマン六本木ビル3階 | 交通 | - |
| 営業時間 | 10:00~18:00 | 定休日 | 日曜日 |
| 免許番号 | 東京都知事105698 | 取引態様 | 仲介 |
| 不動産会社管理番号 | 100479917190 | 当社管理番号 | 89 |
| 所属団体 | (公社)全日本不動産協会東京都本部会員 | ||
| 公正取引協議会 | (公社)首都圏不動産公正取引協議会加盟 | ||
| 取扱い物件情報 | 物件詳細へ | ||
※各種情報と現状に差異がある場合は、現状優先となります。問い合わせをすることで、より詳しい条件、情報を確認する事ができます。
提供:(株)FINDERS ROPPONGI(SUUMO経由)
この物件が気になったら掲載期限まであと11日
ZOOM中野に条件(家賃・エリア)が近い物件一覧
| 写真 | 家賃 管理費等 | 敷金 礼金 | 間取り 専有面積 | 築年数 | 最寄り駅 所在地 | キープ | 詳細 |
|---|---|---|---|---|---|---|---|
マンション プレール・ドゥーク新宿ウエスト(1K/5階) | |||||||
![]() | 14.1万円 1万円 | 14.1万円 なし | 1K 25.3m2 | 築6年 | 東京メトロ丸ノ内線 西新宿駅 徒歩7分 都営大江戸線 中野坂上駅 徒歩8分 JR中央線 大久保駅(東京) 徒歩13分 東京都新宿区北新宿 | 詳細を見る | |
マンション トーシンフェニックス初台(1K/10階) | |||||||
![]() | 11.1万円 1.1万円 | なし 11.1万円 | 1K 21.7m2 | 築23年 | 京王新線 初台駅 徒歩5分 京王新線 幡ケ谷駅 徒歩7分 小田急線 参宮橋駅 徒歩16分 東京都渋谷区本町 | 詳細を見る | |
マンション ダイアパレス中野本町(ワンルーム/1階) | |||||||
![]() | 8.8万円 1.2万円 | 8.8万円 1円 | ワンルーム 22.79m2 | 築42年 | 東京地下鉄丸ノ内線 中野坂上駅 徒歩7分 東京都中野区本町1丁目 | 詳細を見る | |
マンション トラディス西池袋(1LDK/2階) | |||||||
![]() | 17.1万円 1万円 | なし なし | 1LDK 32.86m2 | 築2年 | 西武池袋線 椎名町駅 徒歩4分 東京メトロ有楽町線 要町駅 徒歩10分 JR山手線 目白駅 徒歩17分 東京都豊島区西池袋 | 詳細を見る | |
マンション ファーヴァル代々木上原(ワンルーム/2階) | |||||||
![]() | 11.5万円 1万円 | なし なし | ワンルーム 18.18m2 | 築1年 | 小田急線 代々木上原駅 徒歩3分 小田急線 代々木八幡駅 徒歩9分 東京メトロ千代田線 代々木公園駅 徒歩13分 東京都渋谷区上原 | 詳細を見る | |
マンション ヴィラカターラ(2LDK/5階) | |||||||
![]() | 12.7万円 1万円 | 25.4万円 なし | 2LDK 56.54m2 | 築30年 | 西武池袋線 大泉学園駅 徒歩9分 西武池袋線 保谷駅 徒歩20分 東京都練馬区東大泉 | 詳細を見る | |
マンション BRANCHE鷺ノ宮(1K/1階) | |||||||
![]() | 8万円 1.5万円 | なし なし | 1K 22.4m2 | 築18年 | 西武新宿線 鷺ノ宮駅 徒歩10分 西武池袋線 中村橋駅 徒歩11分 西武新宿線 都立家政駅 徒歩15分 東京都練馬区中村南 | 詳細を見る | |
アパート 夢のヴィオレット(ワンルーム/1階) | |||||||
![]() | 8.5万円 1.5万円 | なし 8.5万円 | ワンルーム 18.48m2 | 築1年 | 東京地下鉄方南支線 方南町駅 徒歩9分 京王電鉄京王線 笹塚駅 徒歩14分 東京都中野区南台5丁目 | 詳細を見る | |



/105x80-f1-q70-wp1)




