賃貸マンション
グランド・ガーラ横濱万世町の賃貸物件情報(1K/4階)
| 家賃 | 管理費等 | 敷金 | 礼金 | 間取り | 専有面積 |
|---|---|---|---|---|---|
| 6.9万円 | 9,000円 | 6.9万円 | 13.8万円 | 1K | 21.75m2 |
入居決定でお祝い金最大100,000円
- 保証金
- -
- 償却・敷引
- -
- 築年数
- 築18年
- 所在階
- 4階
- 向き
- 北東
Point
まずはお問い合わせ!
不動産会社は街のプロ、あなたに合った物件がきっと見つかります。
提供:(株)フォー・レント(SUUMO経由)

詳細情報 グランド・ガーラ横濱万世町
物件紹介
グランド・ガーラ横濱万世町はブルーライン伊勢佐木長者町駅から徒歩8分にあり、駅近で通勤通学に便利なマンションです。
このお部屋は2階以上に位置しているので、通行人や周囲の住人からの視線が気になりにくく、防犯面でも安心。建物のエントランスはオートロックがついており、インターホンにはTVモニタもついているため、相手の顔を確認してから来客対応することができます。
フローリングのお部屋なのでお掃除もラクラク。キッチンはシステムキッチン仕様になっていますので、お料理好きの方にもぴったり。バス・トイレは別なので、のんびりお風呂タイムも楽しめるでしょう。また、雨の日でも浴室乾燥機を使えば、お洗濯も問題ありません。
通信設備面では、インターネット接続が可能です。また、BSアンテナ・CSアンテナもありますので、おうち時間も充実するでしょう(別途工事、契約料が必要な場合あり)。
建物にはエレベーターがついているので、重い荷物があっても安心。共用部には宅配ボックスが設定されているので、不在の時にも荷物を受け取ることができます。
このお部屋は2階以上に位置しているので、通行人や周囲の住人からの視線が気になりにくく、防犯面でも安心。建物のエントランスはオートロックがついており、インターホンにはTVモニタもついているため、相手の顔を確認してから来客対応することができます。
フローリングのお部屋なのでお掃除もラクラク。キッチンはシステムキッチン仕様になっていますので、お料理好きの方にもぴったり。バス・トイレは別なので、のんびりお風呂タイムも楽しめるでしょう。また、雨の日でも浴室乾燥機を使えば、お洗濯も問題ありません。
通信設備面では、インターネット接続が可能です。また、BSアンテナ・CSアンテナもありますので、おうち時間も充実するでしょう(別途工事、契約料が必要な場合あり)。
建物にはエレベーターがついているので、重い荷物があっても安心。共用部には宅配ボックスが設定されているので、不在の時にも荷物を受け取ることができます。
お金・契約の情報
※「-」と表示されているものは、実際は料金が発生するものもございます。詳細はお問い合わせください。
| 家賃 | 6.9万円 | 管理費・共益費 | 9,000円 |
|---|---|---|---|
| 敷金 | 6.9万円 | 礼金 | 13.8万円 |
| 入居決定でお祝い金最大100,000円 | |||
| 保証金 | - | 償却・敷引 | - |
| 住宅保険料 | - | 更新料 | - |
| 保証会社利用 | 必須 | 保証会社名 | - |
| 保証会社費用 | - | 保証会社備考 | 保証会社利用必 クレディセゾン 賃料等の0.5ヶ月分(最低保証料2万円)/月額保証料 賃料等の1.2% |
| 契約形態 | - | 契約期間 | - |
| 入居・引渡期間 | 相談 | 現況 | - |
| 契約備考 | 更新料新賃料1ヶ月クリーニング費用51700円 合計2.31万円(内訳:鍵交換代23100円) (退去時)エアコンクリーニング費用/1台につき13,200円室内清掃費用38,500円 1K 単身者限定 普通借家2年 損保【2万円2年】 バストイレ別、バルコニー、エアコン、クロゼット、フローリング、TVインターホン、浴室乾燥機、オートロック、室内洗濯置、シューズボックス、システムキッチン、温水洗浄便座、脱衣所、エレベーター、洗面所独立、2口コンロ、駐輪場、宅配ボックス、光ファイバー、BS・CS、防犯カメラ、保証人不要、2沿線利用可、CS、3駅以上利用可、3沿線以上利用可、駅徒歩10分以内、敷地内ごみ置き場、都市ガス、BS、IT重説対応物件、初期費用カード決済可、家賃カード決済可 | ||
部屋の情報
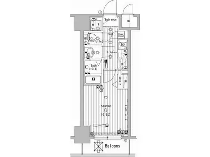
| 間取り | 1K | 専有面積 | 21.75m2 |
|---|---|---|---|
| 所在階 / 向き | 4階 / 北東 | バルコニー面積 | 4m2 |
| 水道 / ガス | - | ||
| 設備 | バス・トイレ別、2階以上、オートロック、テレビドアホン、宅配ボックス、浴室乾燥機、インターネット対応、システムキッチン、エアコン、エレベーター、温水洗浄便座、バルコニー、フローリング、洗髪洗面化粧台、2口コンロ、CSアンテナ、BSアンテナ、洗濯機:室内 | ||
| 当社物件ID | 19985691 | ||
建物の情報
| 建物名 | グランド・ガーラ横濱万世町 | ||
|---|---|---|---|
| 所在地 | 神奈川県横浜市南区万世町 | ||
| 交通 | ブルーライン 伊勢佐木長者町駅 徒歩8分 JR京浜東北線 関内駅 徒歩15分 京急本線 黄金町駅 徒歩15分 | ||
| 階数 | 地下1地上11階建 | 総戸数 | 170戸 |
| 築年月 | 2008年03月 / 築18年 | エレベーター | あり |
| 駐車場 | 近隣 200m20000円 | バイク置き場 | - |
| 駐輪場 | あり | 管理人/管理会社 | - |
| 周辺環境 | その他 まいばすけっと永楽町東橋店(スーパー)まで170m その他 ローソン真金町店(コンビニ)まで91m その他 ファミリーマート和田屋万世町店(コンビニ)まで157m その他 ドラッグストアスマイル横浜橋2号店(ドラッグストア)まで361m その他 すき家横浜橋店(飲食店)まで98m その他 デニーズ長者町店(飲食店)まで232m | ||
| 建物種別 | マンション | 建物構造 | RC(鉄筋コンクリート) |
この部屋の取扱い不動産会社
| 会社名 | (株)フォー・レント(SUUMO経由) | ||
|---|---|---|---|
| 所在地 | 神奈川県横浜市中区宮川町3-79-3 クリア桜木町2階 | 交通 | - |
| 営業時間 | 9:00~19:00 | 定休日 | 水曜日(1月~3月は無休) |
| 免許番号 | 神奈川県知事31068 | 取引態様 | 仲介 |
| 不動産会社管理番号 | 100483048529 | 当社管理番号 | 89 |
| 所属団体 | (公社)神奈川県宅地建物取引業協会会員 | ||
| 公正取引協議会 | (公社)首都圏不動産公正取引協議会加盟 | ||
| 取扱い物件情報 | 物件詳細へ | ||
※各種情報と現状に差異がある場合は、現状優先となります。問い合わせをすることで、より詳しい条件、情報を確認する事ができます。
提供:(株)フォー・レント(SUUMO経由)
この物件が気になったら掲載期限まであと10日
グランド・ガーラ横濱万世町に条件(家賃・エリア)が近い物件一覧
| 写真 | 家賃 管理費等 | 敷金 礼金 | 間取り 専有面積 | 築年数 | 最寄り駅 所在地 | キープ | 詳細 |
|---|---|---|---|---|---|---|---|
アパート GATHER HOUSE川崎小田栄(ワンルーム/3階) | |||||||
![]() | 5.7万円 4,000円 | 5.7万円 5.7万円 | ワンルーム 18.5m2 | 新築 | JR南武線 小田栄駅 徒歩7分 JR南武線 川崎新町駅 徒歩11分 JR鶴見線 武蔵白石駅 徒歩18分 神奈川県川崎市川崎区小田 | 詳細を見る | |
マンション アローランド溝の口(1K/2階) | |||||||
![]() | 6.6万円 なし | 6.6万円 6.6万円 | 1K 20.62m2 | 築30年 | 東急田園都市線 溝の口駅 徒歩7分 JR南武線 武蔵溝ノ口駅 徒歩10分 東急田園都市線 高津駅(神奈川) 徒歩12分 神奈川県川崎市高津区溝口 | 詳細を見る | |
マンション チャインコット湘南(1K/2階) | |||||||
![]() | 7.3万円 3,000円 | 7.3万円 14.6万円 | 1K 27.34m2 | 築18年 | 小田急江ノ島線 湘南台駅 徒歩10分 小田急江ノ島線 長後駅 徒歩24分 小田急江ノ島線 六会日大前駅 徒歩26分 神奈川県藤沢市湘南台 | 詳細を見る | |
マンション F・H・Dビル(1K/2階) | |||||||
![]() | 7.2万円 4,000円 | 7.2万円 7.2万円 | 1K 25.06m2 | 築12年 | 湘南モノレール 湘南深沢駅 徒歩6分 湘南モノレール 西鎌倉駅 徒歩23分 湘南モノレール 富士見町駅(神奈川) 徒歩28分 神奈川県鎌倉市笛田 | 詳細を見る | |
一戸建て 横須賀線 久里浜駅 徒歩17分 築19年(3LDK) | |||||||
![]() | 8.9万円 7,000円 | 8.9万円 8.9万円 | 3LDK 90.25m2 | 築19年 | 横須賀線 久里浜駅 徒歩17分 神奈川県横須賀市西浦賀3丁目 | 詳細を見る | |
アパート 第2コーポたかす(2K/1階) | |||||||
![]() | 6万円 2,000円 | 6万円 なし | 2K 35.6m2 | 築35年 | 京王相模原線 京王よみうりランド駅 徒歩9分 京王相模原線 京王稲田堤駅 徒歩11分 JR南武線 矢野口駅 徒歩11分 神奈川県川崎市多摩区菅城下 | 詳細を見る | |
マンション NーSTAGE つきみ野(1K/2階) | |||||||
![]() | 7.2万円 7,000円 | なし 7.2万円 | 1K 22.8m2 | 築4年 | 東急田園都市線 つきみ野駅 徒歩7分 東急田園都市線 南町田グランベリーパーク駅 徒歩14分 東急田園都市線 中央林間駅 徒歩25分 神奈川県大和市下鶴間 | 詳細を見る | |
マンション アドーレ湘南(ワンルーム/2階) | |||||||
![]() | 4.3万円 3,000円 | 4.3万円 なし | ワンルーム 18.9m2 | 築36年 | 小田急電鉄江ノ島線 六会日大前駅 徒歩4分 神奈川県藤沢市亀井野2丁目 | 詳細を見る | |









