賃貸マンション
エディット恵比寿の賃貸物件情報(ワンルーム/3階)
| 家賃 | 管理費等 | 敷金 | 礼金 | 間取り | 専有面積 |
|---|---|---|---|---|---|
| 17.9万円 | 1万円 | なし | なし | ワンルーム | 27.21m2 |
入居決定でお祝い金最大100,000円
- 保証金
- -
- 償却・敷引
- -
- 築年数
- 築6年
- 所在階
- 3階
- 向き
- 北西
Point
敷金・礼金なし フリーレント1ヶ月 恵比寿駅徒歩10分 広尾駅徒歩9分 インターネット無料 ペット可
提供:Ptif(株)(SUUMO経由)

詳細情報 エディット恵比寿
物件紹介
エディット恵比寿は東京メトロ日比谷線広尾駅から徒歩9分にあり、駅近で通勤通学に便利なマンションです。
このお部屋は2階以上に位置しているので、通行人や周囲の住人からの視線が気になりにくく、防犯面でも安心。建物のエントランスはオートロックがついており、インターホンにはTVモニタもついているため、相手の顔を確認してから来客対応することができます。
フローリングのお部屋なのでお掃除もラクラク。キッチンはシステムキッチン仕様になっていますので、お料理好きの方にもぴったり。バス・トイレは別なので、のんびりお風呂タイムも楽しめるでしょう。また、雨の日でも浴室乾燥機を使えば、お洗濯も問題ありません。
通信設備面では、インターネットが無料で使えるので、月々の出費を抑えられるのも魅力です。また、BSアンテナ・CSアンテナがありCATVにも対応しているので、おうち時間も充実するでしょう(別途工事、BS・CS・CATVの契約料等が必要な場合あり)。
建物にはエレベーターがついているので、重い荷物があっても安心。共用部には宅配ボックスが設定されているので、不在の時にも荷物を受け取ることができます。また、ペット飼育の相談ができますので、あなたの大切な家族の一員も快適に暮らせるか、ぜひ確認してみてください。
このお部屋は2階以上に位置しているので、通行人や周囲の住人からの視線が気になりにくく、防犯面でも安心。建物のエントランスはオートロックがついており、インターホンにはTVモニタもついているため、相手の顔を確認してから来客対応することができます。
フローリングのお部屋なのでお掃除もラクラク。キッチンはシステムキッチン仕様になっていますので、お料理好きの方にもぴったり。バス・トイレは別なので、のんびりお風呂タイムも楽しめるでしょう。また、雨の日でも浴室乾燥機を使えば、お洗濯も問題ありません。
通信設備面では、インターネットが無料で使えるので、月々の出費を抑えられるのも魅力です。また、BSアンテナ・CSアンテナがありCATVにも対応しているので、おうち時間も充実するでしょう(別途工事、BS・CS・CATVの契約料等が必要な場合あり)。
建物にはエレベーターがついているので、重い荷物があっても安心。共用部には宅配ボックスが設定されているので、不在の時にも荷物を受け取ることができます。また、ペット飼育の相談ができますので、あなたの大切な家族の一員も快適に暮らせるか、ぜひ確認してみてください。
お金・契約の情報
※「-」と表示されているものは、実際は料金が発生するものもございます。詳細はお問い合わせください。
| 家賃 | 17.9万円 | 管理費・共益費 | 1万円 |
|---|---|---|---|
| 敷金 | なし | 礼金 | なし |
| 入居決定でお祝い金最大100,000円 | |||
| 保証金 | - | 償却・敷引 | - |
| 住宅保険料 | - | 更新料 | - |
| 保証会社利用 | 必須 | 保証会社名 | - |
| 保証会社費用 | - | 保証会社備考 | 保証会社利用必 家賃総額55% |
| 契約形態 | - | 契約期間 | - |
| 入居・引渡期間 | 即時 | 現況 | - |
| 入居可能条件 | ペット相談 | ||
| 契約備考 | 都営三田線白金高輪駅徒歩18分/事務費:11000円24時間緊急対応料金:22000円口座振替手数料:550円/月 1年未満解約違約金:賃料1ヶ月+フリーレント分 退去時清掃費用あり 敷金積み増し:ペット飼育1ヶ月。除菌消臭代:17600円。 合計7.26万円(内訳:鍵交換代:22000円/24時間緊急対応費:22000円/室内除菌消臭費:17600円/事務手数料:11000円) 更新料新賃料(ヶ月):1.50ヶ月、口座振替手数料:550円/月 ワンルーム ペット相談 普通借家2年 損保【要】 バストイレ別、エアコン、クロゼット、フローリング、TVインターホン、浴室乾燥機、オートロック、室内洗濯置、シューズボックス、システムキッチン、追焚機能浴室、温水洗浄便座、脱衣所、エレベーター、洗面所独立、2口コンロ、光ファイバー、即入居可、礼金不要、BS・CS、敷金不要、防犯カメラ、ペット相談、IHクッキングヒーター、照明付、全居室収納、オートバス、保証人不要、ディンプルキー、ネット使用料不要、ダブルロックキー、保証金不要、24時間換気システム、敷地内ごみ置き場、都市ガス、玄関収納、高速ネット対応、敷金・礼金不要 敷金積み増し【ペット飼育の場合敷金1ヶ月(総額)】 | ||
部屋の情報
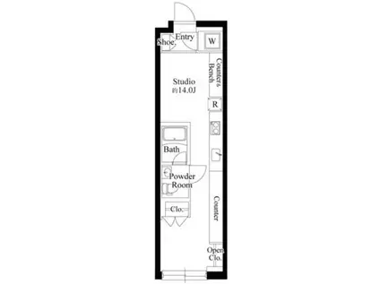
| 間取り | ワンルーム | 専有面積 | 27.21m2 |
|---|---|---|---|
| 所在階 / 向き | 3階 / 北西 | バルコニー面積 | - |
| 水道 / ガス | - | ||
| 設備 | バス・トイレ別、2階以上、オートロック、テレビドアホン、浴室乾燥機、追い焚き、インターネット対応、システムキッチン、エアコン、エレベーター、温水洗浄便座、フローリング、洗髪洗面化粧台、2口コンロ、コンロ:IH、CSアンテナ、BSアンテナ、インターネット使用料無料、洗濯機:室内 | ||
| 当社物件ID | 159457912 | ||
建物の情報
| 建物名 | エディット恵比寿 | ||
|---|---|---|---|
| 所在地 | 東京都渋谷区恵比寿 | ||
| 交通 | 東京メトロ日比谷線 広尾駅 徒歩9分 JR山手線 恵比寿駅 徒歩10分 都営三田線 白金台駅 徒歩18分 | ||
| 階数 | 5階建 | 総戸数 | - |
| 築年月 | 2020年08月 / 築6年 | エレベーター | あり |
| 駐車場 | なし | バイク置き場 | - |
| 駐輪場 | - | 管理人/管理会社 | - |
| 周辺環境 | その他 私立慶應義塾幼稚舎(小学校)まで500m その他 総合病院(病院)まで450m その他 広尾駅(東京メトロ 日比谷線)(その他)まで720m | ||
| 建物種別 | マンション | 建物構造 | RC(鉄筋コンクリート) |
この部屋の取扱い不動産会社
| 会社名 | (株)イーストジャパン不動産(SUUMO経由) | ||
|---|---|---|---|
| 所在地 | 東京都中央区築地2-4-6-201 | 交通 | - |
| 営業時間 | 10:00~19:00 | 定休日 | 無 |
| 免許番号 | 東京都知事98579 | 取引態様 | 仲介 |
| 不動産会社管理番号 | 100458381956 | 当社管理番号 | 89 |
| 所属団体 | (公社)東京都宅地建物取引業協会会員 | ||
| 公正取引協議会 | (公社)首都圏不動産公正取引協議会加盟 | ||
| 取扱い物件情報 | 物件詳細へ | ||
※各種情報と現状に差異がある場合は、現状優先となります。問い合わせをすることで、より詳しい条件、情報を確認する事ができます。
提供:(株)イーストジャパン不動産(SUUMO経由)
この物件が気になったら掲載期限まであと10日
エディット恵比寿に条件(家賃・エリア)が近い物件一覧
| 写真 | 家賃 管理費等 | 敷金 礼金 | 間取り 専有面積 | 築年数 | 最寄り駅 所在地 | キープ | 詳細 |
|---|---|---|---|---|---|---|---|
アパート K21 BASESUGINAMI(ワンルーム/2階) | |||||||
![]() | 12万円 1万円 | 12万円 なし | ワンルーム 26.08m2 | 築1年 | 京王電鉄井の頭線 西永福駅 徒歩15分 東京都杉並区成田東1丁目 | 詳細を見る | |
マンション ゼクスSHIROKANE(1LDK/4階) | |||||||
![]() | 17.1万円 9,000円 | 8.55万円 17.1万円 | 1LDK 40.63m2 | 築5年 | 東京メトロ日比谷線 広尾駅 徒歩10分 都営三田線 白金高輪駅 徒歩14分 JR山手線 恵比寿駅 徒歩18分 東京都港区白金 | 詳細を見る | |
マンション エスティメゾン中野(1K/5階) | |||||||
![]() | 13万円 1万円 | 13万円 13万円 | 1K 21.56m2 | 築17年 | JR中央線 中野駅(東京) 徒歩6分 東京メトロ丸ノ内線 新中野駅 徒歩8分 東京メトロ丸ノ内線 東高円寺駅 徒歩11分 東京都中野区中央 | 詳細を見る | |
マンション PATH中目黒UNO(ワンルーム/3階) | |||||||
![]() | 11万円 8,000円 | 11万円 11万円 | ワンルーム 18.87m2 | 築19年 | 東京メトロ日比谷線 中目黒駅 徒歩6分 東急東横線 祐天寺駅 徒歩9分 東急東横線 代官山駅 徒歩15分 東京都目黒区上目黒 | 詳細を見る | |
マンション レジディア杉並方南町(1K/3階) | |||||||
![]() | 12.7万円 1万円 | なし なし | 1K 32.58m2 | 築17年 | 東京メトロ丸ノ内線 方南町駅 徒歩3分 京王井の頭線 永福町駅 徒歩18分 東京メトロ丸ノ内線 新高円寺駅 徒歩23分 東京都杉並区堀ノ内 | 詳細を見る | |
マンション ラコルト井荻(2LDK/3階) | |||||||
![]() | 18万円 1.2万円 | なし 27万円 | 2LDK 55.06m2 | 築2年 | 西武新宿線 井荻駅 徒歩8分 西武新宿線 下井草駅 徒歩13分 東京都杉並区井草 | 詳細を見る | |
マンション グランシャリオ三軒茶屋(1SLDK/1階) | |||||||
![]() | 17.6万円 5,000円 | 17.6万円 26.4万円 | 1SLDK 51.53m2 | 築8年 | 東急田園都市線 三軒茶屋駅 徒歩8分 東急世田谷線 西太子堂駅 徒歩9分 東急世田谷線 若林駅(東京) 徒歩14分 東京都世田谷区太子堂 | 詳細を見る | |
マンション エストレージャス隨喜(1LDK/1階) | |||||||
![]() | 15.6万円 1万円 | なし なし | 1LDK 41.32m2 | 築6年 | 東京メトロ東西線 落合駅 徒歩5分 西武新宿線 中井駅 徒歩5分 JR総武線 東中野駅 徒歩15分 東京都新宿区上落合 | 詳細を見る | |








