賃貸アパート
叡山電鉄 木野駅 徒歩15分 2階建 築10年の賃貸物件情報(3LDK/2階)
| 家賃 | 管理費等 | 敷金 | 礼金 | 間取り | 専有面積 |
|---|---|---|---|---|---|
| 10.5万円 | 5,000円 | なし | 15万円 | 3LDK | 67.11m2 |
入居決定でお祝い金最大100,000円
Point
閑静な住宅地岩倉に大和ハウス施工物件登場
提供:株式会社 京都ライフ 北大路店(賃貸スモッカ経由)

詳細情報 叡山電鉄 木野駅 徒歩15分 2階建 築10年
物件紹介
叡山電鉄木野駅から徒歩15分にあるアパートです。
このお部屋は2階以上に位置しているので、通行人や周囲の住人からの視線が気になりにくく、防犯面でも安心です。
人気の南向きのお部屋。また、フローリングなのでお掃除もラクラク。キッチンはシステムキッチン仕様になっていますので、お料理好きの方にもぴったり。バス・トイレは別なので、のんびりお風呂タイムも楽しめるでしょう。また、雨の日でも浴室乾燥機を使えば、お洗濯も問題ありません。
通信設備面ではBSアンテナがありますので、おうち時間も充実するでしょう(別途工事、契約料が必要な場合あり)。
このお部屋は2階以上に位置しているので、通行人や周囲の住人からの視線が気になりにくく、防犯面でも安心です。
人気の南向きのお部屋。また、フローリングなのでお掃除もラクラク。キッチンはシステムキッチン仕様になっていますので、お料理好きの方にもぴったり。バス・トイレは別なので、のんびりお風呂タイムも楽しめるでしょう。また、雨の日でも浴室乾燥機を使えば、お洗濯も問題ありません。
通信設備面ではBSアンテナがありますので、おうち時間も充実するでしょう(別途工事、契約料が必要な場合あり)。
お金・契約の情報
※「-」と表示されているものは、実際は料金が発生するものもございます。詳細はお問い合わせください。
| 家賃 | 10.5万円 | 管理費・共益費 | 5,000円 |
|---|---|---|---|
| 敷金 | なし | 礼金 | 15万円 |
| 入居決定でお祝い金最大100,000円 | |||
| 保証金 | - | 償却・敷引 | - |
| 住宅保険料 | 住宅保険料あり | 更新料 | - |
| 契約形態 | - | 契約期間 | 1年 |
| 入居・引渡期間 | 即時 | 現況 | 空室 |
| 契約備考 | 閑静な住宅街の岩倉エリアにインターネット無料のハイツが募集となりました。警備保障も完備でファミリー様も安心ですね。3口ガスコンロのシステムキッチンに追炊き機能付き浴室と水廻りの設備も充実しております。駐車場はセット契約ですので戸数分用意されております。小学校区は岩倉南小学校区です。京都市左京区の賃貸の事なら京都ライフまでお問い合わせ下さい。 リブネス安心サポート:880円 更新料:30,000円 保証会社:利用必須 初回:月額賃料等の50%、月額:保証料として月額賃料等の1%(初回保証料は最低保証料15000円、月額保証料は最低保証料300円) その他設備/条件:最上階の物件、コンロ2口以上、独立洗面台、TVドアホン、即入居可 | ||
部屋の情報
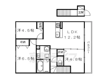
| 間取り | 3LDK | 専有面積 | 67.11m2 |
|---|---|---|---|
| 間取り詳細 | 洋室(4.8帖)、洋室(6.5帖)、洋室(4.5帖)、LDK(12.2帖) | ||
| 所在階 / 向き | 2階 / 南東 | バルコニー面積 | - |
| 水道 / ガス | ガス【都市】 | ||
| 設備 | バス・トイレ別、2階以上、浴室乾燥機、追い焚き、システムキッチン、カウンターキッチン、エアコン、温水洗浄便座、南向き、バルコニー、フローリング、コンロ:ガス、BSアンテナ、洗濯機:室内 | ||
| 当社物件ID | 159987274 | ||
建物の情報
| 建物名 | 叡山電鉄 木野駅 徒歩15分 2階建 築10年 | ||
|---|---|---|---|
| 所在地 | 京都府京都市左京区岩倉幡枝町 | ||
| 交通 | 叡山電鉄 木野駅 徒歩15分 京都市烏丸線 国際会館駅 徒歩23分 | ||
| 階数 | 2階建 | 総戸数 | - |
| 築年月 | 2016年11月 / 築10年 | エレベーター | - |
| 駐車場 | - | バイク置き場 | - |
| 駐輪場 | あり | 管理人/管理会社 | - |
| 建物種別 | アパート | 建物構造 | 軽量鉄骨造 |
この部屋の取扱い不動産会社
| 会社名 | 株式会社 京都ライフ 北大路店(賃貸スモッカ経由) | ||
|---|---|---|---|
| 所在地 | 京都市北区小山上総町11 | 交通 | - |
| 営業時間 | - | 定休日 | - |
| 免許番号 | 京都府知事(11)第6353号 | 取引態様 | 仲介 |
| 不動産会社管理番号 | kyotolife_62713-202-22 | 当社管理番号 | 463 |
| 所属団体 | 京都府宅地建物取引業協会\n公益社団法人近畿地区不動産公正取引協議会 | ||
| 公正取引協議会 | 全国宅地建物取引業保証協会 | ||
| 取扱い物件情報 | 物件詳細へ | ||
※各種情報と現状に差異がある場合は、現状優先となります。問い合わせをすることで、より詳しい条件、情報を確認する事ができます。
提供:株式会社 京都ライフ 北大路店(賃貸スモッカ経由)
この物件が気になったら掲載期限まであと6日
叡山電鉄 木野駅 徒歩15分 2階建 築10年に条件(家賃・エリア)が近い物件一覧
| 写真 | 家賃 管理費等 | 敷金 礼金 | 間取り 専有面積 | 築年数 | 最寄り駅 所在地 | キープ | 詳細 |
|---|---|---|---|---|---|---|---|
マンション 京阪電気鉄道宇治線 木幡駅(京阪) 徒歩2分 築39年(3LDK/3階) | |||||||
![]() | 7.3万円 7,000円 | なし なし | 3LDK 60.5m2 | 築39年 | 京阪電気鉄道宇治線 木幡駅(京阪) 徒歩2分 奈良線 木幡駅(JR) 徒歩3分 京都府宇治市木幡西中 | 詳細を見る | |
マンション 京阪電気鉄道宇治線 黄檗駅(京阪) 徒歩15分 築29年(3LDK/3階) | |||||||
![]() | 7.5万円 4,000円 | 7.5万円 7.5万円 | 3LDK 64.8m2 | 築29年 | 京阪電気鉄道宇治線 黄檗駅(京阪) 徒歩15分 奈良線 黄檗駅(JR) 徒歩17分 京都府宇治市五ケ庄 | 詳細を見る | |
マンション THE ROSE RES 一乗寺(1K/3階) | |||||||
![]() | 7.6万円 7,000円 | なし 15.2万円 | 1K 25.05m2 | 新築 | 叡山電鉄叡山本線 一乗寺駅 徒歩8分 叡山電鉄叡山本線 茶山・京都芸術大学駅 徒歩8分 地下鉄烏丸線 松ケ崎駅(京都) 徒歩29分 京都府京都市左京区一乗寺築田町 | 詳細を見る | |
マンション ノースERN TIDE LEGACY(2LDK/1階) | |||||||
![]() | 12万円 6,000円 | なし 20万円 | 2LDK 49.5m2 | 築2年 | 京都市烏丸線 松ケ崎駅(京都) 徒歩10分 京都府京都市左京区松ケ崎小脇町 | 詳細を見る | |
アパート 阪急電鉄京都線 東向日駅 徒歩10分 築23年(1K/2階) | |||||||
![]() | 7万円 5,000円 | なし 7万円 | 1K 19.87m2 | 築23年 | 阪急電鉄京都線 東向日駅 徒歩10分 東海道本線 向日町駅 徒歩17分 京都府向日市寺戸町北前田 | 詳細を見る | |
マンション 叡山電鉄 修学院駅 徒歩6分 新築(1K/2階) | |||||||
![]() | 7.14万円 5,840円 | なし 7.724万円 | 1K 25.95m2 | 新築 | 叡山電鉄 修学院駅 徒歩6分 叡山電鉄 一乗寺駅 徒歩9分 京都府京都市左京区高野泉町 | 詳細を見る | |







