賃貸アパート
アンプルールクラージュコリーヌシャンⅡの賃貸物件情報(1K/1階)
| 家賃 | 管理費等 | 敷金 | 礼金 | 間取り | 専有面積 |
|---|---|---|---|---|---|
| 5.8万円 | 3,000円 | なし | 5.8万円 | 1K | 32.61m2 |
入居決定でお祝い金最大100,000円
- 保証金
- -
- 償却・敷引
- -
- 築年数
- 築17年
- 所在階
- 1階
- 向き
- 西
- 交通
- 阪急電鉄箕面線 桜井駅(大阪) 徒歩14分
大阪モノレール本線 少路駅(大阪モノレール) 徒歩19分
- 所在地
- 大阪府豊中市宮山町4丁目
アンプルールクラージュコリーヌシャンⅡ
[地図を表示]
Point
室内設備は洗面所独立・浴室乾燥機などが揃っているので、快適に過ごしやすいお部屋になります。
提供:大阪ハウスコム株式会社 千里中央店

詳細情報 アンプルールクラージュコリーヌシャンⅡ
物件紹介
アンプルールクラージュコリーヌシャンⅡは阪急電鉄箕面線桜井駅から徒歩14分にあるアパートです。
建物のエントランスはオートロックがついており、インターホンにはTVモニタもついているため、相手の顔を確認してから来客対応することができます。
人気の角部屋で周囲の居住者の生活音も気になりにくく、また、フローリングのお部屋なのでお掃除もラクラク。キッチンはシステムキッチン仕様になっていますので、お料理好きの方にもぴったり。バス・トイレは別なので、のんびりお風呂タイムも楽しめるでしょう。また、雨の日でも浴室乾燥機を使えば、お洗濯も問題ありません。
通信設備面では、インターネット接続が可能です(別途工事、契約料が必要な場合あり)。
建物のエントランスはオートロックがついており、インターホンにはTVモニタもついているため、相手の顔を確認してから来客対応することができます。
人気の角部屋で周囲の居住者の生活音も気になりにくく、また、フローリングのお部屋なのでお掃除もラクラク。キッチンはシステムキッチン仕様になっていますので、お料理好きの方にもぴったり。バス・トイレは別なので、のんびりお風呂タイムも楽しめるでしょう。また、雨の日でも浴室乾燥機を使えば、お洗濯も問題ありません。
通信設備面では、インターネット接続が可能です(別途工事、契約料が必要な場合あり)。
お金・契約の情報
※「-」と表示されているものは、実際は料金が発生するものもございます。詳細はお問い合わせください。
| 家賃 | 5.8万円 | 管理費・共益費 | 3,000円 |
|---|---|---|---|
| 敷金 | なし | 礼金 | 5.8万円 |
| 入居決定でお祝い金最大100,000円 | |||
| 保証金 | - | 償却・敷引 | - |
| 住宅保険料 | 1円 | 更新料 | - |
| 保証会社利用 | 必須 | 保証会社名 | - |
| 保証会社費用 | - | 保証会社備考 | 初回保証料:総賃料の80% 月額保証料:550円 更新:20000円/2年 |
| 契約形態 | - | 契約期間 | 2年 |
| 入居・引渡期間 | 即時 | 現況 | - |
| 入居可能条件 | 事務所不可、2人入居不可、楽器不可 | ||
| 契約備考 | その他設備/条件:室内洗濯機置き場、独立洗面台、クローゼット、シューズボックス | ||
部屋の情報
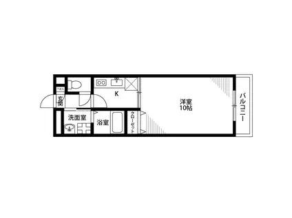
| 間取り | 1K | 専有面積 | 32.61m2 |
|---|---|---|---|
| 間取り詳細 | 洋室(10帖)、K(3.5帖) | ||
| 所在階 / 向き | 1階 / 西 | バルコニー面積 | 2m2 |
| 水道 / ガス | 水道【公営】、ガス【都市】 | ||
| 設備 | バス・トイレ別、オートロック、テレビドアホン、浴室乾燥機、光ファイバー対応、システムキッチン、エアコン、角部屋、バルコニー、フローリング、洗髪洗面化粧台、2口コンロ、コンロ:ガス、給湯 | ||
| 当社物件ID | 17874120 | ||
建物の情報
| 建物名 | アンプルールクラージュコリーヌシャンⅡ | ||
|---|---|---|---|
| 所在地 | 大阪府豊中市宮山町4丁目 | ||
| 交通 | 阪急電鉄箕面線 桜井駅(大阪) 徒歩14分 大阪モノレール本線 少路駅(大阪モノレール) 徒歩19分 | ||
| 階数 | 2階建 | 総戸数 | 24戸 |
| 築年月 | 2010年02月 / 築17年 | エレベーター | - |
| 駐車場 | 空有 1.21万円/月 | バイク置き場 | - |
| 駐輪場 | あり | 管理人/管理会社 | - |
| 周辺環境 | 販売店 徒歩6分(431m) 中学校 豊中市立 第二中学校 徒歩8分(588m) その他 ドラッグストア その他 公園 その他 銀行 その他 * | ||
| 建物種別 | アパート | 建物構造 | 軽量鉄骨造 |
この部屋の取扱い不動産会社
| 会社名 | 大阪ハウスコム株式会社 山田店 | ||
|---|---|---|---|
| 所在地 | 大阪府吹田市1-1デュー阪急山田一階 | 交通 | - |
| 営業時間 | 10:00~18:00 | 定休日 | 水曜定休 |
| 免許番号 | 国土交通大臣(3)第8685号 | 取引態様 | 仲介 |
| 不動産会社管理番号 | HC5-2795082-108-0240 | 当社管理番号 | 468 |
| 所属団体 | 、 | ||
| 取扱い物件情報 | 物件詳細へ | ||
※各種情報と現状に差異がある場合は、現状優先となります。問い合わせをすることで、より詳しい条件、情報を確認する事ができます。
提供:大阪ハウスコム株式会社 山田店
この物件が気になったら掲載期限まであと4日
アンプルールクラージュコリーヌシャンⅡに条件(家賃・エリア)が近い物件一覧
| 写真 | 家賃 管理費等 | 敷金 礼金 | 間取り 専有面積 | 築年数 | 最寄り駅 所在地 | キープ | 詳細 |
|---|---|---|---|---|---|---|---|
マンション エスリード新大阪(1K/8階) | |||||||
| 4.4万円 9,000円 | なし なし | 1K 17.75m2 | 築31年 | 大阪市御堂筋線 新大阪駅 徒歩8分 大阪市御堂筋線 西中島南方駅 徒歩11分 阪急電鉄京都線 崇禅寺駅 徒歩11分 大阪府大阪市東淀川区東中島1丁目14-30 | 詳細を見る | ||
マンション モノトーン淡路(1K/4階) | |||||||
![]() | 5.9万円 6,000円 | なし 5.9万円 | 1K 22m2 | 築10年 | 阪急電鉄京都線 淡路駅 徒歩7分 おおさか東線 JR淡路駅 徒歩11分 阪急電鉄千里線 下新庄駅 徒歩11分 大阪府大阪市東淀川区淡路5丁目 | 詳細を見る | |
アパート レオパレス江坂(1K/2階) | |||||||
| 6.9万円 5,000円 | なし 6.9万円 | 1K 20.28m2 | 築32年 | 大阪市御堂筋線 江坂駅 徒歩10分 阪急電鉄宝塚線 庄内駅(大阪) 徒歩27分 阪急電鉄宝塚線 服部天神駅 徒歩27分 大阪府吹田市芳野町5-70 | 詳細を見る | ||
マンション AILE柴島(1K/3階) | |||||||
| 7.25万円 1.1万円 | なし 7.25万円 | 1K 23.86m2 | 築1年 | 阪急電鉄千里線 柴島駅 徒歩13分 阪急電鉄京都線 崇禅寺駅 徒歩20分 阪急電鉄京都線 南方駅(大阪) 徒歩21分 大阪府大阪市東淀川区柴島2丁目未 | 詳細を見る | ||
アパート グランパシフィック大経大北(1LDK/2階) | |||||||
| 7.7万円 3,000円 | なし 7.7万円 | 1LDK 37.69m2 | 築5年 | 大阪市今里筋線 瑞光四丁目駅 徒歩8分 大阪市今里筋線 井高野駅 徒歩10分 大阪市今里筋線 だいどう豊里駅 徒歩18分 大阪府大阪市東淀川区南江口2丁目6-68 | 詳細を見る | ||
マンション プレサンス東三国駅前グランクラス(1K/6階) | |||||||
| 7.546万円 6,540円 | なし 10万円 | 1K 21.09m2 | 築4年 | 東海道本線 東淀川駅 徒歩5分 大阪市御堂筋線 東三国駅 徒歩7分 大阪市御堂筋線 新大阪駅 徒歩11分 大阪府大阪市淀川区宮原2丁目12-10 | 詳細を見る | ||
アパート クレールメゾン(1K/6階) | |||||||
| 6.45万円 1.1万円 | なし 6.45万円 | 1K 23.55m2 | 築24年 | 東海道本線 吹田駅(JR) 徒歩1分 阪急電鉄千里線 吹田駅(阪急) 徒歩10分 阪急電鉄京都線 相川駅 徒歩15分 大阪府吹田市朝日町5-5 | 詳細を見る | ||
マンション ETC天神橋(1K/5階) | |||||||
| 7.1万円 7,000円 | なし 7.1万円 | 1K 25m2 | 築10年 | 大阪市谷町線 天神橋筋六丁目駅 徒歩2分 大阪環状線 天満駅 徒歩9分 大阪市谷町線 中崎町駅 徒歩12分 大阪府大阪市北区国分寺2丁目2-39 | 詳細を見る | ||
豊中市の町名から探す
豊中市の部屋を間取りから探す
豊中市の駅から探す
豊中市と隣接している市区町村から探す
- 豊中市(5,251)
- 大阪市都島区(2,077)
- 大阪市福島区(2,412)
- 大阪市此花区(406)
- 大阪市西区(4,901)
- 大阪市港区(1,318)
- 大阪市大正区(1,124)
- 大阪市天王寺区(1,455)
- 大阪市浪速区(3,902)
- 大阪市西淀川区(2,076)
- 大阪市東淀川区(4,771)
- 大阪市東成区(2,754)
- 大阪市生野区(1,777)
- 大阪市旭区(2,496)
- 大阪市城東区(2,384)
- 大阪市阿倍野区(1,580)
- 大阪市住吉区(2,194)
- 大阪市東住吉区(2,092)
- 大阪市西成区(752)
- 大阪市淀川区(5,498)
- 大阪市鶴見区(1,195)
- 大阪市住之江区(998)
- 大阪市平野区(1,851)
- 大阪市北区(5,432)
- 大阪市中央区(5,767)
- 池田市(1,619)
- 吹田市(6,373)
- 箕面市(1,644)


