賃貸マンション
ウエリスアーバン大塚の賃貸物件情報(1LDK/2階)
| 家賃 | 管理費等 | 敷金 | 礼金 | 間取り | 専有面積 |
|---|---|---|---|---|---|
| 14.4万円 | 1.5万円 | 14.4万円 | なし | 1LDK | 30.07m2 |
入居決定でお祝い金最大100,000円
Point
当店では、仲介手数料(賃料の1.1ヶ月)の50%OFFです!
提供:アパマンショップ駒込店

詳細情報 ウエリスアーバン大塚
物件紹介
ウエリスアーバン大塚は都電荒川線巣鴨新田駅から徒歩3分にあり、駅近で通勤通学に便利なマンションです。
このお部屋は2階以上に位置しているので、通行人や周囲の住人からの視線が気になりにくく、防犯面でも安心。建物のエントランスはオートロックがついており、インターホンにはTVモニタもついているため、相手の顔を確認してから来客対応することができます。
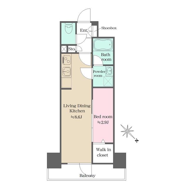
人気の角部屋で周囲の居住者の生活音も気になりにくく、また、フローリングのお部屋なのでお掃除もラクラク。室内にはウォークインクローゼットがありますので、たくさんの荷物も効率的に収納ができます。キッチンはシステムキッチン仕様になっていますので、お料理好きの方にもぴったり。バス・トイレは別なので、のんびりお風呂タイムも楽しめるでしょう。また、雨の日でも浴室乾燥機を使えば、お洗濯も問題ありません。
通信設備面では、インターネットが無料で使えるので、月々の出費を抑えられるのも魅力です。また、BSアンテナ・CSアンテナがありCATVにも対応しているので、おうち時間も充実するでしょう(別途工事、BS・CS・CATVの契約料等が必要な場合あり)。
建物にはエレベーターがついているので、重い荷物があっても安心。共用部には宅配ボックスが設定されているので、不在の時にも荷物を受け取ることができます。また、ペット飼育の相談ができますので、あなたの大切な家族の一員も快適に暮らせるか、ぜひ確認してみてください。
コンビニまで徒歩9分の場所にあり、日用品や食料品のお買い物にも便利です。
このお部屋は2階以上に位置しているので、通行人や周囲の住人からの視線が気になりにくく、防犯面でも安心。建物のエントランスはオートロックがついており、インターホンにはTVモニタもついているため、相手の顔を確認してから来客対応することができます。
人気の角部屋で周囲の居住者の生活音も気になりにくく、また、フローリングのお部屋なのでお掃除もラクラク。室内にはウォークインクローゼットがありますので、たくさんの荷物も効率的に収納ができます。キッチンはシステムキッチン仕様になっていますので、お料理好きの方にもぴったり。バス・トイレは別なので、のんびりお風呂タイムも楽しめるでしょう。また、雨の日でも浴室乾燥機を使えば、お洗濯も問題ありません。
通信設備面では、インターネットが無料で使えるので、月々の出費を抑えられるのも魅力です。また、BSアンテナ・CSアンテナがありCATVにも対応しているので、おうち時間も充実するでしょう(別途工事、BS・CS・CATVの契約料等が必要な場合あり)。
建物にはエレベーターがついているので、重い荷物があっても安心。共用部には宅配ボックスが設定されているので、不在の時にも荷物を受け取ることができます。また、ペット飼育の相談ができますので、あなたの大切な家族の一員も快適に暮らせるか、ぜひ確認してみてください。
コンビニまで徒歩9分の場所にあり、日用品や食料品のお買い物にも便利です。
お金・契約の情報
※「-」と表示されているものは、実際は料金が発生するものもございます。詳細はお問い合わせください。
| 家賃 | 14.4万円 | 管理費・共益費 | 1.5万円 |
|---|---|---|---|
| 敷金 | 14.4万円 | 礼金 | なし |
| 入居決定でお祝い金最大100,000円 | |||
| 保証金 | - | 償却・敷引 | - |
| 住宅保険料 | - | 更新料 | - |
| 保証会社利用 | 必須 | 保証会社名 | - |
| 保証会社費用 | - | 保証会社備考 | 日本セーフティー 初年度保証料:賃料等合計額の50%(最低保証料2万円)2年目以降:1年毎1万円 |
| 契約形態 | - | 契約期間 | 2年 |
| 入居・引渡期間 | 相談 | 現況 | - |
| 入居可能条件 | ペット可 | ||
| 契約備考 | 礼金無(1年未満解約時、賃料1か月分の違約金有) 洋室へのエアコン設置不可 駆付けサポート24借主加入 保証会社未使用時敷金2か月 ペット飼育応相談(諸条件弊社募集図面要確認) 楽器・喫煙・民泊不可 鍵交換必須/退去時:室内清掃・エアコン洗浄費借主負担 付 鍵交換代 38500円 | ||
部屋の情報
| 間取り | 1LDK | 専有面積 | 30.07m2 |
|---|---|---|---|
| 間取り詳細 | LDK(8.6帖)、洋室(2.9帖) | ||
| 所在階 / 向き | 2階 / 北東 | バルコニー面積 | - |
| 水道 / ガス | - | ||
| 設備 | バス・トイレ別、オートロック、テレビドアホン、宅配ボックス、浴室乾燥機、ウォークインクローゼット、追い焚き、光ファイバー対応、エレベーター、温水洗浄便座、バルコニー、フローリング、CATV、CSアンテナ、BSアンテナ、シャワー、給湯、洗濯機:室内 | ||
| 当社物件ID | 124917074 | ||
建物の情報
| 建物名 | ウエリスアーバン大塚 | ||
|---|---|---|---|
| 所在地 | 東京都豊島区北大塚2丁目 | ||
| 交通 | 山手線 大塚駅(東京) 徒歩4分 | ||
| 階数 | 12階建 | 総戸数 | 55戸 |
| 築年月 | 2022年11月 / 築4年 | エレベーター | あり |
| 駐車場 | - | バイク置き場 | - |
| 駐輪場 | - | 管理人/管理会社 | - |
| 周辺環境 | その他 セブン−イレブン豊島北大塚2丁目店 徒歩1分(54m) その他 (株)よしや/大塚店 徒歩2分(121m) その他 フレッシュフーズ伊勢伊 徒歩4分(271m) その他 まいばすけっと大塚駅北口店 徒歩3分(231m) その他 セブン-イレブン 豊島北大塚3丁目店 徒歩4分(260m) その他 ファミリーマート大塚駅北口店 徒歩3分(187m) その他 ローソンストア100北大塚店 徒歩4分(267m) その他 セブン−イレブン大塚駅北口店 徒歩4分(313m) | ||
| 建物種別 | マンション | 建物構造 | RC(鉄筋コンクリート) |
この部屋の取扱い不動産会社
| 会社名 | アパマンショップ中野店 | ||
|---|---|---|---|
| 所在地 | 東京都中野区中野5丁目 63-1サンメイトビル2階 | 交通 | 中央本線中野から徒歩1分 |
| 営業時間 | 10:00〜19:00(年中無休(年末年始を除く)) | 定休日 | - |
| 免許番号 | 東京都知事(4)89428 | 取引態様 | 仲介 |
| 不動産会社管理番号 | 94966850 | 当社管理番号 | 4 |
| 所属団体 | (公社)全日本不動産協会東京都本部 | ||
| 公正取引協議会 | (公社) 首都圏不動産公正取引協議会加盟 | ||
| 取扱い物件情報 | 物件詳細へ | ||
※各種情報と現状に差異がある場合は、現状優先となります。問い合わせをすることで、より詳しい条件、情報を確認する事ができます。
提供:アパマンショップ中野店
この物件が気になったら掲載期限まであと13日
ウエリスアーバン大塚に条件(家賃・エリア)が近い物件一覧
| 写真 | 家賃 管理費等 | 敷金 礼金 | 間取り 専有面積 | 築年数 | 最寄り駅 所在地 | キープ | 詳細 |
|---|---|---|---|---|---|---|---|
マンション チアーズ千駄木(1LDK/3階) | |||||||
![]() | 17万円 8,800円 | なし 21.2万円 | 1LDK 41.58m2 | 新築 | 東京地下鉄千代田線 千駄木駅 徒歩8分 山手線 西日暮里駅 徒歩9分 日暮里舎人ライナー 西日暮里駅 徒歩11分 東京都文京区千駄木4丁目 | 詳細を見る | |
マンション BLUROCK後楽園(1DK/4階) | |||||||
![]() | 14.1万円 1.2万円 | 14.1万円 なし | 1DK 25.29m2 | 築3年 | 東京地下鉄南北線 後楽園駅 徒歩7分 東京都三田線 春日駅(東京) 徒歩7分 東京都大江戸線 飯田橋駅 徒歩11分 東京都文京区春日1丁目 | 詳細を見る | |
マンション THEATER COURT本駒込(1K/3階) | |||||||
![]() | 12.8万円 1万円 | 12.8万円 なし | 1K 26m2 | 築2年 | 東京地下鉄南北線 本駒込駅 徒歩6分 東京地下鉄南北線 駒込駅 徒歩10分 東京都三田線 千石駅 徒歩10分 東京都文京区本駒込3丁目 | 詳細を見る | |
マンション スカイコート目白台(1K/7階) | |||||||
![]() | 10.6万円 1万円 | 10.6万円 10.6万円 | 1K 30.07m2 | 築25年 | 東京地下鉄有楽町線 江戸川橋駅 徒歩7分 東京地下鉄有楽町線 護国寺駅 徒歩11分 東京都荒川線 早稲田駅(都電) 徒歩14分 東京都文京区関口2丁目 | 詳細を見る | |
マンション モンレーヴ本駒込(1K/2階) | |||||||
![]() | 12万円 5,000円 | 12万円 12万円 | 1K 29.17m2 | 新築 | 山手線 駒込駅 徒歩8分 東京都三田線 千石駅 徒歩10分 東京地下鉄南北線 本駒込駅 徒歩12分 東京都文京区本駒込5丁目 | 詳細を見る | |
マンション グランレスト文京茗荷谷(1K/1階) | |||||||
![]() | 11.8万円 1.2万円 | 11.8万円 11.8万円 | 1K 26.89m2 | 築4年 | 東京地下鉄丸ノ内線 茗荷谷駅 徒歩8分 東京都三田線 千石駅 徒歩16分 山手線 巣鴨駅 徒歩24分 東京都文京区大塚3丁目 | 詳細を見る | |
マンション クラリティア文京湯島(1DK/3階) | |||||||
![]() | 15.9万円 1.5万円 | 15.9万円 なし | 1DK 25.13m2 | 築1年 | 東京地下鉄千代田線 湯島駅 徒歩5分 東京地下鉄銀座線 末広町駅(東京) 徒歩7分 中央本線 御茶ノ水駅 徒歩9分 東京都文京区湯島3丁目 | 詳細を見る | |
マンション ACPレジデンス文京春日(1LDK/3階) | |||||||
![]() | 20.9万円 2万円 | なし なし | 1LDK 40.65m2 | 築2年 | 東京地下鉄南北線 後楽園駅 徒歩11分 東京地下鉄丸ノ内線 後楽園駅 徒歩11分 東京都文京区春日2丁目 | 詳細を見る | |








