賃貸マンション
グランド・ガーラ大森IIの賃貸物件情報(1K/2階)
| 家賃 | 管理費等 | 敷金 | 礼金 | 間取り | 専有面積 |
|---|---|---|---|---|---|
| 9万円 | 5,000円 | 9万円 | 9万円 | 1K | 20.26m2 |
入居決定でお祝い金最大100,000円
- 保証金
- -
- 償却・敷引
- -
- 築年数
- 築12年
- 所在階
- 2階
- 向き
- -
Point
敷地内にゴミ捨て場あります!人気のエリアです♪当社管理の物件ですので今後のやり取りもスムーズに行えます!是非一度内見下さい!
提供:(株)ロイズ(SUUMO経由)

詳細情報 グランド・ガーラ大森II
物件紹介
グランド・ガーラ大森IIは京急本線大森海岸駅から徒歩9分にあり、駅近で通勤通学に便利なマンションです。
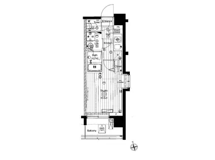
このお部屋は2階以上に位置しているので、通行人や周囲の住人からの視線が気になりにくく、防犯面でも安心。建物のエントランスはオートロックがついており、インターホンにはTVモニタもついているため、相手の顔を確認してから来客対応することができます。
人気の南向きのお部屋。また、フローリングなのでお掃除もラクラク。キッチンはシステムキッチン仕様になっていますので、お料理好きの方にもぴったり。バス・トイレは別なので、のんびりお風呂タイムも楽しめるでしょう。また、雨の日でも浴室乾燥機を使えば、お洗濯も問題ありません。
通信設備面では、インターネットが無料で使えるので、月々の出費を抑えられるのも魅力です。また、CATVにも対応しているので、おうち時間も充実するでしょう(別途工事、CATVの契約料等が必要な場合あり)。
建物にはエレベーターがついているので、重い荷物があっても安心。共用部には宅配ボックスが設定されているので、不在の時にも荷物を受け取ることができます。
このお部屋は2階以上に位置しているので、通行人や周囲の住人からの視線が気になりにくく、防犯面でも安心。建物のエントランスはオートロックがついており、インターホンにはTVモニタもついているため、相手の顔を確認してから来客対応することができます。
人気の南向きのお部屋。また、フローリングなのでお掃除もラクラク。キッチンはシステムキッチン仕様になっていますので、お料理好きの方にもぴったり。バス・トイレは別なので、のんびりお風呂タイムも楽しめるでしょう。また、雨の日でも浴室乾燥機を使えば、お洗濯も問題ありません。
通信設備面では、インターネットが無料で使えるので、月々の出費を抑えられるのも魅力です。また、CATVにも対応しているので、おうち時間も充実するでしょう(別途工事、CATVの契約料等が必要な場合あり)。
建物にはエレベーターがついているので、重い荷物があっても安心。共用部には宅配ボックスが設定されているので、不在の時にも荷物を受け取ることができます。
お金・契約の情報
※「-」と表示されているものは、実際は料金が発生するものもございます。詳細はお問い合わせください。
| 家賃 | 9万円 | 管理費・共益費 | 5,000円 |
|---|---|---|---|
| 敷金 | 9万円 | 礼金 | 9万円 |
| 入居決定でお祝い金最大100,000円 | |||
| 保証金 | - | 償却・敷引 | - |
| 住宅保険料 | - | 更新料 | - |
| 保証会社利用 | 必須 | 保証会社名 | - |
| 保証会社費用 | - | 保証会社備考 | 保証会社利用必 Room iD 初回50%、更新料 月額家賃等の1% |
| 契約形態 | - | 契約期間 | - |
| 入居・引渡期間 | 相談 | 現況 | - |
| 契約備考 | 1K 普通借家2年 損保【1.8万円2年】 バストイレ別、バルコニー、エアコン、クロゼット、フローリング、TVインターホン、浴室乾燥機、オートロック、室内洗濯置、シューズボックス、システムキッチン、南向き、温水洗浄便座、脱衣所、エレベーター、洗面所独立、洗面化粧台、2口コンロ、駐輪場、宅配ボックス、CATV、光ファイバー、防犯カメラ、分譲賃貸、保証人不要、CATVインターネット、全居室フローリング、ネット専用回線、駅まで平坦、ネット使用料不要、平坦地、耐火構造、耐震構造、駅徒歩10分以内、敷地内ごみ置き場、当社管理物件、都市ガス、洗面所にドア、CATV使用料不要、IT重説対応物件 | ||
部屋の情報
| 間取り | 1K | 専有面積 | 20.26m2 |
|---|---|---|---|
| 所在階 / 向き | 2階 / - | バルコニー面積 | - |
| 水道 / ガス | - | ||
| 設備 | バス・トイレ別、2階以上、オートロック、テレビドアホン、宅配ボックス、浴室乾燥機、インターネット対応、システムキッチン、エアコン、エレベーター、温水洗浄便座、南向き、バルコニー、フローリング、洗髪洗面化粧台、2口コンロ、CATV、インターネット使用料無料、洗濯機:室内 | ||
| 当社物件ID | 13040108 | ||
建物の情報
| 建物名 | グランド・ガーラ大森II | ||
|---|---|---|---|
| 所在地 | 東京都品川区南大井 | ||
| 交通 | 京急本線 大森海岸駅 徒歩9分 JR京浜東北線 大森駅(東京) 徒歩12分 京急本線 立会川駅 徒歩13分 | ||
| 階数 | 10階建 | 総戸数 | - |
| 築年月 | 2014年05月 / 築12年 | エレベーター | あり |
| 駐車場 | なし | バイク置き場 | - |
| 駐輪場 | あり | 管理人/管理会社 | - |
| 周辺環境 | その他 まいばすけっと南大井店(スーパー)まで321m その他 ローソン・スリーエフ南大井店(コンビニ)まで171m その他 セブンイレブン南大井水神店(コンビニ)まで250m その他 ウェルパーク大森貝塚店(ドラッグストア)まで620m その他 すき家桜新道南大井店(飲食店)まで199m その他 天丼てんや京急大森海岸店(飲食店)まで601m | ||
| 建物種別 | マンション | 建物構造 | RC(鉄筋コンクリート) |
この部屋の取扱い不動産会社
| 会社名 | (株)ロイズ(SUUMO経由) | ||
|---|---|---|---|
| 所在地 | 東京都港区南青山1-1-1新青山ビル 西館7階 | 交通 | - |
| 営業時間 | 10時~19時 | 定休日 | 水曜 |
| 免許番号 | 東京都知事92337 | 取引態様 | 仲介 |
| 不動産会社管理番号 | 100493298299 | 当社管理番号 | 89 |
| 所属団体 | (公社)東京都宅地建物取引業協会会員 | ||
| 公正取引協議会 | (公社)首都圏不動産公正取引協議会加盟 | ||
| 取扱い物件情報 | 物件詳細へ | ||
※各種情報と現状に差異がある場合は、現状優先となります。問い合わせをすることで、より詳しい条件、情報を確認する事ができます。
提供:(株)ロイズ(SUUMO経由)
この物件が気になったら掲載期限まであと12日
グランド・ガーラ大森IIに条件(家賃・エリア)が近い物件一覧
| 写真 | 家賃 管理費等 | 敷金 礼金 | 間取り 専有面積 | 築年数 | 最寄り駅 所在地 | キープ | 詳細 |
|---|---|---|---|---|---|---|---|
マンション グランディール(1K/2階) | |||||||
![]() | 8.7万円 5,000円 | 8.7万円 17.4万円 | 1K 24.42m2 | 築22年 | 京浜急行電鉄本線 大森町駅 徒歩5分 京浜急行電鉄本線 梅屋敷駅(東京) 徒歩9分 東京都大田区大森中1丁目 | 詳細を見る | |
マンション ビクトワールササガワ(1K/2階) | |||||||
![]() | 8.1万円 5,000円 | 8.1万円 8.1万円 | 1K 19.44m2 | 築26年 | JR京浜東北線 蒲田駅 徒歩2分 京急本線 京急蒲田駅 徒歩10分 東急池上線 蓮沼駅 徒歩11分 東京都大田区蒲田 | 詳細を見る | |
マンション ルクレ森下レジデンス(ワンルーム/10階) | |||||||
![]() | 12万円 1万円 | なし なし | ワンルーム 25.91m2 | 築19年 | 都営新宿線 森下駅(東京) 徒歩3分 都営大江戸線 森下駅(東京) 徒歩9分 都営新宿線 浜町駅 徒歩10分 東京都江東区新大橋 | 詳細を見る | |
マンション MAXIV HYS 南砂町(1K/7階) | |||||||
![]() | 9.6万円 8,000円 | なし 9.6万円 | 1K 25.52m2 | 築10年 | 東京地下鉄東西線 南砂町駅 徒歩9分 東京地下鉄東西線 東陽町駅 徒歩14分 東京都新宿線 西大島駅 徒歩27分 東京都江東区南砂3丁目 | 詳細を見る | |
マンション コープ野村亀戸 西棟(ワンルーム/3階) | |||||||
![]() | 7.4万円 6,000円 | なし なし | ワンルーム 31.95m2 | 築44年 | 東京メトロ半蔵門線 錦糸町駅 徒歩7分 JR総武線 亀戸駅 徒歩8分 東武亀戸線 亀戸駅 徒歩8分 東京都江東区亀戸 | 詳細を見る | |
マンション コンフォリア・リヴ木場イーストII(1K/7階) | |||||||
![]() | 13.5万円 8,000円 | 13.5万円 なし | 1K 25.44m2 | 築1年 | 東京メトロ東西線 木場駅 徒歩6分 東京メトロ東西線 東陽町駅 徒歩8分 東京メトロ東西線 南砂町駅 徒歩23分 東京都江東区東陽 | 詳細を見る | |
マンション セレーヌ大塚(ワンルーム/3階) | |||||||
![]() | 5.9万円 3,000円 | 5.9万円 なし | ワンルーム 14.99m2 | 築40年 | 京浜急行電鉄本線 梅屋敷駅(東京) 徒歩9分 京浜急行電鉄本線 京急蒲田駅 徒歩13分 東京都大田区蒲田2丁目 | 詳細を見る | |








