賃貸アパート
青谷ハイツの賃貸物件情報(2DK/2階)
| 家賃 | 管理費等 | 敷金 | 礼金 | 間取り | 専有面積 |
|---|---|---|---|---|---|
| 5.8万円 | 1,000円 | なし | なし | 2DK | 33m2 |
入居決定でお祝い金最大100,000円
- 保証金
- -
- 償却・敷引
- -
- 築年数
- 築54年
- 所在階
- 2階
- 向き
- -
Point
お問合せ・見学予約はお得満載ピタットハウスへ!初めてのお部屋探しでも安心♪無料送迎・駐車場料金の全額負担・無料ドリンク等、サービスが盛り沢山☆
提供:ピタットハウス(株)ライブデザイン(SUUMO経由)

詳細情報 青谷ハイツ
物件紹介
青谷ハイツは阪急神戸線王子公園駅から徒歩13分にあるアパートです。
このお部屋は2階以上に位置しているので、通行人や周囲の住人からの視線が気になりにくく、防犯面でも安心です。
人気の角部屋。周囲の居住者の生活音も気になりにくい場所です。バス・トイレ別の仕様で、のんびりお風呂タイムも楽しめます。
このお部屋は2階以上に位置しているので、通行人や周囲の住人からの視線が気になりにくく、防犯面でも安心です。
人気の角部屋。周囲の居住者の生活音も気になりにくい場所です。バス・トイレ別の仕様で、のんびりお風呂タイムも楽しめます。
お金・契約の情報
※「-」と表示されているものは、実際は料金が発生するものもございます。詳細はお問い合わせください。
| 家賃 | 5.8万円 | 管理費・共益費 | 1,000円 |
|---|---|---|---|
| 敷金 | なし | 礼金 | なし |
| 入居決定でお祝い金最大100,000円 | |||
| 保証金 | - | 償却・敷引 | - |
| 住宅保険料 | - | 更新料 | - |
| 保証会社利用 | 必須 | 保証会社名 | リクルートフォレントインシュア |
| 保証会社費用 | - | 保証会社備考 | オリコフォレントインシュア利用必 ・オリコフォレント 初回60% 月1.2%手数料 更新料15,000円/1年更新 |
| 契約形態 | - | 契約期間 | - |
| 入居・引渡期間 | 即時 | 現況 | - |
| 契約備考 | 合計3.3万円(内訳:安心サポート16500円/鍵交換代16500円) 短期解約違約金あり(1年未満の解約の場合2ヶ月分の賃料相当額)書類作成事務手数料5,500円(税込) 2DK 単身者可 普通借家2年 損保【2万円2年】 バストイレ別、角住戸、押入、即入居可、閑静な住宅地、最上階、3駅以上利用可、3沿線以上利用可、上階無し、和室、全居室6畳以上、都市ガス、敷金・礼金不要、IT重説対応物件、初期費用カード決済可 | ||
部屋の情報
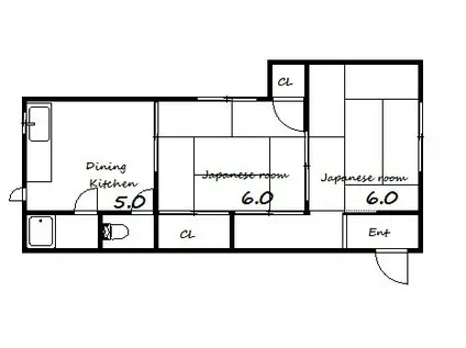
| 間取り | 2DK | 専有面積 | 33m2 |
|---|---|---|---|
| 所在階 / 向き | 2階 / - | バルコニー面積 | - |
| 水道 / ガス | - | ||
| 設備 | バス・トイレ別、2階以上、角部屋 | ||
| 当社物件ID | 44198235 | ||
建物の情報
| 建物名 | 青谷ハイツ | ||
|---|---|---|---|
| 所在地 | 兵庫県神戸市灘区青谷町 | ||
| 交通 | 阪急神戸線 王子公園駅 徒歩13分 JR東海道本線 灘駅 徒歩17分 阪神本線 岩屋駅(兵庫) 徒歩21分 | ||
| 階数 | 2階建 | 総戸数 | - |
| 築年月 | 1972年02月 / 築54年 | エレベーター | - |
| 駐車場 | なし | バイク置き場 | - |
| 駐輪場 | - | 管理人/管理会社 | - |
| 建物種別 | アパート | 建物構造 | 木造 |
この部屋の取扱い不動産会社
| 会社名 | ピタットハウス岡本店(株)ライブデザイン(SUUMO経由) | ||
|---|---|---|---|
| 所在地 | 兵庫県神戸市東灘区岡本1-11-26 1F | 交通 | - |
| 営業時間 | 09:00~19:00 | 定休日 | 毎週水曜日 |
| 免許番号 | 国土交通大臣10464 | 取引態様 | 仲介 |
| 不動産会社管理番号 | 100482659592 | 当社管理番号 | 89 |
| 所属団体 | (公社)全日本不動産協会兵庫県本部会員 | ||
| 公正取引協議会 | (公社)近畿地区不動産公正取引協議会加盟 | ||
| 取扱い物件情報 | 物件詳細へ | ||
※各種情報と現状に差異がある場合は、現状優先となります。問い合わせをすることで、より詳しい条件、情報を確認する事ができます。
提供:ピタットハウス岡本店(株)ライブデザイン(SUUMO経由)
この物件が気になったら掲載期限まであと11日
青谷ハイツに条件(家賃・エリア)が近い物件一覧
| 写真 | 家賃 管理費等 | 敷金 礼金 | 間取り 専有面積 | 築年数 | 最寄り駅 所在地 | キープ | 詳細 |
|---|---|---|---|---|---|---|---|
マンション 山陽本線 西明石駅 徒歩3分 築41年(1K/1階) | |||||||
![]() | 4万円 5,000円 | なし 4万円 | 1K 21m2 | 築41年 | 山陽本線 西明石駅 徒歩3分 山陽電気鉄道本線 藤江駅 徒歩17分 山陽電気鉄道本線 林崎松江海岸駅 徒歩30分 兵庫県明石市西明石西町1丁目 | 詳細を見る | |
アパート 神戸電鉄粟生線 志染駅 徒歩5分 築19年(ワンルーム/2階) | |||||||
![]() | 5.4万円 5,000円 | なし 4.9万円 | ワンルーム 29.81m2 | 築19年 | 神戸電鉄粟生線 志染駅 徒歩5分 神戸電鉄粟生線 恵比須駅 徒歩29分 神戸電鉄粟生線 広野ゴルフ場前駅 徒歩29分 兵庫県三木市志染町西自由が丘 | 詳細を見る | |
マンション シャーメゾン・ブルームステージ(1LDK/1階) | |||||||
![]() | 9.2万円 6,000円 | 3万円 なし | 1LDK 52.04m2 | 築8年 | 山陽電鉄本線 西新町駅 徒歩5分 山陽電鉄本線 林崎松江海岸駅 徒歩17分 JR山陽本線 明石駅 徒歩20分 兵庫県明石市田町 | 詳細を見る | |
アパート ヴィスキオ大蔵海岸(1K/1階) | |||||||
![]() | 6.1万円 2,300円 | なし 6.1万円 | 1K 32.43m2 | 築6年 | 山陽電鉄本線 大蔵谷駅 徒歩2分 山陽電鉄本線 人丸前駅 徒歩9分 JR山陽本線 朝霧駅 徒歩11分 兵庫県明石市大蔵八幡町 | 詳細を見る | |
アパート SHAMAISON雅あさぎり(1LDK/1階) | |||||||
![]() | 8.7万円 6,500円 | 3万円 なし | 1LDK 47.2m2 | 築1年 | 山陽電気鉄道本線 大蔵谷駅 徒歩12分 山陽本線 朝霧駅 徒歩17分 山陽電気鉄道本線 人丸前駅 徒歩21分 兵庫県明石市朝霧町3丁目 | 詳細を見る | |
アパート フレグランスエスパ(2DK/1階) | |||||||
![]() | 6.3万円 なし | 2万円 なし | 2DK 43.63m2 | 築31年 | 山陽電気鉄道本線 大蔵谷駅 徒歩19分 山陽本線 朝霧駅 徒歩24分 兵庫県明石市北朝霧丘1丁目 | 詳細を見る | |
アパート ヒカルサ稲美天満Ⅰ(1LDK/1階) | |||||||
![]() | 7.35万円 3,900円 | なし 7.35万円 | 1LDK 44.7m2 | 新築 | 兵庫県加古郡稲美町六分一 | 詳細を見る | |







