賃貸マンション
キャッスル常滑 西棟の賃貸物件情報(ワンルーム/2階)
| 家賃 | 管理費等 | 敷金 | 礼金 | 間取り | 専有面積 |
|---|---|---|---|---|---|
| 4.9万円 | 6,000円 | なし | なし | ワンルーム | 32.77m2 |
入居決定でお祝い金最大100,000円
- 保証金
- -
- 償却・敷引
- -
- 築年数
- 築19年
- 所在階
- 2階
- 向き
- 西
Point
防犯対策もバッチリなマンションタイプの物件です。共用部には宅配ボックスが備え付けられているため、非対面で荷物を受け取れます。駅近くに立地する物件で、徒歩14分程でアクセスできます。
提供:Re:)Room 中部支社(株)リバーウェイコーポレーション(SUUMO経由)

詳細情報 キャッスル常滑 西棟
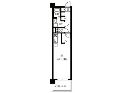
物件紹介
キャッスル常滑 西棟は名鉄常滑線常滑駅から徒歩14分にあるマンションです。
このお部屋は2階以上に位置しているので、通行人や周囲の住人からの視線が気になりにくく、防犯面でも安心。建物のエントランスはオートロックがついており、インターホンにはTVモニタもついているため、相手の顔を確認してから来客対応することができます。
人気の角部屋で周囲の居住者の生活音も気になりにくく、また、フローリングのお部屋なのでお掃除もラクラク。キッチンはシステムキッチン仕様になっていますので、お料理好きの方にもぴったり。バス・トイレは別なので、のんびりお風呂タイムも楽しめるでしょう。また、雨の日でも浴室乾燥機を使えば、お洗濯も問題ありません。
通信設備面では、インターネットが無料で使えるので、月々の出費を抑えられるのも魅力です。また、CATVにも対応しているので、おうち時間も充実するでしょう(別途工事、CATVの契約料等が必要な場合あり)。
建物にはエレベーターがついているので、重い荷物があっても安心。共用部には宅配ボックスが設定されているので、不在の時にも荷物を受け取ることができます。
このお部屋は2階以上に位置しているので、通行人や周囲の住人からの視線が気になりにくく、防犯面でも安心。建物のエントランスはオートロックがついており、インターホンにはTVモニタもついているため、相手の顔を確認してから来客対応することができます。
人気の角部屋で周囲の居住者の生活音も気になりにくく、また、フローリングのお部屋なのでお掃除もラクラク。キッチンはシステムキッチン仕様になっていますので、お料理好きの方にもぴったり。バス・トイレは別なので、のんびりお風呂タイムも楽しめるでしょう。また、雨の日でも浴室乾燥機を使えば、お洗濯も問題ありません。
通信設備面では、インターネットが無料で使えるので、月々の出費を抑えられるのも魅力です。また、CATVにも対応しているので、おうち時間も充実するでしょう(別途工事、CATVの契約料等が必要な場合あり)。
建物にはエレベーターがついているので、重い荷物があっても安心。共用部には宅配ボックスが設定されているので、不在の時にも荷物を受け取ることができます。
お金・契約の情報
※「-」と表示されているものは、実際は料金が発生するものもございます。詳細はお問い合わせください。
| 家賃 | 4.9万円 | 管理費・共益費 | 6,000円 |
|---|---|---|---|
| 敷金 | なし | 礼金 | なし |
| 入居決定でお祝い金最大100,000円 | |||
| 保証金 | - | 償却・敷引 | - |
| 住宅保険料 | - | 更新料 | - |
| 保証会社利用 | 必須 | 保証会社名 | 全保連 |
| 保証会社費用 | - | 保証会社備考 | 全保連利用必 毎月プラン:毎月賃料の3.5%(更新料なし)引落手数料込 |
| 契約形態 | - | 契約期間 | - |
| 入居・引渡期間 | 相談 | 現況 | - |
| 契約備考 | お気軽にお問い合わせください♪ 合計5.4万円(内訳:水道預かり金1万円クリーニング費用解約時2.75万円鍵交換代1.65万円) CATV 月額1760円 ワンルーム 普通借家2年 損保【2万円2年】 バストイレ別、バルコニー、エアコン、ガスコンロ対応、クロゼット、フローリング、TVインターホン、浴室乾燥機、オートロック、室内洗濯置、陽当り良好、シューズボックス、システムキッチン、温水洗浄便座、脱衣所、エレベーター、洗面所独立、2口コンロ、駐輪場、宅配ボックス、CATV、礼金不要、敷金不要、防犯カメラ、全居室洋室、2沿線利用可、ネット使用料不要、眺望良好、保証金不要、敷地内ごみ置き場、プロパンガス、敷金・礼金不要、IT重説対応物件、初期費用カード決済可、通風良好 | ||
部屋の情報
| 間取り | ワンルーム | 専有面積 | 32.77m2 |
|---|---|---|---|
| 所在階 / 向き | 2階 / 西 | バルコニー面積 | - |
| 水道 / ガス | - | ||
| 設備 | バス・トイレ別、2階以上、オートロック、テレビドアホン、宅配ボックス、浴室乾燥機、インターネット対応、システムキッチン、エアコン、エレベーター、温水洗浄便座、バルコニー、フローリング、洗髪洗面化粧台、2口コンロ、コンロ:ガス、CATV、インターネット使用料無料、洗濯機:室内 | ||
| 当社物件ID | 17370762 | ||
建物の情報
| 建物名 | キャッスル常滑 西棟 | ||
|---|---|---|---|
| 所在地 | 愛知県常滑市栄町 | ||
| 交通 | 名鉄常滑線 常滑駅 徒歩16分 名鉄空港線 りんくう常滑駅 徒歩25分 名鉄常滑線 多屋駅 徒歩25分 | ||
| 階数 | 6階建 | 総戸数 | - |
| 築年月 | 2007年08月 / 築19年 | エレベーター | あり |
| 駐車場 | 空有 5500円 | バイク置き場 | - |
| 駐輪場 | あり | 管理人/管理会社 | - |
| 周辺環境 | その他 マルス 常滑駅前店(スーパー)まで1002m その他 ファミリーマート常滑栄町店(コンビニ)まで609m その他 ミニストップ奥条店(コンビニ)まで988m その他 スーパーマーケットバロー 常滑店(ドラッグストア)まで228m その他 スギ薬局 常滑陶郷店(ドラッグストア)まで346m その他 常滑駅(その他)まで993m | ||
| 建物種別 | マンション | 建物構造 | RC(鉄筋コンクリート) |
この部屋の取扱い不動産会社
| 会社名 | (株)エスティネット常滑店(SUUMO経由) | ||
|---|---|---|---|
| 所在地 | 愛知県常滑市鯉江本町5-161 | 交通 | - |
| 営業時間 | 10:00~18:00 | 定休日 | 水曜日 |
| 免許番号 | 愛知県知事25515 | 取引態様 | 仲介 |
| 不動産会社管理番号 | 100485369266 | 当社管理番号 | 89 |
| 取扱い物件情報 | 物件詳細へ | ||
※各種情報と現状に差異がある場合は、現状優先となります。問い合わせをすることで、より詳しい条件、情報を確認する事ができます。
提供:(株)エスティネット常滑店(SUUMO経由)
この物件が気になったら掲載期限まであと10日
キャッスル常滑 西棟に条件(家賃・エリア)が近い物件一覧
| 写真 | 家賃 管理費等 | 敷金 礼金 | 間取り 専有面積 | 築年数 | 最寄り駅 所在地 | キープ | 詳細 |
|---|---|---|---|---|---|---|---|
アパート レオパレス鬼崎(1K/1階) | |||||||
![]() | 4.5万円 5,000円 | なし 4.5万円 | 1K 23.71m2 | 築22年 | 名鉄常滑線 榎戸駅(愛知) 徒歩10分 愛知県常滑市明和町3丁目 | 詳細を見る | |
アパート ドミールたかね(3DK/1階) | |||||||
![]() | 5.6万円 3,000円 | なし なし | 3DK 52.17m2 | 築33年 | JR武豊線 亀崎駅 徒歩2分 愛知県半田市亀崎高根町 | 詳細を見る | |
アパート レオパレス寿(1K/1階) | |||||||
![]() | 6万円 5,000円 | なし 6万円 | 1K 21.65m2 | 築18年 | 名鉄常滑線 長浦駅(愛知) 徒歩29分 名鉄常滑線 朝倉駅(愛知) 徒歩40分 愛知県知多市岡田緑が丘 | 詳細を見る | |
マンション シエルコート(1K/5階) | |||||||
![]() | 4.5万円 6,000円 | なし なし | 1K 24.15m2 | 築22年 | 名鉄河和線 成岩駅 徒歩5分 名鉄河和線 青山駅(愛知) 徒歩14分 名鉄河和線 知多半田駅 徒歩17分 愛知県半田市昭和町 | 詳細を見る | |
マンション SMILE ITO(1K/3階) | |||||||
![]() | 4.5万円 5,500円 | なし なし | 1K 27.83m2 | 築19年 | 名鉄常滑線 常滑駅 徒歩10分 名鉄常滑線 多屋駅 徒歩15分 愛知県常滑市原松町 | 詳細を見る | |
アパート クレセントパレスB(3LDK/2階) | |||||||
![]() | 6.4万円 3,000円 | なし なし | 3LDK 65.25m2 | 築27年 | 名鉄常滑線 寺本駅 徒歩7分 愛知県知多市八幡字汐海道 | 詳細を見る | |
アパート ローズガーデン青山(1DK/2階) | |||||||
![]() | 4.7万円 4,000円 | 9.4万円 なし | 1DK 33.84m2 | 築25年 | 名鉄河和線 青山駅(愛知) 徒歩13分 JR武豊線 東成岩駅 徒歩18分 名鉄河和線 成岩駅 徒歩24分 愛知県半田市青山 | 詳細を見る | |
アパート グリーンハイツ横川(2LDK/1階) | |||||||
![]() | 3.9万円 3,000円 | 5.17万円 なし | 2LDK 51.15m2 | 築34年 | 武豊線 亀崎駅 徒歩31分 愛知県半田市横川町1丁目 | 詳細を見る | |






/105x80-f1-q70-wp1)

/105x80-f1-q70-wp1)