賃貸マンション
ブライズ祖師ヶ谷大蔵の賃貸物件情報(1K/1階)
| 家賃 | 管理費等 | 敷金 | 礼金 | 間取り | 専有面積 |
|---|---|---|---|---|---|
| 8.9万円 | 8,000円 | なし | 17.8万円 | 1K | 25.35m2 |
入居決定でお祝い金最大100,000円
- 保証金
- -
- 償却・敷引
- -
- 築年数
- 築20年
- 所在階
- 1階
- 向き
- 西
Point
室内設備は洗面化粧台・浴室乾燥機などが揃っており、とても充実しています。単身者限定の物件です。
提供:(株)リライフ本郷三丁目店(SUUMO経由)

詳細情報 ブライズ祖師ヶ谷大蔵
物件紹介
ブライズ祖師ヶ谷大蔵は小田急線祖師ケ谷大蔵駅から徒歩5分にあり、駅近で通勤通学に便利なマンションです。
建物のエントランスはオートロックがついており、インターホンにはTVモニタもついているため、相手の顔を確認してから来客対応することができます。
おしゃれなデザイナーズ物件!人気の角部屋で周囲の居住者の生活音も気になりにくく、また、フローリングのお部屋なのでお掃除もラクラク。キッチンはシステムキッチン仕様になっていますので、お料理好きの方にもぴったり。バス・トイレは別なので、のんびりお風呂タイムも楽しめるでしょう。また、雨の日でも浴室乾燥機を使えば、お洗濯も問題ありません。
通信設備面では、インターネット接続が可能です。また、BSアンテナ・CSアンテナがありCATVにも対応しているので、おうち時間も充実するでしょう(別途工事、契約料が必要な場合あり)。
建物にはエレベーターがついているので、重い荷物があっても安心。共用部には宅配ボックスが設定されているので、不在の時にも荷物を受け取ることができます。
コンビニまで徒歩5分の場所にあり、日用品や食料品のお買い物にも便利です。
建物のエントランスはオートロックがついており、インターホンにはTVモニタもついているため、相手の顔を確認してから来客対応することができます。
おしゃれなデザイナーズ物件!人気の角部屋で周囲の居住者の生活音も気になりにくく、また、フローリングのお部屋なのでお掃除もラクラク。キッチンはシステムキッチン仕様になっていますので、お料理好きの方にもぴったり。バス・トイレは別なので、のんびりお風呂タイムも楽しめるでしょう。また、雨の日でも浴室乾燥機を使えば、お洗濯も問題ありません。
通信設備面では、インターネット接続が可能です。また、BSアンテナ・CSアンテナがありCATVにも対応しているので、おうち時間も充実するでしょう(別途工事、契約料が必要な場合あり)。
建物にはエレベーターがついているので、重い荷物があっても安心。共用部には宅配ボックスが設定されているので、不在の時にも荷物を受け取ることができます。
コンビニまで徒歩5分の場所にあり、日用品や食料品のお買い物にも便利です。
お金・契約の情報
※「-」と表示されているものは、実際は料金が発生するものもございます。詳細はお問い合わせください。
| 家賃 | 8.9万円 | 管理費・共益費 | 8,000円 |
|---|---|---|---|
| 敷金 | なし | 礼金 | 17.8万円 |
| 入居決定でお祝い金最大100,000円 | |||
| 保証金 | - | 償却・敷引 | - |
| 住宅保険料 | 1円 | 更新料 | - |
| その他費用 | エアコン清掃:1.65万円、16500円: | ||
| 保証会社利用 | 必須 | 保証会社名 | - |
| 保証会社費用 | - | 保証会社備考 | 初回:総賃料50%、更新時:1.5万円 |
| 契約形態 | - | 契約期間 | 2年 |
| 入居・引渡期間 | 2026年04月上旬 | 現況 | - |
| 入居可能条件 | 事務所不可、単身者限定、2人入居不可、楽器不可、ペット不可 | ||
| 契約備考 | 室内清掃費用 77000円 鍵交換代 33000円 初期:エアコン清掃 16500円 24時間サポート 16500円 短期解約違約金:1年未満賃料1か月分 鍵交換費用:33000 室内清掃費用:77000 その他設備/条件:室内洗濯機置き場、ごみ出し24時間OK、独立洗面台、防犯カメラ、クローゼット、シューズボックス、照明器具付き、分譲賃貸 | ||
部屋の情報
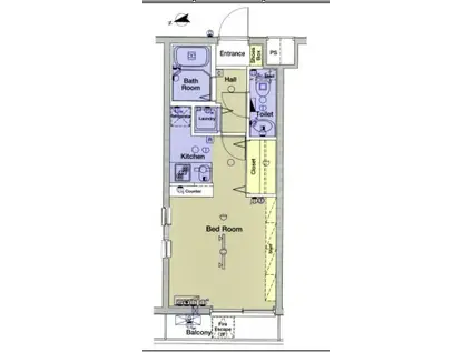
| 間取り | 1K | 専有面積 | 25.35m2 |
|---|---|---|---|
| 間取り詳細 | 洋室(7.8帖) | ||
| 所在階 / 向き | 1階 / 西 | バルコニー面積 | - |
| 水道 / ガス | 水道【公営】、ガス【都市】 | ||
| 設備 | バス・トイレ別、オートロック、テレビドアホン、宅配ボックス、浴室乾燥機、インターネット対応、システムキッチン、カウンターキッチン、エアコン、エレベーター、バルコニー、フローリング、2口コンロ、コンロ:ガス、CATV、CSアンテナ、BSアンテナ、シャワー、給湯、タイル張り | ||
| 当社物件ID | 4371756 | ||
建物の情報
| 建物名 | ブライズ祖師ヶ谷大蔵 | ||
|---|---|---|---|
| 所在地 | 東京都世田谷区祖師谷1丁目 | ||
| 交通 | 小田急電鉄小田原線 祖師ケ谷大蔵駅 徒歩5分 小田急電鉄小田原線 千歳船橋駅 徒歩14分 | ||
| 階数 | 3階建 | 総戸数 | - |
| 築年月 | 2007年03月 / 築20年 | エレベーター | あり |
| 駐車場 | - | バイク置き場 | - |
| 駐輪場 | あり | 管理人/管理会社 | - |
| 周辺環境 | コンビニ 徒歩5分(357m) 販売店 徒歩6分(476m) その他 ドラッグストア その他 公園 その他 銀行 その他 * | ||
| 建物種別 | マンション | 建物構造 | RC(鉄筋コンクリート) |
この部屋の取扱い不動産会社
| 会社名 | ハウスコム西東京株式会社 調布店 | ||
|---|---|---|---|
| 所在地 | 東京都調布市17-10セントラルレジデンス調布1階 | 交通 | - |
| 営業時間 | 10:00~18:00 | 定休日 | 水曜定休 |
| 免許番号 | 東京都知事(1)第108225号 | 取引態様 | 仲介 |
| 不動産会社管理番号 | HC2-234857-103-0080 | 当社管理番号 | 468 |
| 所属団体 | 、 | ||
| 取扱い物件情報 | 物件詳細へ | ||
※各種情報と現状に差異がある場合は、現状優先となります。問い合わせをすることで、より詳しい条件、情報を確認する事ができます。
提供:ハウスコム西東京株式会社 調布店
この物件が気になったら掲載期限まであと5日
ブライズ祖師ヶ谷大蔵に条件(家賃・エリア)が近い物件一覧
| 写真 | 家賃 管理費等 | 敷金 礼金 | 間取り 専有面積 | 築年数 | 最寄り駅 所在地 | キープ | 詳細 |
|---|---|---|---|---|---|---|---|
マンション SC大森ビル(1LDK/4階) | |||||||
![]() | 13.3万円 5,000円 | 13.3万円 13.3万円 | 1LDK 46.45m2 | 築49年 | JR京浜東北線 大森駅(東京) 徒歩3分 京急本線 大森海岸駅 徒歩12分 京急本線 平和島駅 徒歩19分 東京都大田区大森北 | 詳細を見る | |
アパート SEED SAVE PETIRASU BREEZE(1LDK/3階) | |||||||
![]() | 11.5万円 1万円 | 23万円 11.5万円 | 1LDK 35.83m2 | 新築 | 東京モノレール羽田 昭和島駅 徒歩12分 京浜急行電鉄本線 大森町駅 徒歩18分 東京都大田区大森東5丁目 | 詳細を見る | |
マンション グランディール(1K/2階) | |||||||
![]() | 8.7万円 5,000円 | 8.7万円 17.4万円 | 1K 24.42m2 | 築22年 | 京浜急行電鉄本線 大森町駅 徒歩5分 京浜急行電鉄本線 梅屋敷駅(東京) 徒歩9分 東京都大田区大森中1丁目 | 詳細を見る | |
マンション カノーレ大森(ワンルーム/3階) | |||||||
![]() | 7.3万円 3,000円 | 7.3万円 14.6万円 | ワンルーム 17.58m2 | 築14年 | 京浜急行電鉄本線 梅屋敷駅(東京) 徒歩2分 京浜急行電鉄本線 京急蒲田駅 徒歩14分 東京都大田区大森中2丁目 | 詳細を見る | |
マンション ユートピアヒルズ大森北(1K/3階) | |||||||
![]() | 8万円 4,000円 | 8万円 8万円 | 1K 16.15m2 | 築5年 | 京急本線 平和島駅 徒歩8分 JR京浜東北線 大森駅(東京) 徒歩13分 京急本線 大森海岸駅 徒歩13分 東京都大田区大森北 | 詳細を見る | |
マンション セントラルハイツ(2DK/2階) | |||||||
![]() | 10.7万円 3,000円 | 10.7万円 10.7万円 | 2DK 41m2 | 築48年 | 京浜東北・根岸線 蒲田駅 徒歩17分 東急池上線 池上駅 徒歩17分 東京都大田区中央8丁目 | 詳細を見る | |
マンション 桜ヒルズ仲六郷(ワンルーム/1階) | |||||||
![]() | 6.2万円 4,000円 | 6.2万円 6.2万円 | ワンルーム 15.33m2 | 築5年 | 京浜急行電鉄本線 六郷土手駅 徒歩1分 京浜急行電鉄本線 雑色駅 徒歩17分 東京都大田区仲六郷4丁目 | 詳細を見る | |
アパート エフプレスト大森東(ワンルーム/1階) | |||||||
![]() | 6.8万円 5,000円 | 6.8万円 6.8万円 | ワンルーム 16.04m2 | 築4年 | 東京モノレール羽田 昭和島駅 徒歩11分 京浜急行電鉄本線 大森町駅 徒歩18分 東京都大田区大森東5丁目 | 詳細を見る | |








