賃貸アパート
ノイエ下馬の賃貸物件情報(2K/1階)
| 家賃 | 管理費等 | 敷金 | 礼金 | 間取り | 専有面積 |
|---|---|---|---|---|---|
| 9.3万円 | 3,000円 | なし | なし | 2K | 29.67m2 |
入居決定でお祝い金最大100,000円
- 保証金
- -
- 償却・敷引
- -
- 築年数
- 築55年
- 所在階
- 1階
- 向き
- -
Point
当物件は初期費用分割払い可(クレジットカード決済も可)/お客様のご希望に合わせた方法(店頭、オンライン等)で物件をご提案いたします。初期費用のお見積りや入居希望日のご相談もお気軽にお問い合わせください
提供:アエラス目黒店 (株)アエラス.FR(SUUMO経由)

詳細情報 ノイエ下馬
物件紹介
ノイエ下馬は東急東横線祐天寺駅から徒歩10分にあり、駅近で通勤通学に便利なアパートです。
このお部屋のインターホンにはTVモニタがついているため、相手の顔を確認してから来客対応することができます。
人気の角部屋で周囲の居住者の生活音も気になりにくく、また、フローリングのお部屋なのでお掃除もラクラク。バス・トイレ別の仕様で、のんびりお風呂タイムも楽しめます。
通信設備面では、インターネットが無料で使えるので、月々の出費を抑えられるのも魅力です。また、CATVにも対応しているので、おうち時間も充実するでしょう(別途工事、CATVの契約料等が必要な場合あり)。
このお部屋のインターホンにはTVモニタがついているため、相手の顔を確認してから来客対応することができます。
人気の角部屋で周囲の居住者の生活音も気になりにくく、また、フローリングのお部屋なのでお掃除もラクラク。バス・トイレ別の仕様で、のんびりお風呂タイムも楽しめます。
通信設備面では、インターネットが無料で使えるので、月々の出費を抑えられるのも魅力です。また、CATVにも対応しているので、おうち時間も充実するでしょう(別途工事、CATVの契約料等が必要な場合あり)。
お金・契約の情報
※「-」と表示されているものは、実際は料金が発生するものもございます。詳細はお問い合わせください。
| 家賃 | 9.3万円 | 管理費・共益費 | 3,000円 |
|---|---|---|---|
| 敷金 | なし | 礼金 | なし |
| 入居決定でお祝い金最大100,000円 | |||
| 保証金 | - | 償却・敷引 | - |
| 住宅保険料 | - | 更新料 | - |
| 保証会社利用 | 必須 | 保証会社名 | - |
| 保証会社費用 | - | 保証会社備考 | 保証会社利用必 初回:賃料等の50%、月額:賃料等の1% ̄ |
| 契約形態 | - | 契約期間 | - |
| 入居・引渡期間 | 即時 | 現況 | - |
| 契約備考 | 山手線目黒駅バス28分五本木二丁目停歩3分/下馬保育園まで210m/三宿病院まで817m/24時間入居サポート (必須) 990円月額/退去時清掃費¥55000/短期解約違約金(1年未満)賃料1ヵ月/CATVでBSCS視聴可(CATVBS別途契約要有償) 合計8.8万円(内訳:カギ交換費用33000円/室内清掃費用55000円) 2K 二人入居可/子供可 普通借家2年 損保【要】 バストイレ別、エアコン、ガスコンロ対応、クロゼット、フローリング、TVインターホン、室内洗濯置、シューズボックス、角住戸、温水洗浄便座、駐輪場、CATV、即入居可、CATVインターネット、二人入居相談、全居室フローリング、ネット使用料不要、保証金不要、浴室に窓、始発駅、3駅以上利用可、3沿線以上利用可、駅徒歩10分以内、バス停徒歩3分以内、高速ネット対応、敷金・礼金不要、初期費用カード決済可 | ||
部屋の情報
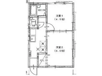
| 間取り | 2K | 専有面積 | 29.67m2 |
|---|---|---|---|
| 所在階 / 向き | 1階 / - | バルコニー面積 | - |
| 水道 / ガス | - | ||
| 設備 | バス・トイレ別、テレビドアホン、インターネット対応、エアコン、温水洗浄便座、角部屋、フローリング、コンロ:ガス、CATV、インターネット使用料無料、洗濯機:室内 | ||
| 当社物件ID | 29947819 | ||
建物の情報
| 建物名 | ノイエ下馬 | ||
|---|---|---|---|
| 所在地 | 東京都世田谷区下馬 | ||
| 交通 | 東急東横線 祐天寺駅 徒歩10分 東急東横線 学芸大学駅 徒歩12分 東急東横線 中目黒駅 徒歩25分 | ||
| 階数 | 2階建 | 総戸数 | - |
| 築年月 | 1971年02月 / 築55年 | エレベーター | - |
| 駐車場 | 近隣 390m27500円 | バイク置き場 | - |
| 駐輪場 | あり | 管理人/管理会社 | - |
| 周辺環境 | その他 スーパーAZUMA五本木店(スーパー)まで370m その他 ローソン下馬4丁目店(コンビニ)まで340m その他 クリエイトS・D 世田谷下馬店(ドラッグストア)まで504m その他 オリジン弁当学芸大学店(飲食店)まで623m その他 世田谷区立駒留中学校(中学校)まで704m その他 目黒区立五本木小学校(小学校)まで427m | ||
| 建物種別 | アパート | 建物構造 | 木造 |
この部屋の取扱い不動産会社
| 会社名 | アエラス目黒店 (株)アエラス.FR(SUUMO経由) | ||
|---|---|---|---|
| 所在地 | 東京都目黒区目黒1-4-8 東レクビル 5階 | 交通 | - |
| 営業時間 | 10:00~19:00(時間外対応出来る場合有り) | 定休日 | 年中無休(年末年始などを除く) |
| 免許番号 | 国土交通大臣10206 | 取引態様 | 仲介 |
| 不動産会社管理番号 | 100473809504 | 当社管理番号 | 89 |
| 所属団体 | (公社)全日本不動産協会東京都本部会員 | ||
| 公正取引協議会 | (公社)首都圏不動産公正取引協議会加盟 | ||
| 取扱い物件情報 | 物件詳細へ | ||
※各種情報と現状に差異がある場合は、現状優先となります。問い合わせをすることで、より詳しい条件、情報を確認する事ができます。
提供:アエラス目黒店 (株)アエラス.FR(SUUMO経由)
この物件が気になったら掲載期限まであと10日
ノイエ下馬に条件(家賃・エリア)が近い物件一覧
| 写真 | 家賃 管理費等 | 敷金 礼金 | 間取り 専有面積 | 築年数 | 最寄り駅 所在地 | キープ | 詳細 |
|---|---|---|---|---|---|---|---|
マンション XEBEC池上Ⅲ(1K/2階) | |||||||
![]() | 10.8万円 1.5万円 | なし 10.8万円 | 1K 25.84m2 | 築7年 | 東急池上線 池上駅 徒歩5分 東急池上線 千鳥町駅 徒歩13分 東京都大田区池上3丁目 | 詳細を見る | |
マンション SEED JUST B-BASE II(1LDK/1階) | |||||||
![]() | 9.9万円 1.5万円 | 9.9万円 9.9万円 | 1LDK 25.41m2 | 新築 | 東京モノレール羽田 昭和島駅 徒歩11分 京浜急行電鉄本線 梅屋敷駅(東京) 徒歩19分 東京都大田区大森南4丁目 | 詳細を見る | |
マンション メゾンプレジール(1K/1階) | |||||||
![]() | 7万円 2,000円 | 7万円 7万円 | 1K 20.83m2 | 築22年 | JR京浜東北線 蒲田駅 徒歩15分 東急池上線 池上駅 徒歩21分 京急本線 梅屋敷駅(東京) 徒歩22分 東京都大田区中央 | 詳細を見る | |
アパート 雑色コーポⅥ(1K/1階) | |||||||
![]() | 5.6万円 3,000円 | 5.6万円 なし | 1K 17.5m2 | 築38年 | 京浜急行電鉄本線 雑色駅 徒歩3分 京浜急行電鉄本線 六郷土手駅 徒歩17分 東京都大田区仲六郷2丁目 | 詳細を見る | |
マンション トルース蒲田(ワンルーム/2階) | |||||||
![]() | 5.8万円 2,000円 | 5.8万円 なし | ワンルーム 17.85m2 | 築34年 | 京浜東北・根岸線 蒲田駅 徒歩13分 東急池上線 蓮沼駅 徒歩15分 東京都大田区西蒲田1丁目 | 詳細を見る | |
マンション PLUMERIA BLANE プルメリアブラン(1LDK/1階) | |||||||
![]() | 14.9万円 3,000円 | 14.9万円 14.9万円 | 1LDK 48.99m2 | 築9年 | 京浜急行電鉄本線 大森町駅 徒歩5分 京浜急行電鉄本線 平和島駅 徒歩12分 東京都大田区大森西3丁目 | 詳細を見る | |
マンション グレースマンション原田(1K/4階) | |||||||
![]() | 8.4万円 5,000円 | 8.4万円 なし | 1K 24.98m2 | 築22年 | 京急本線 六郷土手駅 徒歩4分 京急本線 雑色駅 徒歩18分 東京都大田区西六郷 | 詳細を見る | |
マンション ラ・ルーナ(1K/3階) | |||||||
![]() | 9.2万円 3,000円 | 9.2万円 なし | 1K 28.13m2 | 築15年 | 京浜急行電鉄本線 梅屋敷駅(東京) 徒歩9分 京浜東北・根岸線 蒲田駅 徒歩13分 東京都大田区蒲田1丁目 | 詳細を見る | |









