賃貸一戸建て
札幌市東西線 菊水駅 バス乗車時間:15分 米里1条2丁目バス停で下車 徒歩5分 2階建 築35年の賃貸物件情報(6LDK)
| 家賃 | 管理費等 | 敷金 | 礼金 | 間取り | 専有面積 |
|---|---|---|---|---|---|
| 15万円 | なし | 15万円 | なし | 6LDK | 212.89m2 |
入居決定でお祝い金最大100,000円
Point
★当店ではオンライン通話によるご案内が可能でございます★
提供:アパマンショップ南郷18丁目店

詳細情報 札幌市東西線 菊水駅 バス乗車時間:15分 米里1条2丁目バス停で下車 徒歩5分 2階建 築35年
物件紹介
このお部屋のインターホンにはTVモニタがついているため、相手の顔を確認してから来客対応することができます。
室内には人気のウォークインクローゼットがありますので、たくさんの荷物も効率的に収納ができます。キッチンはシステムキッチン仕様になっていますので、お料理好きの方にもぴったり。また、バス・トイレは別で、のんびりお風呂タイムも楽しめるでしょう。
通信設備面ではBSアンテナがありますので、おうち時間も充実するでしょう(別途工事、契約料が必要な場合あり)。
また、こちらは石油暖房OKな物件。石油ストーブの利用を考えている方にはおすすめです。ペット飼育の相談ができますので、あなたの大切な家族の一員も快適に暮らせるか、ぜひ確認してみてください。
室内には人気のウォークインクローゼットがありますので、たくさんの荷物も効率的に収納ができます。キッチンはシステムキッチン仕様になっていますので、お料理好きの方にもぴったり。また、バス・トイレは別で、のんびりお風呂タイムも楽しめるでしょう。
通信設備面ではBSアンテナがありますので、おうち時間も充実するでしょう(別途工事、契約料が必要な場合あり)。
また、こちらは石油暖房OKな物件。石油ストーブの利用を考えている方にはおすすめです。ペット飼育の相談ができますので、あなたの大切な家族の一員も快適に暮らせるか、ぜひ確認してみてください。
お金・契約の情報
※「-」と表示されているものは、実際は料金が発生するものもございます。詳細はお問い合わせください。
| 家賃 | 15万円 | 管理費・共益費 | なし |
|---|---|---|---|
| 敷金 | 15万円 | 礼金 | なし |
| 入居決定でお祝い金最大100,000円 | |||
| 保証金 | - | 償却・敷引 | - |
| 住宅保険料 | 2万円(2年) | 更新料 | - |
| 保証会社利用 | 必須 | 保証会社名 | オリコ |
| 保証会社費用 | - | 保証会社備考 | 初回保証料 賃料の50%(月額保証料1%) |
| 契約形態 | 定期借家 | 契約期間 | 5年 |
| 入居・引渡期間 | 2026年03月上旬 | 現況 | - |
| 入居可能条件 | ペット可 | ||
| 契約備考 | ペット飼育時:礼金1ヶ月 24時間管理費用 1100円/室内清掃費用 99000円/ペット消臭料(飼育時) 44000円 | ||
部屋の情報
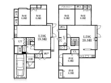
| 間取り | 6LDK | 専有面積 | 212.89m2 |
|---|---|---|---|
| 所在階 / 向き | 1階 / - | バルコニー面積 | - |
| 水道 / ガス | ガス【プロパン】 | ||
| 設備 | バス・トイレ別、テレビドアホン、ウォークインクローゼット、追い焚き、システムキッチン、温水洗浄便座、BSアンテナ、シャワー、石油暖房、洗濯機:室内 | ||
| 当社物件ID | 91929922 | ||
建物の情報
| 建物名 | 札幌市東西線 菊水駅 バス乗車時間:15分 米里1条2丁目バス停で下車 徒歩5分 2階建 築35年 | ||
|---|---|---|---|
| 所在地 | 北海道札幌市白石区菊水元町十条1丁目 | ||
| 交通 | 札幌市東西線 菊水駅 バス乗車時間:15分 米里1条2丁目バス停で下車 徒歩5分 | ||
| 階数 | 2階建 | 総戸数 | 1戸 |
| 築年月 | 1991年09月 / 築35年 | エレベーター | - |
| 駐車場 | 空有 | バイク置き場 | - |
| 駐輪場 | - | 管理人/管理会社 | - |
| 周辺環境 | 小学校 米里小学校 徒歩9分(669m) 保育園 札幌厚成福祉会第二保育所 徒歩22分(1719m) その他 ヤマダ電機 徒歩20分(1574m) その他 セブンイレブン 徒歩13分(1021m) その他 コープさっぽろ菊水元町店 徒歩15分(1125m) その他 札幌菊水元町郵便局 徒歩15分(1177m) その他 イオンモール札幌苗穂 徒歩25分(1935m) その他 ケーズ電気 徒歩28分(2165m) | ||
| 建物種別 | 一戸建て | 建物構造 | 木造 |
この部屋の取扱い不動産会社
| 会社名 | アパマンショップ南郷7丁目店 | ||
|---|---|---|---|
| 所在地 | 北海道札幌市白石区南郷通7丁目南 5-10メソンカルディア1階 | 交通 | 札幌市東西線南郷7丁目から徒歩1分 |
| 営業時間 | 09:00〜18:00(営業時間外は予約制でご対応可能) | 定休日 | - |
| 免許番号 | 北海道知事石狩(2)8819 | 取引態様 | 仲介 |
| 不動産会社管理番号 | 111602155 | 当社管理番号 | 4 |
| 所属団体 | (公社)北海道宅地建物取引業協会 | ||
| 公正取引協議会 | (一社) 北海道不動産公正取引協議会加盟 | ||
| 取扱い物件情報 | 物件詳細へ | ||
※各種情報と現状に差異がある場合は、現状優先となります。問い合わせをすることで、より詳しい条件、情報を確認する事ができます。
提供:アパマンショップ南郷7丁目店
この物件が気になったら掲載期限まであと12日
札幌市東西線 菊水駅 バス乗車時間:15分 米里1条2丁目バス停で下車 徒歩5分 2階建 築35年に条件(家賃・エリア)が近い物件一覧
| 写真 | 家賃 管理費等 | 敷金 礼金 | 間取り 専有面積 | 築年数 | 最寄り駅 所在地 | キープ | 詳細 |
|---|---|---|---|---|---|---|---|
マンション 住吉3丁目9-10MS(2LDK/4階) | |||||||
![]() | 9.5万円 7,000円 | 9.5万円 9.5万円 | 2LDK 48.44m2 | 築1年 | 千歳線 千歳駅(北海道) 徒歩21分 北海道千歳市住吉3丁目 | 詳細を見る | |
マンション ディア東札幌(3LDK/4階) | |||||||
![]() | 13.5万円 7,000円 | なし なし | 3LDK 73.28m2 | 築1年 | 地下鉄東西線 東札幌駅 徒歩5分 地下鉄東西線 白石駅(札幌市営) 徒歩15分 地下鉄東西線 菊水駅 徒歩20分 北海道札幌市白石区東札幌四条 | 詳細を見る | |
アパート 南郷通9丁目AP 2(4LDK/1階) | |||||||
![]() | 17.8万円 3,000円 | 17.8万円 17.8万円 | 4LDK 107.26m2 | 新築 | 地下鉄東西線 南郷7丁目駅 徒歩6分 地下鉄東西線 南郷13丁目駅 徒歩13分 地下鉄東豊線 月寒中央駅 徒歩25分 北海道札幌市白石区南郷通9丁目南 | 詳細を見る | |
マンション カレラ菊水(3LDK/4階) | |||||||
![]() | 10.2万円 6,000円 | 10.2万円 なし | 3LDK 67.81m2 | 築8年 | 札幌市東西線 菊水駅 徒歩8分 北海道札幌市白石区菊水六条2丁目 | 詳細を見る | |
マンション FORESTA NOTTE(2LDK/4階) | |||||||
![]() | 10.5万円 3,000円 | 10.5万円 10.5万円 | 2LDK 53.26m2 | 築1年 | 札幌市東西線 東札幌駅 徒歩3分 北海道札幌市白石区東札幌三条3丁目 | 詳細を見る | |
マンション SーRESIDENCE東札幌BLING(3LDK/1階) | |||||||
![]() | 12.7万円 5,000円 | なし 12.7万円 | 3LDK 70.66m2 | 築1年 | 札幌市東西線 東札幌駅 徒歩7分 北海道札幌市白石区東札幌五条3丁目 | 詳細を見る | |
マンション アルファスクエア南4条東(2LDK/6階) | |||||||
![]() | 9.4万円 7,000円 | なし なし | 2LDK 51.47m2 | 築18年 | 札幌市東西線 バスセンター前駅 徒歩6分 北海道札幌市中央区南四条東4丁目 | 詳細を見る | |
マンション グランカーサ永山公園通イースト(2LDK/6階) | |||||||
![]() | 10万円 7,000円 | なし なし | 2LDK 57.01m2 | 築20年 | 地下鉄東西線 バスセンター前駅 徒歩7分 JR函館本線 苗穂駅 徒歩7分 地下鉄東西線 菊水駅 徒歩10分 北海道札幌市中央区北一条東 | 詳細を見る | |


/105x80-f1-q70-wp1)






