賃貸一戸建て
京成電鉄本線 公津の杜駅 徒歩46分 2階建 築52年の賃貸物件情報(4LDK)
| 家賃 | 管理費等 | 敷金 | 礼金 | 間取り | 専有面積 |
|---|---|---|---|---|---|
| 6.5万円 | なし | なし | なし | 4LDK | 103.27m2 |
入居決定でお祝い金最大100,000円
Point
朝や就寝前がラクラクの、独立した洗面所の物件。2ヶ所にトイレがあります。
提供:ハウスコム千葉株式会社 千葉店

詳細情報 京成電鉄本線 公津の杜駅 徒歩46分 2階建 築52年
物件紹介
京成電鉄本線公津の杜駅から徒歩46分にある一戸建てです。
バス・トイレ別の仕様で、のんびりお風呂タイムも楽しめます。
ペット飼育の相談ができますので、あなたの大切な家族の一員も快適に暮らせるか、ぜひ確認してみてください。
バス・トイレ別の仕様で、のんびりお風呂タイムも楽しめます。
ペット飼育の相談ができますので、あなたの大切な家族の一員も快適に暮らせるか、ぜひ確認してみてください。
お金・契約の情報
※「-」と表示されているものは、実際は料金が発生するものもございます。詳細はお問い合わせください。
| 家賃 | 6.5万円 | 管理費・共益費 | なし |
|---|---|---|---|
| 敷金 | なし | 礼金 | なし |
| 入居決定でお祝い金最大100,000円 | |||
| 保証金 | - | 償却・敷引 | - |
| 住宅保険料 | 1円 | 更新料 | - |
| その他費用 | 安心サポート24円:1.65万円、16500円:、鍵交換:1.76万円 | ||
| 保証会社利用 | 必須 | 保証会社名 | - |
| 保証会社費用 | - | 保証会社備考 | オリコフォレントインシュア 月額総賃料の50%(最低保証料25,000円) |
| 契約形態 | - | 契約期間 | 2年 |
| 入居・引渡期間 | 2026年03月上旬 | 現況 | - |
| 入居可能条件 | 2人入居可、ペット可 | ||
| 契約備考 | 安心入居サポート24 16500円 鍵交換 17600円 消臭・消毒 16500円 保証会社利用必須 オリコフォレントインシュア 月額総賃料の50%(最低保証料25000円) その他設備/条件:独立洗面台 | ||
部屋の情報
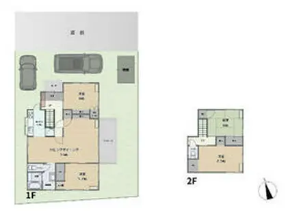
| 間取り | 4LDK | 専有面積 | 103.27m2 |
|---|---|---|---|
| 間取り詳細 | LD(16帖)、洋室(6帖)、洋室(5.7帖)、洋室(6帖)、洋室(7.5帖) | ||
| 所在階 / 向き | 1階 / - | バルコニー面積 | - |
| 水道 / ガス | ガス【プロパン】 | ||
| 設備 | バス・トイレ別 | ||
| 当社物件ID | 160492826 | ||
建物の情報
| 建物名 | 京成電鉄本線 公津の杜駅 徒歩46分 2階建 築52年 | ||
|---|---|---|---|
| 所在地 | 千葉県富里市七栄 | ||
| 交通 | 京成電鉄本線 公津の杜駅 徒歩46分 | ||
| 階数 | 2階建 | 総戸数 | - |
| 築年月 | 1974年04月 / 築52年 | エレベーター | - |
| 駐車場 | 空有 | バイク置き場 | - |
| 駐輪場 | - | 管理人/管理会社 | - |
| 周辺環境 | その他 ドラッグストア その他 公園 その他 銀行 その他 * | ||
| 建物種別 | 一戸建て | 建物構造 | 木造 |
この部屋の取扱い不動産会社
| 会社名 | ハウスコム千葉株式会社 千葉店 | ||
|---|---|---|---|
| 所在地 | 千葉県千葉市中央区2-11勝山ビル4階 | 交通 | - |
| 営業時間 | 10:00~18:00 | 定休日 | - |
| 免許番号 | 千葉県知事(1)第18235号 | 取引態様 | 仲介 |
| 不動産会社管理番号 | HC4-5403125-B-0004 | 当社管理番号 | 468 |
| 所属団体 | 、 | ||
| 取扱い物件情報 | 物件詳細へ | ||
※各種情報と現状に差異がある場合は、現状優先となります。問い合わせをすることで、より詳しい条件、情報を確認する事ができます。
提供:ハウスコム千葉株式会社 千葉店
この物件が気になったら掲載期限まであと5日
京成電鉄本線 公津の杜駅 徒歩46分 2階建 築52年に条件(家賃・エリア)が近い物件一覧
| 写真 | 家賃 管理費等 | 敷金 礼金 | 間取り 専有面積 | 築年数 | 最寄り駅 所在地 | キープ | 詳細 |
|---|---|---|---|---|---|---|---|
マンション ハピネスハイツ(2K/2階) | |||||||
![]() | 5.3万円 2,000円 | なし なし | 2K 31.5m2 | 築37年 | JR成田線 成田駅 徒歩11分 京成本線 京成成田駅 徒歩14分 千葉県成田市幸町 | 詳細を見る | |
アパート レオパレス幸希(1K/1階) | |||||||
![]() | 4.2万円 7,000円 | なし 4.2万円 | 1K 23.61m2 | 築20年 | 総武本線 八街駅 徒歩20分 千葉県八街市八街 | 詳細を見る | |
アパート クワイエットスカイB(2LDK/2階) | |||||||
![]() | 7.9万円 5,000円 | なし 7.9万円 | 2LDK 61.63m2 | 築18年 | 京成本線 公津の杜駅 徒歩47分 京成本線 宗吾参道駅 徒歩49分 千葉県成田市はなのき台 | 詳細を見る | |
アパート レオパレスフォンティーヌ囲護台(1K/2階) | |||||||
![]() | 6.4万円 7,000円 | なし 6.4万円 | 1K 19.87m2 | 築19年 | JR成田線 成田駅 徒歩13分 成田スカイアクセス 成田湯川駅 徒歩45分 京成本線 公津の杜駅 徒歩46分 千葉県成田市囲護台 | 詳細を見る | |
アパート ストリームABCDE(2LDK/2階) | |||||||
![]() | 7.6万円 4,000円 | なし なし | 2LDK 59.58m2 | 築23年 | 芝山鉄道 芝山千代田駅 徒歩83分 千葉県富里市御料 | 詳細を見る | |
マンション レザレII(1LDK/1階) | |||||||
![]() | 9.8万円 6,000円 | なし 19.6万円 | 1LDK 48.82m2 | 築1年 | 京成本線 公津の杜駅 徒歩26分 京成本線 京成成田駅 徒歩44分 JR成田線 成田駅 徒歩45分 千葉県成田市並木町 | 詳細を見る | |
マンション FLORA(2LDK/1階) | |||||||
![]() | 8.4万円 6,000円 | なし 8.4万円 | 2LDK 55.25m2 | 築10年 | 千葉県成田市本城 | 詳細を見る | |








