賃貸マンション
コーポ紅梅の賃貸物件情報(2K/2階)
| 家賃 | 管理費等 | 敷金 | 礼金 | 間取り | 専有面積 |
|---|---|---|---|---|---|
| 3.6万円 | 4,000円 | なし | 7万円 | 2K | 27.7m2 |
入居決定でお祝い金最大100,000円
Point
ペット相談可能マンション 百々小学校区よりペット(小型犬、猫)相談可能マンション
提供:株式会社 京都ライフ 山科店(賃貸スモッカ経由)

詳細情報 コーポ紅梅
物件紹介
コーポ紅梅は京都市東西線東野駅から徒歩20分にあるマンションです。
このお部屋は2階以上に位置しているので、通行人や周囲の住人からの視線が気になりにくく、防犯面でも安心です。
人気の角部屋で周囲の居住者の生活音も気になりにくく、また、フローリングのお部屋なのでお掃除もラクラク。
通信設備面ではCATVに対応しているので、おうち時間も充実するでしょう(別途工事、契約料が必要な場合あり)。
このお部屋は2階以上に位置しているので、通行人や周囲の住人からの視線が気になりにくく、防犯面でも安心です。
人気の角部屋で周囲の居住者の生活音も気になりにくく、また、フローリングのお部屋なのでお掃除もラクラク。
通信設備面ではCATVに対応しているので、おうち時間も充実するでしょう(別途工事、契約料が必要な場合あり)。
お金・契約の情報
※「-」と表示されているものは、実際は料金が発生するものもございます。詳細はお問い合わせください。
| 家賃 | 3.6万円 | 管理費・共益費 | 4,000円 |
|---|---|---|---|
| 敷金 | なし | 礼金 | 7万円 |
| 入居決定でお祝い金最大100,000円 | |||
| 保証金 | - | 償却・敷引 | - |
| 住宅保険料 | 住宅保険料あり | 更新料 | - |
| 契約形態 | - | 契約期間 | 1年 |
| 入居・引渡期間 | 即時 | 現況 | 空室 |
| 契約備考 | 京都市山科区 西野エリアの2Kマンションです。敷金、礼金ナシ。コンビニ、スーパー、ドラッグストア、ホームセンターなど近くにあって便利ですよ。ペットも相談可能です。 更新料:1ヶ月 その他設備/条件:即入居可 | ||
部屋の情報
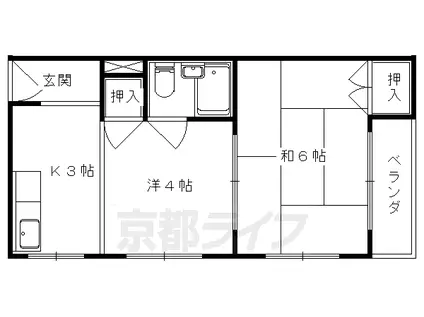
| 間取り | 2K | 専有面積 | 27.7m2 |
|---|---|---|---|
| 間取り詳細 | 和室(6帖)、洋室(4帖)、K(3帖) | ||
| 所在階 / 向き | 2階 / 東 | バルコニー面積 | - |
| 水道 / ガス | ガス【都市】 | ||
| 設備 | 2階以上、エアコン、バルコニー、CATV、洗濯機:室内 | ||
| 当社物件ID | 18674914 | ||
建物の情報
| 建物名 | コーポ紅梅 | ||
|---|---|---|---|
| 所在地 | 京都府京都市山科区川田前畑町 | ||
| 交通 | 京都市東西線 東野駅(京都) 徒歩20分 京都市東西線 椥辻駅 徒歩27分 | ||
| 階数 | 3階建 | 総戸数 | - |
| 築年月 | 1982年03月 / 築44年 | エレベーター | - |
| 駐車場 | - | バイク置き場 | - |
| 駐輪場 | - | 管理人/管理会社 | - |
| 建物種別 | マンション | 建物構造 | 気泡コン |
この部屋の取扱い不動産会社
| 会社名 | 株式会社 京都ライフ 山科店(賃貸スモッカ経由) | ||
|---|---|---|---|
| 所在地 | 京都市山科区竹鼻竹ノ街道町11スタービル1F | 交通 | - |
| 営業時間 | - | 定休日 | - |
| 免許番号 | 京都府知事(11)第6353号 | 取引態様 | 仲介 |
| 不動産会社管理番号 | kyotolife_16317-204 | 当社管理番号 | 463 |
| 所属団体 | 京都府宅地建物取引業協会\n公益社団法人近畿地区不動産公正取引協議会 | ||
| 公正取引協議会 | 全国宅地建物取引業保証協会 | ||
| 取扱い物件情報 | 物件詳細へ | ||
※各種情報と現状に差異がある場合は、現状優先となります。問い合わせをすることで、より詳しい条件、情報を確認する事ができます。
提供:株式会社 京都ライフ 山科店(賃貸スモッカ経由)
この物件が気になったら掲載期限まであと5日
コーポ紅梅に条件(家賃・エリア)が近い物件一覧
| 写真 | 家賃 管理費等 | 敷金 礼金 | 間取り 専有面積 | 築年数 | 最寄り駅 所在地 | キープ | 詳細 |
|---|---|---|---|---|---|---|---|
一戸建て 京阪電気鉄道京津線 追分駅(滋賀) 徒歩3分 築66年(4DK) | |||||||
![]() | 5.5万円 なし | 5.5万円 4.4万円 | 4DK 69.42m2 | 築66年 | 京阪電気鉄道京津線 追分駅(滋賀) 徒歩3分 京阪電気鉄道京津線 四宮駅 徒歩15分 東海道本線 山科駅 徒歩23分 京都府京都市山科区八軒屋敷町 | 詳細を見る | |
マンション プロムナード(1K/1階) | |||||||
![]() | 4.5万円 2,000円 | なし 15万円 | 1K 25m2 | 築22年 | 近鉄京都線 小倉駅(京都) 徒歩7分 近鉄京都線 伊勢田駅 徒歩21分 JR奈良線 JR小倉駅 徒歩23分 京都府宇治市小倉町南堀池 | 詳細を見る | |
アパート 奈良線 新田駅(京都) 徒歩4分 築38年(1LDK/2階) | |||||||
![]() | 5.5万円 5,000円 | なし 5.5万円 | 1LDK 38.88m2 | 築38年 | 奈良線 新田駅(京都) 徒歩4分 近鉄京都線 大久保駅(京都) 徒歩9分 京都府宇治市広野町丸山 | 詳細を見る | |
マンション 奈良線 木幡駅(JR) 徒歩6分 築28年(1K/3階) | |||||||
![]() | 4.9万円 3,000円 | なし 10万円 | 1K 22.7m2 | 築28年 | 奈良線 木幡駅(JR) 徒歩6分 京阪電気鉄道宇治線 木幡駅(京阪) 徒歩6分 京都府宇治市木幡 | 詳細を見る | |
アパート 京都市東西線 東野駅(京都) 徒歩21分 築54年(2K/1階) | |||||||
![]() | 3万円 なし | 5万円 なし | 2K 28m2 | 築54年 | 京都市東西線 東野駅(京都) 徒歩21分 京都市東西線 椥辻駅 徒歩25分 京都府京都市山科区川田欠ノ上 | 詳細を見る | |
マンション 近鉄京都線 小倉駅(京都) 徒歩10分 築30年(1K/6階) | |||||||
![]() | 5万円 5,000円 | なし なし | 1K 22.46m2 | 築30年 | 近鉄京都線 小倉駅(京都) 徒歩10分 近鉄京都線 大久保駅(京都) 徒歩15分 京都府宇治市小倉町 | 詳細を見る | |
マンション 京都市東西線 東野駅(京都) 徒歩13分 築53年(1LDK/3階) | |||||||
![]() | 4.2万円 5,000円 | 4.2万円 4.2万円 | 1LDK 36.3m2 | 築53年 | 京都市東西線 東野駅(京都) 徒歩13分 京阪電気鉄道京津線 四宮駅 徒歩17分 京都府京都市山科区大塚野溝町 | 詳細を見る | |
マンション 京都市東西線 椥辻駅 徒歩9分 築35年(1K/1階) | |||||||
![]() | 3.1万円 7,000円 | なし 3.1万円 | 1K 16.8m2 | 築35年 | 京都市東西線 椥辻駅 徒歩9分 京都市東西線 小野駅(京都) 徒歩15分 京都府京都市山科区大宅辻脇町 | 詳細を見る | |








