賃貸アパート
南郷通9丁目長井APⅡの賃貸物件情報(4LDK/1階)
| 家賃 | 管理費等 | 敷金 | 礼金 | 間取り | 専有面積 |
|---|---|---|---|---|---|
| 17.8万円 | 3,000円 | 17.8万円 | 17.8万円 | 4LDK | 107.26m2 |
入居決定でお祝い金最大100,000円
Point
まずはお問い合わせ!
不動産会社は街のプロ、あなたに合った物件がきっと見つかります。
提供:アパマンショップひばりヶ丘駅前店

詳細情報 南郷通9丁目長井APⅡ
物件紹介
南郷通9丁目長井APⅡは札幌市東西線南郷7丁目駅から徒歩6分にあり、駅近で通勤通学に便利なアパートです。
このお部屋のインターホンにはTVモニタがついているため、相手の顔を確認してから来客対応することができます。
キッチンはシステムキッチン仕様になっていますので、お料理好きの方にもぴったり。また、バス・トイレは別で、のんびりお風呂タイムも楽しめるでしょう。
通信設備面では、インターネットが無料で使えるので、月々の出費を抑えられるのも魅力です(別途工事等が必要な場合あり)。
また、こちらはガス暖房が可能な物件。ガスファンヒーターの使用も考えている方にはおすすめです。共用部には宅配ボックスが設定されているので、不在の時にも荷物を受け取ることができます。
このお部屋のインターホンにはTVモニタがついているため、相手の顔を確認してから来客対応することができます。
キッチンはシステムキッチン仕様になっていますので、お料理好きの方にもぴったり。また、バス・トイレは別で、のんびりお風呂タイムも楽しめるでしょう。
通信設備面では、インターネットが無料で使えるので、月々の出費を抑えられるのも魅力です(別途工事等が必要な場合あり)。
また、こちらはガス暖房が可能な物件。ガスファンヒーターの使用も考えている方にはおすすめです。共用部には宅配ボックスが設定されているので、不在の時にも荷物を受け取ることができます。
お金・契約の情報
※「-」と表示されているものは、実際は料金が発生するものもございます。詳細はお問い合わせください。
| 家賃 | 17.8万円 | 管理費・共益費 | 3,000円 |
|---|---|---|---|
| 敷金 | 17.8万円 | 礼金 | 17.8万円 |
| 入居決定でお祝い金最大100,000円 | |||
| 保証金 | - | 償却・敷引 | - |
| 住宅保険料 | 2万円(2年) | 更新料 | - |
| 契約形態 | - | 契約期間 | 2年 |
| 入居・引渡期間 | 2026年03月下旬 | 現況 | - |
| 契約備考 | |||
部屋の情報
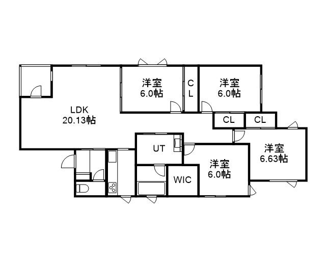
| 間取り | 4LDK | 専有面積 | 107.26m2 |
|---|---|---|---|
| 間取り詳細 | LDK(20.1帖)、洋室(6.6帖)、洋室(6帖)、洋室(6帖)、洋室(6帖) | ||
| 所在階 / 向き | 1階 / - | バルコニー面積 | - |
| 水道 / ガス | ガス【都市】 | ||
| 設備 | バス・トイレ別、テレビドアホン、宅配ボックス、追い焚き、インターネット対応、システムキッチン、温水洗浄便座、バルコニー、コンロ:IH、インターネット使用料無料、シャワー、給湯、ガス暖房、洗濯機:室内 | ||
| 当社物件ID | 160111875 | ||
建物の情報
| 建物名 | 南郷通9丁目長井APⅡ | ||
|---|---|---|---|
| 所在地 | 北海道札幌市白石区南郷通9丁目南 | ||
| 交通 | 札幌市東西線 南郷7丁目駅 徒歩6分 | ||
| 階数 | 3階建 | 総戸数 | 3戸 |
| 築年月 | 2026年03月 / 新築 | エレベーター | - |
| 駐車場 | 空有 1.1万円/月 | バイク置き場 | - |
| 駐輪場 | - | 管理人/管理会社 | - |
| 建物種別 | アパート | 建物構造 | 木造 |
この部屋の取扱い不動産会社
| 会社名 | アパマンショップ札幌美園店 | ||
|---|---|---|---|
| 所在地 | 北海道札幌市豊平区美園8条7丁目 1-1美園駅前ビル 1F | 交通 | 札幌市東豊線美園から徒歩1分 |
| 営業時間 | 09:00〜19:00(※時間外対応可能) | 定休日 | - |
| 免許番号 | 北海道知事石狩(2)8852 | 取引態様 | 仲介 |
| 不動産会社管理番号 | 111516417 | 当社管理番号 | 4 |
| 所属団体 | (公社)北海道宅地建物取引業協会 | ||
| 公正取引協議会 | (一社) 北海道不動産公正取引協議会加盟 | ||
| 取扱い物件情報 | 物件詳細へ | ||
※各種情報と現状に差異がある場合は、現状優先となります。問い合わせをすることで、より詳しい条件、情報を確認する事ができます。
提供:アパマンショップ札幌美園店
この物件が気になったら掲載期限まであと12日
南郷通9丁目長井APⅡに条件(家賃・エリア)が近い物件一覧
| 写真 | 家賃 管理費等 | 敷金 礼金 | 間取り 専有面積 | 築年数 | 最寄り駅 所在地 | キープ | 詳細 |
|---|---|---|---|---|---|---|---|
マンション SILENT HILLS(3LDK/4階) | |||||||
![]() | 12.3万円 6,000円 | なし 12.3万円 | 3LDK 73.04m2 | 築1年 | 札幌市東西線 南郷18丁目駅 徒歩9分 北海道札幌市白石区本通17丁目南 | 詳細を見る | |
アパート JR函館本線 高砂駅(北海道) 徒歩11分 築3年(3LDK/1階) | |||||||
![]() | 11.5万円 なし | 11.5万円 なし | 3LDK 83.64m2 | 築3年 | JR函館本線 高砂駅(北海道) 徒歩11分 JR函館本線 野幌駅 徒歩13分 JR函館本線 江別駅 徒歩33分 北海道江別市幸町 | 詳細を見る | |
マンション ピオネロ恵庭IV(2LDK/4階) | |||||||
![]() | 14.4万円 7,000円 | 14.4万円 14.4万円 | 2LDK 64.01m2 | 新築 | JR千歳線 恵庭駅 徒歩4分 北海道恵庭市相生町 | 詳細を見る | |
マンション 雅 MIYABI(3LDK/1階) | |||||||
![]() | 13.5万円 3,000円 | 13.5万円 なし | 3LDK 73.06m2 | 新築 | JR千歳線 千歳駅(北海道) 徒歩23分 北海道千歳市緑町 | 詳細を見る | |
マンション ラ・シュエット栄通D(4LDK/2階) | |||||||
![]() | 14.3万円 5,000円 | なし 14.3万円 | 4LDK 75.03m2 | 新築 | 地下鉄東西線 南郷7丁目駅 徒歩11分 地下鉄東西線 南郷13丁目駅 徒歩16分 地下鉄東豊線 月寒中央駅 徒歩22分 北海道札幌市白石区栄通 | 詳細を見る | |
マンション WELLBRIGHT朝日RESIDENCE(3LDK/3階) | |||||||
![]() | 12.3万円 5,000円 | なし なし | 3LDK 72.9m2 | 築1年 | 千歳線 千歳駅(北海道) 徒歩18分 北海道千歳市朝日町4丁目 | 詳細を見る | |
マンション ヴォヤージュ菊水(2LDK/2階) | |||||||
![]() | 11.3万円 5,000円 | なし 11.3万円 | 2LDK 55.92m2 | 新築 | 札幌市東西線 菊水駅 徒歩10分 北海道札幌市白石区菊水八条2丁目 | 詳細を見る | |
マンション ジュノール千歳真々地(2LDK/2階) | |||||||
![]() | 11.8万円 7,000円 | 11.8万円 11.8万円 | 2LDK 61.11m2 | 新築 | JR千歳線 千歳駅(北海道) 徒歩27分 JR千歳線 南千歳駅 徒歩44分 北海道千歳市真々地 | 詳細を見る | |








