賃貸マンション
LASANTE五反田の賃貸物件情報(1LDK/14階)
| 家賃 | 管理費等 | 敷金 | 礼金 | 間取り | 専有面積 |
|---|---|---|---|---|---|
| 22.4万円 | 1.1万円 | なし | なし | 1LDK | 38.03m2 |
入居決定でお祝い金最大100,000円
- 保証金
- -
- 償却・敷引
- -
- 築年数
- 築21年
- 所在階
- 14階
- 向き
- 北西
Point
オンライン内見・契約実施!初期費用クレカ決済もご相談ください!お部屋探しはナビホーム赤坂店にお任せください♪
提供:アエラス池袋店/現地案内センター (株)アエラス.FR(SUUMO経由)

詳細情報 LASANTE五反田
物件紹介
LASANTE五反田は東急池上線大崎広小路駅から徒歩5分にあり、駅近で通勤通学に便利なマンションです。
このお部屋は2階以上に位置しているので、通行人や周囲の住人からの視線が気になりにくく、防犯面でも安心。建物のエントランスはオートロックがついており、インターホンにはTVモニタもついているため、相手の顔を確認してから来客対応することができます。
こちらは楽器相談が可能な物件。楽器演奏をお考えの方はぜひ相談してみてください。フローリングのお部屋なのでお掃除もラクラク。キッチンはシステムキッチン仕様になっていますので、お料理好きの方にもぴったり。バス・トイレは別なので、のんびりお風呂タイムも楽しめるでしょう。また、雨の日でも浴室乾燥機を使えば、お洗濯も問題ありません。
通信設備面では、インターネットが無料で使えるので、月々の出費を抑えられるのも魅力です。また、BSアンテナ・CSアンテナがありCATVにも対応しているので、おうち時間も充実するでしょう(別途工事、BS・CS・CATVの契約料等が必要な場合あり)。
建物にはエレベーターがついているので、重い荷物があっても安心。共用部には宅配ボックスが設定されているので、不在の時にも荷物を受け取ることができます。また、ペット飼育の相談ができますので、あなたの大切な家族の一員も快適に暮らせるか、ぜひ確認してみてください。
このお部屋は2階以上に位置しているので、通行人や周囲の住人からの視線が気になりにくく、防犯面でも安心。建物のエントランスはオートロックがついており、インターホンにはTVモニタもついているため、相手の顔を確認してから来客対応することができます。
こちらは楽器相談が可能な物件。楽器演奏をお考えの方はぜひ相談してみてください。フローリングのお部屋なのでお掃除もラクラク。キッチンはシステムキッチン仕様になっていますので、お料理好きの方にもぴったり。バス・トイレは別なので、のんびりお風呂タイムも楽しめるでしょう。また、雨の日でも浴室乾燥機を使えば、お洗濯も問題ありません。
通信設備面では、インターネットが無料で使えるので、月々の出費を抑えられるのも魅力です。また、BSアンテナ・CSアンテナがありCATVにも対応しているので、おうち時間も充実するでしょう(別途工事、BS・CS・CATVの契約料等が必要な場合あり)。
建物にはエレベーターがついているので、重い荷物があっても安心。共用部には宅配ボックスが設定されているので、不在の時にも荷物を受け取ることができます。また、ペット飼育の相談ができますので、あなたの大切な家族の一員も快適に暮らせるか、ぜひ確認してみてください。
お金・契約の情報
※「-」と表示されているものは、実際は料金が発生するものもございます。詳細はお問い合わせください。
| 家賃 | 22.4万円 | 管理費・共益費 | 1.1万円 |
|---|---|---|---|
| 敷金 | なし | 礼金 | なし |
| 入居決定でお祝い金最大100,000円 | |||
| 保証金 | - | 償却・敷引 | - |
| 住宅保険料 | - | 更新料 | - |
| 保証会社利用 | 必須 | 保証会社名 | - |
| 保証会社費用 | - | 保証会社備考 | 保証会社利用必 保証料:賃料等の50%(最低2万)、月額保証料:賃料等の1%(更新料無) |
| 契約形態 | - | 契約期間 | - |
| 入居・引渡期間 | 即時 | 現況 | - |
| 入居可能条件 | 楽器相談、ペット相談 | ||
| 契約備考 | 合計5.72万円(内訳:エアコン清掃費1.87万円鍵交換代3.85万円) 更新料 新賃料1.00ヶ月分 室内清掃費用 77220円 1LDK 二人入居可/ペット相談/楽器相談 普通借家2年 損保【1.66万円2年】 バストイレ別、バルコニー、エアコン、ガスコンロ対応、クロゼット、フローリング、浴室乾燥機、オートロック、室内洗濯置、シューズボックス、システムキッチン、追焚機能浴室、温水洗浄便座、脱衣所、エレベーター、洗面所独立、洗面化粧台、宅配ボックス、CATV、礼金不要、BS・CS、敷金不要、3口以上コンロ、防犯カメラ、独立型キッチン、ペット相談、全居室洋室、二人入居相談、全居室フローリング、玄関ホール、2沿線利用可、CS、ネット専用回線、ネット使用料不要、眺望良好、保証金不要、楽器相談、クロゼット2ヶ所、エレベーター2基、クロゼット3ヶ所、耐火構造、2駅利用可、3駅以上利用可、駅徒歩5分以内、駅徒歩10分以内、高層階、洗面所にドア、玄関収納、BS、年内入居可、年度内入居可、敷金・礼金不要、保証会社利用可 敷金積み増し【ペット飼育の場合敷金1ヶ月(総額)】 | ||
部屋の情報
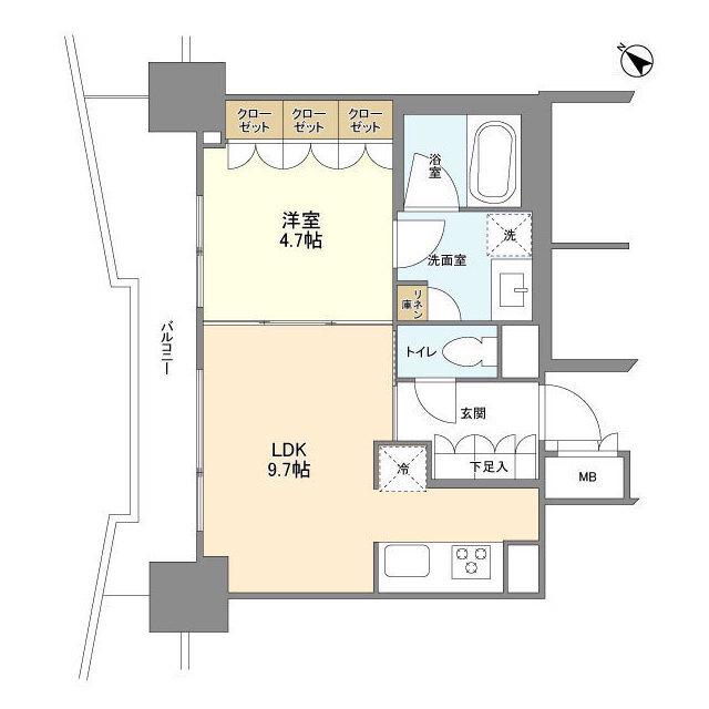
| 間取り | 1LDK | 専有面積 | 38.03m2 |
|---|---|---|---|
| 所在階 / 向き | 14階 / 北西 | バルコニー面積 | - |
| 水道 / ガス | - | ||
| 設備 | バス・トイレ別、2階以上、オートロック、宅配ボックス、浴室乾燥機、追い焚き、インターネット対応、システムキッチン、エアコン、エレベーター、温水洗浄便座、バルコニー、フローリング、洗髪洗面化粧台、2口コンロ、コンロ:ガス、CATV、CSアンテナ、BSアンテナ、インターネット使用料無料、洗濯機:室内 | ||
| 当社物件ID | 159153862 | ||
建物の情報
| 建物名 | LASANTE五反田 | ||
|---|---|---|---|
| 所在地 | 東京都品川区西五反田 | ||
| 交通 | 東急池上線 大崎広小路駅 徒歩5分 JR山手線 五反田駅 徒歩9分 東急池上線 戸越銀座駅 徒歩11分 | ||
| 階数 | 15階建 | 総戸数 | - |
| 築年月 | 2006年01月 / 築21年 | エレベーター | あり |
| 駐車場 | なし | バイク置き場 | - |
| 駐輪場 | - | 管理人/管理会社 | - |
| 周辺環境 | その他 ライフ 大崎百反通店(スーパー)まで367m その他 まいばすけっと 大崎広小路駅前店(スーパー)まで539m その他 ユザワヤ 五反田店(その他)まで255m | ||
| 建物種別 | マンション | 建物構造 | RC(鉄筋コンクリート) |
この部屋の取扱い不動産会社
| 会社名 | TR(株)ナビホーム赤坂店(SUUMO経由) | ||
|---|---|---|---|
| 所在地 | 東京都港区赤坂2-19-4 関ビル4階 | 交通 | - |
| 営業時間 | 10時~19時 | 定休日 | - |
| 免許番号 | 東京都知事109457 | 取引態様 | 仲介 |
| 不動産会社管理番号 | 100463360248 | 当社管理番号 | 89 |
| 所属団体 | (公社)東京都宅地建物取引業協会会員 | ||
| 公正取引協議会 | (公社)首都圏不動産公正取引協議会加盟 | ||
| 取扱い物件情報 | 物件詳細へ | ||
※各種情報と現状に差異がある場合は、現状優先となります。問い合わせをすることで、より詳しい条件、情報を確認する事ができます。
提供:TR(株)ナビホーム赤坂店(SUUMO経由)
この物件が気になったら掲載期限まであと10日
LASANTE五反田に条件(家賃・エリア)が近い物件一覧
| 写真 | 家賃 管理費等 | 敷金 礼金 | 間取り 専有面積 | 築年数 | 最寄り駅 所在地 | キープ | 詳細 |
|---|---|---|---|---|---|---|---|
アパート VOX LILY(2LDK/1階) | |||||||
![]() | 20.3万円 4,000円 | 20.3万円 なし | 2LDK 56.47m2 | 築2年 | 京浜東北・根岸線 蒲田駅 徒歩13分 東急池上線 蓮沼駅 徒歩15分 東京都大田区西蒲田1丁目 | 詳細を見る | |
マンション LIVEFLAT馬込(1LDK/2階) | |||||||
![]() | 14.3万円 1万円 | なし なし | 1LDK 28.48m2 | 築1年 | 都営浅草線 馬込駅 徒歩3分 東急大井町線 荏原町駅 徒歩13分 都営浅草線 西馬込駅 徒歩14分 東京都大田区中馬込 | 詳細を見る | |
マンション ハイツ髙沢(1LDK/2階) | |||||||
![]() | 13.5万円 5,000円 | 13.5万円 27万円 | 1LDK 32.89m2 | 築7年 | 東急池上線 旗の台駅 徒歩5分 東急大井町線 荏原町駅 徒歩6分 横須賀線 西大井駅 徒歩21分 東京都品川区旗の台4丁目 | 詳細を見る | |
マンション コンフォリア・リヴ大森西(2LDK/4階) | |||||||
![]() | 19.5万円 1.8万円 | 19.5万円 なし | 2LDK 42.19m2 | 築1年 | 京急本線 大森町駅 徒歩11分 京急本線 梅屋敷駅(東京) 徒歩16分 京急本線 平和島駅 徒歩18分 東京都大田区大森西 | 詳細を見る | |
アパート 御殿山テラスⅡ(2LDK/1階) | |||||||
![]() | 22.5万円 3,000円 | 22.5万円 45万円 | 2LDK 57.6m2 | 築2年 | 山手線 大崎駅 徒歩8分 京浜急行電鉄本線 北品川駅 徒歩14分 東京都品川区北品川5丁目 | 詳細を見る | |
マンション スプランディッド大島(1DK/2階) | |||||||
![]() | 13.9万円 1万円 | なし なし | 1DK 30.3m2 | 築1年 | 東京都新宿線 大島駅(東京) 徒歩6分 東京都江東区大島8丁目 | 詳細を見る | |
一戸建て 東京都新宿線 大島駅(東京) 徒歩7分 築77年(1DK) | |||||||
![]() | 15.8万円 1万円 | 15.8万円 15.8万円 | 1DK 27.91m2 | 築77年 | 東京都新宿線 大島駅(東京) 徒歩7分 東京都新宿線 西大島駅 徒歩7分 総武・中央緩行線 亀戸駅 徒歩11分 東京都江東区大島3丁目 | 詳細を見る | |
マンション スタイリオ池上WELL(1LDK/2階) | |||||||
![]() | 19.3万円 1.5万円 | 19.3万円 なし | 1LDK 42.63m2 | 築3年 | 東急池上線 池上駅 徒歩7分 東京都大田区池上7丁目 | 詳細を見る | |








