賃貸アパート
シャノワールの賃貸物件情報(2LDK/2階)
| 家賃 | 管理費等 | 敷金 | 礼金 | 間取り | 専有面積 |
|---|---|---|---|---|---|
| 6.2万円 | 4,000円 | なし | なし | 2LDK | 54.51m2 |
入居決定でお祝い金最大100,000円
- 保証金
- -
- 償却・敷引
- -
- 築年数
- 築2年
- 所在階
- 2階
- 向き
- 南東
Point
収納はクロゼット・シューズボックスなどが備え付けられているので、衣類や日用品の収納に重宝します。モニターで来訪者を確認し、インターホンで対面せずに会話することができます。新築の物件です。
提供:いい部屋ネット大東建託リーシング(株)山口店(SUUMO経由)

詳細情報 シャノワール
物件紹介
シャノワールはJR山口線宮野駅から徒歩7分にあり、駅近で通勤通学に便利なアパートです。
このお部屋は2階以上に位置しているので、通行人や周囲の住人からの視線が気になりにくく、防犯面でも安心。インターホンにはTVモニタもついているため、相手の顔を確認してから来客対応することができます。
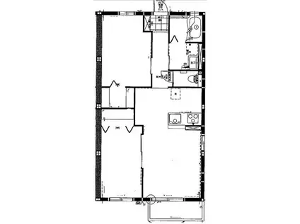
人気の南向き・フローリングのお部屋。角部屋でもあるため、周囲の居住者の生活音も気になりにくい場所です。室内にはウォークインクローゼットがありますので、たくさんの荷物も効率的に収納ができます。キッチンはシステムキッチン仕様になっていますので、お料理好きの方にもぴったり。バス・トイレは別なので、のんびりお風呂タイムも楽しめるでしょう。また、雨の日でも浴室乾燥機を使えば、お洗濯も問題ありません。
通信設備面では、インターネットが無料で使えるので、月々の出費を抑えられるのも魅力です。また、CATVにも対応しているので、おうち時間も充実するでしょう(別途工事、CATVの契約料等が必要な場合あり)。
共用部には宅配ボックスが設定されているので、不在の時にも荷物を受け取ることができます。また、ペット飼育の相談ができますので、あなたの大切な家族の一員も快適に暮らせるか、ぜひ確認してみてください。
このお部屋は2階以上に位置しているので、通行人や周囲の住人からの視線が気になりにくく、防犯面でも安心。インターホンにはTVモニタもついているため、相手の顔を確認してから来客対応することができます。
人気の南向き・フローリングのお部屋。角部屋でもあるため、周囲の居住者の生活音も気になりにくい場所です。室内にはウォークインクローゼットがありますので、たくさんの荷物も効率的に収納ができます。キッチンはシステムキッチン仕様になっていますので、お料理好きの方にもぴったり。バス・トイレは別なので、のんびりお風呂タイムも楽しめるでしょう。また、雨の日でも浴室乾燥機を使えば、お洗濯も問題ありません。
通信設備面では、インターネットが無料で使えるので、月々の出費を抑えられるのも魅力です。また、CATVにも対応しているので、おうち時間も充実するでしょう(別途工事、CATVの契約料等が必要な場合あり)。
共用部には宅配ボックスが設定されているので、不在の時にも荷物を受け取ることができます。また、ペット飼育の相談ができますので、あなたの大切な家族の一員も快適に暮らせるか、ぜひ確認してみてください。
お金・契約の情報
※「-」と表示されているものは、実際は料金が発生するものもございます。詳細はお問い合わせください。
| 家賃 | 6.2万円 | 管理費・共益費 | 4,000円 |
|---|---|---|---|
| 敷金 | なし | 礼金 | なし |
| 入居決定でお祝い金最大100,000円 | |||
| 保証金 | - | 償却・敷引 | - |
| 住宅保険料 | - | 更新料 | - |
| 保証会社利用 | 必須 | 保証会社名 | - |
| 保証会社費用 | - | 保証会社備考 | 保証会社利用必 保証会社必加入(セキスイユニディア:保証料は契約時月額賃料等の50%+月額賃料等の1.2%) |
| 契約形態 | - | 契約期間 | - |
| 入居・引渡期間 | - | 現況 | - |
| 入居可能条件 | ペット相談 | ||
| 契約備考 | 更新料10000円(二年毎)、別途火災保険加入要 合計1.65万円(内訳:ハイム’sCLUB1.65万円) 更新料 10000円 室内清掃費用 66000円 2LDK 二人入居可/ペット相談/事務所利用不可 損保【要】 バストイレ別、バルコニー、エアコン、クロゼット、フローリング、シャワー付洗面台、TVインターホン、浴室乾燥機、室内洗濯置、シューズボックス、システムキッチン、追焚機能浴室、角住戸、温水洗浄便座、洗面所独立、駐輪場、宅配ボックス、CATV、最上階、対面式キッチン、ペット相談、IHクッキングヒーター、全居室洋室、ウォークインクロゼット、保証人不要、駐車2台可、ディンプルキー、ネット使用料不要、上階無し、敷地内ごみ置き場、平面駐車場、東南向き、プロパンガス、洗面所にドア、三面鏡付洗面化粧台、CATV使用料不要、IT重説対応物件 入居日:'26年1月下旬 | ||
部屋の情報
| 間取り | 2LDK | 専有面積 | 54.51m2 |
|---|---|---|---|
| 所在階 / 向き | 2階 / 南東 | バルコニー面積 | - |
| 水道 / ガス | - | ||
| 設備 | バス・トイレ別、2階以上、テレビドアホン、宅配ボックス、浴室乾燥機、ウォークインクローゼット、追い焚き、インターネット対応、システムキッチン、エアコン、温水洗浄便座、南向き、角部屋、バルコニー、フローリング、洗髪洗面化粧台、コンロ:IH、CATV、インターネット使用料無料、洗濯機:室内 | ||
| 当社物件ID | 150744522 | ||
建物の情報
| 建物名 | シャノワール | ||
|---|---|---|---|
| 所在地 | 山口県山口市桜畠 | ||
| 交通 | JR山口線 宮野駅 徒歩7分 JR山口線 上山口駅 徒歩26分 JR山口線 山口駅(山口) 徒歩41分 | ||
| 階数 | 2階建 | 総戸数 | - |
| 築年月 | 2024年03月 / 築2年 | エレベーター | - |
| 駐車場 | 空有 2200円/駐2台可 | バイク置き場 | - |
| 駐輪場 | あり | 管理人/管理会社 | - |
| 周辺環境 | その他 JR山口線 宮野駅(その他)まで529m その他 セブンイレブン 山口桜畠店(コンビニ)まで519m その他 ウォンツ 山口宮野店(ドラッグストア)まで1152m その他 ディスカウントドラッグコスモス 宮野恋路店(ドラッグストア)まで1090m その他 クスリ岩崎チェーン 山口北店(ドラッグストア)まで999m その他 明屋書店 宮野店(その他)まで1172m | ||
| 建物種別 | アパート | 建物構造 | 軽量鉄骨造 |
この部屋の取扱い不動産会社
| 会社名 | いい部屋ネット大東建託リーシング(株)山口店(SUUMO経由) | ||
|---|---|---|---|
| 所在地 | 山口県山口市幸町 3-50 シャン・ド・フレーズ1階 | 交通 | - |
| 営業時間 | 10:00~12:30、13:30~18:00 | 定休日 | 火・水曜・12/11(木) |
| 免許番号 | 国土交通大臣9120 | 取引態様 | 仲介 |
| 不動産会社管理番号 | 100477140003 | 当社管理番号 | 89 |
| 所属団体 | (公財)日本賃貸住宅管理協会会員 | ||
| 公正取引協議会 | (公社)首都圏不動産公正取引協議会加盟 | ||
| 取扱い物件情報 | 物件詳細へ | ||
※各種情報と現状に差異がある場合は、現状優先となります。問い合わせをすることで、より詳しい条件、情報を確認する事ができます。
提供:いい部屋ネット大東建託リーシング(株)山口店(SUUMO経由)
この物件が気になったら掲載期限まであと10日
シャノワールに条件(家賃・エリア)が近い物件一覧
| 写真 | 家賃 管理費等 | 敷金 礼金 | 間取り 専有面積 | 築年数 | 最寄り駅 所在地 | キープ | 詳細 |
|---|---|---|---|---|---|---|---|
アパート クオーレ B棟(1LDK/1階) | |||||||
![]() | 6.48万円 6,500円 | なし 12.96万円 | 1LDK 46.54m2 | 築10年 | JR山陽本線 新山口駅 徒歩10分 山口県山口市小郡明治 | 詳細を見る | |
アパート 吉野アパート(2LDK/2階) | |||||||
![]() | 4万円 なし | 4万円 なし | 2LDK 42.57m2 | 築45年 | 山口県山口市平井 | 詳細を見る | |
アパート フレグランス下野 E棟(3DK/1階) | |||||||
| 5.28万円 5,500円 | なし 3万円 | 3DK 60.7m2 | 築32年 | 山口県山口市大内矢田北4丁目 | 詳細を見る | ||
マンション ラテラスⅠ(ワンルーム/2階) | |||||||
![]() | 4.9万円 3,000円 | 4.9万円 4.9万円 | ワンルーム 27.97m2 | 新築 | 山口線 湯田温泉駅 徒歩17分 山口県山口市平井 | 詳細を見る | |
マンション ラテラスⅡ(ワンルーム/3階) | |||||||
![]() | 5万円 3,000円 | 5万円 5万円 | ワンルーム 36.03m2 | 新築 | 山口線 湯田温泉駅 徒歩12分 山口県山口市平井 | 詳細を見る | |
アパート フェリックス葵(1LDK/2階) | |||||||
![]() | 5.88万円 5,500円 | なし 11.76万円 | 1LDK 30.3m2 | 築3年 | 山口線 湯田温泉駅 徒歩15分 山口県山口市葵2丁目 | 詳細を見る | |
アパート トリシア(1LDK/1階) | |||||||
![]() | 6.4万円 6,000円 | なし 12.8万円 | 1LDK 42.79m2 | 築1年 | 山口線 矢原駅 徒歩5分 山口県山口市矢原 | 詳細を見る | |
アパート シャインシード湯田(2DK/2階) | |||||||
![]() | 7.48万円 5,500円 | なし 14.96万円 | 2DK 50.2m2 | 築11年 | 山口線 湯田温泉駅 徒歩14分 山口県山口市湯田温泉6丁目 | 詳細を見る | |








