賃貸マンション
ピアース千代田淡路町の賃貸物件情報(1K/2階)
| 家賃 | 管理費等 | 敷金 | 礼金 | 間取り | 専有面積 |
|---|---|---|---|---|---|
| 12.8万円 | 1.2万円 | 12.8万円 | 12.8万円 | 1K | 25.17m2 |
入居決定でお祝い金最大100,000円
- 保証金
- -
- 償却・敷引
- -
- 築年数
- 築9年
- 所在階
- 2階
- 向き
- 西
Point
オンライン内見・契約実施!気になる物件はまとめてご案内可能です!初期費用クレカ決済もご相談ください!
提供:(株)アクアリアルエステート神田店(SUUMO経由)

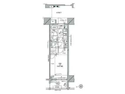
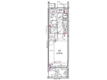
詳細情報 ピアース千代田淡路町
物件紹介
ピアース千代田淡路町は東京メトロ丸ノ内線淡路町駅から徒歩1分にあり、駅近で通勤通学に便利なマンションです。
このお部屋は2階以上に位置しているので、通行人や周囲の住人からの視線が気になりにくく、防犯面でも安心。建物のエントランスはオートロックがついており、インターホンにはTVモニタもついているため、相手の顔を確認してから来客対応することができます。
フローリングのお部屋なのでお掃除もラクラク。室内には人気のウォークインクローゼットがありますので、たくさんの荷物も効率的に収納ができます。キッチンはシステムキッチン仕様になっていますので、お料理好きの方にもぴったり。バス・トイレは別なので、のんびりお風呂タイムも楽しめるでしょう。また、雨の日でも浴室乾燥機を使えば、お洗濯も問題ありません。
通信設備面では、インターネットが無料で使えるので、月々の出費を抑えられるのも魅力です(別途工事等が必要な場合あり)。
建物にはエレベーターがついているので、重い荷物があっても安心。共用部には宅配ボックスが設定されているので、不在の時にも荷物を受け取ることができます。
このお部屋は2階以上に位置しているので、通行人や周囲の住人からの視線が気になりにくく、防犯面でも安心。建物のエントランスはオートロックがついており、インターホンにはTVモニタもついているため、相手の顔を確認してから来客対応することができます。
フローリングのお部屋なのでお掃除もラクラク。室内には人気のウォークインクローゼットがありますので、たくさんの荷物も効率的に収納ができます。キッチンはシステムキッチン仕様になっていますので、お料理好きの方にもぴったり。バス・トイレは別なので、のんびりお風呂タイムも楽しめるでしょう。また、雨の日でも浴室乾燥機を使えば、お洗濯も問題ありません。
通信設備面では、インターネットが無料で使えるので、月々の出費を抑えられるのも魅力です(別途工事等が必要な場合あり)。
建物にはエレベーターがついているので、重い荷物があっても安心。共用部には宅配ボックスが設定されているので、不在の時にも荷物を受け取ることができます。
お金・契約の情報
※「-」と表示されているものは、実際は料金が発生するものもございます。詳細はお問い合わせください。
| 家賃 | 12.8万円 | 管理費・共益費 | 1.2万円 |
|---|---|---|---|
| 敷金 | 12.8万円 | 礼金 | 12.8万円 |
| 入居決定でお祝い金最大100,000円 | |||
| 保証金 | - | 償却・敷引 | - |
| 住宅保険料 | - | 更新料 | - |
| 保証会社利用 | 必須 | 保証会社名 | - |
| 保証会社費用 | - | 保証会社備考 | 保証会社利用必 保証料(初回契約時)40%、保証料(年間)10 000円、その他プラン有(新日本信用保証の場合口座振替手数料216円(税込)/月) |
| 契約形態 | - | 契約期間 | - |
| 入居・引渡期間 | 相談 | 現況 | - |
| 契約備考 | ※賃貸保証:保証料(初回契約時)40%、保証料(年間)10000円、その他プラン有(新日本信用保証の場合口座振替手数料216円(税込)/月) ※退去時エアコンクリーニング:14300円 ※除菌消臭:8800円 ※退去時ハウスクリーニング:55000円 ※FASTASSIST24:1100円/月 合計2.31万円(内訳:除菌消臭0.88万円退去時エアコンクリーニング1.43万円) 更新料 新賃料1.00ヶ月分 室内清掃費用 55000円 FASTASSIST24 月額1100円 1K 普通借家2年 損保【2万円2年】 バストイレ別、バルコニー、エアコン、クロゼット、フローリング、TVインターホン、浴室乾燥機、オートロック、室内洗濯置、シューズボックス、温水洗浄便座、エレベーター、2口コンロ、宅配ボックス、防犯カメラ、ウォークインクロゼット、保証人不要、敷金1ヶ月、全居室フローリング、ディンプルキー、エアコン全室、ダブルロックキー、保証金不要、耐火構造、3駅以上利用可、3沿線以上利用可、敷地内ごみ置き場、都市ガス、高速ネット対応、礼金1ヶ月 | ||
部屋の情報
| 間取り | 1K | 専有面積 | 25.17m2 |
|---|---|---|---|
| 所在階 / 向き | 2階 / 西 | バルコニー面積 | - |
| 水道 / ガス | - | ||
| 設備 | バス・トイレ別、2階以上、オートロック、テレビドアホン、宅配ボックス、浴室乾燥機、ウォークインクローゼット、インターネット対応、エアコン、エレベーター、温水洗浄便座、バルコニー、フローリング、2口コンロ、洗濯機:室内 | ||
| 当社物件ID | 30755539 | ||
建物の情報
| 建物名 | ピアース千代田淡路町 | ||
|---|---|---|---|
| 所在地 | 東京都千代田区神田美土代町 | ||
| 交通 | 東京メトロ丸ノ内線 淡路町駅 徒歩1分 東京メトロ千代田線 新御茶ノ水駅 徒歩1分 都営新宿線 小川町駅(東京) 徒歩1分 | ||
| 階数 | 13階建 | 総戸数 | 71戸 |
| 築年月 | 2017年03月 / 築9年 | エレベーター | あり |
| 駐車場 | なし | バイク置き場 | - |
| 駐輪場 | - | 管理人/管理会社 | - |
| 周辺環境 | その他 成城石井 アトレ秋葉原1店(スーパー)まで992m その他 ミニストップ 神田美土代町店(コンビニ)まで84m その他 十字堂薬局(ドラッグストア)まで25m | ||
| 建物種別 | マンション | 建物構造 | RC(鉄筋コンクリート) |
この部屋の取扱い不動産会社
| 会社名 | TR(株)MINATO HOME(SUUMO経由) | ||
|---|---|---|---|
| 所在地 | 東京都港区赤坂2-19-5 内田ビル301 | 交通 | - |
| 営業時間 | 10:00~19:00 | 定休日 | 無し |
| 免許番号 | 東京都知事109457 | 取引態様 | 仲介 |
| 不動産会社管理番号 | 100488010050 | 当社管理番号 | 89 |
| 所属団体 | (公社)東京都宅地建物取引業協会会員 | ||
| 公正取引協議会 | (公社)首都圏不動産公正取引協議会加盟 | ||
| 取扱い物件情報 | 物件詳細へ | ||
※各種情報と現状に差異がある場合は、現状優先となります。問い合わせをすることで、より詳しい条件、情報を確認する事ができます。
提供:TR(株)MINATO HOME(SUUMO経由)
この物件が気になったら掲載期限まであと11日
ピアース千代田淡路町に条件(家賃・エリア)が近い物件一覧
| 写真 | 家賃 管理費等 | 敷金 礼金 | 間取り 専有面積 | 築年数 | 最寄り駅 所在地 | キープ | 詳細 |
|---|---|---|---|---|---|---|---|
マンション フルール アベニール(1LDK/1階) | |||||||
![]() | 19.9万円 1万円 | なし 39.8万円 | 1LDK 46.05m2 | 新築 | JR山手線 高田馬場駅 徒歩6分 東京メトロ副都心線 西早稲田駅 徒歩14分 JR山手線 新大久保駅 徒歩17分 東京都新宿区高田馬場 | 詳細を見る | |
マンション クレイシア新宿中落合(1K/8階) | |||||||
![]() | 9.95万円 1.5万円 | 9.95万円 9.95万円 | 1K 25.61m2 | 築6年 | 西武新宿線 下落合駅(東京) 徒歩9分 西武池袋線 椎名町駅 徒歩9分 都営大江戸線 落合南長崎駅 徒歩11分 東京都新宿区中落合 | 詳細を見る | |
マンション オーキッドレジデンス神楽坂(1K/3階) | |||||||
![]() | 15.4万円 1.2万円 | 15.4万円 なし | 1K 28.55m2 | 築23年 | 東京メトロ有楽町線 飯田橋駅 徒歩8分 東京メトロ東西線 神楽坂駅 徒歩10分 東京メトロ丸ノ内線 後楽園駅 徒歩14分 東京都新宿区新小川町 | 詳細を見る | |
マンション カテリーナ千駄木(1K/5階) | |||||||
![]() | 9.5万円 1万円 | 9.5万円 9.5万円 | 1K 23.84m2 | 築29年 | 東京メトロ千代田線 千駄木駅 徒歩7分 東京メトロ千代田線 根津駅 徒歩7分 東京メトロ南北線 東大前駅 徒歩12分 東京都文京区千駄木 | 詳細を見る | |
マンション スカイコートヴァンテアン早稲田(1K/10階) | |||||||
![]() | 8.8万円 1万円 | なし 8.8万円 | 1K 21.34m2 | 築25年 | 東京メトロ副都心線 西早稲田駅 徒歩3分 西武新宿線 高田馬場駅 徒歩9分 JR山手線 目白駅 徒歩18分 東京都新宿区西早稲田 | 詳細を見る | |
マンション クラリティア文京湯島(1DK/10階) | |||||||
![]() | 16.5万円 1.5万円 | 16.5万円 なし | 1DK 25.06m2 | 築1年 | 東京メトロ千代田線 湯島駅 徒歩5分 東京メトロ銀座線 末広町駅(東京) 徒歩7分 JR中央線 御茶ノ水駅 徒歩9分 東京都文京区湯島 | 詳細を見る | |
マンション シンシア新宿落合(1K/6階) | |||||||
![]() | 8万円 1万円 | 8万円 8万円 | 1K 20.01m2 | 築24年 | 西武新宿線 下落合駅(東京) 徒歩5分 都営大江戸線 中井駅 徒歩7分 東京メトロ東西線 落合駅 徒歩10分 東京都新宿区上落合 | 詳細を見る | |
マンション エステムプラザ芝公園(1DK/2階) | |||||||
![]() | 13.59万円 1.414万円 | 13.59万円 なし | 1DK 25.71m2 | 築11年 | 新交通ゆりかもめ 日の出駅 徒歩8分 JR山手線 浜松町駅 徒歩8分 都営三田線 芝公園駅 徒歩8分 東京都港区芝 | 詳細を見る | |








