賃貸マンション
パークサイド蔵前の賃貸物件情報(2LDK/2階)
| 家賃 | 管理費等 | 敷金 | 礼金 | 間取り | 専有面積 |
|---|---|---|---|---|---|
| 8万円 | 6,000円 | なし | 15万円 | 2LDK | 55m2 |
入居決定でお祝い金最大100,000円
- 保証金
- -
- 償却・敷引
- -
- 築年数
- 築32年
- 所在階
- 2階
- 向き
- -
Point
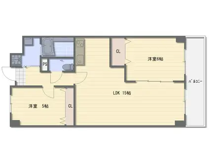
南向きで日当良好、リビングが15帖と広々としておりレイアウトはあなた次第です。。。角部屋住戸の募集です。TVモニターホン付きで安心です。敷地内駐車場空きあり!
提供:(株)TEMCO(SUUMO経由)

詳細情報 パークサイド蔵前
物件紹介
パークサイド蔵前は地下鉄御堂筋線北花田駅から徒歩11分にあるマンションです。
このお部屋は2階以上に位置しているので、通行人や周囲の住人からの視線が気になりにくく、防犯面でも安心。インターホンにはTVモニタもついているため、相手の顔を確認してから来客対応することができます。
人気の南向き・フローリングのお部屋。角部屋でもあるため、周囲の居住者の生活音も気になりにくい場所です。バス・トイレ別の仕様で、のんびりお風呂タイムも楽しめます。
通信設備面では、インターネットが無料で使えるので、月々の出費を抑えられるのも魅力です(別途工事等が必要な場合あり)。
共用部には宅配ボックスが設定されているので、不在の時にも荷物を受け取ることができます。
このお部屋は2階以上に位置しているので、通行人や周囲の住人からの視線が気になりにくく、防犯面でも安心。インターホンにはTVモニタもついているため、相手の顔を確認してから来客対応することができます。
人気の南向き・フローリングのお部屋。角部屋でもあるため、周囲の居住者の生活音も気になりにくい場所です。バス・トイレ別の仕様で、のんびりお風呂タイムも楽しめます。
通信設備面では、インターネットが無料で使えるので、月々の出費を抑えられるのも魅力です(別途工事等が必要な場合あり)。
共用部には宅配ボックスが設定されているので、不在の時にも荷物を受け取ることができます。
お金・契約の情報
※「-」と表示されているものは、実際は料金が発生するものもございます。詳細はお問い合わせください。
| 家賃 | 8万円 | 管理費・共益費 | 6,000円 |
|---|---|---|---|
| 敷金 | なし | 礼金 | 15万円 |
| 入居決定でお祝い金最大100,000円 | |||
| 保証金 | - | 償却・敷引 | - |
| 住宅保険料 | - | 更新料 | - |
| 保証会社利用 | 必須 | 保証会社名 | - |
| 保証会社費用 | - | 保証会社備考 | 保証会社利用必 たくっちサポート保証 初回総賃料30% 1年更新10 000円 引落手数料330円 |
| 契約形態 | - | 契約期間 | - |
| 入居・引渡期間 | 相談 | 現況 | - |
| 契約備考 | 巡回管理/お部屋探しは株式会社TEMCOにお任せ下さいませ。弊社には駐車場スペースもございますのでお車でのご来店も大歓迎です。もちろん現地待ち合わせや他社様が掲載していますお部屋もお取り扱いしておりますのでお気軽にご連絡下さいませ。弊社ではオンライン内見も対応させていただいており、ご自宅からご内見も可能となっております。ご内見からご契約まで非接触でのご対応可能です。保証人様無しもご相談下さいませ。 合計8.83万円(内訳:光触媒抗菌2.4万円くらしーど241.65万円保証会社2.58万円鍵交換代2.2万円) 2LDK 二人入居可/子供可/事務所利用不可 普通借家2年 損保【1.9万円2年】 バストイレ別、バルコニー、ガスコンロ対応、クロゼット、フローリング、シャワー付洗面台、TVインターホン、室内洗濯置、陽当り良好、シューズボックス、南向き、角住戸、温水洗浄便座、脱衣所、洗面所独立、2口コンロ、駐輪場、宅配ボックス、光ファイバー、閑静な住宅地、防犯カメラ、グリル付、全居室洋室、バイク置場、ガスレンジ付、2沿線利用可、LDK15畳以上、駅まで平坦、ネット使用料不要、クロゼット2ヶ所、平坦地、南面2室、南面リビング、2駅利用可、3駅以上利用可、敷地内ごみ置き場、平面駐車場、当社管理物件、LDK12畳以上、都市ガス、洗面所にドア、ワイドバルコニー、南面バルコニー、リノベーション | ||
部屋の情報
| 間取り | 2LDK | 専有面積 | 55m2 |
|---|---|---|---|
| 所在階 / 向き | 2階 / - | バルコニー面積 | - |
| 水道 / ガス | - | ||
| 設備 | バス・トイレ別、2階以上、テレビドアホン、宅配ボックス、インターネット対応、温水洗浄便座、南向き、角部屋、バルコニー、フローリング、洗髪洗面化粧台、2口コンロ、コンロ:ガス、インターネット使用料無料、洗濯機:室内 | ||
| 当社物件ID | 954964 | ||
建物の情報
| 建物名 | パークサイド蔵前 | ||
|---|---|---|---|
| 所在地 | 大阪府堺市北区蔵前町 | ||
| 交通 | 地下鉄御堂筋線 北花田駅 徒歩11分 地下鉄御堂筋線 新金岡駅 徒歩16分 JR阪和線 浅香駅 徒歩29分 | ||
| 階数 | 3階建 | 総戸数 | 15戸 |
| 築年月 | 1994年10月 / 築32年 | エレベーター | - |
| 駐車場 | 空有 11000円/平置駐 | バイク置き場 | あり |
| 駐輪場 | あり | 管理人/管理会社 | - |
| 周辺環境 | その他 中央幼稚園(幼稚園・保育園)まで640m その他 和食さと 新金岡店(飲食店)まで169m その他 びっくりドンキー 北花田店(飲食店)まで459m その他 スーパーサンコー新金岡店(スーパー)まで733m その他 ローソン 堺新金岡店(コンビニ)まで221m その他 セブンイレブン 堺蔵前町店(コンビニ)まで330m | ||
| 建物種別 | マンション | 建物構造 | RC(鉄筋コンクリート) |
この部屋の取扱い不動産会社
| 会社名 | (株)TEMCO(SUUMO経由) | ||
|---|---|---|---|
| 所在地 | 大阪府大阪市東住吉区湯里2-18-3 | 交通 | - |
| 営業時間 | 9:00~17:00 | 定休日 | 水曜日 |
| 免許番号 | 大阪府知事60293 | 取引態様 | 仲介 |
| 不動産会社管理番号 | 100478545398 | 当社管理番号 | 89 |
| 所属団体 | (一社)大阪府宅地建物取引業協会会員 | ||
| 公正取引協議会 | (公社)近畿地区不動産公正取引協議会加盟 | ||
| 取扱い物件情報 | 物件詳細へ | ||
※各種情報と現状に差異がある場合は、現状優先となります。問い合わせをすることで、より詳しい条件、情報を確認する事ができます。
提供:(株)TEMCO(SUUMO経由)
この物件が気になったら掲載期限まであと10日
パークサイド蔵前に条件(家賃・エリア)が近い物件一覧
| 写真 | 家賃 管理費等 | 敷金 礼金 | 間取り 専有面積 | 築年数 | 最寄り駅 所在地 | キープ | 詳細 |
|---|---|---|---|---|---|---|---|
アパート レオパレスコンフォート小松(1K/1階) | |||||||
| 6.4万円 7,500円 | なし 6.4万円 | 1K 19.87m2 | 築22年 | 大阪市今里筋線 瑞光四丁目駅 徒歩7分 阪急電鉄京都線 上新庄駅 徒歩10分 阪急電鉄京都線 相川駅 徒歩11分 大阪府大阪市東淀川区小松3丁目16-20 | 詳細を見る | ||
マンション エヌエムスワサントドゥーズノース(1K/3階) | |||||||
![]() | 6万円 6,000円 | なし なし | 1K 30.43m2 | 築6年 | 近鉄南大阪線 高見ノ里駅 徒歩3分 近鉄南大阪線 布忍駅 徒歩7分 近鉄南大阪線 河内松原駅 徒歩15分 大阪府松原市高見の里2丁目 | 詳細を見る | |
アパート 阪和線 富木駅 徒歩5分 築1年(1LDK/2階) | |||||||
![]() | 6.48万円 4,000円 | なし なし | 1LDK 30.24m2 | 築1年 | 阪和線 富木駅 徒歩5分 阪和線 鳳駅 徒歩23分 南海電鉄南海本線 羽衣駅 徒歩24分 大阪府高石市西取石1丁目 | 詳細を見る | |
マンション PHOENIX新大阪(1K/3階) | |||||||
| 8.2万円 1万円 | なし なし | 1K 24.94m2 | 築6年 | 東海道本線 東淀川駅 徒歩6分 大阪市御堂筋線 新大阪駅 徒歩8分 大阪市御堂筋線 東三国駅 徒歩10分 大阪府大阪市淀川区宮原1丁目17-3 | 詳細を見る | ||
マンション ロイヤル西梅田(1DK/6階) | |||||||
| 5.4万円 6,000円 | なし なし | 1DK 25m2 | 築35年 | 大阪環状線 福島駅(JR西日本) 徒歩12分 JR東西線 新福島駅 徒歩15分 阪神電鉄本線 野田駅(阪神) 徒歩16分 大阪府大阪市北区大淀中5丁目1-12 | 詳細を見る | ||
マンション アーバネックス堂島(1K/8階) | |||||||
| 10万円 1万円 | なし 10万円 | 1K 25.84m2 | 築11年 | 大阪市四つ橋線 西梅田駅 徒歩5分 JR東西線 北新地駅 徒歩5分 東海道本線 大阪駅 徒歩9分 大阪府大阪市北区堂島2丁目3-21 | 詳細を見る | ||
マンション セレニテ東梅田アリエ(2K/2階) | |||||||
| 9.9万円 7,100円 | なし なし | 2K 25.81m2 | 新築 | 大阪市谷町線 東梅田駅 徒歩8分 大阪市堺筋線 南森町駅 徒歩11分 JR東西線 北新地駅 徒歩12分 大阪府大阪市北区兎我野町6 | 詳細を見る | ||
マンション メインステージ西天満TS SQUARE(1K/5階) | |||||||
| 6.75万円 8,000円 | なし 14.6万円 | 1K 25.06m2 | 築12年 | 京阪電鉄中之島線 なにわ橋駅 徒歩3分 大阪市堺筋線 北浜駅(大阪) 徒歩6分 大阪市谷町線 南森町駅 徒歩6分 大阪府大阪市北区西天満3丁目2-10 | 詳細を見る | ||
堺市北区の町名から探す
堺市北区の部屋を間取りから探す
堺市北区の駅から探す
堺市北区と隣接している市区町村から探す
- 堺市北区(1,591)
- 大阪市都島区(1,695)
- 大阪市福島区(2,002)
- 大阪市此花区(432)
- 大阪市西区(3,892)
- 大阪市港区(1,275)
- 大阪市大正区(900)
- 大阪市天王寺区(1,300)
- 大阪市浪速区(3,205)
- 大阪市西淀川区(1,802)
- 大阪市東淀川区(4,853)
- 大阪市東成区(2,165)
- 大阪市生野区(1,682)
- 大阪市旭区(1,583)
- 大阪市城東区(1,872)
- 大阪市阿倍野区(1,358)
- 大阪市住吉区(1,870)
- 大阪市東住吉区(2,020)
- 大阪市西成区(785)
- 大阪市淀川区(4,932)
- 大阪市鶴見区(1,053)
- 大阪市住之江区(924)
- 大阪市平野区(1,974)
- 大阪市北区(5,139)
- 大阪市中央区(4,367)
- 富田林市(1,018)
- 河内長野市(591)
- 松原市(946)
- 和泉市(1,055)
- 羽曳野市(1,082)
- 高石市(888)
- 大阪狭山市(775)



