賃貸マンション
朝日関口マンションの賃貸物件情報(2LDK/10階)
| 家賃 | 管理費等 | 敷金 | 礼金 | 間取り | 専有面積 |
|---|---|---|---|---|---|
| 26万円 | 2万円 | 26万円 | 26万円 | 2LDK | 60.06m2 |
入居決定でお祝い金最大100,000円
- 保証金
- -
- 償却・敷引
- -
- 築年数
- 築44年
- 所在階
- 10階
- 向き
- 南東
Point
室内見学承ります・お客様のご都合に合わせてオンラインまたはお近くの店舗でご提案可・初期費用分割払い可・クレジットカード利用可・引越業者割引・初期費用のお見積や入居日のご相談もお気軽にお問合せください
提供:(株)リライフ早稲田店(SUUMO経由)

詳細情報 朝日関口マンション
物件紹介
朝日関口マンションは東京メトロ有楽町線江戸川橋駅から徒歩3分にあり、駅近で通勤通学に便利なマンションです。
このお部屋は2階以上に位置しているので、通行人や周囲の住人からの視線が気になりにくく、防犯面でも安心です。
人気の南向きのお部屋。また、フローリングなのでお掃除もラクラク。キッチンはシステムキッチン仕様になっていますので、お料理好きの方にもぴったり。また、バス・トイレは別で、のんびりお風呂タイムも楽しめるでしょう。
建物にはエレベーターがついているので、重い荷物があっても安心。
このお部屋は2階以上に位置しているので、通行人や周囲の住人からの視線が気になりにくく、防犯面でも安心です。
人気の南向きのお部屋。また、フローリングなのでお掃除もラクラク。キッチンはシステムキッチン仕様になっていますので、お料理好きの方にもぴったり。また、バス・トイレは別で、のんびりお風呂タイムも楽しめるでしょう。
建物にはエレベーターがついているので、重い荷物があっても安心。
お金・契約の情報
※「-」と表示されているものは、実際は料金が発生するものもございます。詳細はお問い合わせください。
| 家賃 | 26万円 | 管理費・共益費 | 2万円 |
|---|---|---|---|
| 敷金 | 26万円 | 礼金 | 26万円 |
| 入居決定でお祝い金最大100,000円 | |||
| 保証金 | - | 償却・敷引 | - |
| 住宅保険料 | - | 更新料 | - |
| 保証会社利用 | 必須 | 保証会社名 | - |
| 保証会社費用 | - | 保証会社備考 | 保証会社利用必 初回:月額総家賃の50%~ |
| 契約形態 | - | 契約期間 | - |
| 入居・引渡期間 | 相談 | 現況 | - |
| 契約備考 | 当物件は「住まいのリライフ」で取り扱っております。リライフは首都圏24店舗のネットワークで豊富な物件情報をお客様へご提供します。当物件に類似した未公開物件なども合わせてご提案可能です。お気軽にお問合せください。違約金有:1年未満2ヶ月、2年未満1ヶ月 合計1.65万円(内訳:24時間サポート(初回のみ)1.65万円) 2LDK 二人入居可 損保【要】 バストイレ別、バルコニー、エアコン、ガスコンロ対応、クロゼット、フローリング、室内洗濯置、シューズボックス、システムキッチン、脱衣所、エレベーター、洗面所独立、2面採光、最上階、3口以上コンロ、分譲賃貸、保証人不要、二人入居相談、全居室フローリング、2面バルコニー、メゾネット、両面バルコニー、始発駅、3駅以上利用可、3沿線以上利用可、上階無し、東南向き、都市ガス、南面バルコニー、玄関収納、保証会社利用可、初期費用カード決済可 | ||
部屋の情報
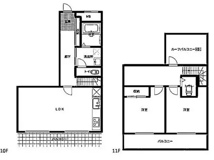
| 間取り | 2LDK | 専有面積 | 60.06m2 |
|---|---|---|---|
| 所在階 / 向き | 10階 / 南東 | バルコニー面積 | - |
| 水道 / ガス | - | ||
| 設備 | バス・トイレ別、2階以上、システムキッチン、エアコン、エレベーター、南向き、バルコニー、フローリング、洗髪洗面化粧台、2口コンロ、コンロ:ガス、洗濯機:室内 | ||
| 当社物件ID | 158804586 | ||
建物の情報
| 建物名 | 朝日関口マンション | ||
|---|---|---|---|
| 所在地 | 東京都文京区関口 | ||
| 交通 | 東京メトロ有楽町線 江戸川橋駅 徒歩3分 東京メトロ東西線 神楽坂駅 徒歩12分 都電荒川線 早稲田駅(都電) 徒歩12分 | ||
| 階数 | 地下1地上11階建 | 総戸数 | 48戸 |
| 築年月 | 1982年11月 / 築44年 | エレベーター | あり |
| 駐車場 | なし | バイク置き場 | - |
| 駐輪場 | - | 管理人/管理会社 | - |
| 周辺環境 | その他 まいばすけっと 早稲田鶴巻町店(スーパー)まで303m その他 まいばすけっと 山吹町店(スーパー)まで401m その他 ファミリーマート江戸川橋駅西店(コンビニ)まで83m その他 セブンイレブン江戸川橋店(コンビニ)まで306m その他 ぱぱす薬局 江戸川橋店(ドラッグストア)まで528m その他 ポニークリーニング 早大通り店(その他)まで433m | ||
| 建物種別 | マンション | 建物構造 | SRC(鉄骨鉄筋コンクリート) |
この部屋の取扱い不動産会社
| 会社名 | (株)リライフ渋谷店(SUUMO経由) | ||
|---|---|---|---|
| 所在地 | 東京都渋谷区渋谷1-24-14 渋谷トライアングルビル6階 | 交通 | - |
| 営業時間 | 10:00~20:00 | 定休日 | 無し |
| 免許番号 | 国土交通大臣10792 | 取引態様 | 仲介 |
| 不動産会社管理番号 | 100445583762 | 当社管理番号 | 89 |
| 所属団体 | (公社)東京都宅地建物取引業協会会員 | ||
| 公正取引協議会 | (公社)首都圏不動産公正取引協議会加盟 | ||
| 取扱い物件情報 | 物件詳細へ | ||
※各種情報と現状に差異がある場合は、現状優先となります。問い合わせをすることで、より詳しい条件、情報を確認する事ができます。
提供:(株)リライフ渋谷店(SUUMO経由)
この物件が気になったら掲載期限まであと11日
朝日関口マンションに条件(家賃・エリア)が近い物件一覧
| 写真 | 家賃 管理費等 | 敷金 礼金 | 間取り 専有面積 | 築年数 | 最寄り駅 所在地 | キープ | 詳細 |
|---|---|---|---|---|---|---|---|
マンション ステージファースト秋葉原(1LDK/14階) | |||||||
![]() | 20万円 1万円 | 20万円 20万円 | 1LDK 42.21m2 | 築5年 | JR総武線 浅草橋駅 徒歩5分 東京メトロ日比谷線 秋葉原駅 徒歩7分 都営新宿線 岩本町駅 徒歩10分 東京都台東区浅草橋 | 詳細を見る | |
マンション LEGALAND早稲田鶴巻町(1LDK/1階) | |||||||
![]() | 18.5万円 2万円 | なし なし | 1LDK 52.94m2 | 築5年 | 東京メトロ東西線 早稲田駅(メトロ) 徒歩7分 東京メトロ有楽町線 江戸川橋駅 徒歩8分 都営大江戸線 牛込柳町駅 徒歩16分 東京都新宿区早稲田鶴巻町 | 詳細を見る | |
マンション グランハイツ高田馬場(1LDK/9階) | |||||||
![]() | 18.6万円 1.5万円 | 18.6万円 18.6万円 | 1LDK 47.4m2 | 築16年 | JR山手線 高田馬場駅 徒歩3分 東京メトロ東西線 高田馬場駅 徒歩3分 西武新宿線 下落合駅(東京) 徒歩12分 東京都新宿区高田馬場 | 詳細を見る | |
マンション EDIT西池袋(2DK/4階) | |||||||
![]() | 24.7万円 1.5万円 | なし なし | 2DK 48.88m2 | 築1年 | 山手線 池袋駅 徒歩10分 東京地下鉄有楽町線 要町駅 徒歩13分 東京都豊島区西池袋3丁目 | 詳細を見る | |
マンション SYFORME NEXT IKEBUKURO ウエスト(1LDK/3階) | |||||||
![]() | 29.35万円 1.5万円 | なし なし | 1LDK 52.29m2 | 築2年 | 東京メトロ有楽町線 要町駅 徒歩3分 東京メトロ有楽町線 千川駅 徒歩14分 JR山手線 池袋駅 徒歩14分 東京都豊島区要町 | 詳細を見る | |
マンション ブランシエスタ浅草蔵前(2LDK/3階) | |||||||
![]() | 25.9万円 2.5万円 | 25.9万円 なし | 2LDK 50.96m2 | 築1年 | 東京地下鉄銀座線 浅草駅(東武・都営・メトロ) 徒歩3分 東京都台東区駒形1丁目 | 詳細を見る | |
マンション フォーサイト神田多町(1LDK/2階) | |||||||
![]() | 20.9万円 2万円 | 20.9万円 なし | 1LDK 40.45m2 | 築3年 | 東京メトロ丸ノ内線 淡路町駅 徒歩2分 都営新宿線 小川町駅(東京) 徒歩2分 JR山手線 神田駅(東京) 徒歩7分 東京都千代田区神田多町 | 詳細を見る | |
マンション ルフォンプログレ上野御徒町(1LDK/5階) | |||||||
![]() | 18.7万円 2万円 | 18.7万円 なし | 1LDK 34.22m2 | 築1年 | 東京都大江戸線 新御徒町駅 徒歩5分 東京都台東区台東3丁目 | 詳細を見る | |






/105x80-f1-q70-wp1)

