賃貸マンション
セジョリ蒲田の賃貸物件情報(1K/5階)
| 家賃 | 管理費等 | 敷金 | 礼金 | 間取り | 専有面積 |
|---|---|---|---|---|---|
| 8.4万円 | 1.2万円 | なし | 8.4万円 | 1K | 20.81m2 |
入居決定でお祝い金最大100,000円
Point
地域に根付いて45年以上、賃貸物件を多数取り揃えております!お客様に寄り添い理想の賃貸物件が見つかるよう、全力でサポートさせて頂きます♪他社物件もご紹介可能です!オンライン内見・相談も可能です★
提供:リロの不動産(株)日商ベックス大井町店(SUUMO経由)

詳細情報 セジョリ蒲田
物件紹介
セジョリ蒲田は東急池上線蓮沼駅から徒歩5分にあり、駅近で通勤通学に便利なマンションです。
このお部屋は2階以上に位置しているので、通行人や周囲の住人からの視線が気になりにくく、防犯面でも安心。建物のエントランスはオートロックがついており、インターホンにはTVモニタもついているため、相手の顔を確認してから来客対応することができます。
おしゃれなデザイナーズ物件!人気の角部屋で周囲の居住者の生活音も気になりにくく、また、フローリングのお部屋なのでお掃除もラクラク。キッチンはシステムキッチン仕様になっていますので、お料理好きの方にもぴったり。バス・トイレは別なので、のんびりお風呂タイムも楽しめるでしょう。また、雨の日でも浴室乾燥機を使えば、お洗濯も問題ありません。
通信設備面では、インターネット接続が可能です。また、BSアンテナ・CSアンテナもありますので、おうち時間も充実するでしょう(別途工事、契約料が必要な場合あり)。
建物にはエレベーターがついているので、重い荷物があっても安心。共用部には宅配ボックスが設定されているので、不在の時にも荷物を受け取ることができます。また、ペット飼育の相談ができますので、あなたの大切な家族の一員も快適に暮らせるか、ぜひ確認してみてください。
このお部屋は2階以上に位置しているので、通行人や周囲の住人からの視線が気になりにくく、防犯面でも安心。建物のエントランスはオートロックがついており、インターホンにはTVモニタもついているため、相手の顔を確認してから来客対応することができます。
おしゃれなデザイナーズ物件!人気の角部屋で周囲の居住者の生活音も気になりにくく、また、フローリングのお部屋なのでお掃除もラクラク。キッチンはシステムキッチン仕様になっていますので、お料理好きの方にもぴったり。バス・トイレは別なので、のんびりお風呂タイムも楽しめるでしょう。また、雨の日でも浴室乾燥機を使えば、お洗濯も問題ありません。
通信設備面では、インターネット接続が可能です。また、BSアンテナ・CSアンテナもありますので、おうち時間も充実するでしょう(別途工事、契約料が必要な場合あり)。
建物にはエレベーターがついているので、重い荷物があっても安心。共用部には宅配ボックスが設定されているので、不在の時にも荷物を受け取ることができます。また、ペット飼育の相談ができますので、あなたの大切な家族の一員も快適に暮らせるか、ぜひ確認してみてください。
お金・契約の情報
※「-」と表示されているものは、実際は料金が発生するものもございます。詳細はお問い合わせください。
| 家賃 | 8.4万円 | 管理費・共益費 | 1.2万円 |
|---|---|---|---|
| 敷金 | なし | 礼金 | 8.4万円 |
| 入居決定でお祝い金最大100,000円 | |||
| 保証金 | - | 償却・敷引 | - |
| 住宅保険料 | - | 更新料 | - |
| 保証会社利用 | 必須 | 保証会社名 | - |
| 保証会社費用 | - | 保証会社備考 | 保証会社利用必 家賃80% |
| 契約形態 | - | 契約期間 | - |
| 入居・引渡期間 | - | 現況 | - |
| 入居可能条件 | ペット相談 | ||
| 契約備考 | 東急多摩川線矢口渡駅徒歩17分/初期費用クレジットカード決済可能 合計2.2万円(内訳:鍵交換代 22000円税込) 更新料 1.5ヶ月/更新事務手数料 11000円 1K ペット相談 普通借家2年 損保【要】 バストイレ別、バルコニー、エアコン、ガスコンロ対応、クロゼット、フローリング、TVインターホン、浴室乾燥機、オートロック、室内洗濯置、シューズボックス、システムキッチン、角住戸、温水洗浄便座、エレベーター、駐輪場、宅配ボックス、外壁タイル張り、2面採光、BS・CS、敷金不要、防犯カメラ、ペット相談、保証人不要、バイク置場、全居室フローリング、デザイナーズ、CS、始発駅、3駅以上利用可、3沿線以上利用可、駅徒歩5分以内、24時間ゴミ出し可、敷地内ごみ置き場、都市ガス、BS、礼金1ヶ月、IT重説対応物件、初期費用カード決済可 入居日:'26年3月下旬 | ||
部屋の情報
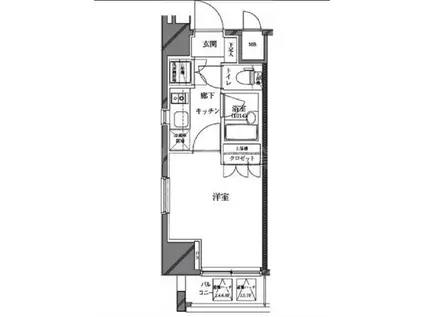
| 間取り | 1K | 専有面積 | 20.81m2 |
|---|---|---|---|
| 所在階 / 向き | 5階 / 北 | バルコニー面積 | - |
| 水道 / ガス | - | ||
| 設備 | バス・トイレ別、2階以上、オートロック、テレビドアホン、宅配ボックス、浴室乾燥機、システムキッチン、エアコン、エレベーター、温水洗浄便座、角部屋、バルコニー、フローリング、コンロ:ガス、デザイナーズ、CSアンテナ、BSアンテナ、洗濯機:室内 | ||
| 当社物件ID | 6557334 | ||
建物の情報
| 建物名 | セジョリ蒲田 | ||
|---|---|---|---|
| 所在地 | 東京都大田区西蒲田 | ||
| 交通 | 東急池上線 蓮沼駅 徒歩5分 JR京浜東北線 蒲田駅 徒歩7分 京急本線 京急蒲田駅 徒歩18分 | ||
| 階数 | 9階建 | 総戸数 | 32戸 |
| 築年月 | 2012年08月 / 築14年 | エレベーター | あり |
| 駐車場 | なし | バイク置き場 | あり |
| 駐輪場 | あり | 管理人/管理会社 | - |
| 周辺環境 | その他 ライフ 西蒲田店(スーパー)まで324m その他 マルエツ 蒲田店(スーパー)まで1020m その他 マルエツ 梅屋敷店(スーパー)まで1150m その他 まいばすけっと池上6丁目店(スーパー)まで1113m その他 まいばすけっと蒲田4丁目(スーパー)まで1036m その他 セブンイレブン大田区西蒲田4丁目店(コンビニ)まで1093m | ||
| 建物種別 | マンション | 建物構造 | RC(鉄筋コンクリート) |
この部屋の取扱い不動産会社
| 会社名 | リロの不動産(株)日商ベックス大井町店(SUUMO経由) | ||
|---|---|---|---|
| 所在地 | 東京都品川区東大井5-7-15 サンローランハイツ1階 | 交通 | - |
| 営業時間 | 9:00~18:00 | 定休日 | なし |
| 免許番号 | 国土交通大臣3273 | 取引態様 | 仲介 |
| 不動産会社管理番号 | 100488806246 | 当社管理番号 | 89 |
| 取扱い物件情報 | 物件詳細へ | ||
※各種情報と現状に差異がある場合は、現状優先となります。問い合わせをすることで、より詳しい条件、情報を確認する事ができます。
提供:リロの不動産(株)日商ベックス大井町店(SUUMO経由)
この物件が気になったら掲載期限まであと11日
セジョリ蒲田に条件(家賃・エリア)が近い物件一覧
| 写真 | 家賃 管理費等 | 敷金 礼金 | 間取り 専有面積 | 築年数 | 最寄り駅 所在地 | キープ | 詳細 |
|---|---|---|---|---|---|---|---|
アパート ビレッジひの木B棟(1LDK/2階) | |||||||
![]() | 13.6万円 2,000円 | 13.6万円 なし | 1LDK 39.66m2 | 築31年 | 京急本線 梅屋敷駅(東京) 徒歩7分 京急本線 京急蒲田駅 徒歩9分 JR京浜東北線 蒲田駅 徒歩14分 東京都大田区蒲田 | 詳細を見る | |
マンション ピュア・ダイジン(1LDK/2階) | |||||||
![]() | 11.3万円 5,000円 | 11.3万円 22.6万円 | 1LDK 42.49m2 | 築14年 | 京急本線 梅屋敷駅(東京) 徒歩14分 京急本線 大森町駅 徒歩16分 京急本線 平和島駅 徒歩22分 東京都大田区大森東 | 詳細を見る | |
マンション ユーコート住吉(2DK/1階) | |||||||
![]() | 13.5万円 5,000円 | 13.5万円 なし | 2DK 38.84m2 | 築39年 | 東京地下鉄半蔵門線 住吉駅(東京) 徒歩12分 東京都新宿線 西大島駅 徒歩19分 東京都新宿線 菊川駅(東京) 徒歩21分 東京都江東区扇橋3丁目 | 詳細を見る | |
マンション ブリーゼハイム(1K/3階) | |||||||
![]() | 8.7万円 3,100円 | 8.7万円 13.05万円 | 1K 22.71m2 | 築24年 | 東急大井町線 荏原町駅 徒歩3分 東京都浅草線 中延駅 徒歩6分 東京都品川区中延4丁目 | 詳細を見る | |
マンション SEED JUST B-BASE Ⅱ(1LDK/4階) | |||||||
![]() | 9.4万円 1.5万円 | 9.4万円 9.4万円 | 1LDK 24.55m2 | 築1年 | 東京モノレール羽田 昭和島駅 徒歩11分 京浜急行電鉄本線 梅屋敷駅(東京) 徒歩19分 東京都大田区大森南4丁目 | 詳細を見る | |
マンション マレオドゥール(2K/5階) | |||||||
![]() | 7万円 2,000円 | なし なし | 2K 29.16m2 | 築40年 | 京葉線 潮見駅 徒歩8分 東京地下鉄東西線 木場駅 徒歩24分 東京地下鉄有楽町線 辰巳駅 徒歩24分 東京都江東区潮見1丁目 | 詳細を見る | |






