賃貸マンション
スカイコート上杉の賃貸物件情報(3LDK/4階)
| 家賃 | 管理費等 | 敷金 | 礼金 | 間取り | 専有面積 |
|---|---|---|---|---|---|
| 9万円 | 5,000円 | 18万円 | なし | 3LDK | 73.6m2 |
入居決定でお祝い金最大100,000円
- 保証金
- -
- 償却・敷引
- -
- 築年数
- 築36年
- 所在階
- 4階
- 向き
- 南
Point
まずはお問い合わせ!
不動産会社は街のプロ、あなたに合った物件がきっと見つかります。
提供:(株)ハウジングエステート仙台駅前店(SUUMO経由)

詳細情報 スカイコート上杉
物件紹介
スカイコート上杉は仙台市地下鉄南北線北仙台駅から徒歩6分にあり、駅近で通勤通学に便利なマンションです。
このお部屋は2階以上に位置しているので、通行人や周囲の住人からの視線が気になりにくく、防犯面でも安心。建物のエントランスはオートロックがついており、インターホンにはTVモニタもついているため、相手の顔を確認してから来客対応することができます。
人気の南向きのお部屋。また、フローリングなのでお掃除もラクラク。キッチンはシステムキッチン仕様になっていますので、お料理好きの方にもぴったり。また、バス・トイレは別で、のんびりお風呂タイムも楽しめるでしょう。
建物にはエレベーターがついているので、重い荷物があっても安心。共用部には宅配ボックスが設定されているので、不在の時にも荷物を受け取ることができます。
このお部屋は2階以上に位置しているので、通行人や周囲の住人からの視線が気になりにくく、防犯面でも安心。建物のエントランスはオートロックがついており、インターホンにはTVモニタもついているため、相手の顔を確認してから来客対応することができます。
人気の南向きのお部屋。また、フローリングなのでお掃除もラクラク。キッチンはシステムキッチン仕様になっていますので、お料理好きの方にもぴったり。また、バス・トイレは別で、のんびりお風呂タイムも楽しめるでしょう。
建物にはエレベーターがついているので、重い荷物があっても安心。共用部には宅配ボックスが設定されているので、不在の時にも荷物を受け取ることができます。
お金・契約の情報
※「-」と表示されているものは、実際は料金が発生するものもございます。詳細はお問い合わせください。
| 家賃 | 9万円 | 管理費・共益費 | 5,000円 |
|---|---|---|---|
| 敷金 | 18万円 | 礼金 | なし |
| 入居決定でお祝い金最大100,000円 | |||
| 保証金 | - | 償却・敷引 | - |
| 住宅保険料 | - | 更新料 | - |
| 保証会社利用 | 必須 | 保証会社名 | - |
| 保証会社費用 | - | 保証会社備考 | 保証会社利用必 契約内容により変動あり。 |
| 契約形態 | - | 契約期間 | - |
| 入居・引渡期間 | 即時 | 現況 | - |
| 契約備考 | SEIYU北仙台店まで504m/ファミリーマート堤町一丁目店まで310m/※写真・動画は別号室のモデルルームとなります。現況優先。 3LDK 損保【要】 バストイレ別、バルコニー、エアコン、TVインターホン、オートロック、室内洗濯置、シューズボックス、システムキッチン、南向き、温水洗浄便座、エレベーター、洗面所独立、2口コンロ、駐輪場、宅配ボックス、即入居可、礼金不要、対面式キッチン、IHクッキングヒーター、保証人不要、2沿線利用可、南面2室、南面リビング、一部フローリング、3駅以上利用可、駅徒歩10分以内、バス停徒歩3分以内、敷地内ごみ置き場、平面駐車場、都市ガス、南面バルコニー、IT重説対応物件、初期費用カード決済可 | ||
部屋の情報
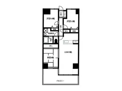
| 間取り | 3LDK | 専有面積 | 73.6m2 |
|---|---|---|---|
| 所在階 / 向き | 4階 / 南 | バルコニー面積 | - |
| 水道 / ガス | - | ||
| 設備 | バス・トイレ別、2階以上、オートロック、テレビドアホン、宅配ボックス、システムキッチン、エアコン、エレベーター、温水洗浄便座、南向き、バルコニー、フローリング、洗髪洗面化粧台、2口コンロ、コンロ:IH、洗濯機:室内 | ||
| 当社物件ID | 160099118 | ||
建物の情報
| 建物名 | スカイコート上杉 | ||
|---|---|---|---|
| 所在地 | 宮城県仙台市青葉区昭和町 | ||
| 交通 | 仙台市地下鉄南北線 北仙台駅 徒歩6分 仙台市地下鉄南北線 北四番丁駅 徒歩16分 仙台市地下鉄南北線 台原駅 徒歩19分 | ||
| 階数 | 14階建 | 総戸数 | - |
| 築年月 | 1990年01月 / 築36年 | エレベーター | あり |
| 駐車場 | 空有 22000円 | バイク置き場 | - |
| 駐輪場 | あり | 管理人/管理会社 | - |
| 周辺環境 | その他 ファミリーマート堤町一丁目店(コンビニ)まで310m その他 SEIYU北仙台店(スーパー)まで504m その他 ダルマ薬局台原ドンキホーテ店(ドラッグストア)まで482m その他 TSUTAYA北仙台店(レンタルビデオ)まで580m その他 ロイヤルホスト北仙台店(飲食店)まで4m その他 独立行政法人労働者健康福祉機構東北労災病院(病院)まで901m | ||
| 建物種別 | マンション | 建物構造 | SRC(鉄骨鉄筋コンクリート) |
この部屋の取扱い不動産会社
| 会社名 | (株)ハウジングエステート仙台駅前店(SUUMO経由) | ||
|---|---|---|---|
| 所在地 | 宮城県仙台市青葉区中央2-1-30 須田ビルディング3階 | 交通 | - |
| 営業時間 | 9時~18時(4月1日~12月は10時~18時) | 定休日 | 年中無休 |
| 免許番号 | 宮城県知事5071 | 取引態様 | 仲介 |
| 不動産会社管理番号 | 100479316986 | 当社管理番号 | 89 |
| 所属団体 | (公社)全日本不動産協会宮城県本部会員 | ||
| 公正取引協議会 | 東北地区不動産公正取引協議会加盟 | ||
| 取扱い物件情報 | 物件詳細へ | ||
※各種情報と現状に差異がある場合は、現状優先となります。問い合わせをすることで、より詳しい条件、情報を確認する事ができます。
提供:(株)ハウジングエステート仙台駅前店(SUUMO経由)
この物件が気になったら掲載期限まであと9日
スカイコート上杉に条件(家賃・エリア)が近い物件一覧
| 写真 | 家賃 管理費等 | 敷金 礼金 | 間取り 専有面積 | 築年数 | 最寄り駅 所在地 | キープ | 詳細 |
|---|---|---|---|---|---|---|---|
マンション ラピス雨宮(1K/6階) | |||||||
![]() | 6万円 4,000円 | なし 6万円 | 1K 24.95m2 | 築22年 | 仙台市地下鉄南北線 北仙台駅 徒歩8分 仙台市地下鉄南北線 北四番丁駅 徒歩10分 仙台市地下鉄南北線 勾当台公園駅 徒歩19分 宮城県仙台市青葉区堤通雨宮町 | 詳細を見る | |
アパート ドミール瞑想の松(1DK/2階) | |||||||
![]() | 6.1万円 3,000円 | 6.1万円 6.1万円 | 1DK 26.52m2 | 築9年 | 仙台市地下鉄南北線 台原駅 徒歩14分 JR仙山線 東照宮駅 徒歩14分 宮城県仙台市青葉区台原 | 詳細を見る | |
アパート トゥール モンド(1K/2階) | |||||||
![]() | 6.3万円 3,000円 | なし 6.3万円 | 1K 36.12m2 | 築5年 | 仙台市地下鉄東西線 国際センター駅(宮城) 徒歩8分 仙台市地下鉄東西線 川内駅(宮城) 徒歩11分 仙台市地下鉄東西線 大町西公園駅 徒歩13分 宮城県仙台市青葉区川内大工町 | 詳細を見る | |
マンション 晩翠ウイングビル(1K/8階) | |||||||
![]() | 5.9万円 5,000円 | なし なし | 1K 23.98m2 | 築28年 | 仙台市地下鉄南北線 北四番丁駅 徒歩8分 仙台市地下鉄東西線 大町西公園駅 徒歩19分 JR東北本線 仙台駅 徒歩28分 宮城県仙台市青葉区木町通 | 詳細を見る | |
マンション ピースフル石川(2LDK/2階) | |||||||
![]() | 7万円 5,000円 | 7万円 7万円 | 2LDK 48.6m2 | 築49年 | JR東北本線 仙台駅 徒歩10分 JR常磐線 仙台駅 徒歩10分 JR仙山線 仙台駅 徒歩10分 宮城県仙台市青葉区宮町 | 詳細を見る | |
アパート プランド大手町II(1LDK/2階) | |||||||
![]() | 6.8万円 2,000円 | なし なし | 1LDK 33.61m2 | 築54年 | 仙台市地下鉄東西線 大町西公園駅 徒歩4分 仙台市地下鉄東西線 国際センター駅(宮城) 徒歩9分 仙台市地下鉄東西線 青葉通一番町駅 徒歩14分 宮城県仙台市青葉区大手町 | 詳細を見る | |
アパート PLUS大町西公園(1K/2階) | |||||||
![]() | 5.5万円 3,000円 | 5.5万円 5.5万円 | 1K 27.9m2 | 築9年 | 仙台市地下鉄東西線 大町西公園駅 徒歩8分 仙台市地下鉄東西線 国際センター駅(宮城) 徒歩15分 仙台市地下鉄東西線 青葉通一番町駅 徒歩16分 宮城県仙台市青葉区花壇 | 詳細を見る | |
アパート プルミエール(2LDK/2階) | |||||||
![]() | 6.7万円 3,500円 | なし 6.7万円 | 2LDK 57.22m2 | 築11年 | JR東北本線 館腰駅 徒歩20分 宮城県名取市飯野坂 | 詳細を見る | |









