賃貸アパート
レオパレスアルカンシエル弐番館の賃貸物件情報(1K/2階)
| 家賃 | 管理費等 | 敷金 | 礼金 | 間取り | 専有面積 |
|---|---|---|---|---|---|
| 4.3万円 | 6,000円 | なし | なし | 1K | 22.35m2 |
入居決定でお祝い金最大100,000円
Point
まずはお問い合わせ!
不動産会社は街のプロ、あなたに合った物件がきっと見つかります。
提供:ハウスコム関東株式会社 宇都宮店

詳細情報 レオパレスアルカンシエル弐番館
物件紹介
レオパレスアルカンシエル弐番館は東北本線氏家駅から徒歩14分にあるアパートです。
このお部屋は2階以上に位置しているので、通行人や周囲の住人からの視線が気になりにくく、防犯面でも安心。インターホンにはTVモニタもついているため、相手の顔を確認してから来客対応することができます。
バス・トイレ別の仕様で、のんびりお風呂タイムも楽しめます。
通信設備面では、インターネット接続が可能です(別途工事、契約料が必要な場合あり)。
共用部には宅配ボックスが設定されているので、不在の時にも荷物を受け取ることができます。
コンビニまで徒歩6分の場所にあり、日用品や食料品のお買い物にも便利です。
このお部屋は2階以上に位置しているので、通行人や周囲の住人からの視線が気になりにくく、防犯面でも安心。インターホンにはTVモニタもついているため、相手の顔を確認してから来客対応することができます。
バス・トイレ別の仕様で、のんびりお風呂タイムも楽しめます。
通信設備面では、インターネット接続が可能です(別途工事、契約料が必要な場合あり)。
共用部には宅配ボックスが設定されているので、不在の時にも荷物を受け取ることができます。
コンビニまで徒歩6分の場所にあり、日用品や食料品のお買い物にも便利です。
お金・契約の情報
※「-」と表示されているものは、実際は料金が発生するものもございます。詳細はお問い合わせください。
| 家賃 | 4.3万円 | 管理費・共益費 | 6,000円 |
|---|---|---|---|
| 敷金 | なし | 礼金 | なし |
| 入居決定でお祝い金最大100,000円 | |||
| 保証金 | - | 償却・敷引 | - |
| 住宅保険料 | 1円 | 更新料 | - |
| その他費用 | 抗菌施工(任意):2.376万円 | ||
| 保証会社利用 | 必須 | 保証会社名 | - |
| 保証会社費用 | - | 保証会社備考 | 保証料:59390円(契約内容により100〜120%で変動有)※記載金額は120%の場合 |
| 契約形態 | - | 契約期間 | - |
| 入居・引渡期間 | 即時 | 現況 | - |
| 契約備考 | 鍵交換費10450円、抗菌施工(任意)18040円から23760円(税込)/環境維持費550円/月、更新手数料16500円/2年(税込)/基本清掃料:31350円(税込) 月額(環境維持費 550円) 鍵交換費用:16500 室内清掃費用:41800 その他設備/条件:室内洗濯機置き場 | ||
部屋の情報
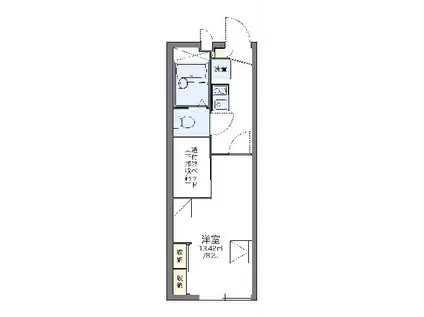
| 間取り | 1K | 専有面積 | 22.35m2 |
|---|---|---|---|
| 所在階 / 向き | 2階 / - | バルコニー面積 | - |
| 水道 / ガス | - | ||
| 設備 | バス・トイレ別、テレビドアホン、宅配ボックス、光ファイバー対応、エアコン、温水洗浄便座、コンロ:電気 | ||
| 当社物件ID | 3411150 | ||
建物の情報
| 建物名 | レオパレスアルカンシエル弐番館 | ||
|---|---|---|---|
| 所在地 | 栃木県さくら市氏家 | ||
| 交通 | 東北本線 氏家駅 徒歩14分 | ||
| 階数 | 2階建 | 総戸数 | 22戸 |
| 築年月 | 2006年01月 / 築20年 | エレベーター | - |
| 駐車場 | 空有 4,400円/月 | バイク置き場 | - |
| 駐輪場 | - | 管理人/管理会社 | - |
| 周辺環境 | コンビニ 徒歩6分(455m) その他 ドラッグストア その他 公園 その他 銀行 その他 * | ||
| 建物種別 | アパート | 建物構造 | 軽量鉄骨造 |
この部屋の取扱い不動産会社
| 会社名 | ハウスコム関東株式会社 宇都宮店 | ||
|---|---|---|---|
| 所在地 | 栃木県宇都宮市5-9笠島ビル1階 | 交通 | - |
| 営業時間 | 10:00~18:00 | 定休日 | - |
| 免許番号 | 国土交通大臣(1)第10263号 | 取引態様 | 仲介 |
| 不動産会社管理番号 | HC5-1942910-204-0041 | 当社管理番号 | 468 |
| 所属団体 | 一般社団法人全国住宅産業協会/公益社団法人首都圏不動産公正取引協議会/公益財団法人日本賃貸住宅管理協会、 | ||
| 取扱い物件情報 | 物件詳細へ | ||
※各種情報と現状に差異がある場合は、現状優先となります。問い合わせをすることで、より詳しい条件、情報を確認する事ができます。
提供:ハウスコム関東株式会社 宇都宮店
この物件が気になったら掲載期限まであと5日
レオパレスアルカンシエル弐番館に条件(家賃・エリア)が近い物件一覧
| 写真 | 家賃 管理費等 | 敷金 礼金 | 間取り 専有面積 | 築年数 | 最寄り駅 所在地 | キープ | 詳細 |
|---|---|---|---|---|---|---|---|
マンション レオパレスアイあいビレッジ(1K/2階) | |||||||
![]() | 5.3万円 6,000円 | なし 5.3万円 | 1K 26.08m2 | 築18年 | 栃木県宇都宮市茂原1丁目 | 詳細を見る | |
アパート クレセントD(1LDK/2階) | |||||||
![]() | 4.5万円 1,800円 | なし 4.5万円 | 1LDK 44.97m2 | 築10年 | 東北本線 矢板駅 徒歩15分 栃木県矢板市扇町2丁目 | 詳細を見る | |
アパート カーサ エテルナ 1(1LDK/2階) | |||||||
![]() | 5.7万円 1,800円 | なし 5.7万円 | 1LDK 42.8m2 | 築12年 | 東北新幹線 宇都宮駅 徒歩24分 JR日光線 宇都宮駅 徒歩24分 JR宇都宮線 宇都宮駅 徒歩24分 栃木県宇都宮市東簗瀬 | 詳細を見る | |
アパート プリンス・ヤマザキA棟(2LDK/2階) | |||||||
![]() | 6.5万円 なし | なし なし | 2LDK 74.52m2 | 築22年 | JR宇都宮線 雀宮駅 徒歩18分 栃木県宇都宮市若松原 | 詳細を見る | |
マンション レジデンス大寛(1K/6階) | |||||||
![]() | 4.3万円 2,000円 | 4.3万円 なし | 1K 26.3m2 | 築35年 | 東武宇都宮線 東武宇都宮駅 徒歩10分 JR宇都宮線 宇都宮駅 徒歩32分 栃木県宇都宮市大寛 | 詳細を見る | |
アパート 上横田町アパート(1LDK/1階) | |||||||
![]() | 6.6万円 3,500円 | なし 6.6万円 | 1LDK 39.17m2 | 新築 | JR宇都宮線 雀宮駅 徒歩43分 栃木県宇都宮市上横田町 | 詳細を見る | |
アパート ハウスTT(1K/1階) | |||||||
![]() | 2.8万円 なし | なし なし | 1K 19.87m2 | 築29年 | 宇都宮芳賀ライト線 駅東公園前駅 徒歩18分 東北本線 宇都宮駅 徒歩22分 栃木県宇都宮市平松本町 | 詳細を見る | |
アパート CLEVERCREST(1K/1階) | |||||||
![]() | 6.5万円 3,000円 | 6.5万円 6.5万円 | 1K 31.16m2 | 新築 | 宇都宮芳賀ライト線 峰駅 徒歩19分 宇都宮芳賀ライト線 陽東3丁目駅 徒歩22分 栃木県宇都宮市峰町 | 詳細を見る | |









