賃貸マンション
東雲キャナルコートCODANの賃貸物件情報(2LDK/9階)
| 家賃 | 管理費等 | 敷金 | 礼金 | 間取り | 専有面積 |
|---|---|---|---|---|---|
| 25万円 | 1.5万円 | 25万円 | 25万円 | 2LDK | 72.34m2 |
入居決定でお祝い金最大100,000円
- 保証金
- -
- 償却・敷引
- -
- 築年数
- 築23年
- 所在階
- 9階
- 向き
- 東
Point
エレベーター2基あり。朝の込み合う時間も快適です。24時間ゴミ出し可。ゴミが溜まったらすぐ捨てられる為、お部屋を衛生的に保てます。床暖房あり。お部屋の空気が汚れず、冬でも陽だまりのような暖かさです。
提供:恵比寿不動産 (株)ライフアドバンス(SUUMO経由)

詳細情報 東雲キャナルコートCODAN
物件紹介
東雲キャナルコートCODANは東京メトロ有楽町線辰巳駅から徒歩8分にあり、駅近で通勤通学に便利なマンションです。
このお部屋は2階以上に位置しているので、通行人や周囲の住人からの視線が気になりにくく、防犯面でも安心。建物のエントランスはオートロックがついており、インターホンにはTVモニタもついているため、相手の顔を確認してから来客対応することができます。
通信設備面では、インターネット接続が可能です。また、BSアンテナ・CSアンテナがありCATVにも対応しているので、おうち時間も充実するでしょう(別途工事、契約料が必要な場合あり)。
床暖房があり、冬も足元から暖かく快適に過ごすことができます。共用部には宅配ボックスが設定されているので、不在の時にも荷物を受け取ることができます。
このお部屋は2階以上に位置しているので、通行人や周囲の住人からの視線が気になりにくく、防犯面でも安心。建物のエントランスはオートロックがついており、インターホンにはTVモニタもついているため、相手の顔を確認してから来客対応することができます。
通信設備面では、インターネット接続が可能です。また、BSアンテナ・CSアンテナがありCATVにも対応しているので、おうち時間も充実するでしょう(別途工事、契約料が必要な場合あり)。
床暖房があり、冬も足元から暖かく快適に過ごすことができます。共用部には宅配ボックスが設定されているので、不在の時にも荷物を受け取ることができます。
お金・契約の情報
※「-」と表示されているものは、実際は料金が発生するものもございます。詳細はお問い合わせください。
| 家賃 | 25万円 | 管理費・共益費 | 1.5万円 |
|---|---|---|---|
| 敷金 | 25万円 | 礼金 | 25万円 |
| 入居決定でお祝い金最大100,000円 | |||
| 保証金 | - | 償却・敷引 | - |
| 住宅保険料 | - | 更新料 | - |
| 保証会社利用 | 必須 | 保証会社名 | - |
| 保証会社費用 | - | 保証会社備考 | 保証会社利用必 レジデンシャルパートナーズ 保証料:賃料等の50%(最低2万)、月額保証・事務手数料:賃料等の1%(更新料無) |
| 契約形態 | - | 契約期間 | - |
| 入居・引渡期間 | - | 現況 | - |
| 契約備考 | 合計13.38万円(内訳:鍵交換代:33000円/室内清掃費用:100760円) 更新料新賃料(ヶ月):1.00ヶ月 2LDK 普通借家2年 損保【1.66万円2年】 エアコン、TVインターホン、オートロック、室内洗濯置、シューズボックス、追焚機能浴室、温水洗浄便座、洗面所独立、宅配ボックス、CATV、BS・CS、敷金1ヶ月、エアコン2台、LDK15畳以上、ネット専用回線、床暖房、保証金不要、3駅以上利用可、3沿線以上利用可、駅徒歩10分以内、24時間ゴミ出し可、礼金1ヶ月、初期費用カード決済可 入居日:'26年4月中旬 | ||
部屋の情報
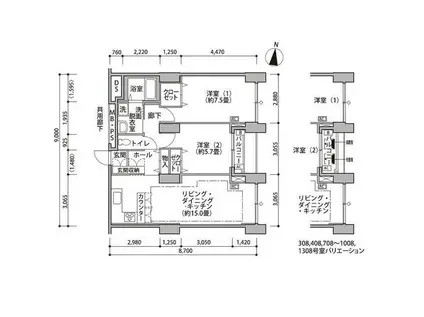
| 間取り | 2LDK | 専有面積 | 72.34m2 |
|---|---|---|---|
| 所在階 / 向き | 9階 / 東 | バルコニー面積 | - |
| 水道 / ガス | - | ||
| 設備 | 2階以上、オートロック、テレビドアホン、宅配ボックス、追い焚き、インターネット対応、エアコン、温水洗浄便座、洗髪洗面化粧台、床暖房、CATV、CSアンテナ、BSアンテナ、洗濯機:室内 | ||
| 当社物件ID | 160532056 | ||
建物の情報
| 建物名 | 東雲キャナルコートCODAN | ||
|---|---|---|---|
| 所在地 | 東京都江東区東雲 | ||
| 交通 | 東京メトロ有楽町線 辰巳駅 徒歩8分 りんかい線 東雲駅(東京) 徒歩11分 新交通ゆりかもめ 豊洲駅 徒歩16分 | ||
| 階数 | 地下1地上14階建 | 総戸数 | - |
| 築年月 | 2004年03月 / 築23年 | エレベーター | - |
| 駐車場 | なし | バイク置き場 | - |
| 駐輪場 | - | 管理人/管理会社 | - |
| 周辺環境 | その他 SHIPS LITTLE CARS(ショッピングセンター)まで250m その他 東武ストア東雲店(スーパー)まで290m その他 ファミリーマート江東東雲一丁目店(コンビニ)まで130m その他 くすりの福太郎東雲店(ドラッグストア)まで240m その他 ヤマダデンキテックランドスーパービバホーム豊洲店(ホームセンター)まで1430m その他 くすりの福太郎木場駅前店(ドラッグストア)まで3320m | ||
| 建物種別 | マンション | 建物構造 | RC(鉄筋コンクリート) |
この部屋の取扱い不動産会社
| 会社名 | 恵比寿不動産 都心チーム(株)ライフアドバンス(SUUMO経由) | ||
|---|---|---|---|
| 所在地 | 東京都渋谷区東3-25-11 TOKYUREIT恵比寿ビル4階 | 交通 | - |
| 営業時間 | 10時~19時 | 定休日 | 水曜日 |
| 免許番号 | 東京都知事97301 | 取引態様 | 仲介 |
| 不動産会社管理番号 | 100492705300 | 当社管理番号 | 89 |
| 所属団体 | (公社)全日本不動産協会東京都本部会員 | ||
| 公正取引協議会 | (公社)首都圏不動産公正取引協議会加盟 | ||
| 取扱い物件情報 | 物件詳細へ | ||
※各種情報と現状に差異がある場合は、現状優先となります。問い合わせをすることで、より詳しい条件、情報を確認する事ができます。
提供:恵比寿不動産 都心チーム(株)ライフアドバンス(SUUMO経由)
この物件が気になったら掲載期限まであと11日
東雲キャナルコートCODANに条件(家賃・エリア)が近い物件一覧
| 写真 | 家賃 管理費等 | 敷金 礼金 | 間取り 専有面積 | 築年数 | 最寄り駅 所在地 | キープ | 詳細 |
|---|---|---|---|---|---|---|---|
アパート ノリアセット(2LDK/3階) | |||||||
![]() | 18.6万円 3,000円 | 18.6万円 18.6万円 | 2LDK 62.72m2 | 新築 | 京浜急行電鉄本線 大森町駅 徒歩9分 京浜急行電鉄本線 梅屋敷駅(東京) 徒歩16分 東京都大田区大森東3丁目 | 詳細を見る | |
マンション SKYWOOD錦糸町(2LDK/2階) | |||||||
![]() | 28.3万円 1.5万円 | なし なし | 2LDK 59.43m2 | 築1年 | 総武・中央緩行線 錦糸町駅 徒歩7分 東京都墨田区亀沢4丁目 | 詳細を見る | |
マンション アーバネックス菊川(2LDK/3階) | |||||||
![]() | 20.5万円 1.5万円 | 20.5万円 なし | 2LDK 40.56m2 | 築7年 | 都営新宿線 菊川駅(東京) 徒歩7分 都営新宿線 森下駅(東京) 徒歩14分 都営大江戸線 両国駅 徒歩16分 東京都墨田区立川 | 詳細を見る | |
マンション アズ亀戸レジデンス(ワンルーム/1階) | |||||||
![]() | 18万円 5,000円 | 36万円 なし | ワンルーム 31.27m2 | 築22年 | JR総武線 亀戸駅 徒歩6分 東武亀戸線 亀戸水神駅 徒歩8分 都営新宿線 大島駅(東京) 徒歩9分 東京都江東区亀戸 | 詳細を見る | |
一戸建て 東京都新宿線 大島駅(東京) 徒歩7分 築77年(1DK) | |||||||
![]() | 15.8万円 なし | 15.8万円 15.8万円 | 1DK 27.91m2 | 築77年 | 東京都新宿線 大島駅(東京) 徒歩7分 東京都新宿線 西大島駅 徒歩7分 総武・中央緩行線 亀戸駅 徒歩11分 東京都江東区大島3丁目 | 詳細を見る | |
一戸建て 京浜急行電鉄本線 梅屋敷駅(東京) 徒歩9分 築25年(3LDK) | |||||||
![]() | 20万円 なし | 20万円 20万円 | 3LDK 80.82m2 | 築25年 | 京浜急行電鉄本線 梅屋敷駅(東京) 徒歩9分 京浜東北・根岸線 蒲田駅 徒歩10分 東京都大田区大森西7丁目 | 詳細を見る | |
マンション 京浜急行電鉄本線 梅屋敷駅(東京) 徒歩4分 築37年(3LDK/2階) | |||||||
![]() | 23万円 7,000円 | 23万円 23万円 | 3LDK 84.68m2 | 築37年 | 京浜急行電鉄本線 梅屋敷駅(東京) 徒歩4分 京浜急行電鉄本線 大森町駅 徒歩12分 東京都大田区大森西6丁目 | 詳細を見る | |
マンション あやめガーデン(2K/10階) | |||||||
![]() | 17.5万円 1万円 | 17.5万円 17.5万円 | 2K 42.26m2 | 築13年 | 東京メトロ日比谷線 築地駅 徒歩1分 東京メトロ有楽町線 新富町駅(東京) 徒歩6分 東京メトロ日比谷線 東銀座駅 徒歩6分 東京都中央区築地 | 詳細を見る | |








